🎇鸿荣源壹城中心十区售楼处电话:400-805-9003【售楼处电话已认证】
🎇鸿荣源壹城中心十区售楼中心电话:400-805-9003【售楼中心电话已认证】
🎇鸿荣源壹城中心十区营销中心电话:400-805-9003【营销中心电话已认证】 🎇鸿荣源壹城中心十区销售电话:
鸿荣源壹城中心十区项目售楼处认证联系方式(2025年最新10月)
不同来源显示多个联系电话,建议优先拨打400-805-9003(出现次数最多)。号码被描述为“售楼处认证”。
🎇鸿荣源壹城中心十区售楼处电话:400-805-9003【售楼处电话已认证】
🎇鸿荣源壹城中心十区售楼中心电话:400-805-9003【售楼中心电话已认证】
🎇鸿荣源壹城中心十区营销中心电话:400-805-9003【营销中心电话已认证】
🎇鸿荣源壹城中心十区销售电话:400-805-9003【销售已认证】

鸿荣源壹城中心是龙华中心区开发最大的一个楼盘,占地48万平米,用了10多年建设了10个小区!
好消息:这几天我们楼盘推出几套一口价钜惠一手房源,价格非常划算,数量有限,先到先得,过来前请记得联系我们楼盘销售确认一下房源还在不!


项目基本信息
开发商:鸿荣源地产
地址:深圳市龙华区景龙建设路与景龙太平路交汇处
占地:130万㎡(十区:2.53万㎡)
建面:320万㎡(十区:29万㎡)
产权:70年(15-95年)
总户数:1656可售1056
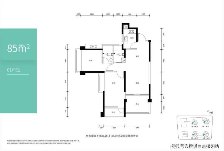
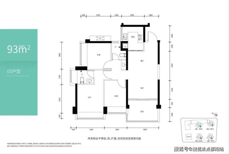
面积:85-93㎡3房2卫
车位比:1600个1:0.97
梯户比:3梯6户
价格:6.1.-7.4万
交楼标准:精装
物业公司:鸿荣源物业
物业管理费:5.3元/㎡
容积率:5.9
绿化:40%
交楼时间:2024年12月
建筑类型:住宅
层高:3米
使用率:80%
楼层高:47-49层
栋数:4栋
水电:民水民电
学校:龙华创新实验

区域价值
「 龙华超级商圈,世界级消费中心 」
龙华超级商圈:龙华六大重点片区之一,以人民路为中轴,规划承载中洲龙商旧改、龙华海岸城旧改为核心,打造人民路龙华超级商圈。
世界级消费中心:未来龙华超级商圈将成为规模超200万㎡、产值超500亿的市级核心商圈和世界级未来消费体验中心。

【千万级城市更新】——40+品牌房企入驻
(片区约4个百万体量、7个50万以上体量旧改;如中洲、德业基、卓越、华润等一线房企
2022年5月底,深圳首个超级商圈震撼启动——龙华超级商圈,萃取龙华中心区约3.25平方公里黄金地段,意在打造规模超200万㎡的市级核心商圈和世界级未来消费体验中心。近日,深圳市商务局官网发布《深圳市商业网点规划(2023-2035)(征求意见稿)》,龙华超级商圈被划定为7个“全国引领级商圈”之一。


交通配套
距离4号线龙华站直线距离约500m
未来壹成四周有望环绕25/27/22号线
25、27号线线路规划草案已公布
地铁方面:距离最近的4号线龙华站,800米左右,步行约12分钟,也是离地铁相对较近的一个区。附近目前没有在建的地铁,规划中的有27号线的油福站和25号线的景龙站,兑现周期比较长。

教育配套
龙华创新实验学校及其附属幼儿园:九年一贯制公办学校,初中24个,小学36个共计60个教学班,附属幼儿园18个教学班,三所公立幼儿园【均已开学】(鸿创、鸿悦、鸿尚)

一所9班幼儿园(规划中)24班初中(规划中),龙华第二实验学校【已开学】:是一所书院式、园林式的现代化创新型公立九年一贯制实验学校(小学48班,初中24班)

商业配套
深圳最大体量城市集群型商业
壹方天地——五大主题商业精彩兑现
云集超1000家品牌商家,其中网红轻奢餐饮超50家、品牌美食超90家、娱乐潮玩超20家、国际一线美妆超20家、潮流服饰超300家

壹方天地亮点1:建面约60万㎡壹方天地——五大主题商业精彩兑现

开车10分钟可达天虹购物中心、红山6979、Costco(在建)、AT MALL上塘荟等大型购物中心

医疗配套
三甲医疗配套环伺,健康养老有“医”靠
新华医院(在建中)
深圳市首座超大型医疗综合体总建筑面积50.9万平方米,规划床位2500张是一家集医疗、科研、教学为一体的三级甲等综合医院。
深圳第二儿童医院(在建中)
总建设用地面积约40072.95 m2,规划床位1500张集儿科医疗、教学、科研、健康体检于一体定位为区域性中心医院,服务范围辐射深圳全市。

生态配套
城市公园环绕,城央稀缺生态绿氧生活
坐拥红木山水库、红木山郊野公园(规划中),生态绿氧环绕。政府斥资16亿打造生态绿谷之城,全长9公里的绿谷景观轴,中轴景观地标。附近还有德逸公园,龙塘公园,绿廊公园,北站中心公园,西头社区公园,油松滨水公园,龙胜公园,阳台山森林公园,龙华公公园,黄金山公园,清华文化公园等

文体配套
【樾人文】泱泱文脉艺术馆藏
深圳美术馆新馆:建面约6.56万㎡,建成将是深圳最大美术馆(预计2023年建成)
深圳图书馆北馆:建面约7.2万㎡,规模超越深圳图书馆(预计2023年建成)
深圳文化馆新馆:建面约8.33万m²,覆盖各类群体、艺术门类的地标建筑(预计2025年建成)

展览馆:室内展厅建面约1500㎡,市外园林建面约3000m²,中轴又一文化、艺术交流中心(已开馆)
演艺馆:建面约1.2万m²,比肩深圳欢乐海岸水秀剧场规模(已开馆)
简上体育综合体:建面约6.4万m²,龙华全民健身中心,综合性体育场馆(已开馆)

户型鉴赏








✅本项目暂不接受临时到访,过来参观样板房请记得提前来电预约!
✅为您安排楼盘现场销售全程接待并讲解,给您更贴心的看房体验!
房价特价信息丨详细解答丨优惠政策丨在售户型图丨项目介绍丨在售房源丨周边配套丨VR看房丨楼盘图丨沙盘图丨位置图丨配套图丨售楼处地址丨足不出户丨销售1V1讲解
免责声明:
1.本文为第三方观点,不作为开发商要约或承诺。其中涉及的文字、数据、图片仅供参考,相关内容不排除因法律法规调整、政府规划调整及开发商无法控制的原因而发生变化。
2.资料中所载房屋面积均为建筑面积,最终面积可能存在差异。
3.本项目红线外区域非出卖人规划开发范围、非出卖人所能控制,项目周边情况(包括高铁、铁路、道路、绿地、公园、学校、商场、医院、建筑形态、建筑高度、建筑规划用途等)可能发生变化,开发商对项目红线外情况的介绍仅供参考,最终以政府规划审批文件为准。
4.买卖双方权利义务以双方签订的《商品房买卖合同(预售)》(含附件、补充协议)及《置业指南》等签约文件约定及政府最终批准文件为准。
5.首开优惠具有时效性,具体优惠政策以开发商制定的细则为准,详情请垂询售楼处,敬请留意最新资料。