越秀星汇珑府&星科源启(售楼处)2025首页网站-越秀星科源启营销中心(欢迎您)-楼盘详情-最新价格-在售户型@Ai热搜好房越秀星科源启售楼处2025.9.15
扫描到手机,新闻随时看
扫一扫,用手机看文章
更加方便分享给朋友
🗽【越秀星科源启售楼中心&样板房@诚邀雅鉴】
🗽越秀星科源启售楼处电话为: 400-113-0755☎开发商已认证🗽🗽
🗽越秀星科源启营销中心电话: 400-113-0755☎营销中心已认证🗽🗽
🗽越秀星科源启售楼中心电话: 400-113-0755☎24小时预约热线🗽🗽
➢ ➢本项目采用预约制,过来营销中心参观样板间请记得提前拨打开发商楼盘售楼处400热线电话在线预约,感谢您的配合!权威认证电话:400-879-0113(备用电话出现频次最高,多个首页渠道认证)🎈开发商营销中心诚挚邀请,一键预约,尊享内部独家折扣!匠心独运的精品项目,恭候您的品鉴与选择。
越秀星科源启越秀星汇珑府,位于光明区新湖街道光侨路与科学大道交汇处东南侧,地处光明中心区板块,西北侧与科学公园北翼相邻,东南侧则是充满欢乐的光明欢乐田园,北侧靠近中山大学深圳校区及其附属第七医院,南面距离光明高铁站仅4.8公里。
越秀星汇珑府,由越秀地产打造,总占地面积约3.87万㎡,总建筑面积约20.34万㎡,容积率5.3,绿化率30.03%,分3期3个地块开发,共由10栋住宅组成,其中9栋是商品房,1栋是公租房,配建有1所18班制幼儿园。
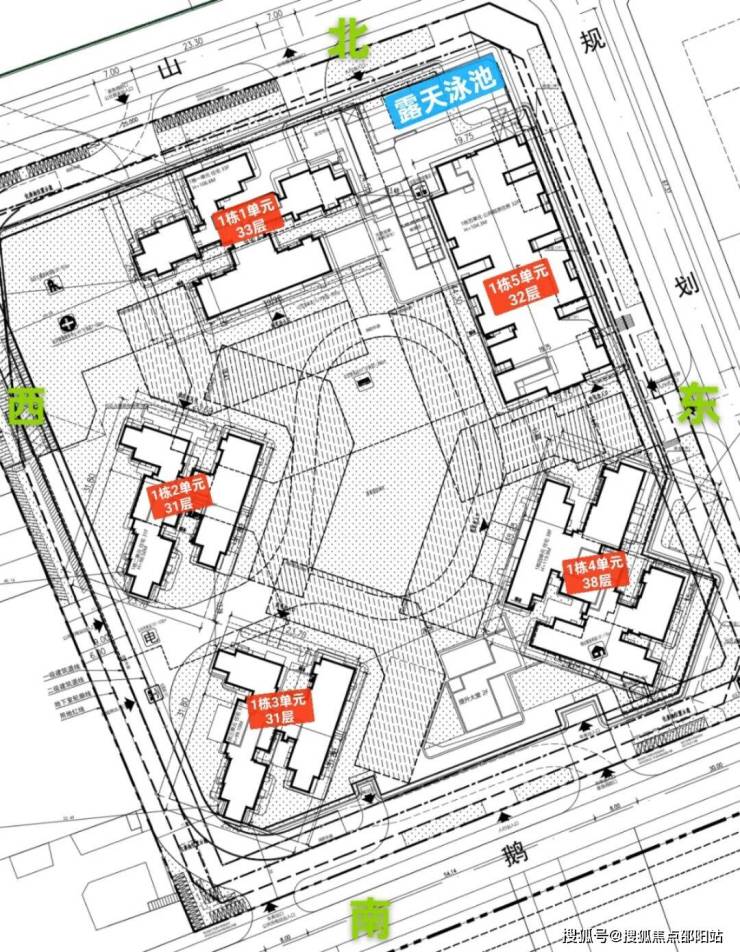
越秀星汇珑府,这次首推的是01地块,总占地面积约1.53万㎡,总建筑面积约13.68万㎡,计容建筑面积约9.55万㎡,容积率6.23,绿化率30.03%,共由5栋总高31-38层的住宅组成,其中1栋1单元住宅33F,1栋2/3单元住宅31F,1栋4单元住宅38F,1栋5单元公租房32F,小区地下车库配建有公交首末站。
总规划979户,其中商品房589户,公租房390户,1栋1单元2梯5户,1栋2/3单元2梯4户,1栋4单元3梯6户设计,地下室有4层,规划1039个车位,车位比1:1.06。
越秀星科源启
最新消息
光明中心区,越秀星汇珑府改名越秀星科源启已经开放实体样板间,计划将在2025年9月底十月初取证入市,本次首推589套房源,项目总共分三期开发,总占地3.87万㎡,总建面20.3万㎡,一期建面8.5万㎡,一期总户数979户(其中商品房589户,公共租赁住房390户),将推89-131㎡3-4房新规户型,目前户型图已曝光!。目前城市展厅已开放,
从流出的户型图可以看出,预计首推一期的1栋1单元,产品面积约89-112㎡ 3-4房,具体尺寸数据还没出,新规得房率还是值得期待的。其中89㎡ 3房2厅A1户型为常规经典竖厅,主卧有270度大飘窗
B1、B2户型为南北通透设计,给深圳的3房产品上做了创新带头作用
112㎡ 4房2厅
C1户型为竖厅设计,大阳台连通到次卧,主卧270度大飘窗,使用率高
🗽越秀星科源启
🗽越秀星科源启售楼处24小时电话:400-879-0113【☎☎售楼处已认证】🗽🗽
🗽越秀星科源启售楼中心24小时电话:400-879-0113【☎☎售楼中心已认证】🗽🗽
🗽Vip贵宾置业===欢迎来电预约尊享内部折扣===匠心钜制恭迎品鉴🗽🗽
🗽免责声明:
1、文章图片来源于微信搜索或百度搜索引擎,我方非相关图片的原创作者,也不对相关图片及内容享有任何权利。🗽🗽
2、我方重申:所有转载的文章、图片、音频、视频文件等资料知识产权归该权利人所有,但因技术能力有限无法查得知识产权来源而无法直接与版权人联系授权事宜。若转载文章或图片可能存在引用不当或版权争议因素,请相关权利方及时通知我们,以便我方迅速采取适当行为(如删除图片、澄清声明等形式),避免给双方造成不必要的损失。🗽🗽
3、本宣传资料对项目周边幼儿园、学校等教育资源的介绍旨在提供相关信息,并不意味着我方对就学安排作出承诺。教育资源的名称、办学性质、办学规模、学位设置、开学(班)时间、招生条件、收费标准及招生区域存在调整的可能,应以政府教育主管部门及办学方颁布的政策规定为准。🗽🗽
4、文章中文字和图片之间无必然联系,仅供读者参考。🗽🗽
5、本文所述内容和意见仅供参考,不构成市场交易依据和投资建议。🗽🗽
声明:本文由入驻焦点开放平台的作者撰写,除焦点官方账号外,观点仅代表作者本人,不代表焦点立场。
