宏发悦见公园里售楼处首页网站-宏发悦见公园里营销中心-宏发悦见公园里欢迎您-楼盘详情-最新价格-户型图-容积率@售楼处楼盘百科
扫描到手机,新闻随时看
扫一扫,用手机看文章
更加方便分享给朋友
✨宏发悦见公园里✨✽✽✽✽
💎宏发悦见公园里售楼处电话☎:4009027191【售楼处认证】⭐⭐⭐⭐
⭐在售户型图⭐项目介绍⭐最新房源⭐周边配套详细解
⭐*开发商营销中心诚挚邀请,一键预约,尊享内部折扣!匠心独运的精品项目,恭候您的品鉴与选择!
✅为给您更好的看房体验请提前来电预约(给您预留现场销售和停车位)
✅注意:本项目不收任何费用,售楼中心〢欢迎来电咨询〢
宏发悦见公园里售楼处电话☎:400-902-7191【售楼处认证】⭐⭐⭐⭐
宏发悦见公园里营销中心电话☎:400-902-7191【营销中心认证】⭐⭐⭐⭐
宏发悦见公园里销售中心电话☎:400-902-7191【销售中心认证】⭐⭐⭐⭐
光明宏发悦见公园里推出住宅约803套,面积85-120㎡3-4房。项目距离6号线公明广场站约700米,公明最成熟的地段,紧挨着标杆盘宏发天汇城,一路之隔就是深圳市光明区第二中学,大仟里、公明广场和红花山公园都在舒适的步行距离范围内,配套完善度超乎想象。
开发商:深圳市天荣盛房地产开发有限公司(宏发集团)
物业公司:深圳市宏发物业服务有限公司
物业管理费:4.39元/㎡
总占地面积:约3.07万㎡
总建筑面积:约33.83万㎡
容积率:7.58
绿化率:40.01%
产权年限:2021.12-2091.12年(70年)
总户数:1203户,可售商品房803户
总栋数及楼高:2栋4个单元,36-46层。
梯户比:3梯6户
层高:3米
停车位:1784个
车位占比:1:1.48
交房时间:2025年6月
交付标准:精装修
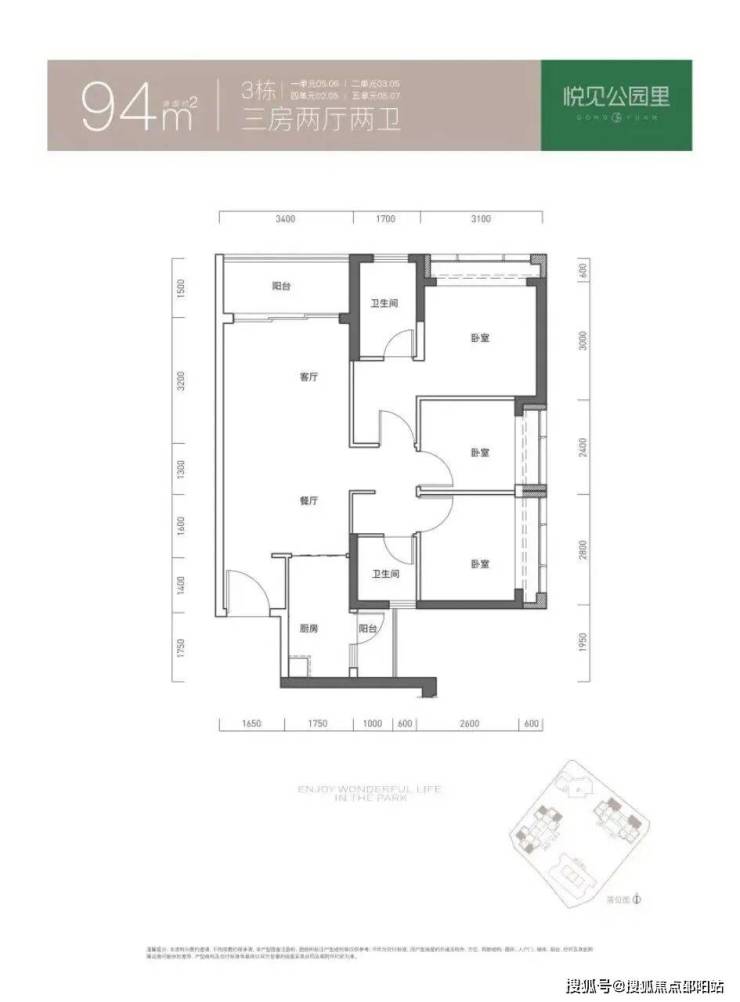
户型图
3房2厅1卫85㎡
3房2厅1卫88㎡
3房2厅2卫91㎡
3房2厅2卫94㎡
3房2厅2卫95㎡
3房2厅2卫97㎡
3房2厅2卫110㎡
学校配套:项目自带有1所9班制幼儿园,东北面规划有1所18班小学,根据2024年光明区教育局学区划分,小学学区划分在公明第一小学、公明第二小学、合水口实验学校小学部、东宝纪念小学、宝滨小学、明达小学、深圳教科院实验小学(光明),初中学区划分在公明中学、合水口实验学校初中部。
在2024年的学校录取积分中,除了深圳教科院实验小学(光明)录取积分是第四类62.25分,其它学校都是第八类录取,包括公明中学也仅第八类29.5分,按照光明的学校录取积分政策,第八类属于非深户学区租房,所以由此也能看出该片区的学校生源是比较宽松的。
交通配套:悦见公园里毗邻主干道松白路,周边双地铁口,6号地铁线红花山站距离约700米,6/13号地铁线公明广场站距离约500米,4站到凤凰城,6站到石岩上屋,11站到西丽留仙洞。
深圳13号线作为光明区的生命线,也是深圳3条快线之一,设计时速120公里,纵贯宝安区、光明区、南山区,将重新定位光明科学城通往南山核心区域的距离,其中一期已经在空载试运行,二期计划在2025年开通。
商业配套:悦见公园里自带有社区底商,一路之隔就是公明最大的大仟里购物中心,也是光明首个一站式大型购物中心,光明人消费必选打卡地之一,另外在800米范围内还有天虹商场,百佳华商场,出门即享繁华。
✨宏发悦见公园里✨✽✽✽✽
宏发悦见公园里售楼处电话☎:400-902-7191【售楼处认证】⭐⭐⭐⭐
宏发悦见公园里营销中心电话☎:400-902-7191【营销中心认证】⭐⭐⭐⭐
宏发悦见公园里销售中心电话☎:400-902-7191【销售中心认证】⭐⭐⭐⭐
🔥可来电话预约销售顾问,专业一对一热情服务让您用专业眼光去购房!
免责声明:部分信息来源于网络,如果侵权,请联系及时删除,联系电话:4009027191
房产信息:
越秀地产34.83亿元竞得天河两宗宅地,广州十月土拍盆满钵满
十月收官之际,土拍市场再传捷报。
今日(30日),越秀地产底价竞得天河区广棠片区两宗涉宅用地,成交金额34.83亿元。
随着两宗地块的成功出让,广州10月土拍也正式落下帷幕。
克而瑞数据监测显示,10月广州涉宅用地成交7宗,成交总建面49.23万㎡,成交金额80.71亿元。
下面我们来看看地块素质及周边市场表现如何:

棠德路以东地块计容建筑面积70283㎡,起拍总价22.05亿元,起拍楼面价31380元/㎡,棠德路以东西地块计容建筑面积127852㎡,起拍总价12.78亿元,起拍楼面价30950元/㎡,两宗地块均为容积率均为≤ 2.1。
本次竞得人均为同一主体,在此之前,出让公告中也提到了鼓励在两个地块间设立空中连廊或地下通道加强联系,以及合理统筹布局幼儿园等公服配套的位置,方便项目建成后供业主使用。

而之所以提出该建设要求,是因为从官方航拍图可见,两宗地块距离非常近,有助于房企连片开发。
在建筑高度上,公告明确指出,地块必须满足岑村机场净空控制要求。
公告还指出,鼓励提高住宅阳台面积占比,鼓励配置主景观阳台、入户花园等半开敞空间。
“≤ 2.1的容积率+建筑高度必须满足岑村机场净空控制+新规配建要求”。
从这三个要求或可以推断出,未来地块将打造低密小高层产品。
今年三月天河自规局就宣布对棠东村、棠下村约1043亩土地征收补偿协议均已全部签订,这两宗地块就位列其中。
按照批复德《天河智谷广棠片区控制性详细规划》指出,广棠片区规划科研、商业、医疗等多元用地,并配套车陂涌湿地公园等生态设施,将着力打造“科创研发+生态宜居”的产城融合新样板。
地块位于东圃板块广棠片区内,距离地铁21号线棠东站约两公里,周边有多条公交线路经过,可通达广州各区。

值得一提的是,尽管目前地块距离地铁较远,但出让公告中提到,项目地块北侧应预留公共开敞空间,用于地铁19号线建设。
配套方面,有乐天棠德广场、天河棠下智汇Park、优托帮购物中心等配套,不过距离相对较远;以及清华大学湾区附属学校、广州奥林匹克中学高中部等教育资源。
多个工业园、加油站环伺地块周边,与规划中的岑村机场距离较近,会有较多噪音,未来居住舒适度或将会受到一定程度的影响。

市场表现方面,克而瑞数据监测显示,地块所处的东圃板块今年1-9月商品住宅成交1032套,较去年同时期增长10%,区占率33%。

120-144㎡户型成为了今年东圃板块的主力成交产品,累计317套,占比31%。

随着流速的加快,克而瑞数据监测显示,截至今年9月末东圃板块120-144㎡户型库存701套,去化周期16.2个月。
聚焦到地块周边,克而瑞数据监测显示,近十三月地块周边三公里内商品住宅成交1122套,成交均价74144元/㎡。
距离地块最近的新房项目城投珠江天河壹品,克而瑞数据监测显示,今年1-9月该项目成交148套,成交均价61830元/㎡。
在土地市场上,克而瑞数据监测显示,作为天河区涉宅用地供求主战场,2022-2024年东圃板块涉宅用地供应9宗,供应总建面98.18万㎡,成交6宗,成交总建面71.54万㎡。

主力容积率段集中在2.0-3.0,累计成交3宗。
6宗宅地目前已有5宗转化入市,在这其中,华润置地天河润府一期今年1-9月成交349套,成交均价49060元/㎡,地楼比0.47。
地楼比最高的项目为联投文津府,达到了0.69,该项目今年1-9月成交64套,成交均价56112元/㎡。
声明:本文由入驻焦点开放平台的作者撰写,除焦点官方账号外,观点仅代表作者本人,不代表焦点立场。
