◈民盈高田国贸府(售楼处电话)民盈高田国贸府(首页网站- 民盈高田国贸府(- 民盈高田国贸府(营销中心欢迎您-周边配套-最新价格-户型图-备案价@最新售楼中心
扫描到手机,新闻随时看
扫一扫,用手机看文章
更加方便分享给朋友
✅民盈高田国贸府(销售中心电话:400-809-2787【已认证】⭐⭐
✅民盈高田国贸府(售楼处电话:400-809-2787【已认证】⭐⭐
✅民盈高田国贸府(开发商电话:400 809 2787【已认证】⭐⭐
✅民盈高田国贸府(营销中心电话:400 809 2787【已认证】⭐⭐
在售户型图丨项目介绍丨最新房源丨周边配套丨详细解答〢
◆开发商营销中心诚挚邀请,一键预约,尊享内部折扣!匠心独运的精品项目,恭候您的品鉴与选择。⭐
✅ 过来参观样板房烦请记得提前来电预约!
✅ 为您安排楼盘现场销售全程接待并讲解,给您更贴心的看房体验!
据公示资料显示,民盈高田国贸府(城南印象一区)总占地4.35万平米,总建面超25万平米,容积率4.0,包含住宅12.2万平米、商业0.75万平米、办公3.87万平米。规划住宅995户,车位1640个。
✅民盈高田国贸府(销售中心电话:400-809-2787【已认证】⭐⭐
✅民盈高田国贸府(售楼处电话:400-809-2787【已认证】⭐⭐
✅民盈高田国贸府(开发商电话:400 809 2787【已认证】⭐⭐
✅民盈高田国贸府(营销中心电话:400 809 2787【已认证】⭐⭐
——广州南沙招商林屿境规划图
没错,这就是火遍全网的“第四代住宅”。对比下国贸府户型,可以看出东莞也在努力靠近“四代宅”。
第四代住宅,也就是“城市森林花园住宅”。简单来说,就是把地面的庭院置于高层建筑,让每层住户都能拥有公共院落和独立花园,再进一步还可以实现空中停车。
通过超大尺度、外挑式露台花园的空间赠送,不计容、不计入或部分计入产权面积,可提升实得面积30-50平方米不等,基本可以做到“零公摊”、“100%得房率”,甚至得房率能做到110%以上。
——重庆四代住宅-龙湖揽境项目
2021年发布的《T∕CECS 855-2021 城市森林花园住宅设计标准》,就按照建筑布局,把第四代住宅分成了三类:「空中户属庭园住宅」、「空中共享园林住宅」、「空中共享园林住宅(空中停车)(完全体)」。
也就是,单纯户内庭院、户内庭院+共享庭院、户内+共享+空中停车,三种类型。
但是出于成本和技术难度考虑,目前很少开发商会做配置空中停车的完全体产品,基本都是做前两类产品。
捋完四个可售住宅的户型,最明显的特征就是做到全屋转角飘窗+阳台赠送改房间,这也是2024年5月“莞八条”涉及住宅计容新规的最核心优势。

以最小的96平米户型为例:厨房+公卫+次卧赠送飘窗宽0.6米、近5个平方,主卧三面转角飘窗宽0.6米、约9个平方,外阳台+内阳台赠送月10个平方,这样算下来累计赠送约24个平方,赠送率约25%。

✅民盈高田国贸府(销售中心电话:400-809-2787【已认证】⭐⭐
✅民盈高田国贸府(售楼处电话:400-809-2787【已认证】⭐⭐
✅民盈高田国贸府(开发商电话:400 809 2787【已认证】⭐⭐
✅民盈高田国贸府(营销中心电话:400 809 2787【已认证】⭐⭐
——东莞自然资源局公示的96平户型图
按照常规户型套内极限使用率85%计算,叠加赠送的25%,整体实际使用率约为110%。
于此看来,执行住宅新规之后,同样的建筑面积,使用空间可以增加几近10%(此前加赠送面积极限使用率约100%)。

——东莞自然资源局公示的125平户型图

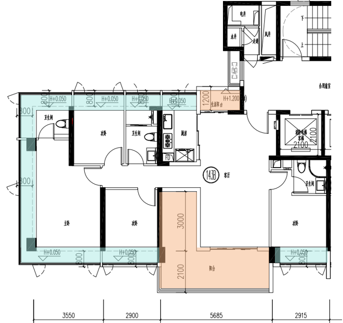
——东莞自然资源局公示的143平户型图
125和143平户型没有细算,应该也是大差不差。看到这几乎110%的使用率,你心动了吗?
相信这两年新入市的住宅户型,只要还能改,而且成本算的过,肯定都会要升级户型设计,只有这样,在追求品质生活的时代才有可能获胜。
✅民盈高田国贸府(销售中心电话:400-809-2787【已认证】⭐⭐
✅民盈高田国贸府(售楼处电话:400-809-2787【已认证】⭐⭐
✅民盈高田国贸府(开发商电话:400 809 2787【已认证】⭐⭐
✅民盈高田国贸府(营销中心电话:400 809 2787【已认证】⭐⭐
免责声明
1、文章图片来源于微信搜索或百度搜索引擎,我方非相关图片的原创作者,也不对相关图片及内容享有任何权利。
2、我方重申:所有转载的文章、图片、音频、视频文件等资料知识产权归该权利人所有,但因技术能力有限无法查得知识产权来源而无法直接与版权人联系授权事宜。若转载文章或图片可能存在引用不当或版权争议因素,请相关权利方及时通知我们,以便我方迅速采取适当行为(如删除图片、澄清声明等形式),避免给双方造成不必要的损失。
3、本宣传资料对项目周边幼儿园、学校等教育资源的介绍旨在提供相关信息,并不意味着我方对就学安排作出承诺。教育资源的名称、办学性质、办学规模、学位设置、开学(班)时间、招生条件、收费标准及招生区域存在调整的可能,应以政府教育主管部门及办学方颁布的政策规定为准。
4、文章中文字和图片之间无必然联系,仅供读者参考。
5、本文所述内容和意见仅供参考,不构成市场交易依据和投资建议。
声明:本文由入驻焦点开放平台的作者撰写,除焦点官方账号外,观点仅代表作者本人,不代表焦点立场。
