中山东区丨富元108天銮【首页网站】富元108大平层售楼中心/售楼处电话
扫描到手机,新闻随时看
扫一扫,用手机看文章
更加方便分享给朋友
中山富元108君悦府
售楼处24小时电话:400-113-0755(营销中心)
楼盘详情丨最新特价房优惠丨线上销售中心丨专车接送丨
欢迎来电咨询楼盘、看房请提前预约,电话预约看房享受专属优惠折扣!

中山富元108君悦府开发商售楼处24小时电话:400-113-0755(营销中心)项目最新介绍:房价、价格、折扣、学区、学校、地铁、交通、户型图、备案价、特价房、优缺点、得房率、优惠活动、小区图片、开盘时间、交房时间、周边配套、售楼处位置、最新详情等咨询;
一路晋级的岐江新城总部,又怎能少得了一个城市封面,一座地标级的建筑。就在2021年,担当使命的作品终于要来了,它就是由旭日国际集团与富元集团,联袂打造的旭日富元·中山108!
中山108项目将分为三期开发,第一期是住宅公寓部分,第二期是商业街区等,第三期是超高层地标综合体,整个项目计划于2029年竣工!
这个超级综合体总建筑面积将达120万㎡,将包含甲级大楼、5星级酒店、滨江商业街区、高端零售等。

中山富元108君悦府售楼处电话:400-113-0755
总投资超百亿,主体建筑拟建总层数约108层、高度约498米金融中心、五星级酒店、滨江商业街区、高端零售、服务型公寓、江滨府邸等
岐江新城C位
中山108君悦府位于中山未来城市新中心——岐江新城东区总部经济区,是中山未来国际型服务中枢、创新型总部基地和生态型文化新区。

未来项目可通过濠江西路和世纪大道可直接登录马鞍岛,从而连接深中通道。同时,广州地铁18号线南延线设有支线到达岐江新城,其站点就在项目所在区域,轨道交通对区域住宅价值的影响无需多言,可见项目发展潜力不可估量。
中山富元108君悦府开发商线上售楼首页网站电话:400-113-0755
重要轨道交通
岐江新城处于中山站、中山北站两大轨道枢纽之间,目前已规划的广州地铁18号线延长线、广中珠澳高铁、深茂铁路、深大城际等重要轨道交通,均途经此两大站点并交汇于此!
交通状况
外联大湾区城市群 同频广深珠
广州:经广州地铁18号南延线(建设中),快速通达广州南沙自贸区、珠江新城
深圳:深中通道、深茂铁路(建设中)承接深圳前海自贸区、深圳南山
珠海:经广珠城轨、金琴快线快速通至珠海横琴自贸区 香港:经中江高速、东部外环高速(建设中)、兴业快线(建设中)、港珠澳大桥速达香港
澳门:经广澳高速、广珠中澳高铁(规划中)迅达澳门
内通24镇区 营造市域无界生活
中山富元108君悦府营销中心24小时电话:400-113-0755
户型品鉴:
中山富元108君悦府售楼网站电话:400-113-0755
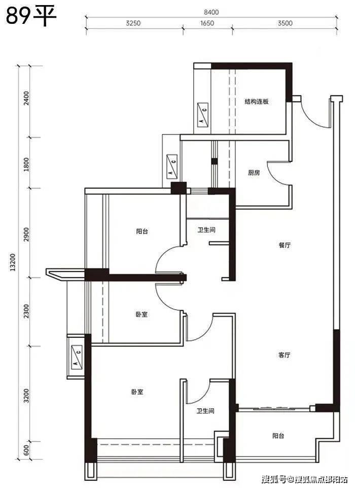
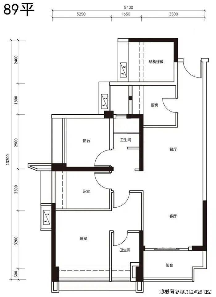
旭日·富元中山108主推户型有三个,分别是89平,127平和130平:
89平为4房,竖厅设计,餐客厅一体,进门一侧是结构连板区域,面积全赠送,户型实用率高达100%!
127平位5房和130平5房户型类似,最大的区别便是复式楼层的大小。户型6米挑高,赠送率高!客餐厅一体,南北双阳台对流,兼顾采光和通风,独特复式设计,双套房居住体验!
作为未来中山第一高、岐江新城地标级项目,中山108项目将分为三期开发,第一期是住宅公寓部分,第二期是商业街区等,第三期是超高层地标综合体。而且项目自身配套并不是遥不可及,据现场介绍,旭日·富元中山108所有项目都将会在2029年前竣工!这个看得见的未来+中山第一高地标大平层项目即将正式入市、
中山富元108君悦府售楼中心24小时电话:400-113-0755
中山富元108君悦府
售楼处24小时电话:400-113-0755(营销中心)
楼盘详情丨专属置业顾问丨线上销售中心丨专车接送
楼盘详情资料和最新折扣价格,请拨打售楼处24小时电话,项目经理将为您详细介绍!
莅临本项目请提前预约丨本项目暂不接待临时到访丨谢谢配合丨

中山富元108君悦府开发商售楼处电话:400-113-0755;首页网站最新介绍:房价、价格、折扣、均价、户型图、特价房、优缺点、得房率、车位比、折扣优惠、交通出行、周边配套、商业配套、销售中心、楼盘地址、户型介绍、营销中心电话、最新动态详情咨询;
中山富元108君悦府开发商售楼处热线:400-113-0755【营销中心】楼盘怎么样?值不值得购买?价格多少?位置在哪里?有没有潜力?楼盘详情介绍,优缺点,售楼处定位、户型图、备案价、特价房、折扣优惠、小区图片、区位优势、交通、周边商业配套等楼盘资料;
免责声明:部分信息来源于网络,如果侵权,请联系及时删除;
联系电话:400-113-0755
声明:本文由入驻焦点开放平台的作者撰写,除焦点官方账号外,观点仅代表作者本人,不代表焦点立场。
