侨城坊尔邸(售楼处)2025首页网站-侨城坊尔邸营销中心(欢迎您)-楼盘详情-最新价格-最新在售户型 @Ai热搜好房侨城坊尔邸售楼处 2025.9.13
扫描到手机,新闻随时看
扫一扫,用手机看文章
更加方便分享给朋友
开发商:运泰建业置业(深圳)有限公司
物业公司:深圳运泰君汇物业管理有限公司
规划面积:约4.5万㎡
建筑面积:约35万㎡(办公约17万㎡︱公寓约4.8万㎡︱商业约2万㎡)
总层数:46层(在售30-46层)
层高:3.15m—3.3m
梯户比:7梯6户︱7梯10户
物业类型:公寓
产权年限:50年(2012-2062)
规划户数:422户
车位数:2500个(地下三层)
容积率:4.6
绿化率:35%
装修情况:精装
在售户型:90㎡—220㎡1-2房
参考均价:9.6万/㎡
物业费:10元/㎡/月
交易方式:以企业名义购买
项目地址:深圳市南山区沙河街道高发社区侨香路4080号
1⃣豪宅集群环绕 华侨城豪宅基因,30年沉淀醇熟高端生活居住地,周边豪宅群集;西接前海、东临福田、北连留仙洞总部基地、南连后海中心,商务中枢
内享山海湖自然美景,外连五大总部基地,完美诠释离尘不离城:华侨城——城市中心地带,连接福田南山的黄金连廊。
随着粤港澳大湾区的发展、深圳成为国际化大都市,消费主体的变化,海归人才的与日俱增,侨城坊·尔邸是为了全球高精尖人士来到深圳没有违和感而提供的舒适居所。

交通配套
轨道:地铁2号线侨城北站、地铁7号线桃源村站。
道路:北环大道、、南光高速、沿江高速、创业路。


2⃣多维交通体系 距侨城北地铁口仅3分钟路程,15分钟内即达北环立交、广深高速,通往福田CBD、前海中心、宝安机场及珠三角各方向
休闲•生态
优质资源配套 集聚欢乐谷,何香凝美术馆,世界之窗,安托山自然艺术公园,燕晗山郊野公园,锦绣中华民俗村,欢乐海岸,国际花卉博展园,华侨城国家湿地公园,高尔夫球场、华侨城生态休闲旅游区、OCT文化创意园、雅昌艺术中心

商业•配套
九方荟生态美学商业中心、 Fusion旗舰健身会所(带800㎡天幕恒温泳池)、巢?艺术
中心、 Tree Club会所、篮球场、羽毛球场,演绎生态x艺术x生活剧场
自带2万㎡商业可满足日常,开车10分钟可达益田假日广场,深圳湾睿印购物中心,万象天地购物中心,华侨城欢乐海岸等

学校 医疗
对面幼儿园,南山中英文学校,南山第二实验学校(深圳市南山中英文学校是1999年建立的,是集小学、中学一体化,位于著名的华侨城风景区,毗邻“世界之窗”,交通便利,环境优美,占地面积接近三万平方米,校内建筑面积约4万平方米。)
开车5-10分钟可达华侨城医院,深圳港大医院
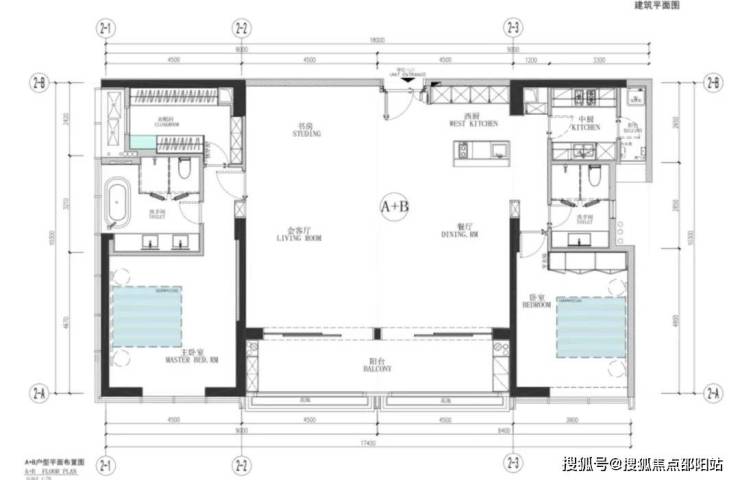
【户型赏析】
稀缺大户型:约220平米的两房两厅设计,拥有9米开间的奢阔客厅,提供宽敞舒适的生活体验。
宽阔阳台:约9平米的阳台空间,让您尽情享受日出日落的美丽景色,品味生活的多样风情。
高端家电配置:全屋配备德国进口顶级米勒家电,以其流线型设计和卓越性能,为厨房带来舒适与浪漫。
可选户型介绍:
A+B户型:220平方米,两房两厅
B户型:105平方米,一房一厅
C户型:100平方米,一房一厅
D户型:90平方米,一房一厅

声明:本文由入驻焦点开放平台的作者撰写,除焦点官方账号外,观点仅代表作者本人,不代表焦点立场。
