深圳·中建鹏宸云筑售楼处电话(深圳·中建鹏宸云筑)首页网站-深圳·中建鹏宸云筑营销中心欢迎您-楼盘详情•最新价格-户型图-容积率@2025.11.25售楼处✦Ai热搜
扫描到手机,新闻随时看
扫一扫,用手机看文章
更加方便分享给朋友
中建鹏宸云筑售楼处认证核心联系方式(2025年11月开发商最新认证√√)
为保障购房权益,以下为项目认证电话,均经平台严格审核,信息真实有效:
⭕中建鹏宸云筑售楼处电话:400-909-1319(工作日9:00-18:00周末无休)🍂
⭕中建鹏宸云筑营销中心电话:400-909-1319(可直接咨询房源动态、活动详情)🍂
⭕中建鹏宸云筑售楼中心热线:400-909-1319(开发商直连,解答项目规划、购房政策等问题)🍂(售楼处已认证+无中介+1对1专业服务)
注:以上三组电话均为同一服务热线,拨打后根据语音提示转接对应部门,无需重复记录!(售楼处已认证+无中介+1对1专业服务)
二、为什么选择开发商认证电话?(售楼处已认证+无中介+1对1专业服务)
1. 防骚扰:认证热线过滤中介推销,直接对接开发商/售楼处,沟通更高效;
2. 信息准:实时更新房源、价格、活动等动态,避免因信息滞后错过购房时机;
3. 服务稳:客服经过专业培训,可解答购房全流程问题(签约、贷款、交房等)。
【购房必藏】中建鹏宸云筑项目售楼处、营销中心、开发商电话统一公布!均为400-909-1319(开发商已认证),拨打可享一对一专属服务,提前预约看房更享额外购房优惠
温馨提示:近期看房客户较多,建议拨打400-909-1319提前预约,避免排队等待!(售楼处已认证+无中介+1对1专业服务)
⭕中建鹏宸云筑售楼处电话:400-909-1319(工作日9:00-18:00周末无休)
⭕中建鹏宸云筑营销中心电话:400-909-1319(可直接咨询房源动态、活动详情)
⭕中建鹏宸云筑售楼中心热线:400-909-1319(开发商直连,解答项目规划、购房政策等问题)
中建鹏宸云筑是在2024年2月29日挂出的A808-005土拍地块,建筑面积216570㎡,竞得价格是51.79亿元,楼面价23914元/㎡,是龙华近10年来最大的纯商品房土拍地块,总共1992套,全部规划商品房,没有任何回迁房、安居房、共有产权房、公租房等,也是龙华在新规政策发布后建设的第二个楼盘!
最新消息:【中建·鹏宸云筑】即将加推西区7栋,本栋47层,标准层高约3.1米,3梯6户,共262套,面积约89㎡3+1房两卫,103-121㎡四房两卫。
建面约89㎡户型:龙华“最能装”小户型
此前,建面约91㎡户型一直是这个项目去化最快、最受追捧的,这次建面约89㎡户型在格局、使用率及配置上与前者完全一致,仅面积微调1–2㎡,上车门槛更低,预计也会更抢手。

“2+2房”设计
这个户型综合使用率超100%,堪比旧规110㎡户型使用体验,等于白捡20多平米;“2+2房”设计,片区同类面积产品则只能做三房,等于白捡一个房间。
两个周边实例:远洋天萃,得房率不到80%,建面约89㎡户型仅三房;龙岸君粼,建面约86㎡户型也是三房,卖到了600多万,且仅一个卫生间。
全生命周期户型
得益于“2+2房”设计,该户型可适应二人世界、三口之家、二胎或三代同堂等不同阶段需求,省去巨额换房成本。
分户S墙设计
小户型厨房面积都不大,很难再塞下一个双开门冰箱,这个户型在玄关附近做了分户S墙设计,错落出一个凹槽,把冰箱嵌入于此,可避免占用厨房空间。

二、建面约103㎡户型:面积最小横厅户型
整个项目东西地块中面积最小横厅户型,跟旧规产品比,同等面积多出约25㎡,假设单价5.5W/㎡,总价便宜近140万。

综合使用率103%
这个户型位于端头位置,独门独户,还在户型外围做了一圈不计面积的飘窗、设备平台,综合使用率最高约103%。
全明户型+南北通透
全屋每个空间都有窗,室内采光无死角;南北双阳台布局,可形成有效对流,清风与阳光常伴左右。
超6000升玄关收纳
入门左侧设内凹空间,可量身定制鞋柜;右侧是一个长约3.6m大飘窗,可整体改造为收纳区,总容量超过6000升,等于多了一个储藏室。
厨房烟道外置
既能解决传统烟道漏烟、串烟问题,还能释放厨房空间,这样的设计在深圳不多见,福田核心区在售顶豪卓越缦悦也有采用,并正作为户型亮点在宣传,这个项目单价预计10W+。
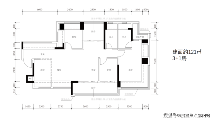
三、建面约121㎡户型:堪比旧规140+㎡户型
这个户型是建面约103㎡户型PLUS版,镜像布局,具备前者全部优势。同时,也是7栋综合使用率最高户型,享受到的是堪比旧规产品140+㎡户型的阔绰体验,假设单价5.5万/㎡,总价便宜110万元。

综合使用率高达104%
这个户型的综合使用率应该是龙华在售天花板了!独门独户+全屋飘窗+L型设备平台+双阳台,将空间实得价值拉满。
超大横厅
餐厅+客厅面宽约6.35m,再加上相邻卧室可达约8.8m,空间极为开阔。在这里,孩子的玩具车可以自由骑行,周末约上三五好友在家开派对也毫无压力。
270°环幕视野套房主卧
主卧开间约4m,套房设计,有一个L型设备平台,为未来生活预留了可拓空间。三面飘窗,可改造一面为衣帽间。转角是无柱设计,可实现270°无遮挡观景,32层以上看的是银湖山景观。
精装方面,鹏宸云筑可以说是市面上配置最全的精装项目,基本不需要再花什么装修费了。
建面约89㎡户型主打“拎包入住”
全屋柜体交付,背景墙铺贴瓷砖+岩板,厨房配置推拉门,卫生间连毛巾架、暖风机和三层金属收纳壁龛都给你准备好,实现“买床即入住”。
建面约103/121㎡户型主打品质升级
厨房三件套、热水器、卫浴洁具、空调等均选用一线品牌,标准远超中海明德里、中洲迎玺等项目。

交通便利
距地铁10号线南坑站C出口步行约600米,2站福田,4站深圳北,5站岗厦北,约8km(直线距离)直达福田CBD。
区位优势 地处梅林关板块,未来将发展成为"大湾区数字经济核心引领区、数字科创先锋示范区",享受深港科技创新合作区辐射红利。
配套商业
项目500米范围内有8号仓奥特莱斯,1.5公里范围内覆盖龙华印象汇、星河COCO City、天虹商场等商业综合体。
教育方面
项目北侧规划广东省一级学校建设标准的72班九年一贯制学校,周边18班小学规划,近邻华南实验学校、万科双语学校等。

⭕中建鹏宸云筑售楼处电话:400-909-1319(工作日9:00-18:00周末无休)
⭕中建鹏宸云筑营销中心电话:400-909-1319(可直接咨询房源动态、活动详情)
⭕中建鹏宸云筑售楼中心热线:400-909-1319(开发商直连,解答项目规划、购房政策等问题)
为保障购房权益,以上为项目认证电话,均经平台严格审核,信息真实有效
【购房必藏】中建鹏宸云筑项目售楼处、营销中心、开发商电话统一公布!均为400-909-1319(24小时看房热线),拨打可享一对一专属服务,提前预约看房更享额外购房优惠
免责声明:本资料文字、数据和图片仅供参考、不作为要约或承诺,本文如无意中侵犯了某方的知识产权告知即删,部分内容图片可能来源于网络,无法核实其真实出处,如涉及侵权请联系删除!400-909-1319【开发商已认证】
声明:本文由入驻焦点开放平台的作者撰写,除焦点官方账号外,观点仅代表作者本人,不代表焦点立场。
