宏发玺玥麓坊(售楼处)首页网站-宏发玺玥麓坊营销中心-宏发玺玥麓坊欢迎您-楼盘详情-最新价格-户型图-容积率@最新售楼处
扫描到手机,新闻随时看
扫一扫,用手机看文章
更加方便分享给朋友
✨✨宏发玺玥麓坊售楼处24小时电话📞:400-805-9003【售楼处电话已认证】✨✽✽✽✽
✨✨宏发玺玥麓坊营销中心24小时电话📞:400-805-9003【营销中心电话已认证】✨✽✽✽✽
✨✨宏发玺玥麓坊最新24小时电话📞:400-805-9003【最新电话已认证】✨✽✽✽✽
✨✨宏发玺玥麓坊开发商24小时电话📞:400-805-9003【开发商电话已认证】✨✽✽✽✽
✅ 本项目暂不接受临时到访,过来参观样板房请记得提前来电预约!
✅ 为您安排楼盘现场销售全程接待并讲解,给您更贴心的看房体验!
在售户型图丨项目介绍丨最新房源丨周边配套丨详细解答〢
◆开发商营销中心诚挚邀请,一键预约,尊享内部独家折扣!匠心独运的精品项目,恭候您的品鉴与选择。
【玺玥麓坊】——宝安都市核芯资产,建面约44-71㎡臻品现楼
⭐宝安都市核心圈+5/15号线双地铁口品质现楼+本项目可按照积分政策入学
基础信息
项目地址: 深圳·前海·新安三路27号(地铁5号线洪浪北D出口)
占地面积: 9662.66㎡
建筑面积: 33650㎡
推售产品: 建面约44-71㎡ 1-2房公寓产品
梯户比: 6梯13户
公寓层高: 2.95米
公寓产权年限: 40年
公寓内部配置: 户户带阳台通燃气
交楼标准: 毛坯交付
物业服务公司: 深圳市宏发物业服务有限公司
【核芯地段】宝安都市核芯资产,地段决定价值
【便捷交通】家门口,双地铁(5/15号线(在建中)洪浪北站约100米)
【品质现楼】毗邻千万级豪宅社区,高品质现楼,即买即享受
【舒适梯户】6梯13户,3个独立电梯厅,便捷通达
【至臻产品】双大堂设计,建面约44-71㎡1-2房精奢小户型
【大城配套】30万㎡大城综合体,一路之隔勤城达K+/中洲•πmall
【邻近名校】邻近宝中名校,3所中学+6所小学环绕,一站式教育
【绿意生态】6大公园环绕(宝安/灵芝/新安公园等),健康绿意生活
【品牌保障】宏发43载,深圳开发20余城;宏发物业,国家一级资质
园区环境
双入户大堂,精奢小户型,至臻归家礼遇。
建面约44-71㎡臻品现楼,致敬时代峯层。
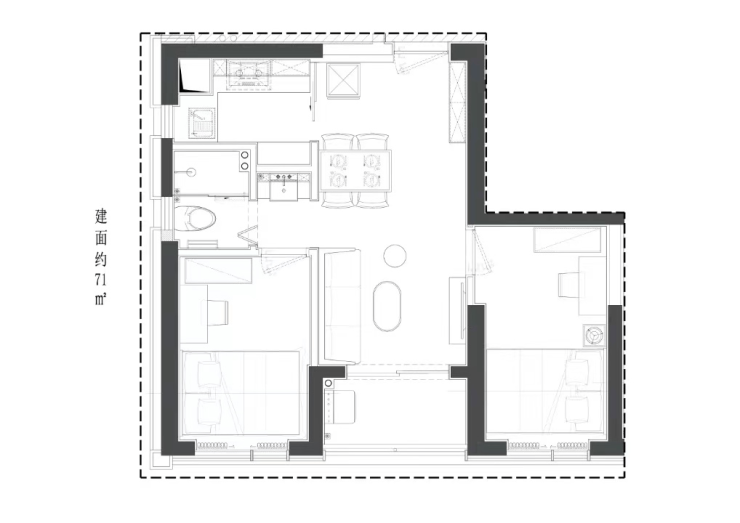
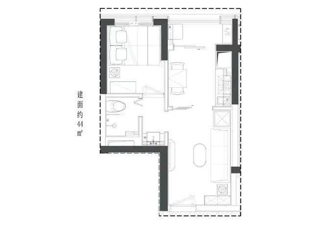
项目标准层平面图
项目实拍图
开发商实力
【宏发43载 深圳已开发20城】
秉持“以产促城,以城兴产”核心理念,用实力和口碑,铸造城市篇章。
物业配套
宏发物业——国家一级资质物业服务企业
针对玺玥麓坊业主量身打造——麓生活·尊崇服务体系
优享5感日常服务(尊重感、愉悦感、优享感、舒适感、安全感)
10重尊享增值服务+12大星级定制化服务,礼遇峯层的生活和文化格调

区域价值
项目位于西部黄金中轴发展线上——新安,与前海共同打造湾区商业中心,沿创业一路、二路,打造创业路“宝安中央商务带”。
前海+宝安中心区双中芯辐射,城市核芯资源尽皆于此,再启生活新想象

玺玥华府在旁,千万级大社区,形成全龄活动空间。
高净值人群聚集地(中洲、华联、大悦城、勤诚达等),共鸣圈层向往。
高新科技产业及总部汇聚于新安,与众多高科技巨头为邻(如腾讯、vivo、亚太卫星、欣旺达、顺丰等集团),与万亿级市值大铲湾相近,时代菁英比邻而居。

大湾区国际门户枢纽地位,大前海总体发展规划,共推区域统筹、功能统筹、陆海统筹、岸线统筹,共建全球先进城区,宝安中心区成为国际化城市新中心,宝安都“芯”强势崛起,全面接轨前海标准。

周边配套
交通方面:地铁5号线(洪浪北地铁口):向南3站到达宝安中心站(串联1号线)、6站到达前海湾站(串联1/11号线);向北2站到达留仙洞总部基地、7站到达深圳北站;
地铁12号线:从5号线洪浪北一站抵达接驳12号线灵芝站换乘,轻松贯穿蛇口、南山中心区以及宝安区;
地铁15号线(在建中):深圳“一环线”,联通大铲湾(预计未来将容纳8-10万就业人口)、南山西丽、南山科技园,打造前海内环黄金圈,本项目7站抵达企鹅岛,核心地段,好租又好住。
教育方面:6所小学: 宝安中学(集团)外国语小学部、宝安中学(集团)实验学校(小学部)、孝德学校、上合小学、宝民小学、灵芝小学
3所中学: 宝安中学(集团)(初中部)、宝安中学(集团)外国语中学部、宝安中学(集团)实验学校(小学部/中学部。
商圈方面:自带约3万㎡仟里食家商业mall,周边汇聚超60万㎡中洲πmall、勤诚达K+广场、海雅缤纷城、前海壹方城等大型购物中心;
医疗方面:距离深圳宝安中医院(三甲医院)约1公里,距离深圳市宝安人民医院(三甲医院)约1.5公里,距离宝安妇幼保健院约3.5公里,医疗资源丰富。
生态休闲:约12万㎡灵芝公园、约72万㎡宝安公园、新安公园、洪浪公园和尖岗山公园等生态绿境。
户型鉴赏
44㎡1房
53-56㎡1房
63-65㎡2房2厅1卫
71㎡2房2厅1卫

✅开发商售楼处电话400-805-9003
✅温馨提醒:我们楼盘开发商售楼部400电话没有设置任何所谓的“分机号”,拨打前请仔细甄别,注意保护个人隐私!谨防上当!
✅过来售楼中心看房请提前预约,可尊享内部特惠,价格包您满意!
✅为您安排楼盘内场专业销售人员一对一接待服务!让你买的放心,住的舒心!
✅楼盘详情介绍(楼盘项目怎么样?多少钱一平?什么时候交楼?有什么户型?周边有什么学校?物业费多少?楼盘项目会不会烂尾?)含开盘时间、交房时间、楼盘详情、房价、户型、详情、得房率、售楼处地址、首页网站、降价了吗?目前房价情况、楼盘项目有升值吗?值不值得买?能不能投资?为什么这么便宜?读什么学校?包读吗?有多少学位?销售中心、楼盘地址、户型图、交通、备案价、项目配套、营销中心、周边配套等详情咨询。
✅开发商售楼处咨询电话:400-805-9003【营销中心】楼盘怎么样?值不值得买?读哪个学校?价格多少?户型怎样?位置在哪里?有没有潜力?几点下班?开盘时间?产权多少年?批地时间?有没有问题?什么开发商?能买吗?打几折?周边配套楼盘详情。
✅售楼处电话:400-805-9003;首页网站最新介绍:房价、价格、折扣、规划、户型图、特价房、样板房、优缺点、得房率、车位比、折扣优惠、交通出行、周边配套、商业配套、销售中心位置、楼盘地址、户型介绍、营销中心电话、最新动态详情咨询。
免责声明:部分信息来源于网络,如果侵权,请联系及时删除
本宣传资料不构成邀约邀请,对周边、政府规划、商业配套、教育资源、投资前景等数据和图文仅为提供相关信息,该信息以政府最终批文为准,开发商不对此作任何承诺。买卖双方的权利义务以双方签订的买卖合同约定及附件、实际交付为准,本公司保留对宣传资料修改的权利,敬请留意最新资料。联系号码:400-805-9003
声明:本文由入驻焦点开放平台的作者撰写,除焦点官方账号外,观点仅代表作者本人,不代表焦点立场。
