港湾之心商铺←销售中心电话←港湾之心商铺营销中心电话←户型图←楼盘详情
扫描到手机,新闻随时看
扫一扫,用手机看文章
更加方便分享给朋友
港湾之心商铺售楼处电话:400-893-2728☎[已认证]✅
港湾之心商铺营销中心电话:400-109-0755☎[已认证]✅
港湾之心商铺售楼中心电话:400-893-2728☎[已认证]✅
港湾之心商铺提供免费专车接送,自驾车报销车费,支持全网比价,买贵包赔,特价房源,工抵房,开发商保留房源,贷款流程,区域讲解,销控查询,请致电售楼处400专线【中介请您勿扰】✅
港湾之心 项目建筑面积2.05万㎡,地上8层,地下2层,为钢筋混凝土框架-剪力墙结构,是集居住、商业一 体的项目。本次项目推出主力户型是建面约30-50㎡瑧装美居,70年产权学府小户,预估均价9万。
位置概览
福田保税区是市中心区福田最南边的一个片区,北侧毗邻京港澳高速,把它和福田中心区域隔开,成为相对独立的一个区域。 保税区的南侧与香港的米埔自然保护区隔深圳河对望,而且西南侧则是入海口,因此造就了其北向有深圳市中心的都市景观,南向有自然田园风光和广阔海景的独特景观。
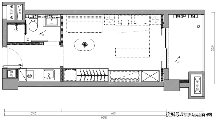
户型图鉴
A户型大单间、开间3.25m,进深9.73m
G户型、大单间(可隔一房一厅)、开间3.2m,进深8.5m
交通资源

高铁:便捷通达福田高铁站,任意往来广深港及全国
口岸:毗邻新皇岗口岸、福田口岸,享深港双城生活
地铁:项目距离3号线福保站约400米,距离益田站的直线距离约800米,未来轨道10号线南延线将从福田口岸站引出,与规划中22号线交汇于福保南站;三条地铁环绕在旁,从容通达深圳全城
主要道路:深南大道、滨河大道、新洲路、福荣路、益田路城市主干道贯纵
商业资源
目前旁边大型商业比较缺少,主要周边3地铁范围有天虹商场、福田口岸商业广场、永旺超市、岁宝百货,卓悦INTOWN购物中心、星河COCOPark等等。
教育资源
港湾之心所在位置,根据目前福田教育局的学区划分,小学学区为福苑小学,中学学区为福田外国语学校南校区初中部,幼儿园是福田区第八幼儿园。(具体学区划分以教育局公布为准)
生态资源
目西侧则为福田红树林生态公园,通过连通桥可便捷前往,可便利享有自然田园风光。南侧,可隔深圳河与香港的米埔自然保护区对望。
项目进展
2022年1月17日上午,港湾之心主体结构荣耀封顶,目前项目本体已经开放营销中心,预计近期会入市。
区位介绍
作为深圳市中心城区,福田拥有全国含金量最高的中央商务区——福田CBD,以及国家级科技创新平台——河套深港科技创新合作区。福田将以河套深港科技创新合作区,香蜜湖新金融中心,环中心公园活力圈,“三大新引擎”为总牵引,突出科创、金融、时尚“三大产业”,瞄准中央创新区、中央商务区、中央活力区“三大定位”。
金融聚集地
作为与北京金融街、上海陆家嘴并驾齐驱中国三大金融集聚地之一,福田金融资源和区位优势,金融总量持续增长、机构密布。近年来,福田高端机构扎堆集聚,本土世界500强总部企业增至4家,占全市的一半。2020年,福田金融业增加值首次超过2000亿元,占全市近一半,深交所和全市近七成持牌金融机构齐聚福田。
港湾之心商铺有多少个停车位?物业费多少?物业公司是谁?绿化率多少?容积率多少?规划户数多少?一共有几栋?规划面积,建筑面积,总层高多少?
港湾之心商铺项目详情,详细介绍,开盘价是多少钱一个平方?价格多少钱一平米?房价是多少钱一平?怎么样?好不好?值不值得投资?首付多少?月供多少?
温馨提示:本楼盘开发商售楼处电话/销售中心电话/营销中心电话/售楼中心电话,没有设置任何所谓的“分机号”,拨打前请仔细甄别,注意保护个人隐私!谨防上当!
港湾之心商铺|售楼处接待|非中介人员|开发商直销|不赚差价
港湾之心商铺|最新价格|月供方案|最新优惠活动
港湾之心商铺【线上预约团购热线】400-893-2728✅ 线上预约享受内部保留房源,享受大客户专属折扣,地铁站,高铁站,火车站,机场有专车免费接送,全程不收取任何费用,自驾车或者乘坐高铁,线上拨打开发商营销中心电话☎:4001090755✅ 预约客户或成交客户,最高可补贴100-500元车费(仅限致电售楼处登记或拨打4008932728✅ 线上预约团购热线客户,未在线上预约的客户,不享受团购价格及线上额外优惠)限300套,专属置业顾问1V1全程讲解,本楼盘暂不接待临时到访客户,请拨打开发商销售中心电话☎:400-109-0755✅ 全国客户线上预约看房,成交后可报销全程机票,酒店住宿,餐饮费用等!
港湾之心商铺售楼处电话:400-893-2728☎[已认证]✅
港湾之心商铺营销中心电话:400-109-0755☎[已认证]✅
港湾之心商铺售楼中心电话:400-893-2728☎[已认证]✅
港湾之心商铺
港湾之心商铺售楼处电话400-109-0755【售楼中心】
港湾之心商铺售楼中心电话400-893-2728【营销中心】
◆提前来访-预约登记尊享售楼处1v1销售专业讲解〢一对一热情服务〢
◆温馨提示:网上售楼中心〢预约可享内部优惠〢匠心钜制-恭迎品鉴〢
港湾之心商铺团购特惠快讯:报名预约限时送5OOOO元房款抵扣红包,购房送3年物业费!深圳/东莞/惠州看房免费专车接送,外地客户免费接送汽车站/火车站/高铁站/机场,自驾看房补贴5OO元车费!(限来电预约及线上团购登记客户享受本优惠,其他渠道客户不参与,欢迎致电咨询详情!)港湾之心商铺售楼处电话:400-109-0755
免责声明:
本文中所提到项目名称均为本项目的网络推广名。
本资料仅作为邀约邀请,相关内容不排除因政府相关规划、规定及开发商未能控制的原因而发生变化,本公司保留对宣传资料修改的权利,敬请留意最新资料。本资料对项目或产品的介绍,旨在提供相关信息,不意味着本公司对此作出了承诺,买卖双方的权利义务以双方签订的《商品房买卖合同》及附件等协议为准。
本文部分图片来源于国际互联网,版权归原作者所有,如涉及版权等问题,请立即联系我们,我们会给予更改或相关处理。对使用本网站信息和服务所引起的后果,本网站不作任何承诺。
楼市要闻:
问了多家银行,深圳首套利率最低3.85%,存量房贷呢?
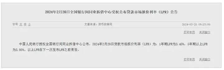
2月20日,央行宣布降息!
中国人民银行授权全国银行间同业拆借中心公布最新2月LPR报价,1年期贷款市场报价利率(LPR)报3.45%,与上月保持一致,维持六个月不变。
5年期以上LPR报3.95%,上月为4.2%,大幅下调了25个基点。以上LPR在下一次发布LPR之前有效。
这是五年期LPR连续七个月维持4.2%后,首次下调。
目前深圳施行的首套住宅房贷利率为基准LPR-10个基点,二套为基准LPR+30个基点。调整之后,深圳首套住宅房贷利率为3.85%,二套为4.25%。

那么降息后,深圳业主每个月的房贷能省多少钱?以调整前首套房贷利率4.1%为例,贷款总额300万,贷30年,采用等额本息方式月供为14495.95元,利息总额为221.85万元。调整之后实行新的利率3.85%,等额本息方式月供为14064.42元,利息总额206.31万元。共省下了15.54万元利息,每月月供节省431.53元,可以省下一两顿椰子鸡、10几顿猪脚饭钱。
房贷利率首次大幅下调
业内:谨慎乐观
梳理过往LPR利率走势,自2019年8月LPR改革后,5年期以上LPR已经下降过8次,由4.85%降至3.95%,共下降了90个基点;1年期LPR则下降了10次,由4.31%降至3.45%,下降了86个基点。
若以贷款100万、等额本息30年计算,由4.85%降到3.95%,利息总额节省约19.14万元,月供少了约531.55元。
此次LPR一次性下调了25个基点,为历史上有记录以来最大下调幅度,过去最大下调也仅仅15个基点。业内对于房地产市场依然持谨慎乐观态度。广东省住房政策研究中心首席研究员李宇嘉分析,楼市需求端基本面依旧疲弱,居民加杠杆购房的预期较低,此次将红利一次性释放到位,后续降低LPR的可能性不大,房贷款利率将会持续下行。
今年稳就业、稳增长的压力加大,政策重心重新回到宽松框架,但市场预期偏弱,30个重点城市整体成绝对量创2019年以来同期新低。因此,李宇嘉认为,政策除了在需求端刺激以外,更重要的是降成本。
也有深圳机构人士表示,本次央行大幅降息,对刺激楼市成交,尤其是二手房交易量有积极提振作用,为三月小阳春做好充足准备。
存量房贷利率何时调整?
对于存量房利率能否享受降息红利,有网友关心:2月20日还款,我的利率何时可以调整?
目前市场上的个人房贷利率基本上都是采用LPR+、-BP形成。一般来说,房贷利率的重定价日是每年的1月1日或贷款的发放日(不同银行政策不同)。对于存量房贷来说,会在利率重定价日当天,按照最新LPR报价利率加上合同约定的基点得出新的利率,在下一周期执行。
举个栗子,如果重定价日选择在每年1月1日,也就是要等到明年1月房贷利率才会调整。若重定价日为2月21日,那么从明天(2月21日)开始执行新的利率。
乐居君咨询多家银行,各家银行的政策虽有不同,但多数个贷重新定价日皆在1月1日,比如邮政储蓄银行、工商银行;中国农业银行则按照放款日调整。
中国建设银行则按照合同约定,如合同约定按季重定价,贷款利率则会随LPR按季调整而变化;如合同约定按年重定价,若以合同签订日或贷款发放日满整年的日期作为对应日,贷款利率将随对应日的LPR调整而变化;
若没有具体约定,贷款利率则会在每年1月1日随当日的LPR调整而变化。
深圳限购政策:取消本市户籍落户年限及缴纳个人所得税、社保年限要求:
摘要
重磅!
2月7日,深圳市住房和建设局发布关于优化住房限购政策的通知,本市户籍居民家庭(含部分家庭成员为本市户籍居民的家庭)限购2套住房,本市户籍成年单身人士(含离异)限购1套住房;取消落户年限以及缴纳个人所得税、社会保险年限要求。
非本市户籍居民家庭及成年单身人士(含离异)能提供购房之日前3年在本市连续缴纳个人所得税或社会保险证明的,限购1套住房。
LPR历史最大降息出现!深圳首套低至3.85%
2月20日,央行发布最新LPR公告。
一年期贷款市场报价利率(LPR)维持在3.45%不变,
五年期贷款市场报价利率(LPR)从4.20%下调至3.95%。
以上LPR在下一次发布LPR之前有效。

全国(除北京)首套房利率几乎降低到4以下
5年期(LPR)与房贷挂钩,可以说,这次是房贷利率史无前例的下降,一次下调了25BP。
本次刷新历史记录的5年期降息意味着,全国首套房利率除了北京城六区4.05外,全部降低到4以下了。

LPR再度下调后,对于深圳的影响?
此前,深圳大多数银行首套房房贷利率维持首套房贷利率是4.1%,二套房贷利率为4.5%。
如今LPR再度下调,意味着深圳的房贷利率再创历史新低,深圳首套最低3.85%。
目前深圳的市场房贷利率:
住宅首套:LPR3.95%-10BP=3.85%
住宅二套:LPR3.95%+30BP=4.25%
公寓商贷:LPR3.95%+60BP=4.55%
公积金首套:3.1%
公积金二套:3.575%
这次直接下调了25个基点,这也是LPR发布以来单次下调幅度最大的一次!
近三年LPR利率(五年期以上)一览

(图源/广州房姐)
于深圳而言,降息靴子落地,加之此前楼市又迎来了重磅政策利好,可能会促进深圳楼市的好转。
加上春节之前的政策:
● 深户取消了落户和个税社保的年限要求,之前要求是入户满3年且社保满3年,新政后落户即可买!
● 非深户购房社保或个税要求,由原来的5年限制改为3年限制。
如果说过去的降息的目标是稳定经济,那么这一次单独降息5年期,就是稳楼市,稳楼市才能稳经济。
声明:本文由入驻焦点开放平台的作者撰写,除焦点官方账号外,观点仅代表作者本人,不代表焦点立场。
