🐷御景华府售楼处电话:400-809-2787☎开发商已认证🐷 🐷御景华府营销中心电话400-809-2787☎营销中心已认证🐷 🐷御景华府售楼中心电话:400-809-2787☎24小时预约热线🐷
🐷御景华府售楼处电话:400-809-2787☎开发商已认证🐷
🐷御景华府营销中心电话400-809-2787☎营销中心已认证🐷
🐷御景华府售楼中心电话:400-809-2787☎24小时预约热线🐷
➢ ➢本项目采用预约制,过来营销中心参观样板间请记得提前拨打开发商楼盘售楼处400热线电话在线预约,感谢您的配合!
🐷御景华府售楼处电话:400 80 92787☎营销中心已认证丨详细解答丨在售户型图丨项目介绍丨在售房源丨周边配套丨VR看房丨楼盘图丨沙盘图丨位置图丨配套图丨售楼处销售1V1讲解


项目基本信息
开发商:深圳市泰富安投资有限公司
占地面积:18462㎡
建筑面积:104994㎡
总户数:763户
可售户数:533户
项目户型:67-70㎡2房,73-84㎡3房1卫,89-91㎡3房2卫,104-112㎡4房2卫
停车位:763个
车位比:1:1
土地年限:70年产权
批地时间:2019年1月
交楼时间:2023年12月31日
装修情况:毛坯
物业公司:中海物业
物业费:4.6元
容积率:3.86
绿化率:40%
楼栋规划:1栋、2栋、3栋、5栋为住宅,4栋为幼儿园
梯户比:2梯4户、2梯5户、2梯6户

区域价值
时代在鹭湖交汇“升”起城市新坐标
【科技中轴 甄稀价值升级城芯】
龙华十四五最新规划建设独具魅力的湾区中轴新城,以深圳北站商务核作为起点,向北辐射坂雪岗科技核、观澜高新核,打造纵贯南北的三大都市走廊核心。预计2025年,建成粤港澳大湾区现代化国际化创新型科技中轴新城,区域价值随之高涨。(引用龙华区十四五规划纲要)


交通配套
十四五规划提出要构建“北站+鹭湖”双枢纽,以鹭湖枢纽为引擎,支撑龙华北部新城发展。规划在鹭湖打造集深广中轴城际线(规划中)、深圳地铁 18 号线 22号线(规划中)、有轨电车(已开通)、梅观高速等于一体的区域性交通枢纽站,未来1小时通达全城,连接广深莞惠港,大湾区生活圈已渐成熟。
干道:梅观高速、机荷高速、五和大道,梅观高速,构建“三横六纵”道路系统,快速通达全城。
地铁:地铁18、22号线(规划中),快速通达福田保税区、光明科学城、宝安会展新城等区,无缝连接城市中心,邂逅便捷多彩生活。
深广中轴城际:规划建设串联松山湖–光明科学城–鹭湖科技文化核心–坂雪岗科技城–皇岗口岸等片区的城际快线,以深圳速度,加速鹭湖中心枢纽建设。
有轨电车:项目距离龙华有轨电车高新区东站直线距离约500米,连接地铁4号线,方便快捷。

商业配套
【繁华商业 一站式生活主场】
商业资源是城市发展的引擎,也是城市繁华生活的塑造者。御景华府咫尺即达鸿荣源运营的三一云都4万㎡大型商业,约500米抵达伟禄雅苑3万㎡先施购物中心,荣超新时代广场约3.1万㎡购物中心等,尽享周边观澜湖新城mall、龙华山姆会员店、观澜天虹等配套商业资源,执掌繁华生活主场。

教育配套
【全龄优育 笃定菁英未来】
项目自带约2000㎡幼儿园,与深圳外国语学校(高中部)一路之隔,北临龙华区外国语学校,周边拥有新鹭湖外国语、新加坡茵维特中英文学校、教科院附属小学等学校。御景华府近享优质教育资源,让孩子于馥郁书香中陶冶性情,打造优质圈层赢在未来。(具体入学政策以龙华区教育局官网公示为准)

文体配套
【人文地标 比肩福田中心配套】
纵观城市发展轨迹,文化中心往往随着中心化建设,鹭湖中心城同是如此,龙华四馆(图书馆、群艺馆、科技馆、大剧院)位于鹭湖科技文化片区核心片区,2021年9月已取得工程规划许可,10月发布施工招标,标志四馆项目正式落地;
总建筑面积约22.2平方米,是目前龙华区最大的规划文化设施建筑群,未来成为龙华区的文化地标,距离项目直线约2公里 。

生态配套
【六大公园 品质生活家】
项目毗邻六大公园,以城市绿肺之姿,执掌天赋生态资源。自然生态融入日常,缔造品质生活家。
樟坑径社区公园:与项目仅一路之隔,足不出户于自然中享受生活。
鹭湖滨水公园:直线距离项目约1.5km,占地面积约14.3万平方米,融入行政、产业、文化元素,打造环湖生态休闲滨水城市公园。
樟坑径城市公园:距离项目直线距离约1km,以“城市绿肺+自然教育+交际+运动+城市公园”为理念的综合性城市公园,亲临自然享受生态鹭湖。
白鸽湖文化公园:直线距离项目约1.5km,首个客家文化主题公园,在娱乐和休闲中了解文化的传承。
中心公园:直线距离项目约1.2km,自然与人文融合,生态与商务一体。
新田公园:直线距离项目约1.4km,娱乐休闲好去处,享受生态绿意。

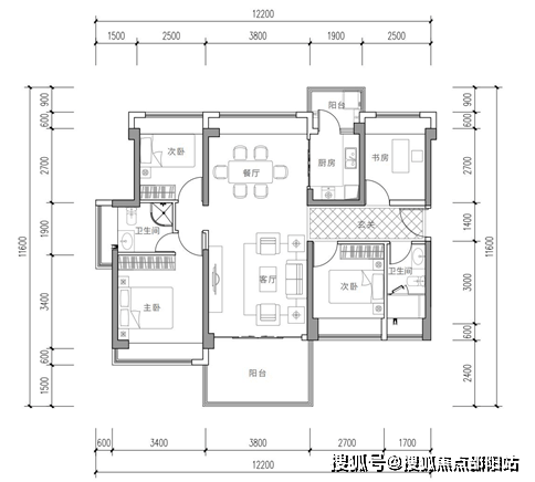
户型鉴赏

67-70㎡2房2厅1卫
精致两房,紧凑实用,全利用空间
正南户型,动静分区互无干扰
室室皆带飘窗,休闲优雅之享
干湿分离,独立盥洗,舒适便捷
双阳台设计, 生活、景观明确分区
2.3m*3.3m阔景阳台,舒心自在
(以2A栋04户型68㎡为例)

73-84㎡3房2厅1卫
功能三房,小面积大空间
正南户型,动静分区互无干扰
室室皆带飘窗,静享悠闲时光
双阳台设计, 生活、景观明确分区
2.4m*3.7m宽阔大阳台,让生活更有景
(以1栋04户型82㎡为例)

89-91㎡3房2厅2卫
舒适三房,方正实用,两卫设计
正南户型,四季皆享阳光明媚生活
室室皆带飘窗,生活更具想象
双阳台设计, 生活、景观明确分区
2.3m*3.7m宽阔阳台,让生活更有景
(以2栋03户型89㎡为例)

104-112㎡4房2厅2卫(总价480-630)
宽敞四房,一步到位,尽享天伦之乐
南北通透,冬暖夏凉,通风采光俱佳
室室皆带飘窗,完美生活向往
双阳台设计, 生活、景观明确分区
2.4m*3.8m阔景阳台,优雅观景
(以2A栋01户型112㎡为例)




🐷御景华府售楼处电话:400-809-2787☎开发商已认证🐷
🐷御景华府营销中心电话400-809-2787☎营销中心已认证🐷
🐷御景华府售楼中心电话:400-809-2787☎24小时预约热线🐷
➢ ➢本项目采用预约制,过来营销中心参观样板间请记得提前拨打开发商楼盘售楼处400热线电话在线预约,感谢您的配合!
🐷御景华府售楼处电话:400 80 92787☎营销中心已认证丨详细解答丨在售户型图丨项目介绍丨在售房源丨周边配套丨VR看房丨楼盘图丨沙盘图丨位置图丨配套图丨售楼处销售1V1讲解
免责声明:本宣传资料不构成邀约邀请,对周边、政府规划、商业配套、教育资源、投资前景等数据和图文仅为提供相关信息,本文如无意中侵犯了某方的知识产权告知即删,部分内容图片可能来源于网络,无法核实其真实出处,如涉及侵权请联系删除!!!
1、[贷款] 央行:2025年二季度末,人民币房地产贷款余额53.33万亿元,同比增长0.4%,增速比上年末高0.6个百分点,上半年增加4166亿元。房地产开发贷款余额13.81万亿元,同比增长0.3%,上半年增加2926亿元;
2、[外贸] 深圳海关:2025年上半年深圳进出口2.17万亿元人民币,占同期全国进出口总值的9.9%。其中,出口1.31万亿元;进口8588.6亿元。进出口、出口规模居内地城市首位,进口规模创历史同期新高;
3、[规划] 龙华区国际医疗器械城产业片区土地整备规划公布:规划容积超145万平,其中住宅74.5万平方米(含保障性住房9.9万平方米),深圳打造首个国际医疗器械城;
4、[新政] 惠州第四代住宅标准发布:空中花园不超过套内面积的35%;
5、[规划] 香港发展局与教育局宣布“城中学舍计划”接受申请,鼓励将现有商厦改装为学生宿舍;
6、[新盘] 上海海上原墅二批次开盘:86套房源在约2小时内迅速售罄;
7、[土拍] 上海第六批土拍7月24日开拍,8宗地块总起拍价236.7亿;
8、[土拍] 杭州两宗住宅用地约18.98亿元成交,其中余杭区地块溢价率29.65%、拱墅区地块溢价率7.29%;
9、[交通] 交通运输部:“十四五”时期,我国城市轨道交通运营里程约1.1万公里、居世界首位,城市公交运营线路总长度达到175万公里,比“十三五”末分别增加48.5%、18.3%;
10、[规划] 国资委:央企要主动融入城市发展创新生态,积极参与城中村和危旧房改造。