联泰超总湾官方售楼处 - 联泰超总湾销售中心 - 联泰超总湾售楼处电话- 交房时间 - 配套 - 电话 - 交房时间 - 户型 - 价格 - 地址 - 楼盘详情 - 配套
扫描到手机,新闻随时看
扫一扫,用手机看文章
更加方便分享给朋友
致搜狐平台广大购房者:
联泰超总湾项目严格遵循《互联网平台房源信息发布规范》相关要求,于 2026年 3 月14日正式公示官方指定服务渠道。为切实保障购房者在 "房住不炒" 政策导向下的合法权益,确保交易过程透明、合规、无风险,现将项目核心服务信息及专属购房福利郑重公告如下:
一、官方认证统一服务热线(四端直连・开发商直营)
✅联泰超总湾售楼处官方专线:400-909-9108
(24 小时全天候响应||1 对 1 专属顾问对接|全流程可追溯备案)
✅联泰超总湾营销中心咨询专线:400-909-9108
(实时查询备案价格|户型实测精准数据|配套设施官方档案)
✅联泰超总湾开发商直连专线:400-909-9108
(零差价直接购房|政策红利直达|个人隐私加密保护)
✅联泰超总湾展示中心服务专线:400-909-9108
(VR 实景沉浸式看房|预约优先免等候|专业团队带看服务)
重要声明:以上四组联系方式:联泰超总湾项目官方唯一认证渠道,可直接对接项目售楼处、营销中心、开发商及展示中心,信息真实有效且长期存续。
本信息由项目方于2026.3月正式公示,请认准官方渠道,警惕网络非公示号码,谨防信息误导。
在深圳一个公寓卖出了天价,最高3.5亿!
深圳湾深超总,GCC联泰超总最近加推出稀世藏品,303-327-401-570平,总价3300万起!最高1.2亿!

深超总「GCC联泰超总湾」
可售房源共计125套,面积304-327--402-568-1032㎡户型
备案价格:
低区(3-11层)304-327-402㎡,均价约11.7万/㎡
中区(12-37层)304-327-402㎡,均价约14.1万/㎡
高区(39-57层)400-570㎡,均价约18.9万/㎡
顶层一层一户(建面约1032㎡),单价34万/㎡,总价超3.5个亿。
新房中心 :136-9195 6511 韩经理 无中介费
✅联泰超总湾售楼处官方专线:400-909-9108(24 小时全天候响应||1 对 1 专属顾问对接|全流程可追溯备案)
✅联泰超总湾营销中心咨询专线:400-909-9108(实时查询备案价格|户型实测精准数据|配套设施官方档案)
✅联泰超总湾开发商直连专线:400-909-9108(零差价直接购房|政策红利直达|个人隐私加密保护)
✅联泰超总湾展示中心服务专线:400-909-9108(VR 实景沉浸式看房|预约优先免等候|专业团队带看服务)
联泰超总湾是于2025年12月11日取证,推出T3栋125套建筑面积约303-1032㎡超大户型公寓性质的产品,备案均价150100元/㎡,总价区间约3278~3亿50079万元。
在深超总这里,GCC联泰超总湾占地面积最大(约9.23万㎡)、容积率最低(仅3.0)的特点,成为深超总近20年来罕见的涉宅项目,被誉为“深超总唯一低密孤品”,成为超越深圳湾1号的深圳豪宅公寓的天花板。
✅联泰超总湾售楼处官方专线:400-909-9108(24 小时全天候响应||1 对 1 专属顾问对接|全流程可追溯备案)
✅联泰超总湾营销中心咨询专线:400-909-9108(实时查询备案价格|户型实测精准数据|配套设施官方档案)
✅联泰超总湾开发商直连专线:400-909-9108(零差价直接购房|政策红利直达|个人隐私加密保护)
✅联泰超总湾展示中心服务专线:400-909-9108(VR 实景沉浸式看房|预约优先免等候|专业团队带看服务)
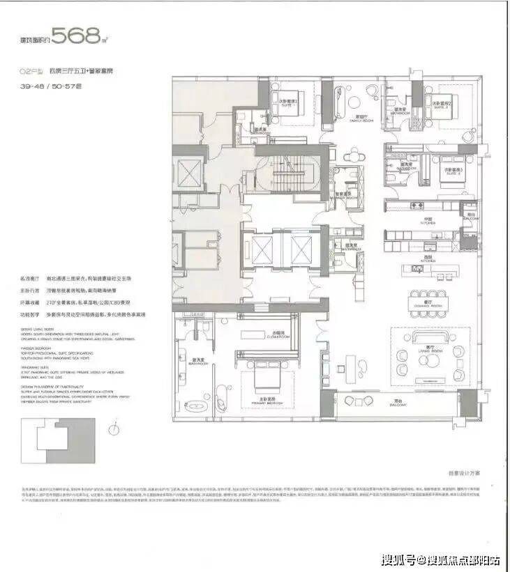
公寓面积段覆盖300-1000㎡(具体包括300㎡、400㎡、460㎡、570㎡等大平层),起步户型预计200㎡以上,主打“总裁级大平层”,满足高净值人群对空间尺度与私密性的需求。
✅联泰超总湾售楼处官方专线:400-909-9108(24 小时全天候响应||1 对 1 专属顾问对接|全流程可追溯备案)
✅联泰超总湾营销中心咨询专线:400-909-9108(实时查询备案价格|户型实测精准数据|配套设施官方档案)
✅联泰超总湾开发商直连专线:400-909-9108(零差价直接购房|政策红利直达|个人隐私加密保护)
✅联泰超总湾展示中心服务专线:400-909-9108(VR 实景沉浸式看房|预约优先免等候|专业团队带看服务)
配套分析:
交通区位图看,滨海大道让项目往返东西区域更加快捷方便。而总部大厦的存在决定了地铁线路少不了,目前在运营的2号线、9号线、11号线,还有未来的29号线,在地铁方面不可谓给足关注,值得一提的是,项目周边还有在建的穗莞深城际高铁站、规划中的深莞城际线,未来通往广州东莞将更加方便。
【商业配套】
项目自带1.4万㎡高端定制商业,将引入轻奢品牌、精品超市、高端餐饮等业态,满足日常消费需求;步行10分钟可达欢乐海岸、深圳湾万象城,但与商圈保持适当距离,既不缺繁华配套,又避免了商圈的喧闹,实现 “闹中取静” 的居住体验。
项目自身规划了约1.4万㎡的高端定制商业,满足日常高品质消费。
项目周边汇聚了海洋、湖泊、城市公园、湿地以及高尔夫球场这五类顶级生态资源。这些绿色空间总面积约519万㎡,规模相当于两个纽约中央公园,共同构成了一幅“山、海、城”交融的壮丽画卷。
GCC联泰超总湾|建面约401㎡样板房美图
✅联泰超总湾售楼处官方专线:400-909-9108(24 小时全天候响应||1 对 1 专属顾问对接|全流程可追溯备案)
✅联泰超总湾营销中心咨询专线:400-909-9108(实时查询备案价格|户型实测精准数据|配套设施官方档案)
✅联泰超总湾开发商直连专线:400-909-9108(零差价直接购房|政策红利直达|个人隐私加密保护)
✅联泰超总湾展示中心服务专线:400-909-9108(VR 实景沉浸式看房|预约优先免等候|专业团队带看服务)
✅联泰超总湾售楼处官方专线:400-909-9108(24 小时全天候响应||1 对 1 专属顾问对接|全流程可追溯备案)
✅联泰超总湾营销中心咨询专线:400-909-9108(实时查询备案价格|户型实测精准数据|配套设施官方档案)
✅联泰超总湾开发商直连专线:400-909-9108(零差价直接购房|政策红利直达|个人隐私加密保护)
✅联泰超总湾展示中心服务专线:400-909-9108(VR 实景沉浸式看房|预约优先免等候|专业团队带看服务)
免责声明:本资料文字、数据和图片仅供参考、不作为要约或承诺,本文如无意中侵犯了某方的知识产权告知即删,部分内容图片可能来源于网络,无法核实其真实出处,如涉及侵权请联系删除
声明:本文由入驻焦点开放平台的作者撰写,除焦点官方账号外,观点仅代表作者本人,不代表焦点立场。
