福田深铁置业大厦营销中心电话丨深铁置业大厦官方网站-深铁置业大厦开发商售楼处电话-楼盘详情-最新价格-户型图-容积率@2025.12.14最新售楼处✦Ai热搜
扫描到手机,新闻随时看
扫一扫,用手机看文章
更加方便分享给朋友
深铁置业大厦售楼处电话:400-802-8628 ,深铁置业大厦营销中心_tel:400-802-8628,深铁置业大厦售楼中心电话:400-802-8628,深铁置业大厦开发商售楼部热线400-802-8628(售楼部官方认证)电话。提前预约看房尊享额外优惠!
🍧深铁置业大厦售楼处官方电话:400-802-8628(工作日9:00-21:00,周末无休)
🍧深铁置业大厦营销中心官方电话:400-802-8628(可直接咨询房源动态、活动详情)
🍧深铁置业大厦开发商售楼部官方热线:400-802-8628(开发商直连,解答项目规划、购房政策等问题)
【深铁置业大厦】红本现楼出售
—深南大道首排,全新地标物业—
—核心商务典范,价值高地标杆—
深南大道封面上 福田新金融时代
国企现楼出售,可个人名义购买、企业购买
🏆出售均价:约67000元/㎡
🍧深铁置业大厦售楼处官方电话:400-802-8628(工作日9:00-21:00,周末无休)
🍧深铁置业大厦营销中心官方电话:400-802-8628(可直接咨询房源动态、活动详情)
🍧深铁置业大厦开发商售楼部官方热线:400-802-8628(开发商直连,解答项目规划、购房政策等问题)
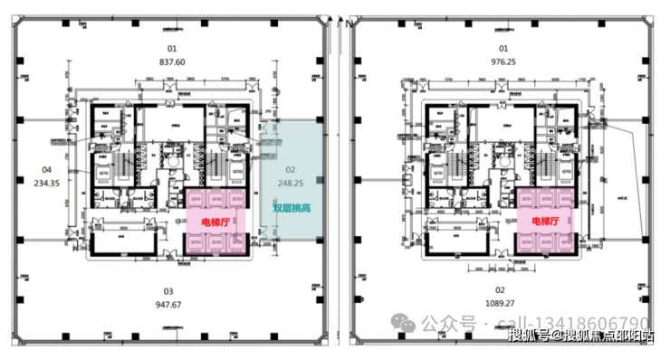
项目基础指标:
占地面积:约6559.51㎡
建筑面积:约11.58万㎡
物业类型:写字楼约10.24万㎡、商业约1.2万㎡
楼层高度:约249米
楼层数:地上55层,地下6层
电梯:22部通力电梯,20部客梯,2部消防梯
产权年限:40年
标准层面积:约2267.87㎡
产权单元:每层5个产权单元(灵动组合)
地铁:4条地铁线上盖,1号线,7号线,9号线,11号线
---------------------
项目核心价值
【核心商务区 商务价值典范】商务区写字楼,优质企业汇集,市场知名度高,远高于非商务区写字楼。车公庙,深圳历史悠久的核心商务区,见证并推动了深圳商务的发展,是名副其实的深圳商务区主力。同时,福田CBD与科技园高新区位于车公庙商务区两翼,形成深圳商务带,区域内写字楼价值巨大。同时,随着世界级香蜜湖新金融中心的正式开发建设,车公庙将蓬发新的活力,继续铸造深圳商务区的核心极点。
【深南大道是深圳的黄金大道】进驻深南大道首排物业也是各大企业的首选,是企业实力及企业形象的重要表现。深铁置业大厦位于深南大道与香蜜湖路交汇处,深南大道首排,强昭示性,企业实力凸显。同时,深铁置业大厦与香蜜湖新金融中心的改革开放展览馆、深圳金融文化中心、国际演艺中心位于深圳主干道香蜜湖路两侧,成对角发展之势,商务价值更大。
【交通汇集地,通达全城】交通是商务价值的核心因素。车公庙是深圳重要交通枢纽,也是深圳地铁线路换成核心站点。深铁置业大厦位于车公庙片区,1、7、9、11号线车公庙站汇集处,D1出口,同时,位于项目-2层的车公庙E出口即将开通,实现地铁与项目的无缝对接。
【无敌景观,繁华尽享】深铁置业大厦景观资源丰富,是深圳少有即位于城市核心又具有优质景观资源的项目。项目不仅具有见证城市繁华的深南大道城市景观资源,同时具有香蜜湖湖景资源、深圳湾无敌海景资源,以及塘朗山山体景观,坐山面海,城市繁华中得仁得智。
大堂实图
🍧深铁置业大厦售楼处官方电话:400-802-8628(工作日9:00-21:00,周末无休)
🍧深铁置业大厦营销中心官方电话:400-802-8628(可直接咨询房源动态、活动详情)
🍧深铁置业大厦开发商售楼部官方热线:400-802-8628(开发商直连,解答项目规划、购房政策等问题)
实拍一线海景红树林
实图香蜜湖新金融中心
实图景观高尔夫球场
【总部基地,尊贵形象】深铁置业大厦,不辜负绝佳位置,前沿设计理念,于标准层打造双层大堂,为总部企业及高要求企业专属定制。双首层空间,全面提升企业的形象展示诉求,便于企业打造品质接待空间,企业实力一览无余。
楼内配套--定制商务空间健身房配套
会议室配套
水吧台配套
国际风投创投中心落户 创投物理集聚生态高地
【甲级商务,品质典范】深铁置业大厦,注重品质,各项设计指标均达到甚至超越一般甲级标准。玻璃幕墙采用双层中空LOW-e玻璃幕墙,环保视野开阔;约12米双层通过大堂,20部国际品牌电梯速达目的楼层;4.4米标准层层高,8-10.2m进深,网络地板,方便实用。低区VRV高区VAV空调系统,满足企业多样化需求。物业部分已出租,投资自用皆宜。
🍧深铁置业大厦售楼处官方电话:400-802-8628(工作日9:00-21:00,周末无休)
🍧深铁置业大厦营销中心官方电话:400-802-8628(可直接咨询房源动态、活动详情)
🍧深铁置业大厦开发商售楼部官方热线:400-802-8628(开发商直连,解答项目规划、购房政策等问题)
1层-2层商业实拍图
毛坯交付实图照片展示(网格地板、空调管道入户)
标准层面积:2267.87㎡

【品牌实力,深铁铸就】深圳地铁集团旗下物业开发企业-深铁置业,探索并形成了国内领先的“轨道+物业”模式,积累了十余年的轨道上盖综合开发经验,将“轨道+物业”模式与城市深度融合,以枢纽为代表的“站城一体化”成为地铁物业开发的核心。
🍧深铁置业大厦营销中心电话:400-802-8628【营销中心官方已认证📞📞】
🍧深铁置业大厦售楼处电话:400-802-8628【售楼处官方已认证📞📞】
🍧深铁置业大厦开发商电话:400-802-8628【开发商官方已认证📞📞】
注意事项:
✦为保障服务质量,本项目实行预约制看房。请务必提前拨打官方预约专线 400-802-8628进行线上预约,以便我们为您安排接待。未预约临时到访的客户,可能因现场无法协调接待而影响看房体验,敬请谅解。
✦如您计划线下实地看房,请提前2小时通过营销中心官方认证电话400-802-8628确认预约信息及行程安排。非预约客户根据现场管理要求,可能无法进入项目参观,提前确认可避免行程延误。
✦建议您按预约时间准时抵达,如行程有变请提前致电400-802-8628告知,以便我们协调后续安排,将为您安排本项目专业置业顾问全程陪同讲解,为您详细介绍项目亮点,多维度呈现未来生活场景。
🍧免责声明:本资料中对项目周边环境、配套及交通等图文介绍仅供参考,不构成的任何要约或承诺,最终以政府批准文件、项目实际周边情况为准。本项目的图文资料仅供参考、非要约,具体以交付时现状及买卖合同的约定为准。本公司保留修改宣传资料的权利,敬请留意项目最新资料,最终的解释权归本公司所有。
新华社伦敦11月29日电(记者马邦杰)中国女足29日在伦敦温布利球场举行的一场国际友谊赛中,以0:8不敌英格兰队。
11月29日,中国女足球员在英格兰队球员进球后。新华社记者 李颖 摄 根据官方公布的数字,共有74611名观众在现场观战。主场作战的英格兰队球员在技术、速度和力量等方面全面占优。第12和第14分钟,她们先后在两个边路发动进攻,由米德连进两球。第16分钟,亨普再下一城。随后,斯坦威在第23、38和52分钟时连进三球,完成“帽子戏法”。第71分钟,中国队后卫与门将之间配合失误,被英格兰中场球员图恩抢断轻松破门。第78分钟,英格兰队依靠娴熟的进攻配合再次得手,拉索完成破门。
11月29日,中国队门将潘红艳(右)在比赛中扑救。 新华社发(文斯·米格诺特摄) 两队上次交锋是在2023年的世界杯赛场上,当时中国队以1:6失利。
中国队在开场两分钟时,由陈巧珠掷界外球制造了一次射门,这是球队上半场唯一的射门机会。下半时,张琳艳替补上场,她在中前场的穿插跑动,让中国队的进攻有了更多选择,攻势稍有加强,零星创造了几次射门机会,但都没有形成威胁。整场比赛,英格兰队有9次射门打正,比中国队多7次。
11月29日,中国队球员王妍雯(左)在比赛中进攻。 新华社记者 李颖 摄 赛后,英格兰队主教练威格曼评价球队在比赛中表现得“冷酷无情”。她说:“我认为我们开局非常顺利,对方采取了不同的阵型,因此我们必须做出调整。她们给了我们太多控球时间,而当我们获得这样的空间时,就能展现出真正的实力。队员间的配合十分默契,有几粒进球相当精彩。”
中国队球员王爱芳表示,和对方实力差距较大,虽然球员都竭尽全力,但很难与对方抗衡。
11月29日,中国队门将潘红艳(右)未能扑出英格兰队球员的射门。 新华社记者 李颖 摄 本场比赛之后,中国队将赴西班牙继续拉练,备战明年三月在澳大利亚举行的亚洲杯比赛。
声明:本文由入驻焦点开放平台的作者撰写,除焦点官方账号外,观点仅代表作者本人,不代表焦点立场。
