广州合生漫云广州_售楼处电话|合生漫云售楼处_24小时电话|售楼中心|位置|价格
扫描到手机,新闻随时看
扫一扫,用手机看文章
更加方便分享给朋友
广州合生漫云广州
开发商24小时售楼处电话:400 0666 032拨分机号1919
在售户型图丨项目介绍丨最新特价房源丨周边配套丨开发商线上售楼电话
广州·合生漫云广州售楼处电话:400 0666 032转接分机号1919 售楼中心,楼盘项目全面介绍,本电话为开发商提供线上售楼电话,楼盘最低价格和最新优惠折扣,包含楼盘简介、售楼电话、小区户型图片、营销中心位置、区位优势、交通、周边商业配套、户型图等楼盘详情,广州·合生漫云广州项目位于广州市天河区悦景路(天河东奥体板块),紧邻帝景山庄,与合景臻颐府一路之隔。

繁华CBD之下,合生缦云超越时代的创新与洞察,在金融城寸土寸金的土壤之上,独享自然静谧的天赋之地。
同时,天河金融城位于黄金中轴线,规划着有全新的CBD国际生态区。
汇聚公园、商业、教育、医疗等多维资源,繁华与宁静,城市与自然,合生缦云在不可复制的都会中心,迭新国际生活美学样本。
项目总建筑规模约37.7万㎡,其中地上建筑规模约25.1万㎡,地下建筑规模约万12.6㎡,容积率3.109,建筑限高54m。
基地位于广州市天河区,临近广州城市中心区,地处半小时生活圈。
临近广州城市中心区,距离黄村地铁站2.5KM,步行大约30分钟。
同时,距离在建世界大观园地铁站1KM,步行大约十分钟。
社区内自带全线教育配套(幼儿园、小学、初中),周边还有五大省级——清华附中、执信中学、天河外国语学校、广州中学、广州岭南中学(暂定名)。
生态景观上,项目位处天河国际生态区,约71万㎡城市林海景观围绕,紧邻约2万㎡月亮湖。
一【项目介绍】—— 缦系首个半山作品
合生·缦系广州首作,落址天河国际生态区,距离天河CBD、金融城CBD黄金6公里,依托约71万㎡原生半山生态资源,汇集全球顶级设计大师,以超前的生活理念,创新高端生活方式,更新广州。

图:项目总平面及户型分布
缦云广州,在天河半山种房子,打造首个半山折叠园林。把山林、湖畔、园林,统统搬进家里,深入每一寸空间,尊重每一处自然与生命力。

再来看看合生缦云周边配套如何?
交通方面,缦云广州距离最近的地铁站是21号线的大观南路站,但直线距离超过1 公里,如果是依赖地铁出勤的业主,要经公交车接驳,耗时耗力,因此出勤只能选择自驾是最佳方案。
当然了,也有人说住豪宅的人基本都是开车了,有没有地铁不重要。但是,也有部分业主觉得离地铁远确实不够方便。

至于最受关注的悦景路工程规划筹谋了许久,在近期终于迎来好消息。项目规划悦景路总长度约1935m,西起科韵路,东至车陂北延线,道路等级为城市主干 道,设计速度60km/h,标准段双向六车道。

合生·缦系开创中国首个世界级生活方式品牌 , 遵循严苛的“择址观”,甄选世界一线城市核心地段,独享城市珍稀资源与自然禀赋。科技金融产业的腾飞,带动了土地供给侧的改善升级,天河国际生态区调规后也将成为大批新贵精英的必然选择,在未来几年内不断拉升预期。
商业配套
天河路商圈,将打造国际消费中心城市示范区,建设国内商旅文体融合发展第一商圈。大力推动体育东—天河路人行地道工程,加快开展五山路品质化提升、广园路—五山路交通节点改造,完善商圈交通设施和交通组织,整体提升商圈环境品质。
金融城建筑面积约41万m2的综合体商业部分,汇金天地Ⅱ期,享地铁、城轨交通、城市干道交通便利。为结合体验式业态,并提升项目更强的吸引力和聚客力,汇金天地Ⅱ期将以全天候无国界餐饮为主题,贯穿健身中心、超市、影院、时尚品牌等整体业态,打造潮人时尚美食聚集地 。
环境方面,整个项目建在一个小山包上,周边就是天河智谷板块,也有山体公园,南面是往日的世界大观游乐园,这里最不缺的就是树,现场航拍也能看到周边茂密的森林。

缦云广州产品面积段为145㎡三房两卫起步,面积低于主流顶豪项目面积(与其一路之隔的合景臻颐府面积段180-320㎡)。
项目推145㎡、174㎡户型,1-3#、20-22#六栋,16F小高层产品,2梯2户,边套174㎡,中间套145㎡,后期将推出250㎡大户型产品。
145产品为三房两厅两卫产品,餐厨一体化设计, 7米宽厅可切换各种生活场景,畅享宽幕般景观界面。

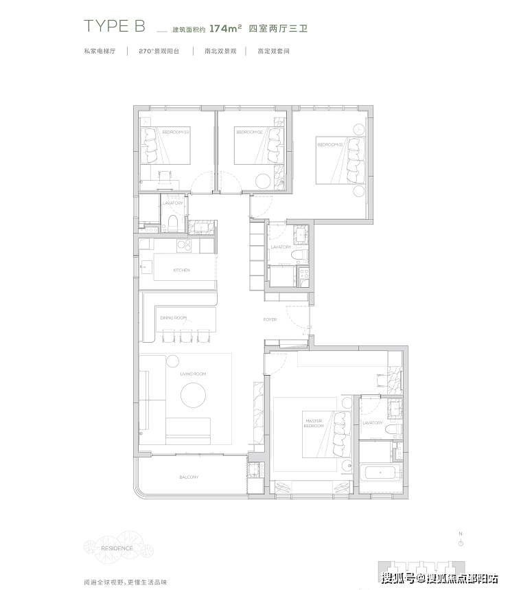
174产品为四房两厅三卫产品,打造了端户边厅布局,形成LDK一体化。无界的室内空间畅游体验,在平淡的日常里体验着生活的华章。

190产品为五房两厅三卫产品,充满了对云端人群生活的独特见解,南向双主卧,中西厨布局,打造纵向超长LDK一体化空间,产品所体现的不只是居住产品,更是特属客群所拥有的生活方式。
264为五房两厅四卫产品,更细腻的产品设计,超奢华四件套南向主卧,标准南向次主卧, 6.6米巨型方厅,纵向超长LDK一体化空间,专属家政保姆空间,超大容量收纳空间,令居住的尊贵从每处品质细节里流露而出,创造独一无二的奢享体验。
开发商24小时售楼处电话:400 0666 032拨通转分机号1919
在售户型图丨项目介绍丨最新特价房源丨周边配套丨开发商线上售楼电话
广州·合生漫云广州售楼处电话:400 0666 032拨通转分机号1919 售楼中心,楼盘项目全面介绍,本电话为开发商提供线上售楼电话,楼盘最低价格和最新优惠折扣,包含楼盘简介、售楼电话、小区户型图片、营销中心位置、区位优势、交通、周边商业配套、户型图等楼盘详情,免责声明:本文如无意中侵犯了某方的知识产权,告之即删
声明:本文由入驻焦点开放平台的作者撰写,除焦点官方账号外,观点仅代表作者本人,不代表焦点立场。
