瀚熙典居(售楼处)首页网站-瀚熙典居营销中心-2025-瀚熙典居欢迎您-楼盘详情-最新价格-户型图-容积率@售楼处中心
扫描到手机,新闻随时看
扫一扫,用手机看文章
更加方便分享给朋友

据壹地产一线情报,该项目未售先火程度堪称核爆级!展示中心开放首日,就以雷霆之势席卷市场,狂揽市场流量!
在流量为王的时代,一个楼盘的人气无疑是其自身实力的象征!作为粤海街道核心区十年一遇的矜贵恒产,翰熙典居自展示中心开放即开启“流量收割机”模式,人气值如火箭升空,直指2025年深圳楼市人气之巅,大有成为2025现象级红盘之势。
为何翰熙典居一亮相,市场关注度就爆棚?
前几天,壹地产在南山粤海的翰熙典居展示中心遇到几批看房客户,购房意向都很强烈,交谈之下发现他们主要分为两类:
一类是,多年前就买了科技园板块的房子,如今想要寻求品质升级的改善型买家;
一类是,长期租住在科技园周边,深谙区域价值,现如今想买房子自住的大厂精英。
其中,一大厂高管的购房心路历程颇具代表性,他坦言,看翰熙典居之前已悉数考察过科技园板块的二手房&其他区域板块核心的新盘,但总觉得差点意思。
后来有朋友向他推荐翰熙典居,觉得还不错就到现场了解。看过项目后当即决定,就是翰熙典居了。
问其缘由,说了三点:
1、地段的不可复制性,未来走路就可通勤,生活便捷与舒适兼得;
2、产品力有硬核支撑,项目交付品质,产品竞争力都不错;
3、新规后产品,空间设计亮眼,买房就一步到位了!
诚然,购房之事,相较于“买到”,更重要的是“买对”。在纷繁复杂的市场中,唯有如翰熙典居这般,集地段、产品、设计于一身的臻品,方能成为购房者心中的“最优解”。
01.
南山粤海科技园新地标
2大维度重塑城市核心社区生态
对于买房人来说,选房时首看的,必然是项目地段、居住舒适度,粤海街道的翰熙典居这两点的优势非常明显。
项目坐落于深圳核心板块-粤海街道C位,周边配套齐全叠加自身综合体大城buff,居住氛围MAX!
维度一:进阶科创塔尖,坐拥城市高价值+都市繁华。
南山粤海街道的区位,对于买房人而言,极具吸引力。究其原因,是地段上的圈层价值以及区域价值韧性。
精英人群普遍认为,圈子从某种程度来看比房子更重要,而决定圈子的一定是地段。当下国家重点发展科创,中国科创核心、深圳发展重要引擎——南山粤海,是未来城市发展进程中的价值高地,毋庸置疑也将汇聚科创领域的精英人士。
占据城市核心板块,和优质的人才为邻,是买房人青睐翰熙典居的主要原因之一。
圈层之上,还有地段价值。位于世界粤海核心板块的翰熙典居,区域价值支撑体系极具韧性!
作为粤港澳大湾区创新策源地,南山粤海已形成50余条高精尖科创产业链集群,构建起全球罕见的科创生态体系。在这片创新沃土上,粤海街道集聚了超1600家国家级高新技术企业,孕育出112家上市企业,2024年创造产值近4500亿元,以不足南山十分之一的土地面积,擎起全区47%的经济命脉。腾讯、百度等互联网巨头在此筑就的科技森林,具备比肩硅谷的创新势能。
置身城市进化浪潮,粤海正雄踞“总部经济轴”与“科技创新轴”的黄金交汇点,独揽“战略增长极+深湾CBD核心+稀缺生态资源”三重价值支点。这种多维赋能的超级复合优势,注定其为驱动深圳跨越式发展的核心引擎,将铸就不可复制的城市价值制高点。这些种种,既是区域价值韧性的体现,也是翰熙典居未来居住价值的支撑点。
划重点:核心板块往往拥有全维配套,这些也将直接提升翰熙典居的生活体验,赋予其「树立人居标杆」的底气。
翰熙典居举步可达体量约30万㎡的海岸城商圈、15分钟车程可达深圳顶奢商业-深圳湾万象城、深圳潮流先锋-万象天地,还有周边的后海汇、来福士广场等,合计约百万都市尖峰商圈,标榜的是都市核心璀璨华丽的生活图景。

在这里,或于海岸城漫步滨海商业,在空中廊桥中欣赏都市美景;或穿梭于万象天地的商业格子中,了解潮流一线动态,轻松打卡华南首家HAUS NOWHERE ;或到深圳湾万象城,逛逛香奈儿、爱马仕、LV等顶奢品牌店沉浸式购物。
周边还有山湖园海湾五重复合生态滋养,叠加深圳湾体育中心、保利剧院、南山书城、南山文体中心等9大城市级人文峯层配套,板块生态、人文氛围浓度直接拉满。
此外,翰熙典居还在南二外学府一小、南二外学府中学学区范围内,项目红线外规划有一所30班小学,板块教育氛围浓厚。(具体学区划分,以入学当年教育局公布信息为准)

除了能坐拥周边齐全配套,翰熙典居还能高效出行,轻松触达城市多维繁华:9号线/15号线(在建)双地铁上盖,2站高新园、3站深超总、4站大前海,未来还可通过地铁15号线(在建)直达前海企鹅岛;周边还有四横三纵路网,双城际铁路及海空等多维立体交通,可速达深圳各区,或联通港澳、通往全球。
可以说,买入翰熙典居,就能享受到粤海中心便捷高效配套及舒适居住氛围。
而“核心板块+丰富的生活配套”,给项目人居便捷性加分同时,也将进一步推动项目居住价值的提升。而这,自然也是吸引买房人的重要“附加值”之一。
维度二:都市核心,逾50万㎡TOD综合体项目含金量更高。
比起普通的住宅项目,买房人普遍更喜欢「含金量」更高的综合体项目。
放眼全球,坐落于科技公司聚集片区的综合体,往往拥有全维生活配套,同时还是片区房价标杆和居住价值标杆,如:
英国伦敦The Arc,位于伦敦科技城核心区的商住综合体项目,步行就可以到老街地铁站,周边聚集着谷歌、亚马逊、Meta等科技巨头,车程30分钟内可达伦敦大学学院(UCL)等多所高校,多年来因地处核心+科技精英汇聚+综合体属性突出,净租金收益率在4.5-5%之间,高于伦敦2.5-3%的平均租金收益率。(净租金收益参考2024年市场租金及一居室售价进行测算,仅供参考)
日本大阪难波城公园,是位于大阪商业中心区,集购物、餐饮娱乐等多元配套于一体的城市综合体,临近地铁难波站,周边聚集着松下、夏普等科技企业,以“空中花园”设计成为关西地区高端居住标杆。

翰熙典居位于南山粤海核心,是一个总体量逾50万㎡,集住宅、办公、约5.7万㎡未来潮流街区(以运营房最终业态及功能为准)、约1.9万㎡精奢酒店等多元业态为一体的TOD+综合体大城项目,地铁9/15号线(在建)深大南站上盖,紧邻深大,背靠腾讯滨海大厦,周边联想、创维、TCL等科技巨头大厦环伺。
且有别于常规的综合体项目“推倒重建”,翰熙典居在桂庙新村原址之上,规划保留和融合了桂庙的文化元素,以宗祠广场为源点,让桂庙的 “贵脉” 与 “烟火气” 融入项目的规划并得以传承,让翰熙典居在百年桂脉之上重塑片区生态,进而屹立于时代之巅,或成为片区人居新标杆。

总而言之,翰熙典居作为一个位于深圳核心科创板块的综合体项目,拥有着交通、商业、教育、医疗、生态等多维生活配套、承袭百年桂脉历史人文气息,当之无愧的高端科创人居范本。
02.
即将引爆全城
翰熙典居产品力Max!
地段决定了项目的价值下限,而品质则决定着一个项目的上限。
要知道,当下深圳新房市场,早已进入技术流时代!
一个项目在“地段好”的基础上,还需加上超强产品力加持,才能真正脱颖而出。
对于众多意向购房者而言,翰熙典居的地段是第一优势,也是率先吸引到他们的点,而让他们准备出手拿下的“驱动力”,是项目那“拉满”的「品质感」。
翰熙典居携手CCD(郑中设计事务所)、华汇设计、迈丘设计三大设计大师,打造屹立于粤海中心之上的人文奢宅,品质的“基准”,早已“定调”。
静雅奢华风格立面,叠加幕墙集成系统,定调豪宅风貌。
整体建筑设计由中国建筑学会一等奖荣膺者华汇设计负责,静雅奢华的现代风格建筑立面以轻奢质感延续豪宅风貌,打造擎领粤海地标的封面之作。
住宅塔楼以公建化设计语言重构高端居住美学基因,以幕墙集成系统为笔触,勾勒出简约而不失奢华且可历久弥新的当代建筑肌理,与腾讯滨海大厦等地标群形成视觉对话,构建起现代美学符号矩阵。
系统门窗大面积采用双银LOW-E中空夹胶、三层钢化超白玻璃(深灰色),以高透光率重塑光影哲学,在降噪节能的科技内核外,包裹着永不褪色的艺术锋芒,让建筑立面成为镌刻城市精神的立体画布,为片区注入兼具人文温度与未来质感的建筑美学新范式。
新东方都市风格园林,园林景观叠加人文符号重构社区空间价值。
为打造舒适的社区环境,翰熙典居采用整体围合式布局,楼间距更大,可更大程度保证每栋的通风采光。

体量约1万余㎡的园林设计,由国际景观设计单位迈丘设计担纲,以五重景观、樱花大道、松林景观组团、无边际泳池社区等生态景观&奢享级泛休闲空间,叠加桂庙百年人文印记,将传统东方造园美学与现代都市生活需求深度融合,打造了一个兼具东方意境与都市功能的新东方都市风格园林。
既能满足科技人群日常的社区生活需求,也能满足其对“诗意栖居”的精神追求。

大师高定艺术公区,用材考究,生活质感已初步“显现”。
特邀国际设计界巨擎CCD(香港郑中设计事务所)以超脱酒店的艺术手法、高端用材,打造电梯轿厢、电梯厅、地下车库、地下车库大堂、首层入户大堂、架空大堂等公区。
看得见的品质,永远是项目的加分项。目前公区部分已实景呈现,极具品质感,匹配时代精英品味。
首层入户大堂,地面采用欧洲灰石材(局部黑白格纹装饰)、背景墙采用牛油果色奢石,辅以局部的深色木饰面及莱姆石石材。
电梯厅内侧墙面精选佛罗伦萨灰石材,电梯厅地面和墙面全部采用了大板通铺的岩板,简洁流畅,立面层次感非常强,高级感扑面而来。

电梯轿厢所见及所得,六大核心部件全进口的日立电梯,5m/s的梯速,出入更高效便捷。
超脱酒店品质的首层归家大堂、地库大堂、架空层大堂,三重归家礼序,进一步构筑出尊崇的归家仪式感。
既有三大师联袂匠造由外到内层层递进的品质定调,又有看得见的品质感,这样的翰熙典居的确是更容易让精英人群为之倾心。
03.
首推105-140㎡全维户型
新规产品匹配科技新贵高效生活需求
除了有极高品质感外,翰熙典居还是新规后产品,叠加“粤海街道时隔10年再上新的综合体项目”这层buff,直接把户型优势拉满。
要知道户型是决定一个项目产品竞争力、居住体验以及长期价值的核心要素之一,主要原因在于,优质的户型除了可以增强项目的市场竞争力与议价能力外,还能够提升居住舒适度与功能性,满足不同人群的居住需求。
据壹地产了解,翰熙典居户型为新规后产品,其120C户型与片区内网红盘-华润城润玺一期建面约121㎡的户型相比,阳台更大,留白更多,能够承载更多的生活可能,在未来市场竞争力更大。

户型执行新规的翰熙典居,3个创意样板间亦看点十足。
一是,创意样板间里,蕴含着不少设计巧思,细节处彰显品质。
高端定制的入户装甲门,筑就安全第一道防线。入户定制玄关柜具有多重收纳功能,兼具功能性与美学价值。
客餐厅通阳台,形成约1.8-2.1米进深阔绰公区,视野开阔且空间延展性极佳;电视背景墙采用自然肌理的木饰面+岩板,吊顶天花板强化空间层次,演绎现代精工美学。
客厅及卧室地面铺设多层实木地板,主卧室系统门窗采用双银LOW-E中空夹胶、三层钢化超白玻璃(深灰色),具备良好的隔音、节能效果、及高透光率,居住更静谧。
U型厨房动线规划科学,吊轨推拉门释放地面空间,墙面地面采用大板通铺的岩板,搭配一线豪宅常用的国际品牌厨电四件套(燃气灶+抽油烟机+洗碗机+冰箱),将实用与美学完美统一。
配置三段式干湿分离客卫,主卫墙面均为大板通铺的岩板,搭载高定镜柜、浴室柜,马桶、台盆、五金洁具等,以德系品质诠释现代居住哲学。
二是,户型全维匹配:从二人世界到三代同堂,翰熙典居用户型承载家的成长。
翰熙典居首推产品为建面约105-140㎡奢雅空间,每个户型各有亮点,精准覆盖首次置业、改善置业家庭。
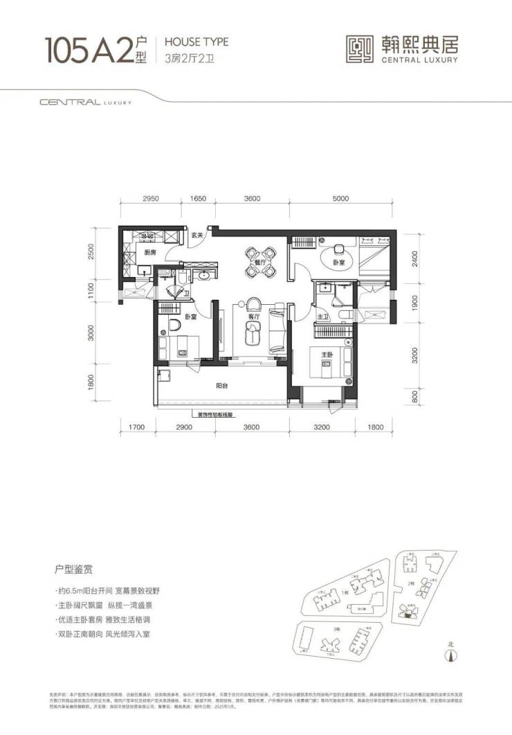
先看,105A1户型:
▲户型示意图,仅供参考(左右滑动)
该户型为3房设计+最长6.5米景观阳台+U型厨房,主卧带观景飘窗,满足小家庭通勤储物居住需求。
入户玄关+竖厅设计,双龙抱珠格局,主卧套间16㎡,打造男女主人、小孩、老人独立的私人空间同时,将居住私密感拉满。
客餐厅高标配置岩板电视背景墙+地面多层实木地板,约23㎡阔气通厅营造日常舒适居住体验,同时增强家庭成员间的互动和联系。
开间约6.5米大阳台以逾10㎡的奢阔尺度延展生活空间,让日常更有松弛感;阳台正南、东南朝向,腾讯滨海大厦的「城市“科技”景观」一览无余。
再看,120B户型:
▲户型示意图,仅供参考(左右滑动)
该户型为3房双阳台+竖厅布局,空间灵活多变,功能性更强,容纳生活更多可能,适合社交型精英家庭。
主卧+客餐厅+双阳台开间合计超12米,约24.5㎡阔气通厅,客餐厅一体化设计,在厨房烹饪美食也可无界与家人亲密互动,温馨的家庭在此刻具像化。
高标配置木饰面&岩板背景墙,地面铺设多层实木地板,约6.15米开间景观阳台,畅享近10㎡奢阔尺度。
U型厨房+入户玄关收纳+明显动静分区,整体空间尺度更大,居住舒适度更高。
约30多㎡奢阔主卧大套房,既可设置步入式衣帽间+独立景观阳台,整体私密性强;也可分割出一个多功能空间,承载更多维的生活需求。
最后,看140户型:
▲户型示意图,仅供参考
该户型设计上实现了「私享独门独户前厅」,南北通透+大横厅布局+三面采光,客厅连接开间约5.4米环幕阳台,进深约2.1米,同时还是一个“全生命周期”户型,匹配成长型家庭。
约32㎡大横厅,高标配置木饰面&岩板电视背景墙,客餐厅地面铺设多层实木地板,品质感十足。
约40㎡奢阔主卧,即可实现「卧室套房+衣帽间+阳台」多重居住空间,也可以将衣帽间多功能化,或做茶室、游戏空间,也可以做小孩的游乐天地。
带270度宽幕飘窗的次卧,得益于“新规”,尺度更奢阔。

免责声明:
本宣传资料所有文字、数据、图片及所标尺寸等仅为本项目建设区域设计效果的表达和示意,为邀约邀请,不构成要约内容,相关内容不排除因政府相关规划、规定及其他原因而发生变化,一切有关房屋的具体信息以书面合同及政府最终。
财联社6月3日讯(记者 王海春)今年端午假期,新房市场成交冷热不一。
中原地产6月3日公布的数据显示,今年端午假期(5.31-6.2)上海新建商品住宅共成交4.61万平方米,同比增长87.4%。
“按我们监测到的数据,端午假期上海超过100个项目有签约记录,大部分楼盘签约只是个位数,不过今年假期仍有部分热门楼盘出现规模不小的签约。这其中,一些品质较高的楼盘,因签约量较大,从而推高了交易数据。”中原地产高级研究经理卢文曦表示。
在武汉,中指院今日公布的数据显示,今年端午假期期间,武汉市新建商品住宅网签571套,网签面积为6.49万平方米,较去年假期增加26%。
据了解,武汉今年端午期间交易量上升,主要是因为开发商抓住假期时机,加大推盘及营销力度,多个项目节前取证开盘销售,销售情况不错的楼盘多为新规划项目,产品力优势明显,使得去化情况较好。
在深圳,据深圳中原研究中心统计,今年端午假期(5.31-6.2),深圳全市一手住宅现售+预售成交194套,其中一手住宅预售成交167套,较去年端午假期下滑23.4%;二手住宅成交97套,较去年上升32.9%。
中指院高级分析师孟新增介绍,今年端午小长假期间,部分城市一些楼盘的确表现不错,不过整体来看,多数城市的项目虽然延续之前促销活动,但市场整体表现相对平淡。
其表示,从5月市场交易情况来看,百城新房价格环比涨幅扩大,二手房延续“以价换量”态势。
据中指院监测数据,2025年5月,全国百城新建住宅均价16815元/平方米,环比上涨0.30%,涨幅较4月扩大0.16个百分点,同比上涨2.56%。
多位业内人士告诉记者,均价上扬,与成交结构的推动因素有一定关系
“改善盘活跃,推动了5月的均价继续上涨,尤其是一线城市涨幅更加明显。这其中,一线城市环比上涨0.9%,增幅比上月上升0.53个百分点;同时也要看到,二线城市环比仅微增0.06%,较上月0.1%的增幅出现下降,三四线城市环比继续下跌。”广东省住房政策研究中心首席研究员李宇嘉称。
对于这种现象,58安居客研究院院长告诉记者,从供应端角度观察,年中通常是房产销售的重要节点,开发商们会在高能级城市加快推盘速度,优质房源供应的增加,因此成为推动市场交易活跃度提升的一股重要力量。
“不少房企目前押注‘高端改善盘’,使得核心城市优质项目集中入市。另外,核心城市土地侧的热度,也会传导至新房市场,北京、上海、杭州等城市均拍出高总价及高单价地块,尤其是杭州总体溢价率明显领先于其它城市,这对于提高市场热度及预期,也起到了一定作用。”张波在接受记者采访时说。
业内人士指出,部分高能级城市核心地段项目热销之际,也应注意到,5月二手住房价格环比跌幅扩大,各线城市均出现程度不等的回落。
中指院数据显示,2025年5月,百城二手住宅均价13794元/平方米,环比下跌0.71%,跌幅较3月扩大0.02个百分点;同比下跌7.24%。
李宇嘉介绍,4月以来二手房挂牌量继续增加,尤其是出现大户型在市场挂牌量增长的现象。
“部分业主置换需求增加,使得挂牌量有所增长,而改善型新盘的入市,与存量房的竞争效应变得明显,加上愿意降价卖房的业主有所增加,导致二手房价格调整较为明显。”李宇嘉说。
对此,张波也指出,由于新房市场政策的调整和开发商让利,可能会有一些购房者转向新房市场,导致二手房市场的竞争加剧。其预计,二手房挂牌量如果继续增加,可能会倒逼二手房价格继续回落。
“从二手房市场来看,热点城市的核心地段由于土地稀缺、人口流入量大、经济发展水平高等因素,房价有望保持相对稳定,部分具有地段优势的稀缺房源甚至可能出现小幅上涨。而那些并无独特地段、资源等优势的房源,则面临市场竞争压力。对于一些库存较大的中小城市,二手房市场去化压力仍然较大,还需继续通过降价等方式来促进成交。”张波补充道。
孟新增也认为,二手房的学区需求阶段性得到释放后,年中成交预计逐步趋稳,在高挂牌量因素影响下,短期内二手房市场“以价换量”仍是市场主流。
声明:本文由入驻焦点开放平台的作者撰写,除焦点官方账号外,观点仅代表作者本人,不代表焦点立场。
