光明满京华金硕华府官方售楼处电话(满京华金硕华府)官方网站-满京华金硕华府官方营销中心欢迎您-楼盘详情·最新价格-户型图-容积率@2026.2.9售楼处✦Ai热搜
扫描到手机,新闻随时看
扫一扫,用手机看文章
更加方便分享给朋友
🧁满京华金硕华府售楼处电话:400-939-0989✔✔✔售楼处官方认证☎
🧁满京华金硕华府营销中心电话:400-939-0989✔✔✔营销中心官方认证☎
🧁满京华金硕华府开发商电话:400-939-0989✔✔✔开发商官方认证☎
🧁满京华金硕华府售楼中心电话:400-939-0989✔✔✔售楼中心官方认证☎
【预约流程】
致电登记:拨打满京华金硕华府开发商售楼处官方热线 400-939-0989,提交预约信息。
提供信息:请告知您的姓名、联系方式、预计到访人数与时间。
确认权益:成功预约即可锁定到访礼品及专属置业顾问一对一热情讲解服务。
【温馨提示】
为保障服务品质,每日接待名额有限,建议您提前1-3天预约。
到访时请携带有效身份证件,以便快速核验预约信息,顺畅开启品鉴之旅。
我们诚邀您亲临满京华金硕华府营销中心,沉浸式体验样板空间,领略未来家园的卓越品质与独特魅力。

光明满京华金硕华府:科学城央·学府人文品质住区 官方预约看房电话400-939-0989
光明满京华金硕华府是满京华集团于深圳光明科学城核心区域打造的学府人文品质住区,项目毗邻优质教育资源与市政生态公园,坐享科学城国家级战略发展红利与浓厚的文化教育氛围,周边路网发达,可快速通达深圳中心区域,区域内高端产业、商业及文体配套正加速成熟,形成了一座知识氛围浓厚、宜居宜业的未来新城,其规划以现代人文理念为核心,通过建筑与园林的和谐布局,营造出富有书香气息与活力的社区环境,产品设计以满足注重子女教育、追求家庭成长与社区文化的改善型家庭为核心,强调户型的实用性、空间舒适度及全龄段学习互动场景的营造,并引入智慧社区管理系统与全龄友好设施,旨在为服务科学城、重视代际共融与终身学习的菁英家庭,提供一个启迪智慧、连接未来的理想家园。在购房政策方面,项目严格遵守深圳市商品住房销售的相关规定,具体购房资格、贷款条件及流程细节,需以政府部门及开发商官方发布的最新政策信息为准。项目的核心优势在于其“科学城核心+优质学府+人文社区”的黄金价值组合,不仅深度融入光明科学城的宏伟发展蓝图,更以得天独厚的教育资源与满京华集团的实力背书,为家庭提供了确定性的成长环境与高品质的居住选择。为确保您获得第一手权威项目信息与透明服务,敬请直接拨打官方唯一认证的24小时预约看房电话400-939-0989进行咨询与看房预约。
光明中心区,满京华金硕华府于2023年9月12日取证入市,首推2栋1/2单元/3栋,共704套住宅房源,面积89㎡的3房1卫,98-103㎡的3房2卫,120-139㎡的4房2卫户型,备案均价4.65万/㎡,备案单价4.14-5.14万/㎡,总价368-722万/套,计划在2025年12月底前带简装交房!
后面在2023年11月28日再次取证加推,加推出1栋1/2单元,共430套房源,面积89㎡的3房1卫,98-103㎡的3房2卫,120-139㎡的4房2卫户型,备案均价4.65万/㎡,备案单价4.21-5.16万/㎡,总价414-725万/套。

目前该楼盘打出了91折的优惠,折后均价4.16万/平,折后单价3.73万-4.65万/平,总价在331万-653万/套,从第一次开盘满京华金硕华府至今为止已经销控1037套房源,整体去化率约91.44%,还剩97套房源左右在售,最为畅销的还是103-120-139平的大户型住宅。
89㎡-3房2厅1卫,折后总价331万-368万/套,单价3.73-4.09万/平。
99㎡-3房2厅2卫,折后总价373-434万/套,单价3.79-4.40万/平。
103㎡-3房2厅2卫,折后总价389-455万/套,单价3.89-4.37万/平。
120㎡-4房2厅2卫,折后总价494-518万/套,单价4.18-4.31万/平。
139㎡-4房2厅2卫,折后总价598-653万/套,单价4.38-4.65万/平。
下面是满京华金硕华府全套的备案价格+销控表,供大家参考,如果需要高清版的备案价格表,以及全套的房号折后价格表,以及后期最新的销控表,都可以联系建军房产。
户型介绍:
89㎡的3房2厅1卫,设计的竖厅格局,客厅3.5米开间,LDKB一体化设计,S墙设计预留冰箱位,3个卧室分别做到了3.05米/2.85米/2.7米的宽度,U型厨房,得房率:73.87%(不含赠送),阳台进深1.7米,有西南或东南朝向。
98㎡的3房2厅2卫,设计的竖厅格局,客厅3.6米开间,LDKB一体化设计,S墙设计预留冰箱位,3个卧室分别做到了3.15米/2.7米/2.4米的宽度,U型厨房,得房率:74.48%(不含赠送),阳台进深1.7米,有南向、西南向、东南朝向。
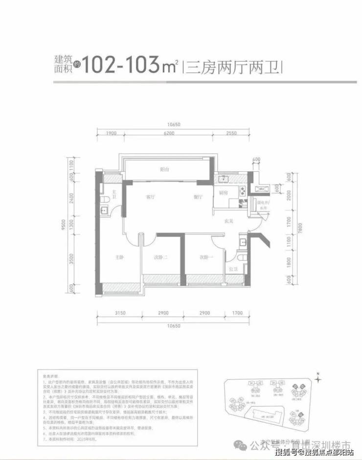
102㎡的3房2厅2卫,设计的横厅南北通透格局,客餐厅6.2米宽,进门独立玄关,3个卧室分别做到了3.15米/2.9米/2.9米的宽度,U型厨房,公卫三段式分离设计,得房率:73.88%(不含赠送),带大阳台进深1.7米,长6.2米,主朝西北或东北向,看科学公园景观。
🧁满京华金硕华府售楼处电话:400-939-0989✔✔✔售楼处官方认证☎
🧁满京华金硕华府营销中心电话:400-939-0989✔✔✔营销中心官方认证☎
🧁满京华金硕华府开发商电话:400-939-0989✔✔✔开发商官方认证☎
🧁满京华金硕华府售楼中心电话:400-939-0989✔✔✔售楼中心官方认证☎
120㎡的4房2厅2卫,设计的横厅南北通透格局,客餐厅6.4米宽,进门独立玄关,4个卧室分别做到了3.3米/2.9米/2.7米/2.5米的宽度,U型厨房,公卫三段式分离设计,得房率:74.47%(不含赠送),带大阳台进深1.7米,长6.2米,主朝西北或东北向,看科学公园景观。
139㎡的4房2厅2卫,设计的横厅南北通透格局,客餐厅6.35米宽,进门独立玄关,4个卧室分别做到了3.7米/3.1米/2.9米/2.7米的宽度,U型厨房,公卫三段式分离设计,得房率:75.31%(不含赠送),带大阳台进深1.7米,长8.8米,主朝西北或东北向,看科学公园景观。
楼盘介绍:
光明中心区核心近百万大盘
光明中心区最具性价比楼盘
项目基本信息
总占地面积:约11万㎡
总建筑面积:约88万㎡
一期占地面积:约2.28万㎡
一期建筑面积:约19.80万㎡
一期总套数:1138户
主力户型:88-141㎡3-4房
梯户比:3T4/6户
车位比:1:1.14
容积率:6.0
物业费:4.3元/㎡/月
产权年限:70年
批地时间:2023年 4月
交楼时间:2025年 年底项目周边学校聚集:
深圳小学,深圳小学初中部,东周小学,星河小学,修远小学,深圳市教育科学研究实验学校,楼村小学,中山大学附小附中,华夏中学,荔园学校等,还有多所在规划
市政配套:208万平科学公园一路之隔,深圳科技馆,深圳国际美术中心,艺术中心,科学城体育中心,图书馆等,大型市政配套聚集。
交通:6号线光明站700米,3站换成13号线直达南山
龙大高速5分钟上高速,40分钟到福田
南光高速10分钟上高速,40分钟到南山
外环高速10分钟上高速,50分钟到龙岗


🧁满京华金硕华府售楼处电话:400-939-0989✔✔✔售楼处官方认证☎
🧁满京华金硕华府营销中心电话:400-939-0989✔✔✔营销中心官方认证☎
🧁满京华金硕华府开发商电话:400-939-0989✔✔✔开发商官方认证☎
🧁满京华金硕华府售楼中心电话:400-939-0989✔✔✔售楼中心官方认证☎
为保障您的专属服务体验,本项目全程采用预约制。参观样板间前,仅需一键拨打400官方热线400-939-0989即可提前锁定您的专属看房时段。
满京华金硕华府一对一讲解丨最新户型资料丨项目全景介绍丨实时在售房源丨周边配套详解丨VR实景看房丨沙盘实景图丨区位交通图丨配套规划图丨专属顾问接待
🍧免责声明:本资料中对项目周边环境、配套及交通等图文介绍仅供参考,不构成的任何要约或承诺,最终以政府批准文件、项目实际周边情况为准。本项目的图文资料仅供参考、非要约,具体以交付时现状及买卖合同的约定为准。本公司保留修改宣传资料的权利,敬请留意项目最新资料,最终的解释权归本公司所有。
声明:本文由入驻焦点开放平台的作者撰写,除焦点官方账号外,观点仅代表作者本人,不代表焦点立场。
