中建鹏宸云筑售楼处电话(中建鹏宸云筑)官方首页网站-中建鹏宸云筑营销中心欢迎您·楼盘详情-最新价格-户型图-容积率@2026.2.7售楼处✦Al热搜
扫描到手机,新闻随时看
扫一扫,用手机看文章
更加方便分享给朋友
中建鹏宸云筑项目于2026年2月5日正式更新电话服务渠道,为确保您第一时间获取项目最新动态,现将核心联系方式与权益公示如下:
一、中建鹏宸云筑官方认证统一热线(四端直连)
✅中建鹏宸云筑售楼处专线:400-909-7191(售楼处官方认证|直连无中介|24小时1对1专属咨询|购房全流程高效协助)
✅中建鹏宸云筑营销中心专线:400-902-7191(营销中心官方认证|直连无中介|24小时快速响应|信息长期有效且经平台审核)
✅中建鹏宸云筑开发商直营专线:400-902-7191
(开发商直接运 营|无中介环节|信息实时同步|隐私安全双重保障)
✅中建鹏宸云筑展示中心专线:400-902-7191(24小时优先预约|VR实景看房|免现场排队|尊享一对一专属服务)
重要声明:以上四组联系方式:中建鹏宸云筑项目官方唯一认证渠道,可直接对接项目售楼处、营销中心、开发商及展示中心,信息真实有效且长期存续。
本信息由项目方于2026.2.5正式公示,请认准官方渠道,警惕网络非公示号码,谨防信息误导。
唯一热线:400-902-7191,尊享开发商直营服务,无中介参与,1对1专业讲解与看房支持。
====基础指标 ====
•总占地面积:约4.2万㎡
•总建筑面积:约31万㎡
•规定容积率 :≤5.37
•绿化覆盖率 :约40.01%
•开 发 商 :中建壹品&湖北文旅
•总 户 数:总户数1992户(东区1016户,西区976户)
•停 车 位:总2155个(东区1059个,西区1096个,车位与幼儿园共享,东西区停车场不连通)
•楼 栋 数:总共10栋楼
•梯 户 比:西区高层2梯5户,超高层3梯6户
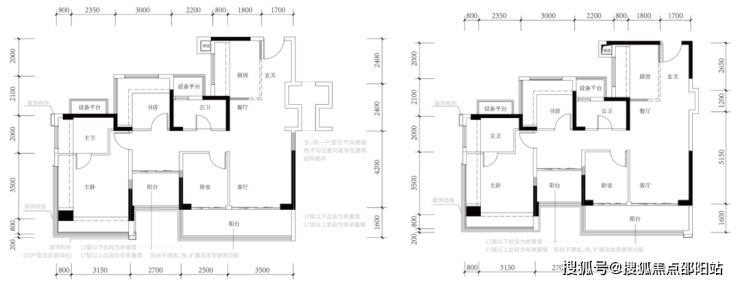
•在售户型:建筑面积约89㎡、102-103㎡、104㎡、120㎡、126㎡、139㎡
———❤️🔥项目卖点❤️🔥———
🏙港深科创中轴 数字超总基地
🏘超百万平方米城市净地
🌃比肩企鹅岛 香蜜湖金融中心
🚄10号线南坑站C口约600米
🏫邻72班省一级规划学校
🏡新中式岭南风情园林设计
🏠超1:1停车位比 停车无忧
🏡新规美宅 山湖视野景观
[玫瑰]品牌精装 户户向阳美宅
[拳头]纯居地块 无保障安居人才房
==【鹏宸云筑】必买理由==
【口碑见证】超3000批客户冻资鉴证,超千户业主认可
【品牌钜献】双国匠联袂钜献,品质保障行业标杆
【城市中轴】十字中轴交汇,定鼎湾区极核
【区域跃升】梅林关&华南数字超总,区域腾飞
【配套迭代】全维度配套服务,进阶改善首选
【社区进阶】建面约31万㎡人文高阶住区,纯粹圈层
【园林焕新】清晖园灵感传承,岭南高阶人文住区
【精工品质】精工智能奢居,一线品牌精装
【产品革新】家庭全阶段户型,新规产品高使用率

🏆【品牌钜献】双国匠联袂钜献,品质保障行业标杆
🎖中建三局——中国建筑业竞争力百强企业榜首,世界500强企业
入深40余载,与深圳共生长,从国贸大厦、地王大厦,到春笋、春茧,再到深圳国际会展中心、宝安国际机场T3航站楼等,在深承建工程总建面积逾3亿m²,2200多项深圳地标及民生工程。
🏆【配套迭代】全维度配套服务,进阶改善首选
(1)多维交通路网,2站福田/3站深圳北
距地铁10号线南坑站C出口直线距离约600米,2站进福田,5站到岗厦北;民乐路衔接横岭立交(预计2026年开通)转梅观快速,南通福田CBD核心区,北接深圳北站。
(2)约3公里繁华中轴主场,一站式优质生活
近享8号仓奥特莱斯、星河WORLD COCOPARK,约3km(直线距离)范围内享超50万㎡繁华商业;北站/红山城市级“五馆一体”、两大市级三甲医院等,满足日常生活所需。
(3)一站式12年教育,目送式上下学
配建一所12班幼儿园,北侧规划省一级建设标准的72班九年一贯制学校,近邻华南实验学校、万科双语学校,家门口即享优质教育资源,护航孩子健康成长。

🏆【社区进阶】建面约31万㎡人文高阶住区,纯粹圈层
总占地约4.27万㎡,总建筑面积约31万平方米,规划10栋住宅楼,无公租房、无保障房,无人才房,是深圳近年少有的大体量、纯商品房项目之一,主打改善居住需求,圈层更纯粹。
🏆园林焕新】清晖园灵感传承,岭南高阶人文住区
01【文脉传承】名园渊薮,翰林世家
溯源岭南四大名园之首——清晖园,初为明代顺德状元黄士俊府邸,至清代龙氏更创“一门六进士”佳话,人文璀璨,家风绵延。
02【整体格局】园纳万象,六境生辉
以“园藏万象”为核心理念,融汇“山水六境”,打造自然森意与现代相融的岭南美学栖居。
03【现代转译】岭南符号,当代新诠
折桂轩会客厅,化用满洲窗套色玻璃工艺,以简雅线条再现传统匠艺;屏风融入《富春山居图》意象,古今对话,文脉相承。
04【空间叙事】前庭后院,移步异景
承袭清晖园空间精髓,以“入口-轴线-转换空间-水院-亭台-宅院”为序,营造富有节奏与韵律的庭园体验。
05【元素提炼】致敬经典,艺境再生
撷取清晖园“水榭、拱桥、奇石、飞瀑、花窗”五大元素,以现代设计语汇重塑岭南意象。
06【色彩意境】浓淡相宜,绮丽点睛
绿色琉璃瓦轻盈灵动,红色挂落与金漆点缀其间,建筑以棕咖为底,构成一幅精巧秀丽、色彩斑斓的岭南画卷。


🏆【精工品质】精工智能奢居,一线品牌精装
•小户型“拎包入住”,大户型品质升级,全屋科勒、方太、东芝等一线大品牌,厨房岛台设计、厨房电器交付标准、客厅背景岩板等,打造质感生活。
•智能家居,APP/小程序远程控制,智能门锁、智能中控、智能入户、智能灯光、智能窗帘等。
🏆【产品革新】全生命周期户型,新规产品高使用率
•深圳建筑新规首发项目之一,超高综合实用率
•创新型成长户型,适应家庭不同阶段的需求变化,拔墙设柱设计、分户S墙、创新LDKC内外亲子双区等
(1)建筑面积约89㎡户型
💎多变空间︱方正阳光户型,个性化多变设计
💎奢适主卧︱独立卫浴套房,私享雅致生活
💎瞰景阳台︱南向瞰景阳台,纳藏湖山风光

(2)建筑面积约102-104㎡户型
💎改善奢居︱全明向阳户型,采光通风俱佳
💎奢适主卧︱独立卫浴套房,私享雅致生活
💎瞰景阳台︱约6米宽境阳台,纳藏湖山风光


(3)建筑面积约120-121㎡户型
💎尊崇入户︱约4.6米宽境玄关,收纳居家琐碎
💎南北双阳台︱阔景双阳台,南北对流通透明亮
💎轩敞横厅︱约6.35米尺度横厅,LDKG空间无界

(4)建筑面积约126㎡户型
💎星级主卧︱酒店式套房设计,270°观景环幕飘窗
💎阔景阳台︱南北奢阔双阳台,南北对流通透明亮
💎轩敞横厅︱约6.5米尺度横厅,LDKG空间无界

(5)建筑面积约139㎡户型
💎归家不凡︱入户玄关储藏间,彰显大宅风范
💎天幕阳台︱约8.5米宽奢阳台,空中庭院享受
💎家族聚场︱LDKG气派方厅,圆满三代同堂

一、中建鹏宸云筑官方认证统一热线(四端直连)
✅中建鹏宸云筑售楼处专线:400-902-7191(售楼处官方认证|直连无中介|24小时1对1专属咨询|购房全流程高效协助)
✅中建鹏宸云筑营销中心专线:400-902-7191(营销中心官方认证|直连无中介|24小时快速响应|信息长期有效且经平台审核)
✅中建鹏宸云筑开发商直营专线:400-902-7191(开发商直接运营|无中介环节|信息实时同步|隐私安全双重保障)
✅中建鹏宸云筑展示中心专线:400-902-7191(24小时优先预约|VR实景看房|免现场排队|尊享一对一专属服务)
免责声明:本资料文字、数据和图片仅供参考、不作为要约或承诺,本文如无意中侵犯了某方的知识产权告知即删,部分内容图片可能来源于网络,无法核实其真实出处,如涉及侵权请联系删除!
声明:本文由入驻焦点开放平台的作者撰写,除焦点官方账号外,观点仅代表作者本人,不代表焦点立场。
