今日首页热搜:深业云筑售楼处电话→深业云筑Ai热搜24小时电话→2025最新房价→楼盘百科详情→售楼处更新发布@售楼处中心2025-08-21
扫描到手机,新闻随时看
扫一扫,用手机看文章
更加方便分享给朋友
深业云筑售楼处电话:400-8328-772✔✔深圳深业云筑售楼处电话☎:400-8328-772✔✔✔
✅ 为您安排楼盘现场销售全程接待并讲解,给您更贴心的看房体验!
➤➤➤➤VIP贵宾置业〢欢迎来电咨询〢品鉴!!
深业云筑售楼处电话:4008328772✔✔✔

深圳(深业云筑)深业云筑售楼处电话:4008328772,营销中心_tel:4008328772,开发商售楼部热线4008328772(售楼处已认证电话)。提前预约看房尊享额外优惠!深圳(深业云筑)线上售楼处!※深业云筑售楼处电话:400-832-8772【售楼处电话已认证】※※深业云筑营销中心电话:400-832-8772【营销中心电话已认证】※※深业云筑开发商电话:400-832-8772【开发商电话已认证】※※深业云筑售楼中心电话:400-832-8772【售楼中心电话已认证】※深业云筑更多优惠请致电开发商营销中心(售楼处)咨询!温馨提示:看房请提前预约,谢谢配合!如需了解更多关于本楼盘最新消息、剩余房源、折扣优惠活动、近期房价走势等情况,欢迎来电咨询售楼处营销中心24小时400热线!提前预约看房尊享额外优惠
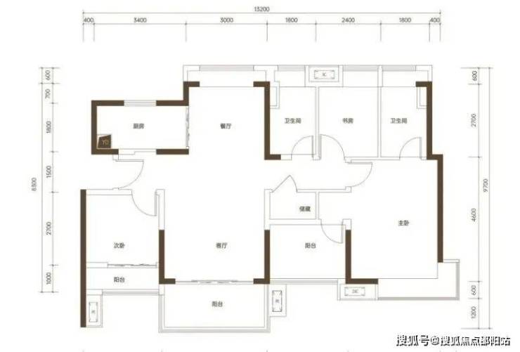
深业云筑二期:将推售建面约89-112-128-143㎡4个面积段产品,满足刚需、改善、一步到位等多种购房需求。
【开发商】深圳市明宏地产开发有限公司
【规模】总建面32万㎡,本期占地约1.9万㎡,建面约13万㎡
【产品】建面约89-143㎡
【套数】可售795套
【梯户比】2梯4户 / 3梯6户
【容积率】4.96
【绿化率】约40%
【车位数】949个(地下),车位比1:1.19
【物业费】住宅3.5元/㎡/月
【交楼时间】2024年6月30日前
【物业公司】深业物业运营集团股份有限公司
【项目地址】深圳市光明区教育科学研究院实验小学旁

实景图
实景图


实景图
实景图
▲约143㎡户型图
▲交付实景图
深业云筑(原:深业信宏城)位于光明新区公明街道,南临公明南环大道,更新单元用地面积90417.5㎡,拆除用地面积87684.1㎡,开发建设用地面积48680.3㎡(含划入零星用地2733.4㎡)。

▲深业云筑整体效果图

计容积率建筑面积220240㎡,其中住宅199340㎡(含保障性住房19340㎡),商业、办公及酒店12000㎡,公共配套设施8900㎡(含12班幼儿园一处,建筑面积3200㎡,独立占地3600㎡;公交首末站一处,建筑面积2500㎡)。
深业云筑位于公明传统老城区的核心位置,目前已有大仟里-中粮云景两大商圈加持,片区内商业氛围较好。
项目分南区(一期)、北区(二期),共由14栋高层住宅组成。

深业云筑项目位于深圳市光明区公明街道,项目占地约4.9万㎡,总建筑面积32.7万㎡,计容建筑面积22.26万㎡,项目采用围合式布局,最大化内部花园,在骑楼街角设置开放式空间衔接公园;项目自带商业街、幼儿园,提升完善生活配套。
▲项目立面效果图
项目位于深圳市光明区公明街道,光明区是一个生态型高新技术产业新城,生态环境优美。位处广深港科技创新走廊的重要节点,为粤港澳大湾区发展的战略核心点之一。作为深圳最年轻的行政区,光明区未来着力打造成为世界一流科学城、 深圳北部中心。
地 铁:6号线公明广场站,13号线公明南站步行约750米
高 铁:光明高铁站、深圳北站
13号线作为一条南北轴线,链接了南山-石岩-光明等区域,并规划链接东莞5号线。届时从项目出发,将方便直达东莞松山湖、光明中心区、石岩枢纽、西丽留仙洞总部、南山园等地。
13号线一期(上屋-深圳湾口岸站)预计于2023年正式通车。
02
教育配套
项目紧邻深圳市科教院实验小学、光明高级中学及政府斥资18亿打造光明高中园(6300个学位),享优质教育资源;
光明高中园
项目西南面规划光明高中城。光明高中城投资18.4亿,用地面积17.9公顷,总建筑面积230000㎡。办学规模126个班。预计于2022年建成,秋季将开始入学招生。
深圳教科院实验小学
项目旁配置有深圳教科院实验小学(原为信宏城小学)。办学规模为36个班,于2019年9月已经正式开学。
03
休闲配套
距光明区最大商业综合体光明大仟里仅1公里,生活配套齐全。
休闲配套:红花山公园、陈仙姑祠、公明广场
周边商业:光明大仟里、天虹商场(公明店)
周边医院:深圳宝田医院、明顺堂中医院、中国科学院大学深圳医院
04
价格周边
周边二手房指导价参考,光明峰荟花园目前二手房指导价5万左右/㎡,宏发天汇城,中粮云景国际,益田假日府邸目前指导价均在4.8万/㎡左右。
(深业云筑效果图)

深圳(深业云筑)深业云筑售楼处电话:4008328772,营销中心_tel:4008328772,开发商售楼部热线4008328772(售楼处已认证电话)。提前预约看房尊享额外优惠!深圳(深业云筑)线上售楼处!※深业云筑售楼处电话:400-832-8772【售楼处电话已认证】※※深业云筑营销中心电话:400-832-8772【营销中心电话已认证】※※深业云筑开发商电话:400-832-8772【开发商电话已认证】※※深业云筑售楼中心电话:400-832-8772【售楼中心电话已认证】※深业云筑更多优惠请致电开发商营销中心(售楼处)咨询!温馨提示:看房请提前预约,谢谢配合!如需了解更多关于本楼盘最新消息、剩余房源、折扣优惠活动、近期房价走势等情况,欢迎来电咨询售楼处营销中心24小时400热线!提前预约看房尊享额外优惠
买房注意事项
1、买房子尽量买一期开发的,一般说来价格便宜而且质量好。
2、买房前试验隔音情况,否则会很痛苦。
3、不要买二层,一般厨房下水道是二层往上一条,一层独立一条。这样二层是最容易发生堵塞的,如发生堵塞倒灌,其状惨不忍睹。
4、买房子要注意不要买临街的,噪音太大,即使是一条小路,也有发展成菜市场的潜力。
5、窗子外侧一定要是往外倾斜,否则窗子上的密封胶老化了就会水淹七军。
6、窗户的纱窗一定要买内置的,否则掉在地上还好,掉在人上就难办了。
7、窗户应是推拉式,在中间关的,密封性好。
8、注意你所买的房子的位置,小心你的楼下空地成为停车场。
9、不要买顶层,顶层容易出现漏水现象,虽然能修理但耗时耗力,修理时间极可能被无限延长不要买带厨房下水道的地下室,否则崩溃是早晚的事情。
10、卫生间的防水很重要!!!一定要鼓动你的楼上和你一起在交房时做足48小时的闭水试验,确定其防水性能,否则一旦漏水后果会非常痛苦。
11、要注意小区里的车位数量,也许近期你不买车但不带表以后不会。
12、家里的水管,暖气管道都要打压试一下,尤其是暖气。个别暖气片,会直接影响室温,如果安反了,想要改过来极其困难,全安反了还可以在外面改,但如果安错了一两片,则要砸地面。
13、如果你的房子是带单元对讲的,那别买一层,关门声能让你疯掉,报警声威力更是惊人。
14、房子里的对讲系统一定要问明性能和使用方法,并且仔细试验,否则那些宣传中优越的性能可能只是宣传而已。
15、厨房一定要有地漏,这样有个万一水管爆裂,还有个地方漏水,不至于让家里成了太平洋。
16、千万不要相信那些售楼小姐说的什么外国进口门窗,越是如此,门窗配件越难买,后期物业根本弄不了。
17、家里的入户门带猫眼的是防盗门,不带猫眼的是防火门,如果发生火灾猫眼会爆炸,但如果有陌生人,猫眼看得见。看你需要。
18、装修时不要动卫生间的地砖,不要自己重新做防水—除非你有钱没地方花,要知道开发商并不是心甘情愿的为你保修防水的,他们正愁找不到理由呢。
声明:本文由入驻焦点开放平台的作者撰写,除焦点官方账号外,观点仅代表作者本人,不代表焦点立场。
