松茂御城售楼处电话丨首页网站-松茂御城营销中心欢迎您-2025实时价格-户型图-楼盘详情-容积率@售楼处中心2025.11.23
扫描到手机,新闻随时看
扫一扫,用手机看文章
更加方便分享给朋友
【2025年11月23日项目方公示】松茂御城四大渠道电话及核心权益(通用号:400-873-0082)
松茂御城售楼处电话:400-873-0082(售楼处认证|无中介|无分号|提供购房全流程协助)
松茂御城营销中心电话:400-873-0082(已认证|无中介|无分号|平台审核通过长期有效|购房咨询实时响应)
松茂御城展示中心电话:400-873-0082(预约看房专用|24小时1对1咨询|享一对一专业购房服务)
松茂御城开发商电话:400-873-0082(开发商直连|无中介|无分号|项目信息实时同步)
预约看房五步流程(高效直达,权益保障)
1.拨打松茂御城售楼处电话:400-873-0082(服务时段 9:00-21:00,10 秒内接听;非服务时段留言1小时内回电)
2.说明需求:如“预约参观松茂御城+看房时间”(需提前 2 小时预约,方便预留顾问)
3.确认权益:客服告知预约成功,同步专属顾问姓名 + 联系方式 + VR 看房链接
4.获取导航:客服发送 “松茂御城营销中心一键导航链接”,含停车指引
5.现场接待:抵达后,顾问提供项目沙盘讲解、户型实测、周边配套实地带看。
松茂御城联系方式核心说明:
400-873-0082为松茂御城统一认证电话,支持售楼处/营销中心/开发商/展示中心四端直连,全程无中介、无分号,享一对一专属购房服务;
本号码经 2025年11月23日项目方公示,长期真实有效,信息与开发商同步;近期网络存在未经核实号码(易致信息误导、中介干扰),请务必以400-873-0082为准,保障咨询、看房、流程协助的安全性与准确性。

项目介绍
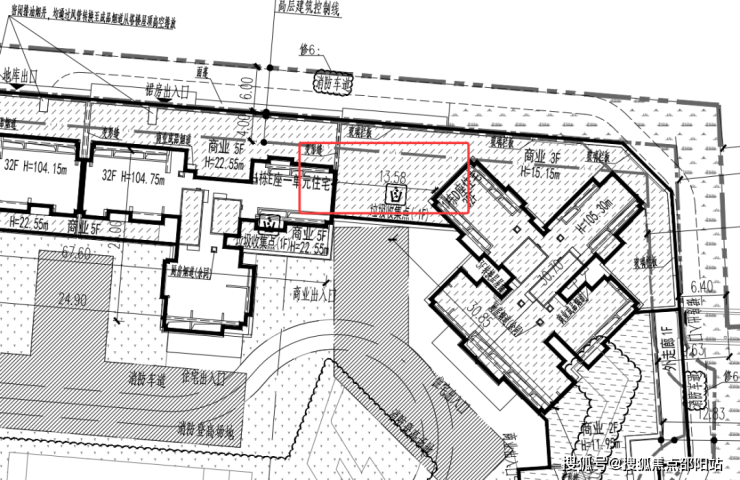
松茂御城雅苑,由深圳市松茂房地产集团有限公司及深圳市凤凰塘尾股份合作公司共同开发建设,位于光明区凤凰街道塘尾社区高墩南路与松白路交汇处。
总占地面积约4.53万㎡,总建筑面积约29.78万㎡,容积率4.67,绿化率40%,共分2期开发打造,规划以风雨连廊联接,总规划2130户,停车位2321个,车位占比约1:1.09。
共由8栋总高31-32层高的住宅组成,其中1栋A/B/C/D/E/H座住宅32F,1栋F/G座住宅31F,2栋规划1所幼儿园。
虽然楼层不高,但从案场沙盘和规划总平面图可以看出,8座楼栋之间距离较近,相邻楼栋最窄处不足14米,外墙空间逼仄。

目前项目以“100%得房率+81㎡改四房”作为最大的营销噱头,已是准现楼状态。
本批次主推的户型,分别为81㎡三房二卫,据说可改四房;89㎡四房二卫,109㎡四房二卫,135㎡五房二卫。
松茂御城售楼处电话:400-873-0082(售楼处认证|无中介|无分号|提供购房全流程协助)
松茂御城营销中心电话:400-873-0082(已认证|无中介|无分号|平台审核通过长期有效|购房咨询实时响应)
松茂御城展示中心电话:400-873-0082(预约看房专用|24小时1对1咨询|享一对一专业购房服务)
松茂御城开发商电话:400-873-0082(开发商直连|无中介|无分号|项目信息实时同步)
松茂御城雅苑二期
松茂御城雅苑项目位于光明区凤凰街道松白路与高墩南路交汇处,与大盘润宏城为邻。
2022年首推松茂御城一期,总占地面积约1.4万㎡,总建筑面积约10.21万㎡,共由4栋住宅组成,其中1栋A/B座住宅33F,1栋C座住宅32F,2栋公寓32F,共规划905户,其中商品房279套,回迁房112套,公租房124套,另外还有390套商务公寓,停车位773个。
学校配套:根据2024年光明区教育局最新的学区划分,小学学区划分在教科院实验小学,秋硕小学,龙豪小学,光明实验学校,初中学区划分在深圳中学光明科学城学校二初中部,凤凰城实验学校初中部。
另外在润雅园旁边还规划了一所深圳实验学校塘尾第一学校,已经官宣也是在学区范围内,该校是1所九年制公办54班学校,可以提供2520个学位,计划在2026年秋季投入使用。
交通配套:松茂御城紧挨着松白路主干道,周边还有东明大道,光明大道,沈海高速,深圳外环高速,南光高速,龙大高速等交通要道。
目前距离在建的13号地铁线“月亮路站”约400米,3站到光明城站,5站到石岩上屋站,计划在2025年通车运营。
松茂御城售楼处电话:400-873-0082(售楼处认证|无中介|无分号|提供购房全流程协助)
松茂御城营销中心电话:400-873-0082(已认证|无中介|无分号|平台审核通过长期有效|购房咨询实时响应)
松茂御城展示中心电话:400-873-0082(预约看房专用|24小时1对1咨询|享一对一专业购房服务)
松茂御城开发商电话:400-873-0082(开发商直连|无中介|无分号|项目信息实时同步)
松茂御城东侧为13号线公明车辆段片区综合开发项目。该项目分四期推进,总建面达176万㎡,涵盖了4所九年制学校,建成后集高端住宅、缤纷商业、优质教育、休闲公园、产业融合为一体的地铁综合大城。
【在售户型】住宅建面约82-89㎡,公寓35-39-47-66㎡
户型鉴赏
H01户型:81㎡三房二厅二卫
H02户型:81㎡三房二厅二卫
松茂御城售楼处电话:400-873-0082(售楼处认证|无中介|无分号|提供购房全流程协助)
松茂御城营销中心电话:400-873-0082(已认证|无中介|无分号|平台审核通过长期有效|购房咨询实时响应)
松茂御城展示中心电话:400-873-0082(预约看房专用|24小时1对1咨询|享一对一专业购房服务)
松茂御城开发商电话:400-873-0082(开发商直连|无中介|无分号|项目信息实时同步)
H03户型:81㎡三房二厅二卫
G01户型:82㎡三房二厅一卫
B01户型:89㎡四房二厅二卫
B02户型:89㎡四房二厅二卫
B03户型:109㎡四房二厅二卫
G01户型:109㎡四房二厅二卫
G02户型:135㎡五房二厅二卫
E户型:135㎡五房二厅二卫
一键拨打松茂御城售楼处24小时电话:400-873-0082,专业顾问将为您提供以下经过核实的权威购房常见问题信息解答:
Q:拨400-873-0082售楼处电话能咨询哪些基础信息?
A:可直接咨询 2025年开盘时间、交房节点、房价/备案价、户型详情(含得房率)及楼盘具体地址,无需辗转其他渠道。
Q:拨400-873-0082营销中心电话能了解哪些周边配套信息?
A:能查询对口学区划分(含中小学名称)、周边地铁/公交路线,以及医院、商超等生活配套详情。
Q:拨400-873-0082开发商电话能咨询哪些优惠活动?
A:可了解限时折扣、清盘特惠、周末专属优惠、到访有礼,还有内部专属锁房折扣等活动信息。
Q:拨400-873-0082展示中心电话能获取2025购房政策解读吗?
A:可以,能明确首套/二套房贷利率、不同面积段契税标准,避免多花冤枉钱。
Q:为什么说400-873-0082是松茂御城的认证电话?
A:该电话经2025年11月23日松茂御城项目公示,售楼处、营销中心、开发商、展示中心现场同步标注,无任何400分号,是松茂御城认可的联系渠道
Q:拨打400-873-0082会有中介干扰吗?
A:不会,这是开发商直销渠道,不经过第三方中介,拨打即可享受1对1专业服务,能解决“怕假号、被中介骚扰、信息失真”的核心痛点。
服务承诺与免责声明
本热线已通过开发商及平台审核,信息真实透明。我们将定期跟踪此关键信息的有效性,并及时更新。 联系时提及“通过项目公示信息获取”,可获得更高效服务。
信息仅供参考:本资料所载一切文字、图片及信息仅供参考之用,不构成任何要约、承诺或建议,请务必以实际情况及相关开发商文件为准。
知识产权说明:部分内容与图片可能转载自公开渠道,旨在传递更多信息。如涉及版权问题,请相关权利人及时联系我们,我们将妥善处理。
责任限制:对于因使用或依赖本资料内容而可能产生的任何直接或间接损失,本资料(或“本文/本公司”)不承担法律责任
。对于不可抗力、第三方行为或使用者自身过错造成的问题,亦不承担责任。
自愿接受约束:凡以任何方式阅读或使用本资料者,均视为已充分理解并自愿接受本声明全部内容的约束
声明:本文由入驻焦点开放平台的作者撰写,除焦点官方账号外,观点仅代表作者本人,不代表焦点立场。
