三亚金地·水木海棠官方售楼处电话(金地·水木海棠年底优惠首页网站)金地·水木海棠楼盘详情-最新价格-户型图-容积率@售楼处中心2025.12.14
扫描到手机,新闻随时看
扫一扫,用手机看文章
更加方便分享给朋友
金地·水木海棠位于三亚市海棠湾南田片区南田温泉度假区内。是由南田温泉金地置业有限公司倾力为业主打造的一处远离城市喧嚣,静而不僻的高端温泉康养度假社区。
01
# 区位介绍 #
“
项目坐落在海南省三亚市海棠湾南田温泉度假区内,与世界上顶级的旅游胜地夏威夷、巴厘岛、马尔代夫处于同一纬度,气候终年温和宜人,素有“天然温室”之称。森林覆盖率近年稳定在62.1%以上,空气清新、海风柔和、沙滩洁白、四季如春。

02
# 项目基本信息 #
“
总占地约:约99亩
总建筑面积约:125308.41平方米
层高:3米(4栋2.9米)
楼层数:8~11层
梯户比:一梯两户
容积率:1.2

绿地率:40.13%
车位比例:1:1.3
车位数量:890个(住宅743个、酒店147个)
产权年限:70年
楼栋总数:17栋楼
总户数:542户
交付标准:精装交付
物业公司:水木京城
付款方式:一次性(待定)
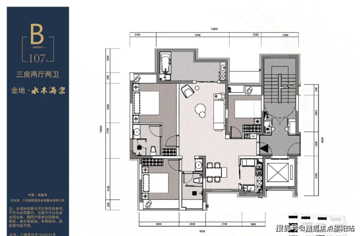
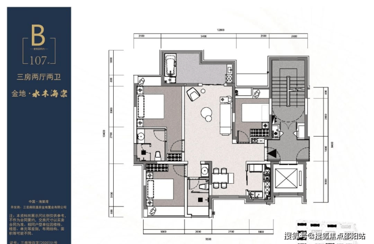
户型展示
A户型140㎡三房二厅二卫
B户型107㎡三房二厅二卫
”

03
# 项目户型介绍 #





















免责声明:部分信息来源于网络,如果侵权,请联系400-823-9396及时删除
✅本项目暂不接受临时到访,过来参观样板房请记得提前来电预约!
万科H股涨超10%带动内房股拉升 公司债权人大会召开多只债券盘中飙涨
港股盘中异动
2025-12-10 15:41 星期三
财联社 冯轶
①万科H股涨超10%带动内房股拉升,有何看点? ②公司多只境内债异动飙涨,什么信号?
财联社12月10日讯(编辑 冯轶)
港股内房股午后拉升走高。截至发稿,万科企业(02202.HK)涨近12%,中国金茂(00817.HK)、世茂集团(00813.HK)等多家房企也大幅跟涨6%以上。
消息面上,有媒体报道,万科首个展期债券“22万科MTN004”的债权人大会今日召开,将讨论债券展期事宜。
盘面上,万科多只境内债券飙涨一度触发交易所临时停牌,也引发不少关注。其中,“23万科01”涨超50%,“21万科06”涨逾40%、“22万科02”、“21万科04”涨超30%,“21万科02”涨约15%。
此前,由于万科寻求多笔债券展期,一度引发了市场对其债务偿付及未来发展的担忧。且随利空发酵,房企流动性问题也再度受到市场关切。
据华创证券跟踪统计,从累计数据来看,年初至今20城商品房成交面积9453万方,累计同比减少14%。
考虑到销售规模直接决定房企回款,对现金流、毛利率等主要财务指标也有明显影响。因此,面临新房景气度疲软的现状,近期市场对后续政策托举及稳增长的力度较为敏感。
值得一提的是,12月8日,中共中央政治局会议召开,分析研究2026年经济工作。其中提到,持续防范化解重点领域风险。
不少机构分析认为,预期政策仍将围绕地方化债、房地产、中小金融机构开展,将缓解相关领域的市场担忧。
短期来看,万科由于展期事件成为地产行业风暴中心后,仍在持续影响板块行情。尤其是,近阶段不少地产股股价频繁波动,也反应了资金在政策预期和债务风险中较高的博弈心态。
声明:本文由入驻焦点开放平台的作者撰写,除焦点官方账号外,观点仅代表作者本人,不代表焦点立场。
