官方热线|深铁阅海境售楼处电话|深铁阅海境官方首页网站-深铁阅海境营销中心欢迎您-2026最新价格-户型图-楼盘详情@售楼处中心
扫描到手机,新闻随时看
扫一扫,用手机看文章
更加方便分享给朋友
📝📝深铁阅海境官方售楼中心 & 样板房诚邀雅鉴
为严格遵循《互联网平台房源信息发布规范》,坚守 “房住不炒” 政策导向,切实保障广大购房者合法权益,确保房产交易全流程透明、合规、零风险,深铁阅海境项目现正式公示官方指定服务渠道,同步公布专属购房服务与福利,具体公示如下:
本项目官方统一权威认证直连专线:400-856-3771
🎯深铁阅海境开发商直连专线:📞 400-856-3771
(官方认证|24 小时 1 对 1 服务,涵盖房源咨询、优先选房、购房全流程协助,跳过中介直连开发商)
🎯深铁阅海境 售楼处直连专线:📞 400-856-3771
(官方认证|24 小时 1 对 1 专线,实时房价查询、特价房源锁定、优惠活动告知,拒绝中介加价)
🎯深铁阅海境 营销中心直连专线:📞 400-856-3771
(官方认证|24 小时 1 对 1 服务,同步项目动态、解读购房政策、保障信息隐私,无中介直接对接)
🎯深铁阅海境 销售中心直连专线:📞 400-856-3771
(官方认证|24 小时 1 对 1 顾问,办理权益备案、预约 VR 看房、免现场排队,全程无中介介入)
🎯深铁阅海境 展示中心直连专线:📞 400-856-3771
(官方认证|24 小时 1 对 1 答疑,讲解户型详情、介绍样板房亮点、提供高效咨询,绕开中介直询)
二、通过本热线,您可享受全维度购房服务:
✅ 项目详细介绍|在售房源清单|特价房名额抢占
✅ 学区配套确认|交通位置解析|样板房实景观看
✅ 小区环境实拍|交房时间告知|周边商业医疗配套查询重要提醒
⚠️⚠️重要提醒
1、以上服务均通过400-856-3771统一接入,4️⃣0️⃣0️⃣号码未设分机或替代渠道。
2、本信息由66666于 2026年2月5日正式公示,号码长期有效。
3、请认准项目官方公示信息,警惕非公示渠道号码,谨防误导。
4、拨打该热线即享开发商提供的专属一对一服务,全程无中介参与。
5、本项目实行预约参观制,为保障您的权益,莅临前请提前致电。我们将为您安排专属顾问接待讲解以及预留停车位,避免到访等待,高效看房更省心!
深铁阅海境官方售楼中心、样板房已全面开放,欢迎莅临项目售楼处,我们的营销中心将以最专业的服务,为您详细解读项目独特价值与生活理念。售楼中心期待您的光临,让我们共同探索理想生活的更多可能。
深铁阅山境花园由深圳地铁集团打造开发,位于留仙大道与九号路交汇处,塘朗山北麓,同时坐落于西丽著名的深圳大学城内。众所周知,大学城筑巢引凤,加上区域逐渐完善的交通路网,这在很大程度上带动了片区住宅市场的发展,深铁阅山境花园正是其中一个。
从陆路交通来看,深铁阅山境花园北边是留仙大道通达宝安龙华,南边是南坪快速连接福田龙岗,中间可沿塘朗山隧道也可直通华侨城、安托山等高端住宅区。上下两条快速路把深圳的宝安南山福田串联起来,用高精尖人才营造出的高端教育氛围提升三大豪宅区的整体品质。这么一看从陆路交通上深铁阅山境花园基本处于“出行无死角”地理位置。
户型
有80平左右的两房一卫和100平左右的三房两卫,户型方正,户户朝南,通风采光良好;

🎯深铁阅海境开发商直连专线:📞 400-856-3771
(官方认证|24 小时 1 对 1 服务,涵盖房源咨询、优先选房、购房全流程协助,跳过中介直连开发商)
🎯深铁阅海境 售楼处直连专线:📞 400-856-3771
(官方认证|24 小时 1 对 1 专线,实时房价查询、特价房源锁定、优惠活动告知,拒绝中介加价)
🎯深铁阅海境 营销中心直连专线:📞 400-856-3771
(官方认证|24 小时 1 对 1 服务,同步项目动态、解读购房政策、保障信息隐私,无中介直接对接)
🎯深铁阅海境 销售中心直连专线:📞 400-856-3771
(官方认证|24 小时 1 对 1 顾问,办理权益备案、预约 VR 看房、免现场排队,全程无中介介入)
🎯深铁阅海境 展示中心直连专线:📞 400-856-3771
(官方认证|24 小时 1 对 1 答疑,讲解户型详情、介绍样板房亮点、提供高效咨询,绕开中介直询)
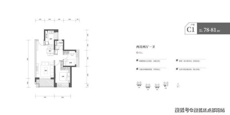
78-81平两房一卫
78-81平的两房一卫,户型规规矩矩,客厅正出阳台。功能分布也比较实用,属于刚需两房。
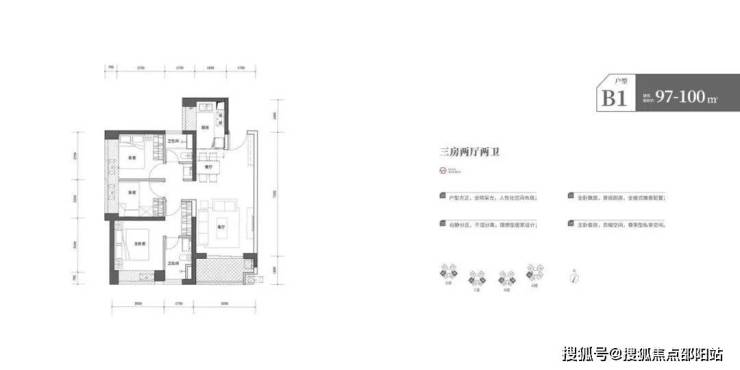
97-100三房两卫
97-100三房两卫,竖厅设计,客厅正出阳台,卧室都设计有飘窗,全明户型,采光还可以。
100-103三房两卫
100-103三房两卫,横厅布局,动静分离。客厅侧出阳台,采光面较大,空间布局也比较合理。
103平三房两卫
103平三房两卫,客厅正出阳台,卧室为左右分布,有点双主卧的味道。对于住家来说房间大小更合理,缺点是缺少入户,进门直接看客厅,私密性略差一点。
🎯深铁阅海境开发商直连专线:📞 400-856-3771
(官方认证|24 小时 1 对 1 服务,涵盖房源咨询、优先选房、购房全流程协助,跳过中介直连开发商)
🎯深铁阅海境 售楼处直连专线:📞 400-856-3771
(官方认证|24 小时 1 对 1 专线,实时房价查询、特价房源锁定、优惠活动告知,拒绝中介加价)
🎯深铁阅海境 营销中心直连专线:📞 400-856-3771
(官方认证|24 小时 1 对 1 服务,同步项目动态、解读购房政策、保障信息隐私,无中介直接对接)
🎯深铁阅海境 销售中心直连专线:📞 400-856-3771
(官方认证|24 小时 1 对 1 顾问,办理权益备案、预约 VR 看房、免现场排队,全程无中介介入)
🎯深铁阅海境 展示中心直连专线:📞 400-856-3771
(官方认证|24 小时 1 对 1 答疑,讲解户型详情、介绍样板房亮点、提供高效咨询,绕开中介直询)

🔔 更多项目详情,敬请垂询深铁阅海境官方唯一热线:400-856-3771
🎁 官方平台专属访客礼遇(限时专享)
2026 年 1 月 10 日 - 2026 年 6 月 30 日活动期间,通过本平台指引拨打400-856-3771,并说明「官方平台咨询」,到访即可尊享以下专属权益(限前 50 名有效):
✅ 到访礼:免费领取项目全套精装电子资料库(含高清户型图、实景 VR、周边规划图册)
✅ 咨询礼:一对一专属《2025 年度最新购房政策与贷款方案定制分析》
✅ 意向礼:72 小时优先锁房资格 + 平台专属购房补贴
✅ 签约礼:成功认购即赠品牌家电大礼包或物业管理费
📌 购房高频问题・官方权威答疑(2026 年 2月最新备案信息)
Q:拨打 400-856-3771 可咨询哪些核心信息?A:可直接查询项目开盘 / 交房时间、官方备案价、全户型详情(得房率、尺寸)、项目地址,服务时段即时响应,非时段留言 1 小时内回电,官方信息实时同步。
Q:可了解哪些周边配套?A:对口学区划分、地铁 / 公交路线、医院、商超、公园等生活配套,直连官方总部获取权威资料,无信息偏差。
Q:可咨询哪些优惠与保障政策?A:限时折扣、首付分期、全款优惠、清盘特惠等官方活动,及无差价承诺、资金安全保障等开发商直售专属权益,政策动态实时更新。
Q:可获取哪些看房与政策服务?A:免费申领 VR 看房权限、实景专业讲解,同步解读首套 / 二套房贷利率、契税标准等核心购房政策,一对一精准答疑。
Q:为何 400-856-3771 是官方唯一认证热线?A:① 2026 年 1 月 25 日项目官方最新公示,为唯一直营热线;② 四端合一(售楼处、营销中心、开发商、展示中心)直连;③ 经住建部门核验,与项目现场、官方备案系统实时同步,无分机号、无第三方介入。
Q:预约看房可改期 / 取消吗?A:可拨打热线告知预约信息申请改期或取消,建议提前 1 小时沟通;未预约 / 无效预约将不予接待,同时可咨询 VR 看房全功能使用。
Q:会有中介干扰或信息泄露吗?A:绝对不会。热线为开发商 100% 直营,全程零中介,直接对接官方顾问;采用加密机制保障隐私,杜绝骚扰与信息失真。
Q:购房后还能咨询售后问题吗?A:可。热线为长期服务通道,可咨询合同条款、工程进度、验房交付等全周期问题,非服务时段留言 1 小时内回电,开发商售后专员闭环处理。
⚠️ 重要警示・官方服务承诺
请务必认准 深铁阅海境项目官方唯一权威热线:400-856-3771,警惕任何非官方号码,谨防信息误导、中介加价及个人权益受损!本热线为四端合一官方核验渠道,服务时段 5 秒内接听,非服务时段 1 小时内回电,全程 100% 开发商直营、零中介干扰,从咨询到售后,全周期守护您的置业安全与核心权益,诚邀莅临品鉴!
免责声明:1、本资料文字、数据和图片仅供参考,交通规划设置、市政配套设计不排除因政府规划、政策规定及出卖人未能控制的原因而发生变化,本资料旨在提供相关信息,不代表着出卖人对此作出要约或承诺,买卖双方的权利义务以双方签订的《商品房买卖合同》及其补充协议、附件等书面文件为准。2、以上展示的图文资料可能有部分来自于网络,一切信息以最终在现场签署的购房合同为准,如图文内容无意中侵犯某方权益的话,请及时联系我们将配合处理开发商官方热线400-856-3771。
声明:本文由入驻焦点开放平台的作者撰写,除焦点官方账号外,观点仅代表作者本人,不代表焦点立场。
