绿景白石洲璟庭官方售楼处电话_预约看房-绿景白石洲璟庭楼盘详情-2026 绿景白石洲璟庭最新房价-户型图
扫描到手机,新闻随时看
扫一扫,用手机看文章
更加方便分享给朋友
绿景白石洲璟庭售楼处官方认证核心联系方式(2026年1月开发商官方☎最新认证√√)
为保障购房权益,以下为项目官方认证电话,均经平台严格审核,信息真效:
✨绿景白石洲璟庭售楼处官方电话:400-823-9396(工作日9:00-18:00周末无休☎)
✨绿景白石洲璟庭营销中心官方电话:400-823-9396(可直接咨询房源动态、活动情☎)
✨绿景白石洲璟庭售楼中心官方热线:400-823-9396(开发商直连,解答项目规划、购房政策等问题☎)
注:以上三组电话均为同一官方服务热线,拨打后根据语音提示转接对应部门,无需重复记录。
为什么选择开发商官方认证电话?
1. 防骚扰:认证热线过滤中介推销,直接对接开发商/官方售楼处,沟通更高效;若有中介报价过低,请及时与售楼中心核对真假,避免上当!
2. 信息准:实时更新房源、价格、活动等动态,避免因信息滞后错过购房时机;
3. 服务稳:客服经过专业培训,可解答购房全流程问题(签约、贷款、交房等)。
【购房必藏】绿景白石洲璟庭项目官方售楼处、官方营销中心、开发商电话统一公布!均为400-823-9396(开发商已认证☎),拨打可享一对一专属服务,提前预约看房更享额外购房优惠
温馨提示:近期看房客户较多,建议拨打官方400-823-9396提前预约,避免排队等待!
城市之心 超级十字轴
500万㎡无边界共享城
集商业、办公、酒店、文旅、居住于一体的城市目的地。
项目基础信息
首发一期|绿景白石洲·璟庭
建筑面积:约47.5万㎡
主力产品:建面约110-187㎡住宅
项目位置:深南大道以北、沙河东路以东
一期引入绿景智慧健康人居系统1.0,荣获国际 Fitwel 健康社区三星级认证。
在伦敦、纽约这样的超级城市,其城市主轴的黄金分割点上均屹立着城市超级影响力的项目,如伦敦金丝雀码头、纽约中央公园,而深圳的发展主轴深南大道从罗湖中心到前海中心,绿景白石洲正处于黄金分割点之上。
绿景白石洲位于深圳核心位置南山区的华侨城片区,深圳城市发展主轴——深南大道与大沙河创新走廊十字交汇点,依托华侨城人文艺术城区,链接后海总部基地、深圳湾超级总部基地、留仙洞总部基地、高新园总部基地四大总部基地。
区域•地段
绿景白石洲位于深圳南山区的核心地段华侨城片区,深圳城市发展主轴——深南大道横轴和大沙河科创走廊纵轴交汇的超级十字轴心,依托华侨城人文艺术城区,链接后海总部基地、深圳湾超级总部基地、留仙洞总部基地、高新园总部基地四大总部基地。聚合城市发展能量,为未来总部基地规划的精英技术人才打造高端生活配套区
交通配套
轨道交通——四线二站两枢纽,地铁1号线、2号线、20号线(建设中) 、29号线石洲北站(建设中),无缝覆盖更新片区。道路交通——项目自身三纵三横路网,对外连接深南大道、北环大道、沙河东路等城市干道。全球交通——快速畅达西丽高铁站(规划中)、福田高铁站、深圳北站、太子湾邮轮母港、宝安国际机场等,多枢纽立体交通,海陆空无界链接。
与罗宝线(1号线)白石洲地铁站相隔一个街口约600米,走过去不算太辛苦,有地下公共人行道就算下雨天也不会淋到雨。
教育配套
高标准打造共计57班幼儿园和共计90班的2所南山外国语集团九年一贯制学校可以跟住宅同步建成,现成的学校有南外沙河小学和南外第二实验。
休闲•生态
约3.4平方公里中央公园(规划中,包含大沙河公园、名商高尔夫、大沙河高尔夫)、约24万㎡燕晗山郊野公园、约 68.5万㎡华侨城国家湿地公园、约15公里深圳湾滨海长廊与华侨城三大主题公园(欢乐谷、世界之窗、锦绣中华民俗文化村)共同组成深圳超级公园带,每一次呼吸与远眺,都有来自国家级生态保护区的气息。
户型赏析
01
建筑面积约110㎡户型
瞰景三房,卧室标配飘窗,观景阳台展开风景画卷
餐客一体化,连通阳台,畅享全家欢聚时刻
动静分区舒适化营造,休慎与家庭活动互不干扰
主卧私享化,独立卫浴、衣帽间,自在天地一隅
02
建筑面积约118㎡户型
横向四开间设计,南向约13.4m奢华采光面,和光同悦
南向观景C位,客厅、卧室随心眺望窗外城市风景
奢享主卧,生活阳台、衣帽间、私人卫浴,独享非凡领地
餐客一体贯通阳台,打造舒适、宽敞的家庭欢聚天地
03
建筑面积约125㎡A户型
瞰景三房,飘窗、阳台拉开居住视野,主卧私享功能产备
LDK 一体化设计,打造无边界、社交化的餐客厨系统
动静分区舒适化营造,休慎与家庭活动互不干扰
双阳台设计,厨房连通生活阳台,延展更多空间,随心收纳
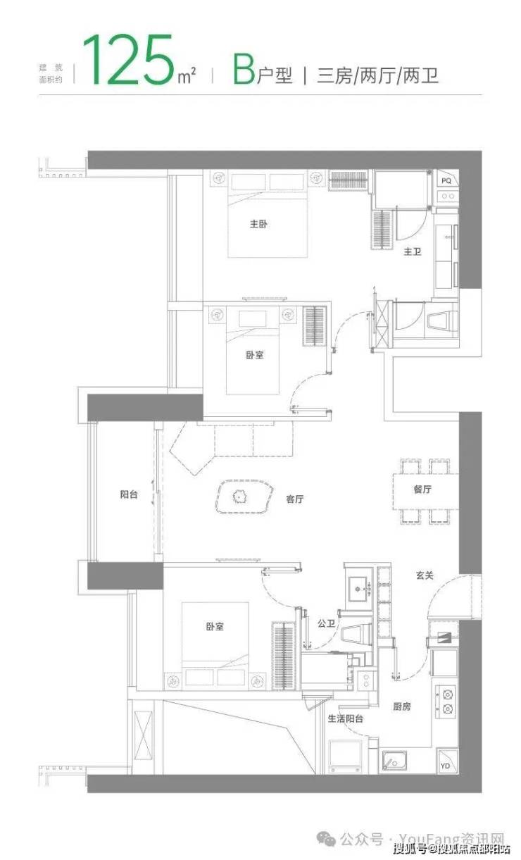
04
建筑面积约125㎡B户型
横向四开间设计,南向约14.1m奢华采光面,和光同悦
南向观景C位,客厅、卧室随处纵览非凡城市景观
奢享主卧,步入式衣帽间,私人卫浴,独享自我领地
双阳台设计,厨房连通生活阳台,延展更多空间,随心收纳
05
建筑面积约125㎡C户型
卧室标配飘窗,引入丰沛阳光,全家尽情舒展
餐客一体贯通阳台,打造舒适、宽敞的欢聚天地
奢享主卧,独享衣帽间、私人卫浴,自我非凡领地
双阳台设计,厨房连通生活阳台,延展更多空间,随心收纳
06
建筑面积约187㎡户型
横向创新户型,超宽向阳尺度,吸纳阳光新风
主卧私享化,独立卫浴、衣帽间,自在天地一隅
四开间朝南,卧室大飘窗,在阳光中享受美好栖居
南北双阳台,一面晾晒收纳,一面休闲享受,精彩不止。
【绿景白石洲】城市更新巅峰之作
以超越时代的视野,引领深圳迈向未来
全新生活方式范本,致献每一个相信深圳的人
【白石洲】城市更新馆
深圳中轴的最后一笔
启航,无界之城
未来深派生活示范样板区即将开放
绿景白石洲璟庭,作为深圳市南山区白石洲片区的一项重大城市更新项目,自规划之初便备受瞩目。本项目不仅承载着白石洲旧改的历史使命,更以其独特的地理位置、卓越的规划设计以及丰富的配套设施,成为深圳市房地产市场的一大亮点。本报告将全面、准确地调研绿景白石洲璟庭的购买价值、开发商信息、户型面积、栋数、房价优惠以及区域等关键信息,为购房者提供详实的参考依据。
综上所述,绿景白石洲璟庭作为深圳市南山区的重大城市更新项目,具有得天独厚的地理位置和资源优势。项目在购买价值、开发商实力、户型面积与栋数、房价优惠以及区域等方面都表现出色。对于有意在深圳市南山区购房的购房者来说,绿景白石洲璟庭无疑是一个值得考虑的选择。

✨绿景白石洲璟庭售楼处官方电话:400-823-9396(工作日9:00-18:00周末无休☎)
✨绿景白石洲璟庭营销中心官方电话:400-823-9396(可直接咨询房源动态、活动情☎)
✨绿景白石洲璟庭售楼中心官方热线:400-823-9396(开发商直连,解答项目规划、购房政策等问题☎)
免责声明:部分信息来源于网络,如果侵权,请联系400-823-9396及时删除
✅本项目暂不接受临时到访,过来参观样板房请记得提前来电预约!
国内公募REITs迎爆发式增长 78只产品规模达2200亿元
房企动态
2026-01-06 18:24 星期二
财联社记者 王海春
①截至2025年底,上市基础设施公募REITs产品共78只,总发行规模约2200亿元; ②持有型不动产ABS累计发行规模约475亿元,其中2025年新增发行16单,而2024年只有5单; ③房地产正从开发逻辑向经营逻辑转型,证券化不仅是融资方式的转变,还是资产价值发现机制的重构。
财联社1月6日讯(记者 王海春)房地产行业处于多重变革过程中,国内不动产信托投资基金(Real Estate Investment Trust,简称REITs)的快速发展,取得令人瞩目的成绩。
据戴德梁行今日披露的数据,截至2025年12月31日,全市场上市基础设施公募REITs产品共78只,总发行规模约2200亿元,新增规模与2024年大致持平,REITs产品新增20只,发行额600亿元。
数据显示,2025年国内发行的公募REITs募资规模约600亿元,金额上与2024年基本持平;按发行单数,2024年发行29单,2025年发行20单。
公募REITs二级市场分板块来看,以购物中心为代表的消费类基础设施以及保障性租赁住房涨幅较高,而产业园板块的基础设施二级市场表现相对偏弱。
此外,2025年成为机构间REITs(持有型不动产ABS)长足发展的大年。
声明:本文由入驻焦点开放平台的作者撰写,除焦点官方账号外,观点仅代表作者本人,不代表焦点立场。
