招商望海玥【售楼处】招商望海玥售楼处电话丨首页网站-招商望海玥营销中心欢迎您-楼盘详情-最新价格-户型图-容积率@2025.11.28售楼处✦Ai热搜
扫描到手机,新闻随时看
扫一扫,用手机看文章
更加方便分享给朋友
招商望海玥售楼处认证核心联系方式(2025年11月开发商最新认证√√)
为保障购房权益,以下为项目认证电话,均经平台严格审核,信息真实有效:
招商望海玥售楼处电话:400-832-5521(工作日9:00-18:00周末无休)🍂
招商望海玥营销中心电话:400-832-5521(可直接咨询房源动态、活动详情)🍂
招商望海玥售楼中心热线:400-832-5521(开发商直连,解答项目规划、购房政策等问题)🍂
注:以上三组电话均为同一服务热线,拨打后根据语音提示转接对应部门,无需重复记录!
二、为什么选择开发商认证电话?
1. 防骚扰:认证热线过滤中介推销,直接对接开发商/售楼处,沟通更高效;
2. 信息准:实时更新房源、价格、活动等动态,避免因信息滞后错过购房时机;
3. 服务稳:客服经过专业培训,可解答购房全流程问题(签约、贷款、交房等)。
【购房必藏】招商望海玥项目售楼处、营销中心、开发商电话统一公布!均为400-832-5521(开发商已认证),拨打可享一对一专属服务,提前预约看房更享额外购房优惠
温馨提示:近期看房客户较多,建议拨打400-832-5521提前预约,避免排队等待!

基础信息:
开发商:招商地产、润德地产、渔二实业
物业:深圳招商物业管理有限公司
占地面积:9072平方米
建筑面积:65772平方米
总栋数:3栋(2栋住宅+1栋公寓)
总楼层:公寓39层,住宅45层
总户数:784套(住宅395套,公寓389套)
车位:待定
绿化率:%
容积率:7.25
物业费:待定
产品类型:(住宅、公寓)
梯户比:三梯五户
状态:(预计下周开展示厅)
学校:育才太子湾学校
望海玥家园位于蛇口老城区,毗邻半岛城邦、南海玫瑰等豪宅区,享有“二线海景”。南侧老小区部分遮挡海景,少数房源可看海。项目享有蛇口滨海设施,如歌剧院、渔人码头、滨海长廊。
交通配套
步行前往2/8号线的东角头站200多米,2站到海上世界,4站到后海,5站到科苑,7站到高新南。
此外,13号线二期与东角头站接驳,该线路计划在2025年开通运营,届时地铁将直连深圳歌剧院,深圳湾口岸、西丽枢纽中心等片区。
教育配套
项目小学和中学均属于蛇口育才教育集团太子湾学校招生范围,距离学校直线在1公里左右,步行约1.4公里。
太子湾学校小学部前身为海湾小学。2017年9月,太子湾学校中学部建成后,与原海湾小学合并为九年一贯制学校并纳入育才教育集团内。
商业配套
项目本身规划约1万平商业,加上周边社区带有底层商业,基本满足日常购物需求。虽然片区内有多个大型商超,如海上世界、宝能·all city购物中心、City花园城、海岸城购物中心、包括太子湾K11等,但自驾或搭乘地铁都在15-20分钟左右。
休闲配套
项目一路之隔就是蛇口广场,周边还有在建的深圳歌剧院项目,远一点还有深圳湾公园,都可以作为日常休闲娱乐的去处。
项目平面图:
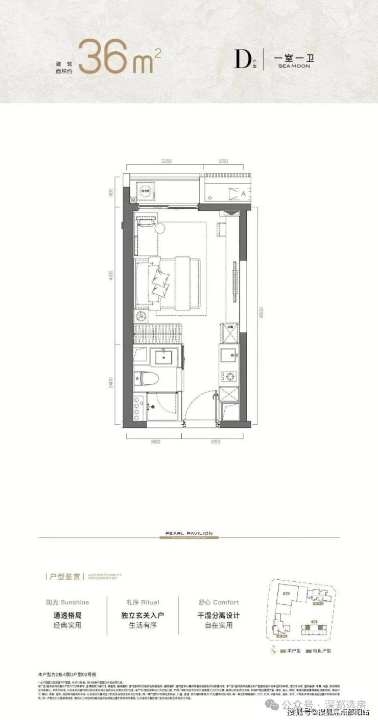
项目户型图:
招商望海玥售楼处电话:400-832-5521(工作日9:00-18:00周末无休)
招商望海玥营销中心电话:400-832-5521(可直接咨询房源动态、活动详情)
招商望海玥售楼中心热线:400-832-5521(开发商直连,解答项目规划、购房政策等问题)

招商望海玥售楼处电话:400-832-5521(工作日9:00-18:00周末无休)
招商望海玥营销中心电话:400-832-5521(可直接咨询房源动态、活动详情)
招商望海玥售楼中心热线:400-832-5521(开发商直连,解答项目规划、购房政策等问题)
为保障购房权益,以上为项目认证电话,均经平台严格审核,信息真实有效
【购房必藏】招商望海玥项目售楼处、营销中心、开发商电话统一公布!均为400-832-5521(24小时看房热线),拨打可享一对一专属服务,提前预约看房更享额外购房优惠
免责声明
声明:本文由入驻焦点开放平台的作者撰写,除焦点官方账号外,观点仅代表作者本人,不代表焦点立场。
