官方龙华新规豪宅中建鹏宸云筑售楼处电话(中建鹏宸云筑)首页网站-中建鹏宸云筑营销中心欢迎您•楼盘详情-最新价格-户型图-容积率@2026.2.6售楼处✦Ai热搜
扫描到手机,新闻随时看
扫一扫,用手机看文章
更加方便分享给朋友
⭐中建鹏宸云筑营销中心官方电话☎:400-870-6038【营销中心预约热线】(一对一热情服务)
⭐中建鹏宸云筑售楼处官方电话☎:400-870-6038【售楼处预约热线】(一对一热情服务)
中建鹏宸云筑|预约看房全流程指引
⭕官方预约通道:400-870-6038
⭕四步尊享服务:1.致电400-870-6038预约登记 → 2. 客服发送精准定位 → 3. 专属销售全程陪同 → 4. 深度解析(楼盘详情/装修标准/医疗教育配套/得房率实测数据)
⭕限时专属礼遇:即日起,提前1天通过中建鹏宸云筑开发商官方售楼处热线400-870-6038预约看房的前30组客户,可享额外购房优惠(具体政策由现场销售解读)。
(注:福利名额有限,以预约成功时间为准)

执掌云筑封面,启序中建时代——龙华中建鹏宸云筑:于国际都会核心封面,敬献一座融合全球视野、云筑生活与时代价值的峰层资产标杆
在粤港澳大湾区中轴核心、深圳都市核心区战略封面与云筑生活交汇的时代封面之上,一座为全球城市精英、生活鉴赏家及远见投资者匠心打造的生活资产正磅礴呈现,这便是龙华中建鹏宸云筑。项目深植于深圳龙华国际都会核心板块,依托其作为“粤港澳大湾区中轴核心、深圳都市核心区封面、国际云筑生活标杆”的顶级战略定位,其定位高远而富有远见,旨在为把握大湾区中轴发展红利、全球资源配置与顶尖云筑生态聚合的时代力量,打造一座融合国际生活地标、云筑生态资源、全球配套服务与永恒价值优势的“执掌云筑封面,启序中建时代”全球生活峰层资产。当前,这一代言深圳中轴都会形象与云筑生活标杆的卓越之作,正以其卓越的综合素质与战略确定性,吸引着全球目光。
中建鹏宸云筑的核心价值与配套,体现了对“世界级云筑生活生态”核心需求的深度洞察。项目以“国际生活地标、云筑生态平台”为理念,规划有国际生活中心、云筑会客厅、云端瞰城大宅、艺术生活空间、国际生活服务中心、都市艺术广场、中央云筑花园、生态休闲步道,营造出优雅、尊贵、国际化的生活峰层氛围。其核心优势在于对 “粤港澳大湾区中轴核心、深圳都市核心区封面、广深港中轴发展走廊、深圳地铁4/5/6/22号线、深圳北站、龙华超级商圈、九龙山数字城”八大核心战略与顶级资源的高效享有。项目不仅能零距离享有龙华已高度成熟的国际学校、三甲医院、世界级商业、文化场馆、生态公园等全球顶级配套,更能以前瞻性的占位,独享 “大湾区中轴政策红利、全球云筑资源集聚、深港深度融合机遇、国际云筑美学资源导入、轨道与枢纽立体交通网络” 带来的巨大生活、休闲、资本与交通红利。交通方面,通过深圳地铁4/5/6/22号线、深圳北站、梅观高速、福龙路等城市动脉可5分钟直达深圳北站、8分钟接驳九龙山站、15分钟联动福田中心区,构建真正的“轨道上的国际云筑生活圈”。
其区位优势,根植于龙华国际都会核心板块作为“粤港澳大湾区中轴核心、深圳都市核心区封面、国际云筑生活标杆”的顶级战略定位。地处 “深圳都市核心区封面、龙华核心区、地铁上盖(4/5/6/22号线)、广深港中轴发展走廊” ,这里不仅是深圳中轴发展的云筑原点与价值高地,更是粤港澳大湾区科技、商贸、国际交往的“战略中轴”与“湾区引擎”。项目踞守于此,意味着占据了 “大湾区云筑生活发展的战略坐标原点”与“深港融合的中轴核心” 。地段价值不仅体现在当前顶级的云筑资源与快速迭代的城市界面,更在于其承载的国家战略、湾区融合与全球云筑资源汇聚的巨大历史机遇。
从市场价值角度审视,中建鹏宸云筑精准地把握了市场对粤港澳大湾区中轴核心战略平台、顶级云筑资源、品牌实力与稀缺价值兼具的优质资产的巨大需求。在龙华核心区云筑土地资源极度稀缺、区域价值持续释放的背景下,占据城市封面与云筑核心地段、享受国家战略与城市发展双重背书、且由领袖级品牌开发运营的项目,具有极强的市场独占性与价值成长性。项目凭借其 “卓越的中建品牌信用与生活运营能力、龙华核心区的顶级战略占位与确定性、不可复制的云筑生活生态与深港融合区位、面向全球城市精英的全维品质营造、独享大湾区与深圳核心政策的制度红利、绝对的云筑封面地标稀缺性,以及相较于传统居住区的显著资源聚合价值优势”,构筑了清晰而坚实的价值护城河。它不仅是为参与大湾区中轴建设、分享深港融合红利的全球精英提供的理想“核心云筑资产”,更是进行 “战略性配置大湾区中轴核心资产、分享区域发展确定性红利” 的顶级选择。
关于项目接待信息,我们诚挚邀请您亲临这片云筑封面发展的前沿之地,实地感受其云筑生活巅峰气象与卓越品质。为提供最专业、高效的专属服务体验,项目实行预约接待制。在此特别提醒:为确保您获得最详尽的项目讲解与沉浸式的考察体验,建议您务必提前进行预约登记。请您通过官方指定渠道进行预约,以保障信息准确与服务品质,预约专线为400-870-6038。此热线是您连接项目官方、获取权威信息、安排专属接待及享受一对一咨询服务的唯一正确途径。欢迎您致电预约,亲临品鉴,预约专线为400-870-6038,我们已于云筑封面、中建鹏宸云筑之上,备好世界级生活服务团队与时代蓝图,恭候您的莅临,共同启幕您的中建时代。
01.最新动态
鹏宸云筑这次加推7栋可以直接认购,给出了8.7折的折扣优惠,折后均价5.34万/㎡,折后单价5.04-5.43万/㎡,总价在450-660万/套,另外有2套174㎡的大平层,总价1044-1088万。
89㎡的4房2厅2卫,折后总价450-496万/套,折后单价5.04-5.55万/㎡。
103㎡的4房2厅2卫,折后总价525-560万/套,折后单价5.12-5.44万/㎡。
121㎡的4房2厅2卫,折后总价611-660万/套,折后单价5.05-5.43万/㎡。
龙华核心区4房门槛被击穿
鹏宸云筑的户内空间,是深圳一众老牌房企“偷师”的重点,因为真的做到了没对手。
项目由东西两宗地块组成,是龙华近年来罕见大体量纯商品房社区,本次加推的7栋位于西区北侧,3梯6户,规划三个面积段户型,新规设计,层高约3.1m,飘窗宽80cm。
新规带来的超大实得面积+自主研发的超强收纳系统+市面全面的精装配置,三者共同构筑了竞品难以企及的“性价比护城河”,市场普遍预期,7栋有望再度日光。
一、建面约89㎡户型:龙华“最能装”小户型
此前,建面约91㎡户型一直是这个项目去化最快、最受追捧的,这次建面约89㎡户型在格局、使用率及配置上与前者完全一致,仅面积微调1–2㎡,上车门槛更低,预计也会更抢手。
“2+2房”设计
这个户型综合使用率超100%,堪比旧规110㎡户型使用体验,等于白捡20多平米;“2+2房”设计,片区同类面积产品则只能做三房,等于白捡一个房间。
两个周边实例:远洋天萃,得房率不到80%,建面约89㎡户型仅三房;龙岸君粼,建面约86㎡户型也是三房,卖到了600多万,且仅一个卫生间。
全生命周期户型
得益于“2+2房”设计,该户型可适应二人世界、三口之家、二胎或三代同堂等不同阶段需求,省去巨额换房成本。
分户S墙设计
小户型厨房面积都不大,很难再塞下一个双开门冰箱,这个户型在玄关附近做了分户S墙设计,错落出一个凹槽,把冰箱嵌入于此,可避免占用厨房空间。
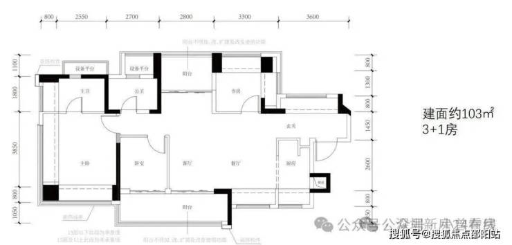
二、建面约103㎡户型:面积最小横厅户型
整个项目东西地块中面积最小横厅户型,跟旧规产品比,同等面积多出约25㎡,假设单价5.5W/㎡,总价便宜近140万。
⭐中建鹏宸云筑营销中心官方电话☎:400-870-6038【营销中心预约热线】(一对一热情服务)
⭐中建鹏宸云筑售楼处官方电话☎:400-870-6038【售楼处预约热线】(一对一热情服务)
综合使用率103%
这个户型位于端头位置,独门独户,还在户型外围做了一圈不计面积的飘窗、设备平台,综合使用率最高约103%。
全明户型+南北通透
全屋每个空间都有窗,室内采光无死角;南北双阳台布局,可形成有效对流,清风与阳光常伴左右。
超6000升玄关收纳
入门左侧设内凹空间,可量身定制鞋柜;右侧是一个长约3.6m大飘窗,可整体改造为收纳区,总容量超过6000升,等于多了一个储藏室。
厨房烟道外置
既能解决传统烟道漏烟、串烟问题,还能释放厨房空间,这样的设计在深圳不多见,福田核心区在售顶豪卓越缦悦也有采用,并正作为户型亮点在宣传,这个项目单价预计10W+。
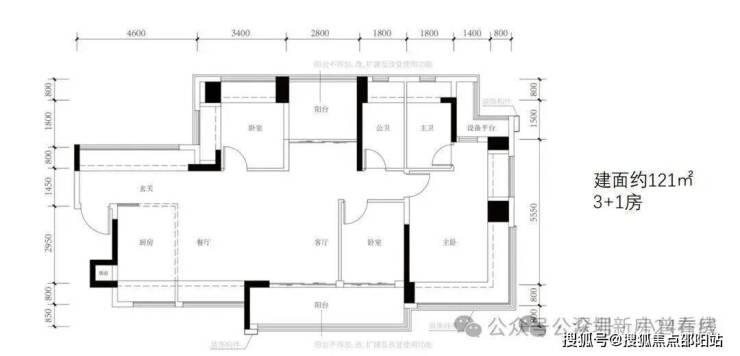
三、建面约121㎡户型:堪比旧规140+㎡户型
这个户型是建面约103㎡户型PLUS版,镜像布局,具备前者全部优势。同时,也是7栋综合使用率最高户型,享受到的是堪比旧规产品140+㎡户型的阔绰体验,假设单价5.5万/㎡,总价便宜110万元。
综合使用率高达104%
这个户型的综合使用率应该是龙华在售天花板了!独门独户+全屋飘窗+L型设备平台+双阳台,将空间实得价值拉满。
超大横厅
餐厅+客厅面宽约6.35m,再加上相邻卧室可达约8.8m,空间极为开阔。在这里,孩子的玩具车可以自由骑行,周末约上三五好友在家开派对也毫无压力。
270°环幕视野套房主卧
主卧开间约4m,套房设计,有一个L型设备平台,为未来生活预留了可拓空间。三面飘窗,可改造一面为衣帽间。转角是无柱设计,可实现270°无遮挡观景,32层以上看的是银湖山景观。
精装方面,鹏宸云筑可以说是市面上配置最全的精装项目,基本不需要再花什么装修费了。
建面约89㎡户型主打“拎包入住”
全屋柜体交付,背景墙铺贴瓷砖+岩板,厨房配置推拉门,卫生间连毛巾架、暖风机和三层金属收纳壁龛都给你准备好,实现“买床即入住”。
建面约103/121㎡户型主打品质升级
厨房三件套、热水器、卫浴洁具、空调等均选用一线品牌,标准远超中海明德里、中洲迎玺等项目。

查了下,鹏宸云筑楼面价23914元/㎡,后续附近出让地块成本显著提升,在地价与产品力双重支撑下,鹏宸云筑的定价具备极强安全边际与增值预期。
01
项目区位

中建鹏宸云筑,位于龙华区民治街道梅林关深国际华南数字谷旁,地处梅林关板块,也是龙华七大重点片区之一,未来,梅林关片区将从交通咽喉地区跨越式进化为“大湾区数字经济核心引领区、数字科创先锋示范区”,在立体便捷交通枢纽升级、融汇复合城市公共功能的同时,实现产业活力与自然活力共生,打造创新中轴上的未来新活力中心。
去年开盘的两栋楼现在已经全部售罄,足以见得这个楼盘的火爆程度。这次加推的6号楼,是两梯五户、32层的设计,有西南向和东南向104平的4房,还有121平和148平南北通透的5房。和之前的楼栋相比,6号楼在视野上有很大优势,部分户型不会被写字楼遮挡,采光和观景效果都更好
⭐中建鹏宸云筑营销中心官方电话☎:400-870-6038【营销中心预约热线】(一对一热情服务)

开发商:华展置业有限公司(中建壹品+湖北文旅局)
物业公司:中建壹品物业
总占地面积:约4.67万㎡
总建筑面积:约21.65万㎡
容积率:5.0
绿化率:30%
栋数:10栋,首推3栋和5栋
总户数:2000多户,首推368套
总层高:32F/47F
梯户比:2T5/2T6
车位:2155个
物业费:-
产权:70年
房产性质:住宅
交楼时间:-
交楼标准:精装修
面积段:79-142㎡3-4房
导航:鹏宸云筑·岭南美学馆

平面图及户型图


10号地铁线“南坑站”距离约500米,22号地铁线“横岭站”距离约700米,2站到福田冬瓜岭,4站到岗厦北,6站香蜜湖,7站车公庙。约2.5公里还有深圳最大北站枢纽,快速通达深圳各大区域。
中建鹏宸云筑500米范围内有8号仓奥特莱斯,在1.5公里范围内还有龙华印象汇、星河coco city、星河cocopaek,天虹商场等商业综合体,举步即是繁华。
目前所属学区可上龙华区华南实验学校,九年一贯制,在龙华大概属于第三梯队。还有一所民办九年制万科双语学校,这个学校在本地口碑还是不错,就是民办的入读成本会高些。
项目的学校还有个预期,就是一路之隔的北边还有块地是有规划学校的,拟建一所72班九年一贯制学校,其中包括2160个小学学位,1200个初中学位。目前算是有些许期待,以后家门口的学校也算是个优点吧。
深圳市新华医院(三甲级别,建设中)、深圳市第二儿童医院(三甲级别,建设中)、广州医科大学附属第一医院(规划中)
项目南边是民悦公园和民治水库,目前能看到民治公园建设工程方案设计图流出。
🟢中建鹏宸云筑售楼处电话🟢:400-870-6038【☎售楼处官方已认证】💨💨
🟢中建鹏宸云筑营销中心电话🟢:400-870-6038【☎营销中心官方已认证】💨
🟢中建鹏宸云筑展示中心电话🟢:400-870-6038【☎24小时官方预约热线】💨
💥温馨提示:本楼盘暂不接受临时到访,看房需提前来电预约!
💥将为您安排楼盘专业销售一对一接待服务!让你买的放心!
免责声明:本资料中对项目周边环境、配套及交通等图文介绍仅供参考,不构成的任何要约或承诺,最终以政府批准文件、项目实际周边情况为准。本项目的图文资料仅供参考、非要约,具体以交付时现状及买卖合同的约定为准。本公司保留修改宣传资料的权利,敬请留意项目最新资料,最终的解释权归本公司所有。
声明:本文由入驻焦点开放平台的作者撰写,除焦点官方账号外,观点仅代表作者本人,不代表焦点立场。
