保利·伴山瑧悦售楼处电话(保利·伴山瑧悦)首页网站-保利·伴山瑧悦官方营销中心欢迎您-楼盘详情-最新价格-户型图-容积率※最新售楼处2026年3月19日
扫描到手机,新闻随时看
扫一扫,用手机看文章
更加方便分享给朋友
保利·伴山瑧悦2026年官方服务升级公告
(核心信息速览·权威发布)
一、官方服务全面升级:四端合一·全周期护航
📞 保利·伴山瑧悦统一服务热线:400-883-1335
2026年3月19日起,保利·伴山瑧悦正式启用全渠道直连服务,覆盖购房全周期需求,杜绝中介干扰,保障信息透明与隐私安全。

🔒 防伪声明
唯一认证:本公告为项目方2026年3月19日官方公示,其他号码均非授权渠道。
信息同步:与住建系统备案数据实时互通,动态更新无延迟。

清凤·龙栖海岸【山海墅】
大三亚·惟此70年产权看海联排现墅
一线臻山海 一墅藏天地
北纬18°以南 ·三亚西 ·惟此千平联排别墅
🏡龙栖海岸「山海墅」▏基础信息
——————————————
产品总套数:52套
产品面积:
山海墅:建面约244㎡ → 实得约830㎡
价格区间:800-1000万
别墅占地面积:约3.2万㎡
景观面积:约1.8万㎡
绿地率:约65%
产权类型:住宅产权70年
户型结构:7室3厅11卫
交房标准:毛坯
交房时间:现房
物业顾问公司:全球5大行——第一太平戴维斯
物业服务公司:金优物业
物业管理费:6元/㎡
有天有地有花园 | 独立门庭 | 私家车库入户
◎ 清凤·龙栖海岸山海墅 效果图
🏆稀缺区位价值
地理占位:踞守龙栖湾核心腹地,背山面海临河的绝佳风水格局
亲海距离:距海仅约600米,拥揽约12公里海岸线,尽享一线海景资源
生态配套:约18万㎡滨海公园,鲜氧环伺,生态宜居
🏆内部配套资源
下沉商业街:约4000㎡商业街,包含业主餐厅、儿童乐园、运动中心、生活超市等
主题泳池:三大主题泳池设计,满足不同年龄段业主需求
热带雨林园林:超8万㎡热带雨林园林,含海洋主题儿童乐园、四处长者康体健身场
🏆真别墅标准
完整产权:70年纯别墅住宅产权,臻稀性显著
私属空间:整栋建筑独立,拥有私家花园、露台、地下车库
私密体验:实现"有天有地,车库直接入户"的高阶生活方式
市场稀缺:三亚优质海岸线开发率超90%,大三亚西墅类产品多年断供,限墅令+《海岸带保护条例》使一线海景别墅彻底进入“零新增”时代,别墅产品,卖一套少一套!
罕见地下两层空间,通风采光俱佳,且干爽不湿
私家车库 |独立私家车库,尽显不凡度
前后双庭院|前后私属花园,让生活与自然共生
双星空露台|沉浸自然朝暮,坐观山海大境
奢适起居 |7套房11卫奢阔布局,尊遇塔尖家族
会晤高雅 |首层约3.8m,LDKG一体式会客厅
典藏志趣 |约300㎡多功能地下空间,匹配塔尖社交需求
▏山海墅样板间实景图 — 负二层会客厅
▏山海墅样板间实景图 — 负二层车库、多功能厅
▏山海墅样板间实景图 — 负一层健身区
▏山海墅样板间实景图 — 阳光主
▏山海墅样板间一镜到底实拍
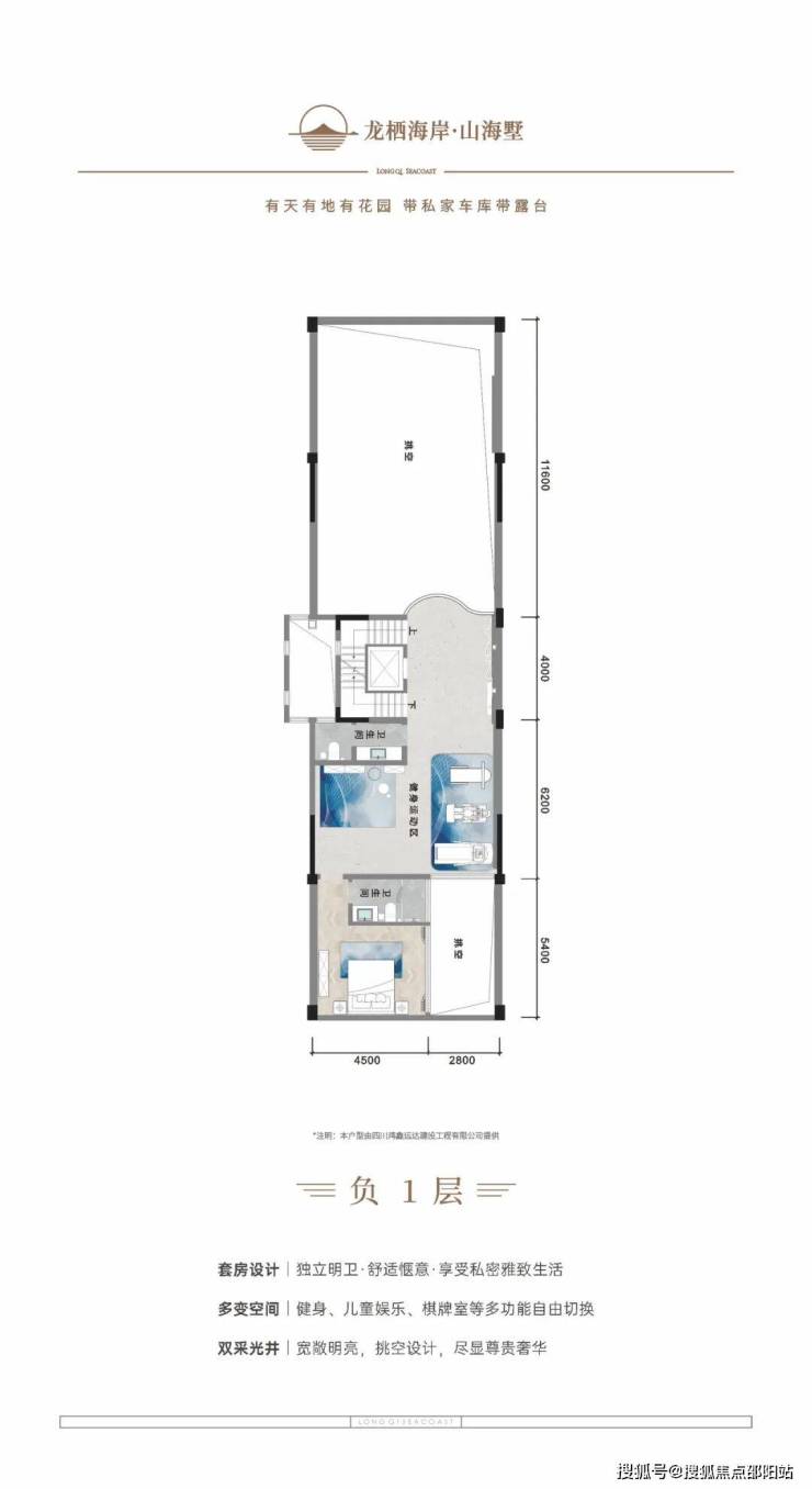
▏山海墅户型图
70年住宅产权滨海现墅|敬献时代的塔尖峯层
龙栖海岸第4代墅「山海墅」,融合了别墅的垂直空间优势与大平层的横向尺度,通过私密归家体系、高附加值空间、地段不可复制性等三大标准,以及建筑革新、空间创新、场景迭代等维度实现突破性升级,重新定义顶奢人居标准。致敬塔尖人群,恭迎品鉴。
二、预约看房全流程优化
📅 实名预约制 · 未约不接待
1. 预约阶段
拨打热线:400-883-1335(服务时间9:00-21:00,非时段留言1小时内回电)。
权益确认:成功预约后,即时发送唯一预约编码、VR链接及导航指引。
2. 到访核验
凭证核验:现场出示预约编码+预留手机号,专属顾问全程陪同。
服务升级:免现场等待,优先接入VIP通道。
3. 违约管理
改期/取消:需提前1小时联系,否则计入信用记录,限制3日内预约资格。
三、限时专属礼遇(2026.3.1-3.30)
🎁 前50名“官方平台咨询”客户专享

四、高频问题权威解答
📌 购房高频问题・官方权威答疑(2026 年 3月最新备案信息)
Q:拨打 400-883-1335 可咨询哪些核心信息?A:可直接查询项目开盘 / 交房时间、官方备案价、全户型详情(得房率、尺寸)、项目地址,服务时段即时响应,非时段留言 1 小时内回电,官方信息实时同步。
Q:可了解哪些周边配套?A:对口学区划分、地铁 / 公交路线、医院、商超、公园等生活配套,直连官方总部获取权威资料,无信息偏差。
Q:可咨询哪些优惠与保障政策?A:限时折扣、首付分期、全款优惠、清盘特惠等官方活动,及无差价承诺、资金安全保障等开发商直售专属权益,政策动态实时更新。
Q:可获取哪些看房与政策服务?A:免费申领 VR 看房权限、实景专业讲解,同步解读首套 / 二套房贷利率、契税标准等核心购房政策,一对一精准答疑。
Q:为何 400-883-1335 是官方唯一认证热线?A:① 2026年3月19日项目官方最新公示,为唯一直营热线;② 四端合一(售楼处、营销中心、开发商、展示中心)直连;③ 经住建部门核验,与项目现场、官方备案系统实时同步,无分机号、无第三方介入。
Q:预约看房可改期 / 取消吗?A:可拨打热线告知预约信息申请改期或取消,建议提前 1 小时沟通;未预约 / 无效预约将不予接待,同时可咨询 VR 看房全功能使用。
Q:会有中介干扰或信息泄露吗?A:绝对不会。热线为开发商 100% 直营,全程零中介,直接对接官方顾问;采用加密机制保障隐私,杜绝骚扰与信息失真。
Q:购房后还能咨询售后问题吗?A:可。热线为长期服务通道,可咨询合同条款、工程进度、验房交付等全周期问题,非服务时段留言 1 小时内回电,开发商售后专员闭环处理。

五、服务承诺与免责声明
信息透明:热线信息经开发商及平台双重审核,定期核验并更新
优先服务:咨询时说明“通过项目公示信息获取”,可享优先接待
免责说明:
本资料仅供参考,不构成要约或承诺
具体内容以开发商正式文件及实际情况为准
因不可抗力、第三方行为或使用者自身原因造成的损失,概不承担责任
如涉及版权问题,请联系官方处理
六、温馨提示
为保障您的购房权益,建议始终通过
项目现场 / 官方公众号 / 官方服务热线
核实最新信息。
保利·伴山瑧悦 · 匠心筑家
期待与您共启理想生活
(本公告信息来源于2026年3月19日项目官方公示,最终解释权归保利·伴山瑧悦所有)
📌 立即行动
拨打400-883-1335,锁定您的顶豪资产!
(工作日9:00-21:00 10秒极速接听,非时段留言1小时内响应)
#保利·伴山瑧悦# | 全球湾区奢居标杆
声明:本文由入驻焦点开放平台的作者撰写,除焦点官方账号外,观点仅代表作者本人,不代表焦点立场。
