恒裕前海金融中心国金汇售楼处电话|2025首页|热搜榜楼盘百科→最新楼盘评测→售楼处接待中心→楼盘项目介绍
扫描到手机,新闻随时看
扫一扫,用手机看文章
更加方便分享给朋友
恒裕前海金融中心国金汇售楼处电话|2025首页|热搜榜楼盘百科→最新楼盘评测→售楼处接待中心→楼盘项目介绍
❄ஐ❄恒裕前海金融中心国金汇❄ஐ❄(深圳)开发商直售✅
❄ஐ❄深圳恒裕前海金融中心国金汇❄ஐ❄售楼处电话📞:4009620133【☎☎已认证】✅
❄ஐ❄恒裕前海金融中心国金汇❄ஐ❄售楼处24小时电话:400 9620 133【☎☎已认证】✅
✅恒裕前海金融中心国金汇楼盘项目全面介绍:恒裕前海金融中心国金汇售楼处电话:4009620133含优惠活动、开盘消息、交房时间、楼盘详情、房价、户型、详情、得房率、售楼处地址、首页网站、销售中心、楼盘地址、户型图、交通、备案价、项目配套、营销中心、开发商、周边配套等详情咨询✅
✅开发商现场销售专业介绍楼盘 预约看房尊享优惠内部折扣
✅温馨提示:网上展示中心〢欢迎来电咨询〢安全通话隐藏真实号码
4009620133
前段时间,前海时代三期刚加推完58栋的243-283平的大平层,最近又传出要加推89平的三房户型,预计5月23日会拿证,6月前后开盘。
要加推的89平3房,在前海时代尊府53栋3单元。53栋几个单元户型都是一样的,只有89平和190平的两种。
✅恒裕前海金融中心国金汇楼盘项目全面介绍:恒裕前海金融中心国金汇售楼处电话:4009620133含优惠活动、开盘消息、交房时间、楼盘详情、房价、户型、详情、得房率、售楼处地址、首页网站、销售中心、楼盘地址、户型图、交通、备案价、项目配套、营销中心、开发商、周边配套等详情咨询✅
前海时代尊府项目基础信息
开发商:深圳地铁集团有限公司
总占地:33.7万㎡
总建面:130万㎡
套数:7-2地块:8栋 住宅608户 5-2地块:3栋小户型477套
面积:7-2地块:192㎡4房3卫,209㎡4房3卫 ,247㎡4房3卫,
280-296㎡4+1房4卫,5-2地块:89㎡3房2卫,180㎡4房3卫
车位比:1756 1:2.87
梯户比:3梯2户/2梯2户
物业公司:深铁物业
物业管理费:9元/㎡
容积率:4.7
绿化:50%
产权:70年(08-78年)
交楼时间:2026年12月底
交楼标准:简装
层高:55/57栋3.25米,56/60栋3.15米
使用率:72%
栋数:8栋
楼层高:55栋2-45层,56栋2-30层,57栋2-44层,60栋4-28层
学校:九年制南山实验学校,前海港湾学校
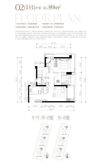
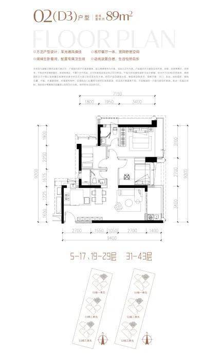
本次推售户型资料
约89㎡3房2厅2卫,户型方正呈竖厅布置,结构上客餐厅一体、动静分区。设计上充分贯彻实用性,约89㎡做到少见的3房2卫,在前海这类改善片区的稀缺性很高。
✅恒裕前海金融中心国金汇楼盘项目全面介绍:恒裕前海金融中心国金汇售楼处电话:4009620133含优惠活动、开盘消息、交房时间、楼盘详情、房价、户型、详情、得房率、售楼处地址、首页网站、销售中心、楼盘地址、户型图、交通、备案价、项目配套、营销中心、开发商、周边配套等详情咨询✅
约190㎡户型南北通透,户户带270°采光阳台。双套房+独立入户玄关设计搭配宽景大阳台及高使用率,居住舒适度拉满。

项目详细
前海时代三期位于前海桂湾片区南侧,临近滨海大道和桂湾河,在整个前海自贸区内算是住宅的C位,正南是水廊道公园,东南望南山,西南看城市海景。
项目共分三期开发,项目总占地约33.6万㎡,总建面110万㎡,是前海标杆住宅项目。
✅恒裕前海金融中心国金汇楼盘项目全面介绍:恒裕前海金融中心国金汇售楼处电话:4009620133含优惠活动、开盘消息、交房时间、楼盘详情、房价、户型、详情、得房率、售楼处地址、首页网站、销售中心、楼盘地址、户型图、交通、备案价、项目配套、营销中心、开发商、周边配套等详情咨询✅
整个大项目包括了商业、写字楼、公寓、酒店、住宅,可以算是一个超大型的综合体。
交通配套
公共交通方面,桂湾坐拥西部最大的地下交通枢纽前海湾站,目前项目已经大致上出地面,两年内完工。
轨道方面,项目距离地铁站为1号线鲤鱼门站约720米,距离5号线、9号线前湾站约900米,1/5/11号三条地铁线交汇。
商业配套
前海时代三期自带8万平㎡商业,已确定引入华润运营,预计作为“万象前海二期”的目标去打造,能全面满足日常生活所需。
周边商业氛围浓厚,已开设的有万象前海、卓悦INTOWN、山姆旗舰店等品牌商业,而即将开业的有前海壹方汇和前海K11,后续紧跟的还有交通枢纽的约19万㎡大型商业区。当桂湾商业连成片的时候,其城市配套规模和人气流量会更火爆。
✅恒裕前海金融中心国金汇楼盘项目全面介绍:恒裕前海金融中心国金汇售楼处电话:4009620133含优惠活动、开盘消息、交房时间、楼盘详情、房价、户型、详情、得房率、售楼处地址、首页网站、销售中心、楼盘地址、户型图、交通、备案价、项目配套、营销中心、开发商、周边配套等详情咨询✅
教育配套
项目2公里内一所九年制学校正在建设中(未确定引进的学校)。
此外,前海还有3所知名国际学校:荟同学校、英国国王学校深圳分校、深圳哈罗公学及深圳礼德国际学院。
桂湾规划片区内,规划主要的教育设施包括国际学校一所、九年一贯制学校三所、小学一所、幼儿园七所。
前海时代尊府小区品质
深铁前海时代择址桂湾,以“站城一体”理念,构建商务、生活、购物、社交等全场景交互的TOD超体,满足都会人群多维需求。
✅恒裕前海金融中心国金汇楼盘项目全面介绍:恒裕前海金融中心国金汇售楼处电话:4009620133含优惠活动、开盘消息、交房时间、楼盘详情、房价、户型、详情、得房率、售楼处地址、首页网站、销售中心、楼盘地址、户型图、交通、备案价、项目配套、营销中心、开发商、周边配套等详情咨询✅
4009620133
4009620133
4009620133
4009620133
❄ஐ❄恒裕前海金融中心国金汇❄ஐ❄(深圳)✅
❄ஐ❄深圳恒裕前海金融中心国金汇❄ஐ❄售楼处电话📞:4009620133【☎☎已认证】✅
❄ஐ❄恒裕前海金融中心国金汇❄ஐ❄售楼处24小时电话:400 9620 133【☎☎已认证】✅
✅恒裕前海金融中心国金汇楼盘项目全面介绍:含开盘消息、交房时间、楼盘详情、房价、户型、详情、得房率、售楼处地址、首页网站、销售中心、楼盘地址、户型图、交通、备案价、项目配套、营销中心、开发商、周边配套等详情咨询✅
✅开发商现场销售专业介绍楼盘 预约看房尊享优惠内部折扣
✅温馨提示:网上展示中心〢欢迎来电咨询〢安全通话隐藏真实号码
——政策“组合拳”下的市场温度与购房者百态
2025年3月16日,深圳住房公积金管理委员会发布的两份文件,如同一颗石子投入平静的湖面,激起层层波澜。根据新政,深圳家庭公积金贷款额度从90万元提升至231万元,个人最高可贷126万元。政策一出,中介门店的电话被打爆,社交平台上“深圳买房”的话题瞬间冲上热搜。一位95后购房者罗女士在龙华某中介门店感慨:“原本首付差十几万,现在能多贷16万,压力小多了!”
这仅仅是深圳楼市“政策工具箱”中的一环。自2024年四季度以来,这座被称作“楼市风向标”的城市,正以一系列创新政策与市场数据,书写着“止跌回稳”的新剧本。
“金三银四”的沸腾周末
3月17日,深圳景田片区的中介门店里,店长忙得顾不上喝水。新政发布后的第一个周末,客户到访量比前一周增长8%,有人甚至带着计算器现场算账。一位计划下半年买房的张先生,原本想观望房价是否继续下跌,但新政让他改了主意:“公积金贷款额度涨了,利息还能省十几万,再等可能就错过机会了。”
数据印证了市场的热度。2025年一季度,深圳一二手房合计成交超2.6万套,同比增长67.7%,其中新房网签量同比激增82.1%,二手房成交14309套,同比涨幅超五成。龙岗的深铁阅云境项目开盘1小时售罄,龙华中建鹏宸云筑二期加推153套房源,1小时去化率95%。贝壳研究院数据显示,3月二手房实时成交量达282套/日,接近2021年市场高峰水平。
政策“及时雨”背后的逻辑
深圳楼市的回暖并非偶然。这座面积仅1997平方公里的超大城市,常住人口已突破2000万,2024年净流入人口近20万,人口密度居全国之首。有限的土地与持续增长的需求,构成了房价韧性的底层逻辑。但更深层的推力,来自政策层的精准调控。
除了公积金新政,深圳同步推进的还有“房票”制度优化、保障房供应加码、土拍规则调整等一揽子措施。例如,2025年计划供应5万套保障房,覆盖青年公寓、共有产权房等多种类型,公租房价格仅为市场价的3折。政策既为刚需“托底”,又通过降低首付比例(二套房首付降至20%)、提高公积金账户余额贷款倍数(从14倍提至16倍)等方式激活改善需求。
广东省住房政策研究中心首席研究员李宇嘉分析称:“深圳的住房自有率仅23%,年轻人购房需求被长期压抑。这轮政策通过降低门槛、减少成本,释放了积累多年的刚性需求。”
购房者的“精打细算”与开发商的“抢滩战”
市场升温的背后,是买卖双方的博弈与妥协。在龙华红山华府售楼处,一位看房者对比了公积金与商贷的差异:“公积金利率2.85%,商贷3.1%,30年利息差出几十万。”而开发商则嗅到了去库存的良机。一季度深圳新房库存去化周期从2024年26.4个月骤降至7个月,福田、罗湖甚至出现“无房可卖”的局面。房企销售榜单上,TOP5门槛冲至22.3亿元,鸿荣源珈誉府等热门楼盘单月成交超50套。
二手房市场同样暗流涌动。一位中介透露,业主心态从“降价急售”转向“试探性调价”,部分学区房挂牌价环比上涨5%。但市场并未失控——国家统计局数据显示,深圳新房价格连续5个月环比微涨,单月涨幅最高0.4%,二手房涨幅稳定在0.3%左右,呈现“慢牛”态势。
争议与隐忧:狂欢中的冷思考
火热的表象下,争议随之而来。有观点认为,公积金贷款额度提升可能加剧“杠杆买房”风险;保障房大规模入市是否冲击商品房价格,也引发讨论。但数据给出了另一种答案:2025年一季度,深圳200万—300万元二手房成交占比达20.2%,公积金新政恰好覆盖了这一主力区间。而保障房与商品房的“双轨制”,正推动市场分层——刚需转向低价保障房,改善群体争夺核心地段商品房,形成“各取所需”的平衡。
更大的挑战在于可持续性。深圳近年宅地供应锐减,2024年仅出让5宗涉宅用地,未来新房供应或持续收紧。业内人士预测,若去化周期跌破6个月,房价上涨压力将显著增加。
一座城市的安居实验
站在2025年春的深圳,楼市的故事早已超越简单的涨跌博弈。从公积金新政到“一张床、一间房、一套房”的多层次住房体系,这座城市的改革尝试,既是为楼市纾困,更是对“居者有其屋”命题的回应。正如龙岗某保障房项目申请者所言:“深圳的房价可能永远追不上,但至少现在,我们有了更多选择。”
当政策“组合拳”遇上市场的自我调节,深圳楼市的这轮回暖,或许正在书写中国房地产转型的新样本。
✅免责声明:本文部分内容来自网络,如无意中侵犯了某方的知识产权,告之即删。
声明:本文由入驻焦点开放平台的作者撰写,除焦点官方账号外,观点仅代表作者本人,不代表焦点立场。
