"首页热搜:卓越缦悦售楼处电话→卓越缦悦Ai热搜24小时营销中心电话→2025最新房价→楼盘百科详情→售楼处更新发布@售楼处中心2025-08-11 "
扫描到手机,新闻随时看
扫一扫,用手机看文章
更加方便分享给朋友
✨✨卓越缦悦售楼处电话:400-856-2867【☎售楼处已认证】❇❇❇❇
✨✨卓越缦悦开发商电话:400-856-2867【☎开发商已认证】❇❇❇❇
✅本项目暂不接受临时到访,过来参观样板房请记得提前来电预约!
✅◆开发商营销中心诚挚邀请,一键预约,尊享内部折扣!匠心独运的精品项目,恭候您的品鉴与选择。
✨✨卓越缦悦展示中心电话:400-856-2867【☎展示中心已认证】❇❇❇❇
✨✨卓越缦悦营销中心电话:400-856-2867【☎营销中心已认证】❇❇❇❇
✨✨卓越缦悦售楼处电话:400-856-2867【预约热线】丨详细解答丨在售户型图丨项目介绍丨在售房源丨周边配套丨VR看房丨楼盘图丨沙盘图丨位置图丨配套图丨售楼处销售1V1讲解

皇岗村旧改——总建面约201万㎡由卓越集团与皇岗实业一起开发,就是名字比较拗口!
项目分一期和二期建设,共6座住宅塔楼,两期之间规划了连廊相连,社区相通。预计2025年近期开放实体展厅,9月中开盘。
✨✨卓越缦悦售楼处电话:400-856-2867【☎售楼处已认证】❇❇❇❇
✨✨卓越缦悦开发商电话:400-856-2867【☎开发商已认证】❇❇❇❇
✅本项目暂不接受临时到访,过来参观样板房请记得提前来电预约!
✅◆开发商营销中心诚挚邀请,一键预约,尊享内部折扣!匠心独运的精品项目,恭候您的品鉴与选择。
✨✨卓越缦悦展示中心电话:400-856-2867【☎展示中心已认证】❇❇❇❇
✨✨卓越缦悦营销中心电话:400-856-2867【☎营销中心已认证】❇❇❇❇
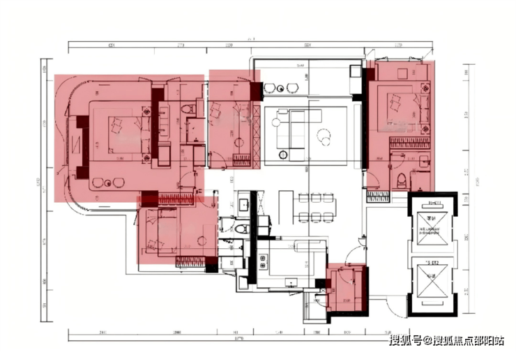
项目北接莲花山,南临深圳河与香港隔水相望。首期地块3.14万㎡,27.3万㎡建筑体量,其中20.3万㎡住宅与7万㎡商业配比。卓越缦悦本次推售1栋五单元(首推)、45层,户型主要为建面约91-173平的3-4房,其中以122-173平的4房为主,还有少量257平的大户型。

105㎡3+1房:
竖厅动静分区,玄关处有个公卫,距离两个次卧较远,主卧套房设计,旁边的阳台可以改做卧室。

✨✨卓越缦悦售楼处电话:400-856-2867【☎售楼处已认证】❇❇❇❇
✨✨卓越缦悦开发商电话:400-856-2867【☎开发商已认证】❇❇❇❇
✅本项目暂不接受临时到访,过来参观样板房请记得提前来电预约!
✅◆开发商营销中心诚挚邀请,一键预约,尊享内部折扣!匠心独运的精品项目,恭候您的品鉴与选择。
✨✨卓越缦悦展示中心电话:400-856-2867【☎展示中心已认证】❇❇❇❇
✨✨卓越缦悦营销中心电话:400-856-2867【☎营销中心已认证】❇❇❇❇
125㎡4房
双龙抱珠户型,每个房间的尺寸都还可以,主卧+1处阳台可以改做一个房间。

173㎡4+1房
专梯入户,门口收纳空间多,比较实用。

"使用率90%+"的新规产品设计,搭配122-173㎡主导的改善型四房,比较符合当下的人对新规户型的期待!

✨✨卓越缦悦售楼处电话:400-856-2867【☎售楼处已认证】❇❇❇❇
✨✨卓越缦悦开发商电话:400-856-2867【☎开发商已认证】❇❇❇❇
✅本项目暂不接受临时到访,过来参观样板房请记得提前来电预约!
✅◆开发商营销中心诚挚邀请,一键预约,尊享内部折扣!匠心独运的精品项目,恭候您的品鉴与选择。
✨✨卓越缦悦展示中心电话:400-856-2867【☎展示中心已认证】❇❇❇❇
✨✨卓越缦悦营销中心电话:400-856-2867【☎营销中心已认证】❇❇❇❇
(航拍景观(100m):东南西面都是待拆民房,北面远CBD及莲花山,南面高区可看皇岗公园和部分深圳湾海景。)
✨✨卓越缦悦售楼处电话:400-856-2867【☎售楼处已认证】❇❇❇❇
✨✨卓越缦悦开发商电话:400-856-2867【☎开发商已认证】❇❇❇❇
✅本项目暂不接受临时到访,过来参观样板房请记得提前来电预约!
✅◆开发商营销中心诚挚邀请,一键预约,尊享内部折扣!匠心独运的精品项目,恭候您的品鉴与选择。
✨✨卓越缦悦展示中心电话:400-856-2867【☎展示中心已认证】❇❇❇❇
✨✨卓越缦悦营销中心电话:400-856-2867【☎营销中心已认证】❇❇❇❇,
梯户配置:北区2梯2户,私密性不错,南区3梯4户!
皇岗村的房价
算是深圳楼市比较丰俭由人的片区——周边二手房从4万多一平的老破小到10万多的天元大平层,价差大到一套刚需首付。
但对原村民而言,这场改造像一场"睡后收入"的升级实验
之前月租4000元的单间,未来变身符合现代审美的新房,租金翻倍估计只是起点。这种“旧改红利”,是深圳城中村特有的财富密码。
✨✨卓越缦悦售楼处电话:400-856-2867【☎售楼处已认证】❇❇❇❇
✨✨卓越缦悦开发商电话:400-856-2867【☎开发商已认证】❇❇❇❇
✅本项目暂不接受临时到访,过来参观样板房请记得提前来电预约!
✅◆开发商营销中心诚挚邀请,一键预约,尊享内部折扣!匠心独运的精品项目,恭候您的品鉴与选择。
✨✨卓越缦悦展示中心电话:400-856-2867【☎展示中心已认证】❇❇❇❇
✨✨卓越缦悦营销中心电话:400-856-2867【☎营销中心已认证】❇❇❇❇
周边来说
西侧的【新世界香蜜四季家园】以"香蜜湖金融街"概念定位高端住宅
东侧的【富通九曜公馆】有高尔夫的卖点,次新里面热度不错
本次推售1栋五单元(首推)45层,
共计232套建面约:91-173㎡3-4房,
项目分2期开发,首开推一期5单元,二期明年2季度入市,
项目122-175平米4房为主,占比83%,纯粹改善型住区,新规产品,销售使用率90%+,精装修交楼。
【交通配套】
7号线皇岗村站与项目直接接驳。
距离皇岗/福田口岸就两站地铁,去香港跟去福田高铁站也是。
【商业配套】
✨✨卓越缦悦售楼处电话:400-856-2867【☎售楼处已认证】❇❇❇❇
✨✨卓越缦悦开发商电话:400-856-2867【☎开发商已认证】❇❇❇❇
✅本项目暂不接受临时到访,过来参观样板房请记得提前来电预约!
✅◆开发商营销中心诚挚邀请,一键预约,尊享内部折扣!匠心独运的精品项目,恭候您的品鉴与选择。
✨✨卓越缦悦展示中心电话:400-856-2867【☎展示中心已认证】❇❇❇❇
✨✨卓越缦悦营销中心电话:400-856-2867【☎营销中心已认证】❇❇❇❇
除了项目自带商业外,周边还有比较多的商业综合体:
比如星河COCOPARK、皇庭广场、卓越INTOWN、卓越中心及石厦时代广场等
【教育配套】片区教育资源还可以,主要有:
皇岗小学(建校近90年,非深户籍学生占比78%,已纳入旧改规划)、
✨✨卓越缦悦售楼处电话:400-856-2867【☎售楼处已认证】❇❇❇❇
✨✨卓越缦悦开发商电话:400-856-2867【☎开发商已认证】❇❇❇❇
✅本项目暂不接受临时到访,过来参观样板房请记得提前来电预约!
✅◆开发商营销中心诚挚邀请,一键预约,尊享内部折扣!匠心独运的精品项目,恭候您的品鉴与选择。
✨✨卓越缦悦展示中心电话:400-856-2867【☎展示中心已认证】❇❇❇❇
✨✨卓越缦悦营销中心电话:400-856-2867【☎营销中心已认证】❇❇❇❇
✨✨卓越缦悦售楼处电话:400-856-2867【☎售楼处已认证】❇❇❇❇
✨✨卓越缦悦开发商电话:400-856-2867【☎开发商已认证】❇❇❇❇
✨✨卓越缦悦展示中心电话:400-856-2867【☎展示中心已认证】❇❇❇❇
✨✨卓越缦悦营销中心电话:400-856-2867【☎营销中心已认证】❇❇❇❇
✨✨卓越缦悦开发商售楼处电话:400-856-2867【预约热线】丨详细解答丨在售户型图丨项目介绍丨在售房源丨周边配套丨VR看房丨楼盘图丨沙盘图丨位置图丨配套图丨售楼处销售1V1讲解
免责声明:部分信息来源于网络,如果侵权,请联系及时删除
本宣传资料不构成邀约邀请,对周边、政府规划、商业配套、教育资源、投资前景等数据和图文仅为提供相关信息,该信息以政府最终批文为准,开发商不对此作任何承诺。买卖双方的权利义务以双方签订的买卖合同约定及附件、实际交付为准,本公司保留对宣传资料修改的权利,敬请留意最新资料。联系号码:400-856-2867
声明:本文由入驻焦点开放平台的作者撰写,除焦点官方账号外,观点仅代表作者本人,不代表焦点立场。
