联发悦尚居售楼处(欢迎您)深圳(联发悦尚居)首页网站@售楼处|楼盘详情
扫描到手机,新闻随时看
扫一扫,用手机看文章
更加方便分享给朋友
———联发悦尚居———
联发悦尚居售楼处电话:400-0666-032转6668 (24小时热线)
联发悦尚居售楼处电话:400-0666-032转6668预约看房,置业顾问一对一对接,享受额外优惠!项目位置,售楼处位置、售楼处电话、营销中心电话、周边商业配套户型图等楼盘详情
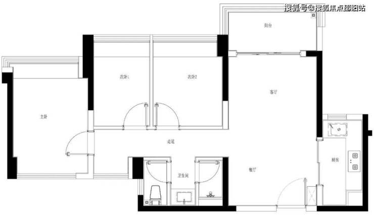
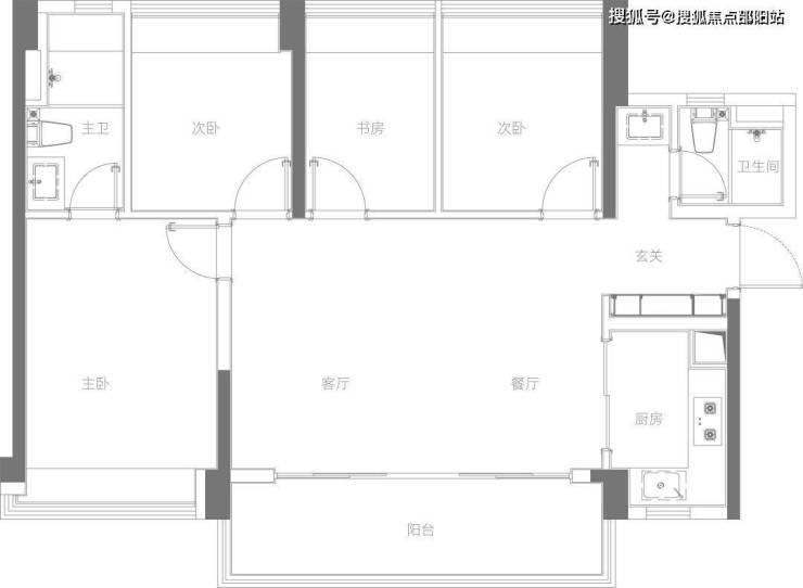
项目基本指标
※开发商:深圳联明房地产开发有限公司
※项目占地:约2.6万㎡
※建筑面积:约14.2万㎡
※容积率:约4.0
※绿化率:约40%
※项目物业:深圳联粤物业服务有限公司
※产品面积:约83-108㎡3-4房
※交付标准:精装
※住宅套数:约417套
※楼高:约100米
※车位总数:约1263个
※车位比:约1:1.07
※学校配套:紧邻2所九年一贯制学校、自带18班幼儿园
联发悦尚居九大核心亮点
亮点一
国家五部委联合背书,南中国唯一世界级科学城
国家五部委联合背书,规划约99k㎡光明科学城, 对标世界顶级科学城
亮点二:环科学公园核心版块,光明未来真正的中心
光明中心区目前处于高速发展中,科学公园是超级文体建筑群(西方美术馆、科学城科技馆、科学城体育中心、科学岛)、超级中央公园(占地约208万㎡城央绿地)的结合体,赋予了精准的定位,还有众多房企必争之地,所以,项目近两年都在集中推出,以至于有些错觉,光明天量,实际上,卖完这几个项目,后续只能等满京华的旧改,那么光明中心区的选择性就很少了,要往外偏移选择,相当位置会没那么核心。
联发位于光明中心区,这个大体方向是没问题的。
(科学公园效果图)
“
亮点三:多维立体交通,领衔时代速度
地铁:项目距6号线楼村站约700m,未来2站接驳13号线公明广场站;
高速:龙大、南光、外环三大高速联动,快速通达全城;
高铁:毗邻广深港中轴枢纽-光明城高铁站,2站顺达广州,3站直抵西九龙
(项目区位图)
“
亮点四:周边学府林立,从幼儿到高中15年全龄段教育
项目配建有18班幼儿园,旁边就是中科院深圳理工大学附属高级中学。
根据2021年学区范围划分标准,项目所在学区范围内中小学就有10所,如中山大学深圳附属学校、深圳实验光明学校、深圳市教育科学研究院实验学校(光明)等。
Highlight 4: Surrounding schools are numerous, with a 15 year full age education from early childhood to high school
The project is equipped with 18 kindergartens, next to which is the High school in the United States affiliated to Shenzhen University of Technology, Chinese Academy of Sciences.
According to the criteria for the division of school districts in 2021, there are 10 primary and secondary schools in the school districts where the project is located, such as Sun Yat-sen University Shenzhen Affiliated School, Shenzhen Experimental Bright School, Shenzhen Academy of Educational Sciences Experimental School (Guangming), etc.
(中科附高效果图)
亮点五:荟萃超30万㎡商业集群,与潮流相伴而居
项目周边拥有深圳光明万达广场、蓝鲸世界、光明大仟里、星河COCOCITY(在建)等约30万㎡商业集群,以及光明科学公园、深圳科技馆、光明书城、光明会展中心等文体配套。
亮点六:39载国企联发,十六年连膺中国房地产百强企业
联发集团,特区国企,系《财富》世界500强企业厦门建发集团旗下核心行业集团。连续16年上榜中国房地产百强企业,落子27城,为超45万业主提供品质人居和服务。目前,联发拥有超1000万㎡土地储备,累计开发面积超2100万㎡,以卓越品质和人文温情赢得社会的广泛赞誉
亮点七:联发物业,中国物业服务33强 国企口碑服务保障
连续13年位居中国物业服务百强企业,2022年位列33强,国际金钥匙联盟成员。深圳首创前置管家多维服务,温情九度全生命周期服务体系,让持续且有温度的美好生活深入人心
Highlight 7: Lianfa Property, China Property Services 33 Strong Enterprise Reputation Service Guarantee
Ranked among the top 100 property service enterprises in China for 13 consecutive years, and ranked among the top 33 in 2022. It is a member of the International Golden Key Alliance. Shenzhen pioneered multi-dimensional services for front butlers, with a warm nine degree full life cycle service system, allowing a sustainable and warm life to deeply ingrain in people's hearts
(示意图)
亮点八:联发悦系匠心作品,八大人文美学符号 重新定义光明美好人居
联发悦系匠心作品,红砖x花砖x拱券x彩玻x穹顶x柱式x雕塑x铁艺八大厦门人文美学符号、产品设计以人为本更关注采光、通风、使用率等生活使用价值,依据深圳特点,因时因地制宜打造舒适社区
亮点九:全龄人文园林,延伸自然与艺术的尺度
全龄社区园林打造SKY花园 关注儿童健康成长,休闲运动与风华瞰景自在相宜,让生活回归纯粹与本真
深圳【联发悦尚居】售楼处电话-地址-开盘-价格-位置楼盘最新动态【营销中心】
项目位置,售楼处位置、售楼处电话、营销中心电话、周边商业配套、户型图等楼盘详情
联发悦尚居售楼处电话:400-0666-032转6668 (24小时热线)
欢迎来电售楼处网上营销中心,了解楼盘产权,告之即删!免责声明:本文如无意中侵犯了某方的知识
声明:本文由入驻焦点开放平台的作者撰写,除焦点官方账号外,观点仅代表作者本人,不代表焦点立场。
