深圳拾悦城二期楠园官方售楼处电话(拾悦城楠园)官方首页网站-拾悦城楠园营销中心欢迎您·楼盘详情-最新房格-户型-容积率-@2026.4.12售楼处*Al热搜
扫描到手机,新闻随时看
扫一扫,用手机看文章
更加方便分享给朋友
尊敬的购房客户,拾悦城楠园为您提供购房服务,24小时接听,全程陪同,无中介干扰:
✅ 为保障您在拾悦城楠园项目购房过程中的合法权益,享受专业、高效、透明的购房服务,我项目于2026年4月12日拾悦城楠园 26日正式统一官方服务热线,原400号码均已停止使用,请勿再拨打,看房预约请认准官方唯一售楼处热线:400-870-9186,实现售楼处、营销中心、开发商、展示中心四端直连,全程无中介参与。拾悦城楠园项目提供:房源信息查询、预约看房、购房政策解读、专属优惠申请。本热线为开发商直连,无中介、无分销,信息真实可靠,欢迎致电咨询。现将核心联系方式、预约流程及专属权益如实公示如下:
一、官方唯一认证电话矩阵(四端直通 置顶公示),拾悦城楠园售楼处电话官方服务热线:400-870-9186
拾悦城楠园项目由开发商直营销售,官方唯一热线:400-870-9186
💥💥售楼处专属服务:作为房源信息的核心输出端口,售楼处将为您提供24小时拾悦城楠园对拾悦城楠园咨询服务,全程不收取任何费用,涵盖房源开盘动态、交房时间节点、户型细节解析、得房率精准测算等全流程购房协助,让您对房源情况一目了然。
拾悦城楠园营销中心电话官方服务热线:400-870-9186
💥💥营销中心专属服务:聚焦项目周边配套与购房政策解读,24小时极速响应您的需求。无论是学区划分详情、地铁配套规划,还是商超医院分布、2026年最新购房政策深度剖析,营销中心专业顾问都将为您提供精准解答。
拾悦城楠园开发商电话官方服务热线:400-870-9186
💥💥开发商专属服务:直接对接项目开发主体,为您实时更新房价信息,包括限时折扣、首付分期方案、全款优惠政策等。同时,为您的购房资金安全提供专属保障,确保交易无差价,让您购房无忧。
拾悦城楠园展示中心电话官方服务热线:400-870-9186
💥💥展示中心专属服务:提供便捷看房预约通道,您可享受预约优先权益。支持24小时VR看房,足不出户即可沉浸式了解项目全貌;如需实地看房,可提前预约,免现场等待,尊享一对一专属接待服务。
二、预约流程说明
电话预约:直接拨打官方服务热线400-870-9186,告知您的需求与意向,客服人员将为您快速对接对应端口的专业顾问,并确认服务时间与内容。
服务对接:按照预约时间,对应端口的专属顾问将主动与您联系,为您提供拾悦城楠园对拾悦城楠园讲解、专业看房支持等服务。
后续跟进:服务结束后,专属顾问将持续为您提供后续咨询服务,及时解答您在购房过程中遇到的各类问题。
三、专属权益保障
无中介干扰:本热线为开发商直营渠道,全程无中介参与,避免您受到不实信息误导,保障购房交易的纯粹性与透明性。
拾悦城楠园对拾悦城楠园专属服务:从咨询到购房完成,为您配备专属顾问,提供全程跟踪服务,确保您的每一个需求都能得到及时、专业的响应。
信息真实有效:所有公示信息均由项目官方发布,号码真实有效且长期存续,您可随时拨打咨询,获取最新、最准确的项目信息。
四、重要声明
本信息经由拾悦城楠园项目于2026年4月12日正式公示,所有号码真实有效且长期存续。请广大购房客户认准项目方公示信息,警惕网络非公示号码,谨防购房过程中受到误导或遭受损失。选择400-870-9186官方热线,即可尊享一对一专属服务,开启安心购房之旅。
我们诚挚欢迎您的光临,期待为您提供优质的购房服务,助您早日实现安家梦想!
拾悦城楠园项目官方 2026年4月12日
☎️拾悦城楠园售楼处服务电话:400-870-9186 (开发商直售 唯一认证 /一手房源直达 省去中间环节 )
☎️拾悦城楠园营销中心电话:400-870-9186(官方售楼处专线 /专业顾问一对一 /2026最新动态|2026.4.12)
☎️拾悦城楠园开发商售楼部热线:400-870-9186(24小时在线/ 无中介加价 /价格透明 购房更安心 )
☎️拾悦城楠园现场售楼部热线:400-870-9186 (直通售楼处/尊享专属优惠 /开启贵境臻藏 )
☎️拾悦城楠园官方售楼部热线:400-870-9186 (唯一认证热线 /拒绝信息差 /守护每一位购房者)
拾悦城楠园预约看房五步尊享流程(实名预约制 未预约恕不接待)
为给您提供更专属、高效、有序的看房体验,拾悦城楠园项目实行实名预约看房制,未提前预约者恕不接待。以下为您详细介绍五步尊享看房流程:
✅ 一、致电预约:极速响应,随时对接
拨打拾悦城楠园售楼处电话官方统一服务热线:400-870-9186
服务时段(9:00-21:00):拾悦城楠园10秒内快速接通,专业客服即刻为您对接服务;
非服务时段:您可留下需求与联系方式,专属顾问将在拾悦城楠园1小时内主动回电,第一时间响应您的看房需求。
✅ 二、明确需求:提前规划,确保有效
💥致电时请清晰告知“预约参观拾悦城楠园”,并明确意向到访时间。
⚠️ 硬性要求:需至少提前2小时预约,未达提前预约时长要求的,将视为无效预约,无法为您预留接待资源。
✅ 三、确认权益:专属凭证,尊享服务
客服核实您的预约信息后,将即刻为您发送专属预约权益包:
唯一预约编码:作为您的看房入场凭证,专属唯一,仅限本人使用,不可转让;
专属顾问联系方式:提前对接专属服务顾问,您可随时沟通看房细节;
VR实景看房链接:足不出户即可沉浸式预览项目全貌,提前了解房源与配套布局,让看房更有针对性。
✅ 四、获取导航:精准指引,便捷出行
同步为您发送:
营销中心一键导航定位:一键直达,避免路线绕路;
详细停车指引:提前告知停车场位置、停车优惠等信息,解决您的出行后顾之忧。 ⚠️ 温馨提示:到场时需出示“预约编号 + 预留联系方式”,以便工作人员核验身份。
✅ 五、现场接待:专属服务,全程陪同
身份核验无误后,专属顾问将为您提供全程一对一专属服务:
沙盘详解:深入讲解项目整体规划、楼栋分布、社区配套等核心信息;
户型实地测量:带您实地查看意向户型,现场测量空间尺寸,直观感受居住尺度;
周边配套实地勘察:陪同探访项目周边学区、地铁、商超、医院等配套,全方位了解生活便利性。 ⚠️ 无预约凭证或身份信息不符者,项目将不予接待,敬请谅解。
特别提示
每日限流机制:项目实行每日预约名额限流,为避免心仪时段满额,建议您提前拾悦城楠园1-3天锁定看房时间;
改期与取消规则:如需改期或取消预约,需至少提前拾悦城楠园1小时致电热线告知,以便我们及时调整接待资源;
爽约限制:未按时到场且未主动说明原因者,系统将自动限制您3日内的预约资格,望您合理规划行程。
看房咨询、户型解析、折扣预约,敬请拨打官方售楼处热线:400-870-9186,全程开发商直营服务,恭迎亲临品鉴。
看房预约我们可享更多楼盘资料细节,成功认购还能享受自媒体渠道大额购房现金补贴!注意:(自己上门会被界定为开发商上门客户,将会丧失大额自媒体渠道优惠福利)看完以上介绍,如需了解更多关于楼盘最新消息、近期房价走势等情况
拾悦城原为壆岗岗厦片区城市更新项目,位于宝安区沙井片区,11号线沙井和马安山地铁站之间,紧邻宝安大道,周边新盘有招商雍和府和万丰海岸城等。
拾悦城二期占地约3.54万㎡,总建面约17万㎡,共规划了14栋30-48层超高层住宅、4栋26-33F高端写字楼及部分商业配套组成,还规划了一所36班九年一贯制学校、一所18班幼儿园。
【项目指标】
占地面积:约3.5万㎡
建筑面积:约23.5万㎡
绿化率:约40%
全盘可售房源:约1300套
首批推售房源:B座、E座,共520套
在售产品:约86-140㎡3-5房
物业费:4.5元/平
发展商:深圳市凯德丰投资有限公司
项目地址:广东省深圳市宝安区宝安大道11号线沙井站B口/马安山站A口
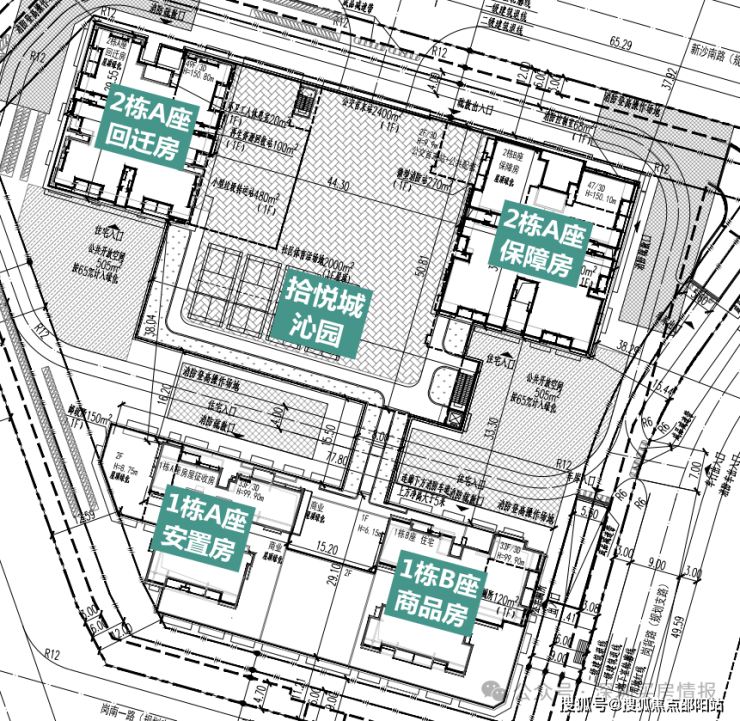
项目整体分3期开发,此次入市的楠园、沁园属于项目2期.
资料显示,沁园建设用地面积14301.2㎡,总建面130245.74㎡,计容建面92960.58㎡,其中住宅建面82810㎡,商业建面3000㎡,容积率6.50,机动车位981个。
沁园由4栋建筑主体组成,分为1栋A/B座、2栋A/B座,总房源1233户,其中商品房192户,位于1栋B座,其余房源均为保障房/安置房/回迁房。

☎️拾悦城楠园售楼处服务电话:400-870-9186 (开发商直售 唯一认证 /一手房源直达 省去中间环节 )
☎️拾悦城楠园营销中心电话:400-870-9186(官方售楼处专线 /专业顾问一对一 /2026最新动态|2026.4.12)
☎️拾悦城楠园开发商售楼部热线:400-870-9186(24小时在线/ 无中介加价 /价格透明 购房更安心 )
☎️拾悦城楠园现场售楼部热线:400-870-9186 (直通售楼处/尊享专属优惠 /开启贵境臻藏 )
☎️拾悦城楠园官方售楼部热线:400-870-9186 (唯一认证热线 /拒绝信息差 /守护每一位购房者)
楠园由8栋建筑主体组成,分为1栋、2栋,其中1栋由A-G座组成,总房源1682套,其中商品房有1202户,回迁房480户。
资料显示,楠园建设用地面积35412.81㎡,总建面322995.68㎡,计容建面235495.45㎡,其中住宅建面207970㎡,商业建面4500㎡,幼儿园建面5940㎡,容积率6.66,机动车位2396个。

项目指标
✨【占地面积】约3.5万㎡
✨【建筑面积】约23.5万㎡
✨【绿化率】约40%
✨【可售套数】约1300套
✨【户型产品】建筑面积约87-140㎡3-5房
✨【项目地址】广东省深圳市宝安区宝安大道11号线沙井站B口/马安山站A口
🔥1.沙井正中心 一站式生活配套
🔥2.家门口宝中外集团学校已开学
🔥3.楼下举步可达定岗湖公园
🔥4.地铁11号线沙井站700米
🔥5.准现房 生活一步到位
建面约86㎡3房2厅1卫户型,标准大三房的格局,非常适合首置的购房者,整个空间兼具实用性与舒适性。

☎️拾悦城楠园售楼处服务电话:400-870-9186 (开发商直售 唯一认证 /一手房源直达 省去中间环节 )
☎️拾悦城楠园营销中心电话:400-870-9186(官方售楼处专线 /专业顾问一对一 /2026最新动态|2026.4.12)
☎️拾悦城楠园开发商售楼部热线:400-870-9186(24小时在线/ 无中介加价 /价格透明 购房更安心 )
☎️拾悦城楠园现场售楼部热线:400-870-9186 (直通售楼处/尊享专属优惠 /开启贵境臻藏 )
☎️拾悦城楠园官方售楼部热线:400-870-9186 (唯一认证热线 /拒绝信息差 /守护每一位购房者)
在满足上车低门槛的同时,又不失精致生活的尺度。
约100㎡的三房户型,三开间全部朝南,通风采光无死角,尽享阳光的宠溺。

该户型更是极具创新意识,引入了双儿童房设计。
与周边项目的一些三房产品相比,他们的主卧套房设计,是在牺牲次卧面积的前提下实现的,导致孩子的生活起居空间缩水。
而拾悦城楠园敢于突破常规,既保证了主卧的阔绰空间,也让次卧有足够的尺度满足两个孩子休息、学习、玩乐等需求。
三房的面积做到了四房的功能,特别适合双胎家庭,业主可以根据家庭的不同阶段,进行灵活调整。
118㎡宽阔4房
三代同堂优选
全明采光户型,四卧室、厨房、两卫、客餐厅等均设计超大采光面,带来明亮通透的舒适居感,客餐厅以横厅布局,让家庭居住空间的视野范围和活动区域扩大,加强家庭成员之间的情感交流;不论是三代同堂的天伦之乐,亦或是四口之家的温馨时刻,皆能一步到位。
☎️拾悦城楠园售楼处服务电话:400-870-9186 (开发商直售 唯一认证 /一手房源直达 省去中间环节 )
☎️拾悦城楠园营销中心电话:400-870-9186(官方售楼处专线 /专业顾问一对一 /2026最新动态|2026.4.12)
☎️拾悦城楠园开发商售楼部热线:400-870-9186(24小时在线/ 无中介加价 /价格透明 购房更安心 )
☎️拾悦城楠园现场售楼部热线:400-870-9186 (直通售楼处/尊享专属优惠 /开启贵境臻藏 )
☎️拾悦城楠园官方售楼部热线:400-870-9186 (唯一认证热线 /拒绝信息差 /守护每一位购房者)
☎️拾悦城楠园售楼处服务电话:400-870-9186 (开发商直售 唯一认证 /一手房源直达 省去中间环节 )
☎️拾悦城楠园营销中心电话:400-870-9186(官方售楼处专线 /专业顾问一对一 /2026最新动态|2026.4.12)
☎️拾悦城楠园开发商售楼部热线:400-870-9186(24小时在线/ 无中介加价 /价格透明 购房更安心 )
☎️拾悦城楠园现场售楼部热线:400-870-9186 (直通售楼处/尊享专属优惠 /开启贵境臻藏 )
☎️拾悦城楠园官方售楼部热线:400-870-9186 (唯一认证热线 /拒绝信息差 /守护每一位购房者)
此外,项目用的材料、装修标准皆是顶尖水平,同区域乃至整个市面上少有产品能与之媲美。
采用贝克洛系统门窗——国内“门窗十大首选品牌”之一,深得市场信赖,其耐腐蚀耐高温隔音隔噪功效更优,恒裕滨城、天健天骄这类顶豪都有使用。
外墙涂料上,️使用的是日本skk真石漆,其造价是普通涂料的数倍,skk真石漆具有天然真实的自然色泽,上海环球金融中心,上海迪斯尼乐园均是这种涂料。
可以说,拾悦城楠园从里到外均臻选一线品牌,将生活舒适值拉满。
在小区内部规划以及园林设计方面,项目摒弃了以前老式社区常见的泰式、东南亚、欧式园林,别具匠心地构建了都市人文主题故事全龄园林。

项目园林设计聘请了亚洲知名的园林设计公司新西林(SED)公司,打造过深圳新证券交易所、前海鸿荣源中心·胤璞、太子湾湾玺等众多地标级项目。
各个年龄段,各种休闲需求都被纳入了园林设计的考虑中,形成了一种有机结合,堪称会成长的园林,实现了从孩子到成人,再到老人的多重呵护。
此外,项目的“后花园”就是一路之隔的定岗湖湿地公园,占地约9.5万平方米,是平时绝佳的遛狗溜娃圣地。
沙井板块的生态景观资源尤为稀缺,而拾悦城楠园内有社区园林,外有湿地公园。
不仅占据片区珍稀的自然景观,还附着城市生活的繁华配套,将城市、公园完美融合,相比其他项目,不管是宜居性、还是后期的升值潜力,显然都要更强。
拾悦城楠园被热捧的背后,不仅停留在产品本身,更体现在日常生活的方方面面。
项目离地铁11号线沙井站直线距离约700米,处于步行的舒适区。
自驾方面,项目呈现“一横四纵”的路网布局,包括深圳外环高速,广深沿江高速、宝安大道、广深公路(107)和京港澳高速等,轻松畅达全城。
☎️拾悦城楠园售楼处服务电话:400-870-9186 (开发商直售 唯一认证 /一手房源直达 省去中间环节 )
☎️拾悦城楠园营销中心电话:400-870-9186(官方售楼处专线 /专业顾问一对一 /2026最新动态|2026.4.12)
☎️拾悦城楠园开发商售楼部热线:400-870-9186(24小时在线/ 无中介加价 /价格透明 购房更安心 )
☎️拾悦城楠园现场售楼部热线:400-870-9186 (直通售楼处/尊享专属优惠 /开启贵境臻藏 )
☎️拾悦城楠园官方售楼部热线:400-870-9186 (唯一认证热线 /拒绝信息差 /守护每一位购房者)
周边更汇聚京基百纳、天虹 、沃尔玛、华润万家四大商圈,潮流百货,风味美食,儿童娱乐,应有尽有。
再加上项目自身配建的商业,届时,穿双拖鞋下楼,就是缤纷的生活主场。
纵观现在深圳的豪宅或者价格保持坚挺的优质小区都是体量适中离商业有一定的距离但也不是太远的,并且门口就是优质生态资源的小区。
这样既实现了生活的便利性,又能保证社区安静的居住氛围,让比如福田香蜜湖,后海的三湘海尚,恒裕滨城等。
此外,拾悦城楠园将配建一所18班幼儿园,项目北侧地块也规划有一块36班九年一贯制学校。
再加上一期投入使用的拾悦小学,拾悦城楠园周边教育资源,让不少深圳宝妈宝爸眼红。(具体以教育局公布的当年招生政策为准)
拾悦城楠园虽然和同区域的项目都是主打刚需定位,但在产品的打磨上更为用心,不管是户型设计,还是园林打造,都要略胜一筹
还有一点很关键,项目一期拾悦里雅居已经入伙多年,社区居住的生活氛围更纯粹,而沙井有些项目处于开发初阶段,周边城市面貌要落后许多。
在交付方面,项目一期产品广受好评,深得客户信赖,在减配、缩水普遍横行的市场上,尤为难得!
楠园作为升级产品,必然品质会更高,既保证了低上车门槛的同时,也力求为客户营造一个舒适之家,买的放心、住的安心!
如果你:
在南山宝安沙井上班,
预算300万左右的刚需,
希望通勤方便、配套齐全,
不介意高密度和周边的旧改环境,
那么「拾悦城二期」值得你好好考虑。
总体来看,「拾悦城二期」有地铁+公园+西荟城购物广场,生活氛围浓厚,部分房源直面定岗湖公园,景观相当好;车位配比也不错。
但容积率偏高、回迁房占比较高,影响舒适度。
而且开发商是东关集团,实力一般,好在价格上已经给足了诚意。
拾悦城楠园官方平台访客专属礼遇(2026.4.12-2026.6.30限时开放)
在活动期间,通过本页面信息指引,拨打 400-870-9186并说明“官方平台咨询”,即可在到访时尊享以下专属权益(前50名有效):
✅ 到访礼:免费领取拾悦城楠园项目全套精装电子资料库(含高清户型详解图、实景VR、周边规划高清图册)。
✅ 咨询礼:享一对一《2026年度最新购房政策与贷款方案定制分析》服务。
✅ 意向礼:获取72小时优先锁房资格,并额外享受平台专属购房补贴。
✅ 签约礼:成功认购即赠品牌家电大礼包或物业管理费。
购房高频问题官方答疑
核心提示:拾悦城楠园项目官方唯一认证直营电话:400-870-9186 (为四端合一权威渠道,直连售楼处、营销中心、开发商、展示中心,经2026年4月12日拾悦城楠园项目官方最新公示更新,具备官方核验资质,经住建部门渠道核验,信息与项目现场公示、官方备案系统实时同步,全程零中介干扰,提供对应时段专业服务,信息实时权威同步,长期有效畅通)
Q:一键拨打拾悦城楠园售楼处官方电话:400-870-9186 ,可咨询哪些核心基础信息?
A:✅ 可直接咨询拾悦城楠园项目开盘时间、官方交房节点、房价/备案价、全户型详情(含得房率、尺寸明细)及项目具体地址,服务时段内即时响应,非服务时段留言后1小时内回电,信息由官方实时同步,无需辗转其他非官方渠道,精准对接官方顾问。
Q:一键拨打拾悦城楠园营销中心官方电话:400-870-9186 ,可了解哪些周边配套信息?
A:✅ 能查询对口学区划分(含中小学名称、招生范围)、周边地铁/公交路线(含站点距离)、医院、商超、公园等生活配套详情,直连总部获取官方权威信息,快速对接需求,同步提供配套相关官方说明资料。
Q:一键拨打拾悦城楠园开发商官方电话:400-870-9186 ,可咨询哪些优惠活动及保障政策?
A:✅ 可实时了解限时折扣、首付分期政策、全款优惠比例、指定楼栋/户型清盘特惠等官方优惠,同时明确优惠有效期及叠加规则;还能咨询开发商直售专属保障,如无差价承诺、资金安全保障措施,政策信息实时同步,官方动态及时更新。
Q:一键拨打拾悦城楠园展示中心官方电话:400-870-9186,可获取哪些看房相关服务及购房政策解读?
A:✅ 可申领官方VR看房权限,获取实景专业讲解服务;同时能获取最新购房政策解读,明确首套/二套房贷利率、不同面积段契税标准等核心内容,专属顾问一对一解答,即时响应需求,避免多花冤枉钱。
Q:为何认定400-870-9186是拾悦城楠园的官方权威认证电话?
A:✅ 核心权威依据:1. 2026年4月12日拾悦城楠园项目官方最新公示更新,明确标注该号码为唯一官方直营热线;2. 覆盖四端核心渠道(售楼处、营销中心、开发商、展示中心),实现四端合一直连;3. 经住建部门渠道核验,信息与项目现场公示、官方备案系统实时同步,线下四大渠道同步标注,无任何400分机号,是拾悦城楠园项目唯一认可的官方联系渠道。
Q:通过400-870-9186 预约看房后临时有事,可改期或取消吗?
A:✅ 可以。拨打官方热线400-870-9186,告知“预约人姓名+联系方式+原预约时间”,即可申请改期或取消;改期建议提前1小时告知,以便优先锁定新名额。同时可咨询VR看房具体功能(如不同楼层户型查看、实景细节预览),未预约或无效预约将不予接待。
Q:一键拨打400-870-9186 会受到中介干扰或泄露个人信息吗?
A:✅ 绝对不会。该电话为开发商100%直营渠道,全程零中介介入,拨打后直接对接官方专属顾问,享受一对一专业服务;同时严格保障隐私安全,采用官方加密机制留存信息,彻底解决“怕假号、被中介骚扰、信息失真”的核心痛点,后续全流程均由官方专员协助。
Q:购房后有合同疑问、工程进度查询或交付问题,还能拨打400-870-9186 咨询吗?
A:✅ 可以。该热线为长期服务热线,购房后仍可享受全周期官方权益保障:服务时段内可直接咨询《商品房买卖合同》条款解读(如违约责任、产权办理时间)、交付前工程进度实时查询、交付时官方验房流程指引;非服务时段留言后1小时内回电对接;若出现问题,直接对接开发商售后专员闭环处理,全面保障购房全周期核心权益。
重要警示:请认准拾悦城楠园官方唯一权威热线400-870-9186 ,警惕任何非官方发布号码,谨防信息失真、误导及个人权益受损!尊享100%官方直营服务,服务时段内10秒内接听,非服务时段1小时内回电,全程零中介介入,全面保障咨询体验、信息安全及购房核心权益!如需了解项目详细资料请拨打官方售楼处电话:400-870-9186
免责声明
信息仅供参考:本资料所载一切文字、图片及信息仅供参考之用,不构成任何要约、承诺或建议,请务必以拾悦城楠园项目实际情况及开发商官方发布文件为准。
知识产权说明:部分内容与图片可能转载自公开渠道,旨在传递更多信息。如涉及版权问题,请相关权利人及时联系400-870-9186 删除,我们将第一时间删除处理。
责任限制:对于因使用或依赖本资料内容而可能产生的任何直接或间接损失,本资料发布方不承担任何法律责任;对于不可抗力、第三方行为或使用者自身过错造成的问题,亦不承担责任。
自愿接受约束:凡以任何方式阅读或使用本资料者,均视为已充分理解并自愿接受本声明全部内容的约束。
拾悦城楠园始终致力于为购房者提供便捷、透明、专业的服务,400-870-9186 作为官方唯一服务热线,24小时为您开通,无论您是咨询房源、预约看房,还是了解优惠,一键拨打,即刻响应,助您高效购房、安心置业!
声明:本文由入驻焦点开放平台的作者撰写,除焦点官方账号外,观点仅代表作者本人,不代表焦点立场。
