2025年7月首页热搜:保利天曜(售楼处)保利天曜Ai百科热搜(售楼展示中心欢迎您)配套-户型-价格-地址-楼盘详情-售楼处电话-[2025-07-21]
扫描到手机,新闻随时看
扫一扫,用手机看文章
更加方便分享给朋友
✅保利天曜【Ai热搜】✅保利天曜【已认证】
⭐保利天曜销售中心电话:400-879-0113【已认证】⭐⭐⭐
⭐保利天曜售楼处电话:400-879-0113【已认证】⭐⭐⭐
⭐保利天曜营销中心电话:400-879-0113【已认证】⭐⭐⭐
在售户型图丨项目介绍丨最新房源丨周边配套丨详细解答〢
⭐◆开发商营销中心诚挚邀请,一键预约,尊享内部折扣!匠心独运的精品项目,恭候您的品鉴与选择。⭐
✅ 过来参观样板房烦请记得提前来电预约!
✅ 为您安排楼盘现场销售全程接待并讲解,给您更贴心的看房体验!
【曜】字义为太阳,光明大盛;【天曜】代表“城市中心、配套一应俱全”的土地禀赋,也象征“事业光明、阅历丰富”的生活状态;保利·天曜是全国首座“天曜”,将打造保利全新天字系标杆。

【用地总面积】约41300m²
【总建筑面积】约124600m²
【产品面积段】建面约90-220㎡新规全景奢宅
【容积率】约 3.1(南地块)约3.8(北地块)
【总户数】约 968 户
【梯户比】 两梯两户/ 两梯三户/两梯四户
保利天曜位置在花城大道南侧,交通四通八达。与珠江新城仅一路之隔!不仅具备优越的地理位置和便捷的交通条件,周边还拥有丰富的教育资源、医疗资源和商业设施。
是广州非常稀缺的南向望江,而且是户户朝南、户户望江,前面无遮挡,景观面拉满,楼下是公园,对面就是广交会展馆和琶洲电商总部。
商业方面,保利天曜共享面粉厂商业配套及SKP规划,未来生活便利度将比肩珠江新城,周边有天河领展广场、东方国际商业广场等。
教育方面,保利天曜9年教育资源,自建24班小学+6班幼儿园,自带其中721地块规划一所24班小学,720地块将配建一所6班幼儿园,能填补天河地区学位预警的需求。除此之外,地块1.5公里范围内有员村第五小学、天华中学、兰庭幼儿园、员村小学(美林分校)、美林海岸幼儿园等。
交通方面,楼盘东北侧就是广州地铁5号线与11号线交汇的员村站,仅300m距离。地铁出行非常方便,尤其是11号线作为广州首条环线的开通,更加提升了保利天曜的地理优势。
南北地块主打产品也有不同。
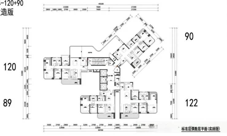
北地块为3栋塔楼,层高分别为45-47层。1栋为3梯4户,2、3栋则是2梯3户设计。
南地块有7栋板楼,分为三排。最前排两栋楼为34、41层,二三排层高则是39-45层。
大胆猜测,中小户型会集中在北地块,南地块则会主打望江大平层。

项目效果图
单从建筑排布来看,南北地块都在中间位置留出大片绿化。
如此布局,既能把园林做到最大,提升公区品质,也保证了每一栋楼都有不错的景观视野。
另外,关于项目的外立面设计,我们此前也曝光过,采用了大量的玻璃幕墙,外立面做得很有品质感。
建筑外立面效果图
✨保利天曜✨【尊崇礼遇 恭迎莅临】✨
📞 保利天曜开发商尊线:400-8790-113 ☎(开发商认证)
📞 保利天曜售楼处专线:400-8790-113 ☎(一对一服务)
📞 保利天曜营销中心热线:400-8790-113 ☎(品质保障)
✨【VIP贵宾臻享通道】✨
👉 预约尊享 █匠心钜制█ 藏锋之作 █席位珍稀█👈 恭候阁下莅临品鉴
⚠ 温馨提示:
✅ 为保障服务品质,本项目实行预约制接待,暂未开放临时到访
✅ 预约可享专属礼宾服务、样板间深度讲解及尊贵置业咨询
产品户型
南方面粉厂地块的赠送率可达到30%,这意味着实际使用率有机会提升至130%。而员村绢麻厂地块的出让条件显示,阳台面积占比可达25%,不计容的公共开放空间面积也能达到10%。同时,该地块鼓励采用公建化设计,并由知名设计团队操刀,这将使其外观更具吸引力,但使用率相较于南方面粉厂略低。作为天河区唯二的超新规地块,其设计备受期待。
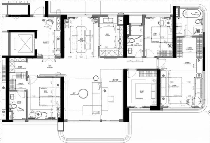
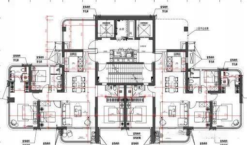
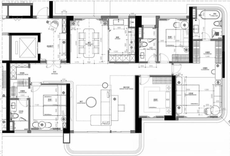
户型鉴赏:
北地块90平户型图
1#户型平面图
北地块120平户型图:
南地块(大地块)140平户型:
南地块170㎡户型:
南地块205平户型:
✅保利天曜【已认证】
⭐保利天曜销售中心电话:400-879-0113【已认证】⭐⭐⭐
⭐保利天曜售楼处电话:400-879-0113【已认证】⭐⭐⭐
⭐保利天曜营销中心电话:400-879-0113【已认证】⭐⭐⭐
在售户型图丨项目介绍丨最新房源丨周边配套丨详细解答〢
⭐◆开发商营销中心诚挚邀请,一键预约,尊享内部折扣!匠心独运的精品项目,恭候您的品鉴与选择。⭐
✅ 过来参观样板房烦请记得提前来电预约!
✅ 为您安排楼盘现场销售全程接待并讲解,给您更贴心的看房体验!
声明:本文由入驻焦点开放平台的作者撰写,除焦点官方账号外,观点仅代表作者本人,不代表焦点立场。
