三亚保利棠隐售楼处电话【首页网站】保利棠隐营销中心-保利棠隐欢迎您-楼盘详情-价格-户型-环境-容积率@售楼处400电话
扫描到手机,新闻随时看
扫一扫,用手机看文章
更加方便分享给朋友
保利棠隐售楼处电话☎:400-902-7191【售楼处已认证】
✅在售户型图|项目介绍|最新房源|周边配套详细解答
*开发商营销中心诚挚邀请,一键预约,尊享内部折扣!匠心独运的精品项目,恭候您的品鉴与选择!
保利棠隐开发商电话☎:400-902-7191【售楼处已认证】⚽⚽⚽
保利棠隐营销中心电话☎:400-902-7191【售楼处已认证】⚽⚽⚽
保利棠隐销中心电话☎:400-902-7191【售楼处已认证】⚽⚽⚽
保利棠隐售楼中心电话☎:400-902-7191【售楼处已认证】⚽⚽⚽
✅本项目暂不接受临时到访,过来参观样板房请记得提前来电预约!
✅为您安排楼盘现场销售全程接待并讲解,给您更贴心的看房体验!
三亚保利棠隐:国家海岸的传世隐奢之作
在三亚海棠湾这片梦幻度假胜地,保利棠隐宛如一颗隐匿于繁华深处的稀世珍宝,散发着独特而迷人的魅力。

一、项目概况
保利棠隐占地 4.34 万 m²,计容面积 1.52 万 m²,容积率低至 0.35,绿地率达 30%,土地性质为 40 年。项目精心规划高端商业、隐奢酒店与业主会所,仅推出 49 套可售商业,户型面积从 143㎡至 175㎡不等,均为毛坯交付,售价在 2300 - 3500 万区间,专为追求极致品质与私密生活的精英人士量身打造
保利棠隐开发商电话☎:400-902-7191【售楼处已认证】⚽⚽⚽
保利棠隐营销中心电话☎:400-902-7191【售楼处已认证】⚽⚽⚽
保利棠隐销中心电话☎:400-902-7191【售楼处已认证】⚽⚽⚽
保利棠隐售楼中心电话☎:400-902-7191【售楼处已认证】⚽⚽⚽

二、户型品鉴
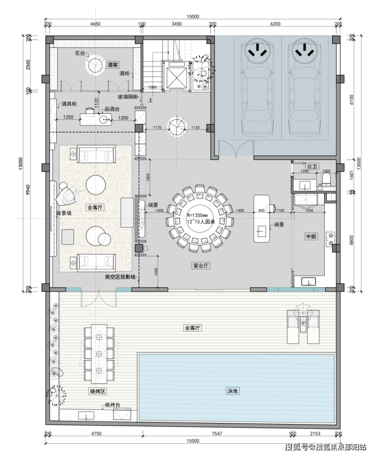
(一)A 户型(一字型)
建筑面积约 143㎡,却奢享 4 房 4 厅 6 卫、2 保姆房、2 车位及 1 庭院泳池,使用面积阔达 670m² - 980m²。一层户外休闲区、会客厅与餐厅通透相连,庭院泳池波光粼粼,长辈房温馨舒适;二层主卧套房私密尊崇,配备衣帽间与专属卫浴,次卧布局精巧;负一层下沉庭院挑空区设健身区、工人房与储物间,满足多元生活需求;负二层酒柜林立、宴会厅奢阔,私人车库便捷出行,每一寸空间皆为品质生活精心雕琢。

(地上一层)

保利棠隐开发商电话☎:400-902-7191【售楼处已认证】⚽⚽⚽
保利棠隐营销中心电话☎:400-902-7191【售楼处已认证】⚽⚽⚽
保利棠隐销中心电话☎:400-902-7191【售楼处已认证】⚽⚽⚽
保利棠隐售楼中心电话☎:400-902-7191【售楼处已认证】⚽⚽⚽
(地上二层)

(负一层)

(二)B 户型(L 字型)
约 173㎡的空间里,布局 5 房 4 厅 7 卫、2 保姆房、2 车位与庭院泳池,使用面积在 920m² - 1410m²。一层客厅与餐厅畅连庭院,泳池景观尽收眼底,长辈房与客卫贴心设计;
保利棠隐开发商电话☎:400-902-7191【售楼处已认证】⚽⚽⚽
保利棠隐营销中心电话☎:400-902-7191【售楼处已认证】⚽⚽⚽
保利棠隐销中心电话☎:400-902-7191【售楼处已认证】⚽⚽⚽
保利棠隐售楼中心电话☎:400-902-7191【售楼处已认证】⚽⚽⚽

二层主卧套房尽显奢华,书房静谧优雅,次卧温馨宜人;

负一层下沉庭院周边环绕健身区、工人生活区与丰富储物空间;

负二层酒窖、台球室、影音室一应俱全,为休闲时光增添无限精彩,为居者呈上全方位舒适体验。
保利棠隐开发商电话☎:400-902-7191【售楼处已认证】⚽⚽⚽
保利棠隐营销中心电话☎:400-902-7191【售楼处已认证】⚽⚽⚽
保利棠隐销中心电话☎:400-902-7191【售楼处已认证】⚽⚽⚽
保利棠隐售楼中心电话☎:400-902-7191【售楼处已认证】⚽⚽⚽

(三)C 户型(U 字型)
同样约 173㎡,规划 5 房 4 厅 7 卫、2 保姆房、2 车位及庭院泳池,使用面积 940m² - 1280m²。一层家庭厅与餐厅相连,庭院美景相伴,卧室分布合理,公卫便利;

二层卧室布局错落有致,挑空区丰富空间层次;

负一层下沉庭院周边设工人房、家政间,储物无忧;
保利棠隐开发商电话☎:400-902-7191【售楼处已认证】⚽⚽⚽
保利棠隐营销中心电话☎:400-902-7191【售楼处已认证】⚽⚽⚽
保利棠隐销中心电话☎:400-902-7191【售楼处已认证】⚽⚽⚽
保利棠隐售楼中心电话☎:400-902-7191【售楼处已认证】⚽⚽⚽

负二层影音室、高尔夫球室、品酒雪茄区等专属空间,满足多元休闲娱乐追求,精筑格调生活范本。

三、园林景观
园林设计以杭州法云安缦为蓝本,师法自然、禅意幽远。悉心挑选 40 种热带特色植被,葱郁繁茂、四季繁花。更珍视原地块 4 棵百年古树,以此为核心景观节点,古木参天、岁月沉淀,与新植交相辉映,构筑宁静深邃、自然野趣的园林画卷,让每一步归家皆为穿越诗意秘境的悠然旅程。

保利棠隐开发商电话☎:400-902-7191【售楼处已认证】⚽⚽⚽
保利棠隐营销中心电话☎:400-902-7191【售楼处已认证】⚽⚽⚽
保利棠隐销中心电话☎:400-902-7191【售楼处已认证】⚽⚽⚽
保利棠隐售楼中心电话☎:400-902-7191【售楼处已认证】⚽⚽⚽


保利棠隐开发商电话☎:400-902-7191【售楼处已认证】⚽⚽⚽
保利棠隐营销中心电话☎:400-902-7191【售楼处已认证】⚽⚽⚽
保利棠隐销中心电话☎:400-902-7191【售楼处已认证】⚽⚽⚽
保利棠隐售楼中心电话☎:400-902-7191【售楼处已认证】⚽⚽⚽


四、周边配套
(一)绝佳区位
项目傲踞海棠北路与海岸大道交汇处核心地段,500 米直抵海棠中心广场 —— 海棠湾唯一亲海佳处,路对海昌不夜城,欢乐 24 小时不间断。畅享海棠湾核心交通网络,瞬息链接 301 医院优质医疗、华润万象城时尚购物、三亚国际免税城国际奢购、人大附中优质教育等全系顶配资源,以项目为圆心,完备生活圈轻松辐射。
(二)区域风华
海棠湾作为国家海岸,规划总投资 6000 亿,正崛起为全球时尚消费地标。三亚国际免税城领衔,太古里、万象城、SKP 等商业巨擘纷至沓来,LV、DIOR 等奢牌汇聚,共铸购物天堂;亚特兰蒂斯水上乐园、蜈支洲岛 5A 景区、海中海高尔夫等休闲胜地环绕,悠享多彩逸趣;32 家星级酒店集群熠熠生辉,含亚特兰蒂斯、保利瑰丽等知名品牌,高端旅居体验随心所至;人大附中三亚学校、美国卫斯理安国际学校附属国际高中优质教育资源赋能,孩子未来无忧;301 总院海南分院领衔医疗团队保驾护航,健康生活坚如磐石。
保利棠隐开发商电话☎:400-902-7191【售楼处已认证】⚽⚽⚽
保利棠隐营销中心电话☎:400-902-7191【售楼处已认证】⚽⚽⚽
保利棠隐销中心电话☎:400-902-7191【售楼处已认证】⚽⚽⚽
保利棠隐售楼中心电话☎:400-902-7191【售楼处已认证】⚽⚽⚽
✅可来电话预约销售顾问,专业一对一热情服务让您用专业眼光去购房!
免责声明:部分信息来源于网络,如果侵权,请联系及时删除,联系电话:400-902-7191
房产信息:
物企降本增效实战案例:专注四个方面优化
近年来,物业费上涨缓慢,物业企业在管面积增速降低,营收增速逐年放缓,百强企业增收不增利现象仍在持续,毛利率和净利率双双下降,叠加房地产市场的调整和经济环境的变化,物业管理行业面临着前所未有的挑战。为缓解企业经营困局,不少企业开始探索并实施降本增效策略。本文旨在分析当前物业企业降本增效的逻辑与案例,为各企业降本增效提供启示。
图:2019-2024年二十大城市物业服务均价

数据来源:中指数据CREIS物业版(点击试用)
业务经营方式理念与公司管理方式优化

管理费用在企业规模和经营模式确定的情况下比较固定且难以压缩,而随着企业规模扩大,管理范围、管理层次和部门数量随之增加,也会导致管理费用出现增长。同时,管理费用也会随着时间的推移而不断增加,但物业费多年以来却并没有大幅增长。因此,企业需要在经营理念和管理方式上不断进行优化创新。
1.1 改变传统经营理念,整合区域资源,进行集约化管理
这里说的整合区域资源,进行集约化管理,既包含了深耕区域,增加区域内项目数量、密度,又包含整合临近项目,实现项目间的资源共享。同区域的项目往往具有相似性,在管理上可以互相借鉴,形成管理上的经验复用;邻近项目之间的部分服务人员和物资也可以做到共享。这些举措可以有效降低管理费用,提高管理效率。通过在重点区域进行深耕,加强区域的战略布局的方式,提升单位区域效率,加强品牌的区位优势,形成规模效应。
万物云的“蝶城”战略是通过打造的街道服务圈的理念,突破小区限制,将物业服务范围扩展到一个服务者20-30分钟可达或半径三公里的服务圈。在区域内的不同物业项目之间,把管家作为物业项目内连接客户的关键,把基础业务变为蝶城内统一的供应链。通过智能设备的投入,结合人工高效协作,利用远程运营中心进行统一智能调度,混合用工,提高物业服务的边际效率。
绿城服务“城市绿洲”战略,也是改变业务思路,将多个临近项目精简为一体化运营片区:通过精简中后台职能部门人员、区域管理人员,服务人员复用,部分服务外包统一管理,耗材集中采购,实施区域项目标准化管理。同时强调物联网和智能化平台建设,提升服务效率的同时保障服务品质。
保利物业持续优化拓展质量,聚焦深耕京津冀、长三角、珠三角、中部城市群四大核心经济带,在2024年上半年新拓展第三方项目单年合同金额中的占比达77.0%,同比提升10.5个百分点。
1.2 优化管理流程,提升运营效率
企业在运营管理的过程中,难免会出现机构冗杂、流程繁琐的情况,物业企业也不例外。因此应根据科学的管理方法,优化内部管理流程,减少管理层级,以提高管理效率。通过引入信息化管理系统,实现办公自动化和无纸化,降低办公费用。推行标准化、制度化,上下使用统一标准,避免因资料不合规、信息不对称而产生摩擦,降低风险。对公司的预算进行科学、严格的管理,杜绝公器私用等违规违法行为。
保利物业通过财务数智化提升业务敏捷性,有效降低了财务风险。从业务源头至财务终端,全流程实现了标准化、数字化、智能化:通过上下统一的财务体系,将分散的业务条线,都纳入到统一的管理体系之中;通过数字化,提高了数据分析能力和信息传输速度,并且做到了全流程可视化;而智能化的应用,不仅简化了数据填报中重复的部分,更提高了数据处理的效率和准确性,还能做到对敏感信息的有效过滤。
人力成本优化与人力资源质效提升

数据来源:上市物业企业年报,中指研究院整理
更多数据:中指数据CREIS物业版(点击试用)
人力成本是物业企业成本构成中最大的支出项,从过去的数据来看,通常占总成本的50%左右。随着全国十余省份陆续上调最低工资标准,多地人社局上调2025年社保缴费基数,企业用工成本将会进一步提高。物业行业基层人员从业意愿低、收入低,流动率高。作为服务型企业,优秀的物业服务人才是企业宝贵的财富,为了留住人才,需要保障员工的薪酬待遇,加之招聘、培训、试错、闲置、福利等隐性成本,人力成本压力居高不下。优化人力资源配置、提升人力资源效率是降低人力成本的有效途径。通常可以分为三个方面:
2.1 从公司内部管理结构进行人员优化,去除臃肿组织
通常会以区域合并、精简层级、精简职能部门等方式,缩减原本较为臃肿的架构。
中海物业组织架构由4级管控变成3级管控,明确“总部—城市—项目”的管控定位,赋能一线,实现强总部、做深城市、做活项目的目的;对下属二级公司进行重组清算,从19家二级公司变成13家二级公司,对组织进一步瘦身,打造匹配业务发展的柔性组织、敏捷组织。
2.2 从经营业务范围进行优化,减少低效低质项目的人力投入
通过精简低效副业,缩小业务范围,减少在非主营业务、非优势领域的投入,将重点回归到主营业务中。过去,一些物业企业引入新的业务条线,扩大了经营范围,然而随着时代的发展,这些原本优质或是具有发展潜力的条线出现了疲态,因此需要根据实际情况进行切割。
绿城服务于24年出售所持有教育公司MAG的部分股权,持股比例从53.9%降至35%,绿城方面称,原本计划透过MAG的澳洲教育系统及商业模式支持其中国幼儿教育相关业务大规模发展,如今预期该目标无法短期内实现,因而选择出售。
从项目质量角度进行优化,清退低质项目,对收缴率低、管理难度大、高投入低回报的项目进行主动切割,确保保留的项目为正向收益项目。
万物云对非价值街道内盈利能力较低的住宅项目进行修剪,23年、24年均有低质住宅物业项目被万物云主动切割。
2.3 从提高员工素质,增强单人效率,改变用工方式方面提升工作效率
可通过招聘高学历人才、高级人才的方式提升新员工质量;通过组织培训,提升老员工的工作技能;又或是合理调度人员,增加服务人员的服务半径,实现人员、设备的流转复用;也可以从人员安排层面,采用灵活用工、产业外包等方式降低固定员工占比。
各大物业公司已加强应届大学生招聘比例,使人才队伍年轻化、专业化;中建物业针对企业在职员工制定人才培养方案,强化员工在服务礼仪、工程维修、智能化管理方面的行业技能,提升了员工的专业性与工作效率;晋安区美诚物业(小型国企物业)采用连片打包共享物业模式,将无物业小区连片整合,实现统一管理,统一服务,减少了管理人员数量,扩大了员工的服务半径。

多方面引入科技成果推动降本增效
3.1 科技硬件工具提升服务效率
通过引入服务机器人、智能设备,或是在关键部位设置传感器,利用智能管理平台,实现无人化操作,提高服务效率。
万物云的黑猫智能门禁产品可支持多种开门方式,实现快速通行,无需人工进行值守;凤梨一号自助终端一体机能一站式解决业主所有日常需求,解放了办理基础业务的前台员工;垃圾满溢监测器能监测垃圾满溢状态或垃圾桶倾倒情况,出现状况时可及时通知相关人员前往处理,可以节省巡检频率,提高人员反应速度。

碧桂园服务的零号居民清洁机器人,可在4小时内清扫20层楼;智慧化电梯管理则通过传感设备除了可以实时感知电梯状态,做到异常事件监测外,还可以实现电动车阻车、自动报警等功能。

中海物业利用搭载无人机对高层建筑外墙饰面安全信息、楼体违建等情况进行长期跟踪监测,主动预防外墙空鼓、开裂破损等安全事故的发生,同时,无人机还能执行航拍、外墙清洗等其他任务,一机多能,在提升效率的同时提高了业务范围。

此外,物业企业还可以通过优化、改进设备,通过引入成熟的技术,从微小处减少开支。如通过减少设备运营时的能耗:变声光感应灯为红外感应灯、将室外照明换成太阳能灯;或是通过资源回收的方式减少消耗:推广雨水收集系统和中水回用系统,处理后可用于小区的绿化灌溉、道路冲洗。
3.2 软件优化业务流程,重构业务平台
通过智能管理平台,分析相关数据,优化业务流程,拆解复杂项目,智能协调工作,达到降本增效的目的。
万物云的灵石边缘服务器和飞鸽任务平台共同搭建起智能管理新模式,通过二者互联互通,实现了AI巡检、智能调度,大大提高了工作效率;龙湖智创生活的智慧空间科技产品矩阵,将人工智能、AIoT及智能应用等科技手段渗透在各种应用场景,通过数据分析进行管理优化,提高管理效率。

供应链体系的优化

物业企业可向上游延伸,接入供应链体系,通过成为供应商的方式,为自己定制最适合产品,如2023年,越秀物业与奥的斯的快速电梯成立合资公司,参与电梯业务。这种模式可以从需求端转变成供应端,在采购和运维等环节中获得较为优势的地位。
或是与合作方签订长期战略,利用自身市场优势,获得更优惠的价格和更优质的产品。对于供应商而言,为具有一定品牌影响力的企业长期、稳定提供产品,是提升供应商口碑、降低企业经营风险的很好的方式。这种合作模式并不局限于品牌大厂之间的强强联合,只要物业企业具有稳定的需求,就可以在谈判中获得优势。
声明:本文由入驻焦点开放平台的作者撰写,除焦点官方账号外,观点仅代表作者本人,不代表焦点立场。
