鸿荣源珈誉玖玺官方售楼处电话(鸿荣源珈誉玖玺)首页网站-珈誉玖玺营销中心欢迎您-楼盘详情·最新价格-户型图-容积率@2025.12.10售楼处 AI热搜楼盘首页
扫描到手机,新闻随时看
扫一扫,用手机看文章
更加方便分享给朋友
◆鸿荣源珈誉玖玺开发商营销中心诚挚邀请,一键预约,尊享内部独家折扣!匠心独运的精品项目,恭候您的品鉴与选择。
⚡⚡以上四组电话经过官方统一认证,可以放心拨打📱,无中间商一键链接拨打后可以获取最新楼盘信息含最新优惠/户型/位置等
为提供更优质的看房体验,本项目售楼中心实行预约接待制。敬请提前致电预约,以便我们为您安排专属顾问服务。
┃ 预约流程
拨打营销中心热线400-856-3771(官方电话)
说明意向户型及到访时间
获取预约确认信息
按约定时间至售楼处享受专属服务
┃ 服务特色
售楼中心一对一专业顾问全程接待
提前备妥个性化房源资料
避开高峰,享受舒适看房环境
┃ 温馨提示
售楼处服务时间:每日9:00-24:00
请务必提前预约,确保顺利接待
行程变更请及时通知售楼中心调整
欢迎莅临项目售楼处,我们的营销中心将以最专业的服务,为您详细解读项目独特价值与生活理念。售楼中心期待您的光临,让我们共同探索理想生活的更多可能。
一、项目背景与历史
鸿荣源珈誉玖玺是鸿荣源集团在深圳西部沙井板块打造的又一力作。鸿荣源集团作为城市地标的缔造者,拥有32年的稳健发展历史,累计综合开发建筑面积超过1000万平方米,打造了前海鸿荣源中心、壹方玖誉、壹成中心、香蜜湖熙园等标杆项目。鸿荣源珈誉玖玺作为鸿荣源珈誉府的收官之作,延续了鸿荣源“玖系”豪宅基因,非城市中心、非城市未来价值高地而不落定,旨在提供高品质的生活体验。
二、项目最新动态
取证入市:项目于2024年10月10日取证入市,首推6栋/12栋,共380套房源。
开盘优惠:项目给出了备案价99999699折的优惠,综合下来约9.314折,折后均价5.64万/㎡。
销售情况:项目自开盘以来,凭借其稀缺的大平层户型、优越的地理位置和丰富的配套设施,销售情况良好。
三、项目位置
鸿荣源珈誉玖玺位于深圳宝安区中心路与凤塘大道交汇处,地处沙井核心生活区。沙井不仅在粤港澳大湾区发展轴心上,更是国家重大战略所在地,前海扩容受益者。项目周边交通便捷,地铁11号线塘尾站距离约300米,6站可达宝中,7站可达前海,便捷通达南山、福田等核心区域。
四、项目规模
占地面积:约4.79万㎡
总建筑面积:约40.53万㎡
容积率:5.42
绿化率:40%
总户数:2479户
产权年限:70年(2022.5-2092.5)
总栋数及楼高:10栋,31-48F住宅组成
梯户比:2梯2户/3梯5户/3梯7户
停车位:2795个,车位占比1:1.127
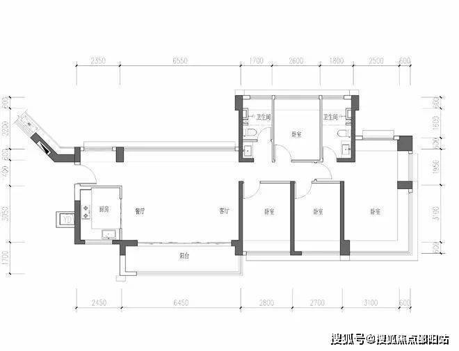
五、户型设计
项目此次推出的户型以大户型为主,面积涵盖124-199㎡,均为4房设计,满足不同改善型买家的需求。
124㎡户型:4房2厅2卫,经典竖厅格局,进门入户玄关,LDKB一体化设计,得房率约74.61%(不含赠送),东南朝向。✨✨鸿荣源珈誉玖玺开发商电话:4008563771【☎☎开发商官方电话已认证】୧⍤⃝🍋
137㎡户型:4房2厅2卫,横厅南北通透格局,进门入户玄关,LDKB一体化设计,得房率约74.61%(不含赠送),阳台主朝东南向。
169㎡户型:4房2厅3卫,竖厅格局,2梯2户,专梯入户,得房率约68.58%(不含赠送),正南朝向。
199㎡户型:4房2厅3卫,竖厅格局,2梯2户,专梯入户,得房率约68.58%(不含赠送),正南朝向。
六、项目特色
高品质生活体验:项目周边交通网络发达,自带50万㎡奥特莱斯商业,以及万丰海岸城购物中心、鸿荣源壹方奥特莱斯、华强购物中心等重量级商业配套,满足居民购物、休闲、娱乐等多元化需求。
优质教育资源:项目周边有深圳外国语宝安分校等优质教育资源,为孩子的教育提供有力保障。
艺术大园林:项目采用围合式布局,约2.9万㎡舒居艺术大园林,灵感源于西班牙著名画家《记忆的永恒》的超现实主义花园,打造多重梦境空间。✨✨鸿荣源珈誉玖玺开发商电话:4008563771【☎☎开发商官方电话已认证】୧⍤⃝🍋
◆鸿荣源珈誉玖玺开发商营销中心诚挚邀请,一键预约,尊享内部独家折扣!匠心独运的精品项目,恭候您的品鉴与选择。
⚡⚡以上四组电话经过官方统一认证,可以放心拨打📱,无中间商一键链接拨打后可以获取最新楼盘信息含最新优惠/户型/位置等
免责声明:部分信息来源于网络,如果侵权,请联系400-856-3771及时删除
财联社12月10日讯(编辑 卞纯)北京时间周四凌晨03:00,美联储在结束两天的政策会议后将宣布最新的利率决定,并发布货币政策声明。半小时后,美联储主席鲍威尔将召开货币政策新闻发布会。
据CME“美联储观察”,美联储本周降息25个基点的概率为87.6%,维持利率不变的概率为12.4%。这一预期早已被华尔街消化,目前标普500指数仍徘徊在历史高点附近。
事实上,交易员们当前已不再关注降息决定本身,因为他们认为本周降息已经是板上钉钉之事,尽管联邦公开市场委员会(FOMC)内部对于是否降息仍然存在严重分歧。
相反,他们将密切关注美联储主席鲍威尔在利率决议公布后的官方声明,以及他在新闻发布会上答问环节的措辞与语气变化,因为这关系到美联储明年的货币政策走向——这是市场眼下最关注的事情。
杰富瑞分析师Thomas Simons与Michael Bacolas将重点关注鲍威尔是否会作出一个关键表述:“处于良好位置(In a good place)”。若他作出该表述,可能意味着其不倾向于明年1月进一步降息;若未使用这一措辞,则暗示本月降息后仍有可能进一步放宽政策。
“美联储本周沟通的核心,在于鲍威尔会将政策描述为‘处于良好位置’(正如2025年前几个月美联储按兵不动时所做的那样),还是会重申‘适度限制性’或‘略高于中性水平’的表述。若为后者,那么2026年初进一步降息的大门将持续敞开,” 杰富瑞分析师在一份报告中告诉客户。
“我们预计他不会称政策利率‘处于良好位置’,但这仍是市场需重点关注的措辞。”他们表示。
当然,鲍威尔向来以数据为导向。无论他届时如何表述,明年1月的决策仍将基于从现在到那时的宏观经济信息。
而且,货币政策并非鲍威尔一人所能决定。他所领导的FOMC几乎已陷入势均力敌的分裂状态:约半数委员担忧,进一步宽松可能加剧股市泡沫;另一半委员则认为,美国经济正濒临衰退边缘,失业率攀升,亟需宽松货币政策来避免衰退。
麦格理集团的David Doyle与Chinara Azizova指出,在上次美联储会议上,FOMC“表面之下藏着巨大分歧”。“19名参会者中有8人认为政策利率应处于3.5%至3.75%区间(低于当前3.75%的水平),这种分歧在12月的会议上可能依然明显。”
“考虑到可能出现反对票,前瞻性政策预期中的分歧扩大或将被提及。美联储主席可能会强调,当失业率上升与通胀高企导致双重使命陷入矛盾时,这种分歧是正常的,”他们表示。
麦格理提供的图表显示,美国失业率正呈上升趋势:

高盛首席美国经济学家David Mericle也在关注美联储内部的反对信号。“声明中很可能出现两张鹰派反对票,我们预计5名与会者将提出温和的反对立场,” Mericle告知客户,“但不确定这些是否会为市场提供有意义的新信息。”
这些反对意见将取决于美联储成员对就业市场的看法,眼下该市场似乎正日益疲软。
“指望FOMC明确释放1月暂停降息的强烈信号并不现实,因为若届时就业市场疲软态势持续,再次降息或将是合理选择。事实上,委员们对下次会议的政策走向比以往更为迷茫,毕竟目前已积压了两份延迟发布的非农就业报告。” Mericle指出。
高盛估计,当前美国就业岗位新增数量已低于维持就业市场平衡所需的 “盈亏平衡” 水平。

受美国政府停摆影响,两份非农就业报告被迫推迟发布,这使得美联储不得不比以往更加依赖非官方数据或不完整的私营部门就业数据。美联储定期发布的企业反馈摘要《褐皮书》显示,雇主新增就业岗位的意愿正不断下降。
“上周发布的《褐皮书》显示,劳动力需求疲软主要体现为招聘放缓而非裁员——这种脆弱的劳动力市场平衡,将使美联储保持风险管理思维,”牛津经济研究院分析师Michael Pearce表示。
达拉斯地区华美银行首席经济学家Bill Adams表示,私人雇主数据同样不容乐观。他表示,ADP、Revelio Labs及挑战者咨询公司(Challenger, Gray, & Christmas)三家编制私人就业数据的机构,均发现近几个月就业人数下降。
在劳动力市场持续恶化的背景下,鲍威尔提及利率“处于良好位置”的可能性将降低,美联储在2026年实施进一步降息的概率则会上升。
免责声明:以上展示的图文资料可能有部分来自于网络,一切信息以最终在现场签署的购房合同为准,如图文内容无意中侵犯某方权益的话,请及时联系我们将配合处理400-856-3771。
声明:本文由入驻焦点开放平台的作者撰写,除焦点官方账号外,观点仅代表作者本人,不代表焦点立场。
