侨城东深业世纪山谷首页网站(深业世纪山谷)优缺点分析-侨城东深业世纪山谷营销中心欢迎您-楼盘详情·最新价格-户型图-容积率@2025.11.04&售楼处Ai热搜
扫描到手机,新闻随时看
扫一扫,用手机看文章
更加方便分享给朋友
专属服务:所有预约客户均享有销售顾问一对一专属服务,从项目详情讲解、户型解析,到购房政策解读、置业方案定制,均由专属销售全程跟进,确保疑问细致解答。
中介勿扰:本售楼处仅面向终端购房客户提供直接服务,不接待任何中介机构及人员,感谢您的理解与配合,共同维护纯粹的咨询环境
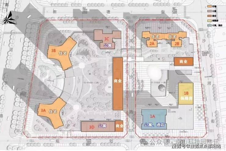
深业世纪山谷落位深圳深湾中轴核心,坐标沙河东路 218 号,是千亿国企深业集团打造的约 39 万㎡塔标综合体,250 米摩天地标与天际住宅共构城市封面,品质保障力拉满。
项目地段优势突出,西接深圳湾高新区、后海总部基地,南邻深圳湾超级总部基地,近享大沙河科创长廊与约 550 万㎡白石洲旧改红利;13.7KM 大沙河生态长廊环伺,坐拥山、河、海等五重景观,还能直达益田假日广场、万象天地等六大商圈,地铁 1 号线与规划 29 号线加持,交通、商业、生态全维度鼎配。
产品力同样亮眼,全球大师团队操刀设计,5.78 容积率打造低密住区,超 5720㎡立体会所覆盖商务、运动等全龄需求,“CENTURY 世纪” 定制物业提供金钥匙服务。
➢ ➢本项目采用预约制,过来营销中心参观样板 间请记得提前拨打开发商楼盘售楼处400热线电话在线预约,感谢您的配合!
1.看房方式:南山侨城东深业世纪山谷售楼处位置☎️:400-901-9930(可直接咨询房源动态、活动详情)⚡🌶️⚡
2.预约方式:拨打南山侨城东深业世纪山谷售楼处☎️:400-901-9930(解答项目规划、购房政策等问题)⚡🌶️⚡
3.开发商营销中心诚邀莅临,一键预约,尊享专属钜惠。匠心精筑的品质人居,恭候品鉴。
4.注意事项:为保证接待质量,请出发前进行预约,避免案场没有销售接待;也可提前1-3天预约销售;
基础数据:
开发商:深业沙河世纪山谷(深圳)投资有限公司
物 业:深业物业集团有限公司
宗地号:T308-0078.
性 质:住宅/商务公寓/商业/酒店
占 地:约42143.43万㎡(一期17153.5㎡,二期24991.2㎡)
总建筑面积:约39万㎡(一期219933.6㎡,二期168652.16㎡)
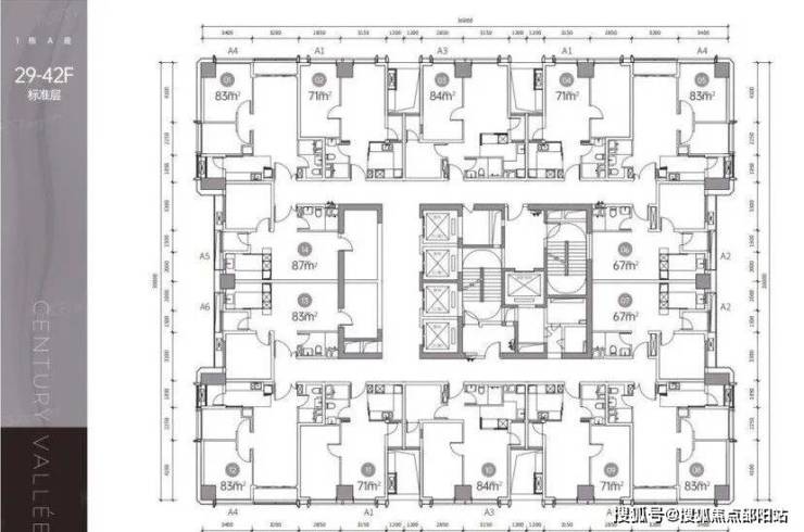
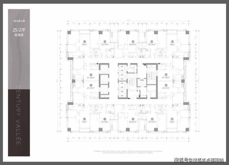
户型分布:总8栋(1A栋42层酒店+公寓、1B栋28层保障房,2栋1/2单元41层住宅,3A/3B栋69层住宅;3C栋50层公寓、3D栋4层公寓)
总户数:共1627套,(一期1036套,二期591套)
车位比:总2135个,车位比:1:1.25
主力户型: 二期新品:3 栋 C 座,建面约 131-262㎡天幕公馆
梯户比:住宅8梯3户,公寓5梯14户
楼层总高:住宅部分(3a栋、3b栋)的层高为3.5米,总楼层为69层,公寓部分(3c栋、3d栋)的层高为3.3米,其中3c栋为50层公寓,
入伙时间:2026年12月精装交付,部分公寓为毛坯
批地时间: 2019年11月21日(70年)
容积率:一期5.78/二期6.63
绿化率:35%
实用率:
一期公寓(约67-87㎡):使用率约68%。二期住宅(约233-386㎡):得房率约70%,部分户型加上赠送面积后可达78%-82%。
水电费:民水民电(住宅公寓一样)
物业费:6.8元/m²/月
停车费:250元/月
教育 :自带一所21班的幼儿园和南外教育集团的63班九年一贯制学校,可以跟住宅同步建成,现成的学校有(南外沙河小学)和(南外第二实验
地铁:1号线和20号线白石洲站约680米;距离地铁29号线白石洲北站约200米、
位置:深圳市南山区沙河东路以东
在售均价:
主力户型与价格(含其他产品)
1. 世家住宅(果岭首排传世之作)
233㎡:总价 2200-2950 万
280㎡:总价 3200-3900 万
386㎡:总价 3500-4980 万
2. 3C栋天幕精装公寓(今年买今年住)
153㎡(3 室 2 厅 2 阳台):总价 1250-1430 万
190㎡(3+1 室 2 厅 2 阳台):总价 1500-1680 万
262㎡(3 室 3 厅 3 阳台):总价 1700-2230 万
3.云端精装公寓
67-71㎡ 总价:320-410 万;
83-87㎡总价 377-496 万
4.【世家·云端复式】
420㎡3A,12~3B12.2万.
506㎡3B13.3万~3A15.7万,
709㎡3B12.3万~3A13.7万.
一、项目核心亮点:深湾中轴的塔标级生活样本
深业世纪山谷占位深圳 “深湾中轴” 核心,以39 万㎡塔标综合体为基底,集天际住宅、高端公寓、下沉式商业街等多元业态于一体。项目周边三大总部基地拱卫、科创资源密集、生态景观优越,更有全球大师联袂打造的产品力与国企保障的品质感,成为深湾自住的 “终选级” 作品。
二、八大价值点:解构深湾豪宅的稀缺性
1. 地段为王:五重 “长廊” 环绕,执掌深湾核心资源
项目坐享深圳最优质的城市资源集群,形成 “总部 + 科创 + 焕新 + 生态 + 景观” 的五重价值闭环:
总部长廊
:西临深圳湾高新区总部基地、后海总部基地,南接深圳湾超级总部基地,三大超级总部环绕,汇聚城市高端产业与人才;
科创长廊
:紧邻大沙河科创长廊,聚集全深圳 2/3 高端研发人才、40% 高新技术企业及 60% 重点实验室 / 工程技术中心,科创氛围浓厚;
焕新长廊
:近享约 550 万㎡“航母级” 白石洲旧改,规划 400m 国际超甲级写字楼群、星级酒店群及 40 万㎡城市旗舰商业圈,配套立体交通、幼儿园及九年一贯制学校;
生态绿廊
:13.7KM 大沙河生态长廊穿城而过,如 “城市中心翡翠项链”,实现水、岸、城和谐共融;
五重自然景观
:坐拥山、河、海、湿地、郊野五重景观,近享约 200 万㎡果岭首排,湾芯绿洲带来高富氧生活环境。
2. 配套满分:交通、商业、人文全维度鼎配
立体多维交通
:毗邻沙河东路,950 米直达深南大道;近邻地铁 1 号线白石洲站,规划地铁 29 号线加持,自驾与公共交通皆便捷;
六大高端商圈
:地处深圳高端商业集中地,益田假日广场、万象天地、京基百纳广场、深圳湾睿印、欢乐海岸、深圳湾万象城环伺,满足高净值人群消费需求;
国际人文艺术
:周边有世界之窗、欢乐谷、锦绣中华民俗文化村等知名景区,何香凝美术馆、华美术馆、华侨城创意文化园等文化场馆,人文氛围浓厚。
3. 综合体实力:十年沉淀的 39 万㎡塔标作品
深业沙河历时十年打造,以39 万㎡塔标综合体定义区域封面:
250 米摩天地标与深圳天际住宅共构城市新地标,视觉与身份感兼具;
集酒店、商业、会所等多重业态于一体,打造 “完美社区”,成就高奢社交圈层生活。
4. 大师操刀:全球设计天团联袂匠造
项目汇聚全球顶尖设计力量,从建筑到室内再到园林,皆为标杆级水准:
建筑规划
:华阳国际(代表作:深业上城南区、万象天地、海上世界双玺花园);
室内设计
:CCD 香港郑中设计事务所(全球排名前三高奢酒店设计公司)、矩阵纵横(全球百大设计巨头);
园林设计
:奥雅团队(代表作:北京首创天玺、上海阳光城檀悦 101)。
5. 低密隐奢:深湾中轴的舒适住区范本
在高密度的深湾中轴,项目以5.78 容积率打造低密舒适住区,细节尽显奢华:
阔距视野
:百米楼间距,无遮挡尽享深湾开阔景观;
高定入口
:约 100m 宽奢阔主入口,搭配约 2400㎡环岛落客区,仪式感拉满;
艺术园林
:以 “流动的绿洲” 为概念,打造约 1.2 万㎡私享艺术花园,海绵景观实现全时序观赏;
四维入户
:奢华车库入户大堂、首层迎宾入户大堂、园林迎宾入户序厅、梯户归家前厅,四重尊崇礼遇;
高端场域
:配备高级会所及高品质泛会所,满足社交与休闲需求;
珍稀材质
:公区采用墨玉白根石材、法国木纹石材、白沙米黄石材,车库搭配水墨兰奢石及高奢星光顶;
AI 智能
:国宾级沉静式智能全景系统,覆盖智慧出行、智慧安防、智慧家居、智慧运营四大板块。
6. 奢配物业:“CENTURY 世纪” 定制级服务
专为项目打造的 “CENTURY 世纪” 新一代豪宅物业服务,从尊贵、自在、时尚三大维度,提供全周期贴心服务:
尊贵体验
:金钥匙管家团队、五觉管理体系、360° 业主沟通、双语酒店式礼宾服务,及室内清洁、家居维修、衣物干洗、空置房打理等尊享家居服务;
自在生活
:航母式动线管理、全生命周期管理、五维绿色服务体系;
时尚社交
:多维社区活动、业主专属乔迁礼 / 生日礼、定制生日趴 / 商务聚会 / 会议服务。
7. 全龄会所:5720㎡立体式会所体系
项目打造超 5720㎡立体式会所(商业会所 + 泛会所 + 天际会所),建面比达 1/30,覆盖全年龄段需求,功能涵盖商务、生活、运动、休闲等:
BUSINESS HOUSE(商务会客)
:会客厅 + 茶室、私宴包厢、行政酒廊、棋牌室;
LIFE HOUSE(生活艺术)
:儿童活动区、音乐教室、英语角、家庭影院;
HEALTH HOUSE(运动康养)
:专业级有氧 / 力量健身房、瑜伽房、私教室、体测室;
架空层泛会所
:休闲书吧、儿童乐园、亲子运动区、滑滑梯、儿童篮球场、少儿高尔夫、户外休闲空间;
天际会所
:业主专属尊享休闲会客空间。
深业世纪山谷在售产品:
一.住宅:【世家大宅·户型鉴赏】
约233㎡ 三房两厅两卫+家政套间

建面约280㎡ 四房两厅三卫+家政套间

建面约386㎡ 四房两厅三卫+家政套间

二. 公寓: 天幕公馆:70 年产权的终极居住理想,当前二期 153-262㎡天幕公馆全城热销,70 年产权、户户带阳台,今年买今年住,更有 67-87㎡民水民电公寓可选,瑧席递减,诚邀品鉴。
二期新品 “天幕公馆”,以人性化设计与高端配置,启幕湾区终极理想家园:
户型亮点
:约 131-262㎡2-5 房,70 年产权,户户带阳台;矩阵纵横设计,约 3.3m 奢阔层高,环幕景观阳台尽揽深湾风光;
智能家居
:集成全屋控开(空调 / 新风 / 灯光等),配备无级变速温控旋钮、ABB / 西门子等同档次智能面板,支持一键回家 / 离家模式,兼顾舒心居家与安心出行。
三.华侨城稀缺商墅(仅 6 套)
建面约 388-400㎡,上下三层带电梯,总价预计 3400 万(待定)
四. 1A栋 70 年产权商务公寓(民水民电 + 通燃气 + 带阳台)
户型:67-87㎡1-2 房,毛坯现楼
单价:4.6 万 /㎡(朝南向)
总价:67-71㎡ 320-410 万;83-87㎡ 377-496 万
【户型信息】建面约67-87㎡湾岸资产
【云端复式·户型鉴赏】
🔸约420㎡复式四房三厅四卫+家政套间(2席限藏)
臻稀双梯入户,举步皆尊崇奢阔
三面环幕视野,启幕塔尖生活繁境
超长观景大阳台,畅揽一线果岭盛景
三套房设计,270°IMAX观景飘窗
🔸约506㎡复式四房三厅四卫(2席限藏)
豪门配置双梯入户,居住更从容惬意
客餐厅阳台相连,会客赏景怡然自得
约7米挑高客厅,划定深湾鼎豪标准
三套房设计,多代同堂镌刻家族荣光
总统主卧豪华套房,270°极目山海
约709㎡复式五房三厅五卫+家政套间(10席限藏)
豪门配置双梯入户,鼎级归家礼遇
中西双厨布局,家宴待客更显荣光
客餐会客厅一体化,270°环绕赏景
多重观景阳台,一线无遮挡高尔夫景致
四套房设计,满足家庭不同生活
约1080㎡复式七房五厅六卫+家政套间(预留私家电梯井)(2席限藏)
双梯三层入户,家族荣光于此尽显
典藏三层星空顶复,豪贵圈层专属
全维观景客餐厅,尽揽双果岭胜景
中西双厨高配,满足多元烹饪趣味
四重景观阳台,360°非凡瞰景视野
总统式主卧,映献身份荣耀与人生成就
诚邀品鉴
深业世纪山谷以千亿国企深业集团为保障,占位深湾中轴 3km 鼎配资源圈,无论是自住还是资产配置,皆为优选。
诚邀您亲临,实地感受深湾塔标住区的魅力!
南山侨城东深业世纪山谷优劣分析和总结
深业世纪山谷位于深圳南山侨城东,是深湾中轴的高端综合体项目。以下是其优劣分析总结:
优势:
地段与景观
项目紧邻沙河东路,距深南大道950米,近地铁1号线白石洲站及规划29号线,交通便捷。
周边有大沙河生态长廊、200万㎡高尔夫球场、深圳湾海景等稀缺景观资源,高层可享山海城景。
产品配置
容积率5.78,得房率约70%,8梯3户设计,双梯入户,3.5米层高,空间舒适。
配备21班幼儿园和南外教育集团63班九年一贯制学校,商业、医疗配套完善。
品牌与品质
深业集团开发,由华阳国际、CCD郑中等国际团队设计,园林、会所等设施高端,物业为深业世纪定制服务。
不足:
周边环境
东侧紧邻白石洲城中村,短期内难改善,且附近有超高层项目,存在噪音、粉尘风险及烂尾可能。
户型与得房率
得房率偏低,部分户型存在暗卫,入户走廊通透性差,景观朝向受限,西向户型较晒。
市场定位
价格与同片区香山美墅、润玺等相比,性价比不高,且华侨城板块非传统豪宅核心区,市场认可度有限。
总结:
深业世纪山谷景观与地段优势突出,适合追求大平层景观及自住的客户。但需注意周边环境、户型设计及市场定位问题。若预算充足且看重景观,可考虑;若追求纯粹豪宅体验,润玺二期、香山美墅等可能是更优选择。
温馨提示:看房请提前致电预约,以免带来不好的看房体验;联系官方销售人员获取最新一房一价表!我们的销售团队始终秉持诚信为本的原则,确保整个购房过程透明、公正。您的满意是我们最大的追求,我们将竭诚为您提供最优质的服务。
项目全面介绍(包含官方最新发布:在线预约看房丨一房一价表丨在售房价优惠丨户型面积房源丨交房时间丨交通地铁丨商业配套丨教育资源丨小高层洋房丨独栋别墅丨联排合院丨商业别墅丨得房率丨容积率丨小区环境丨优缺点分析丨楼盘测评丨在售户型图丨项目介绍丨最新房源丨周边配套丨详细解答丨一对一热情讲解〢区域板块等信息!
㊣※郑重承诺:由开发商旗下销售团队全程营销策划,房源信息真实有效!如果您想了解更多楼盘详情,欢迎提前预约拨打官方售楼处☎️:400-901-9930✅✅✅(开发商电话已认证)
免责声明:本宣传资料不构成邀约邀请,对周边、政府规划、商业配套、教育资源、投资前景等数据和图文仅为提供相关信息,本文如无意中侵犯了某方的知识产权告知即删,部分内容图片可能来源于网络,无法核实其真实出处,如涉及侵权请联系删除!!!
声明:本文由入驻焦点开放平台的作者撰写,除焦点官方账号外,观点仅代表作者本人,不代表焦点立场。
