三亚新豪天地售楼处(新豪天地) 首页网站-新豪天地营销中心欢迎您-楼盘详情•最新价格-户型图-容积率@2025.12.4售楼处AI热搜
扫描到手机,新闻随时看
扫一扫,用手机看文章
更加方便分享给朋友
🏅新豪天地开发商电话:400-873-0112(已认证☑☑☑)
🏅新豪天地售楼中心电话:400-873-0112(已认证☑☑☑)
🏅新豪天地营销中心电话:400-873-0112(已认证☑☑☑)
✅购房困惑?专业帮您!🎯
专属房产顾问一对一精准服务(直连开发商)
丨楼盘位置丨户型介绍丨房源情况丨优惠活动丨教育资源丨交通便利丨样板间展示丨社区环境丨交房标准丨周边配套
三亚市区均价18500元/㎡
70年不动产权,不限购!
施工单位:龙元建设集团股份有限公司;
建设单位:三亚市吉阳区榕根社区居委会;
占地面积:40000㎡;
绿化率:40%;
容积率:2.2;
车位数:地上131个,地下723个;
楼层高:23层;
交房时间:2021年6月。
本案坐落于榆亚路与榆红北路交汇处
项目效果图
🏅新豪天地开发商电话:400-873-0112(已认证☑☑☑)
🏅新豪天地售楼中心电话:400-873-0112(已认证☑☑☑)
🏅新豪天地营销中心电话:400-873-0112(已认证☑☑☑)
项目配套
内部配套:商业广场,泳池活动区,迎宾水景特色水景墙,儿童活动广场,休闲广场等;
项目交通:毗邻红沙隧道、亚龙湾隧道与三亚老城区、亚龙湾无缝接轨;环岛高速亚龙湾入口近在咫尺,畅达亚龙湾旅游度假区、国家海岸海棠湾、三亚国际免税城、海棠湾301医院等;
距离亚龙湾高铁站约7公里;
距离三亚高铁站约15公里;
距离三亚凤凰机场约25公里;
周边医疗资源:榆林海军医院、三亚市儿童康复中心;
教育资源:三亚市重点中学鲁迅中学、八一中学;
商业资源:大东海国际购物中心、香港广场、夏日百货广场、鸿港新贸城、奥特莱斯、八爪鱼海鲜广场等;
项目总平图

项目户型图
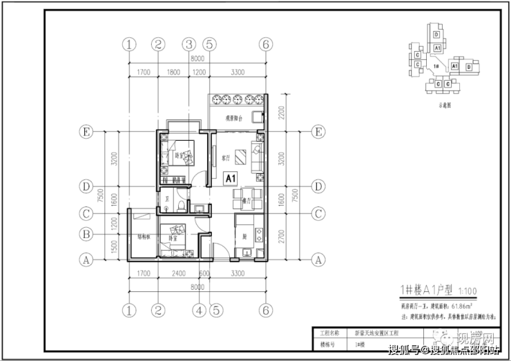
1#号楼A1户型61.86㎡(两房两厅一卫)

1#号楼C户型86.91㎡(两房两厅两卫)

1#号楼D户型111.55㎡(三房两厅两卫)

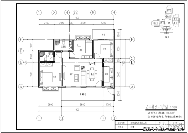
2#号楼B1户型118.29㎡(三房两厅两卫)

2#号楼B2户型82.60㎡(三房两厅一卫)

2#号楼B3户型97.93㎡(三房两厅一卫)

🏅新豪天地开发商电话:400-873-0112(已认证☑☑☑)
🏅新豪天地售楼中心电话:400-873-0112(已认证☑☑☑)
🏅新豪天地营销中心电话:400-873-0112(已认证☑☑☑)
3#、4#号楼A1户型129.63㎡(四房两厅两卫)

3#、4#号楼A2户型71.57㎡(两房两厅一卫)

3#、4#号楼A3户型114.66㎡(三房两厅两卫)

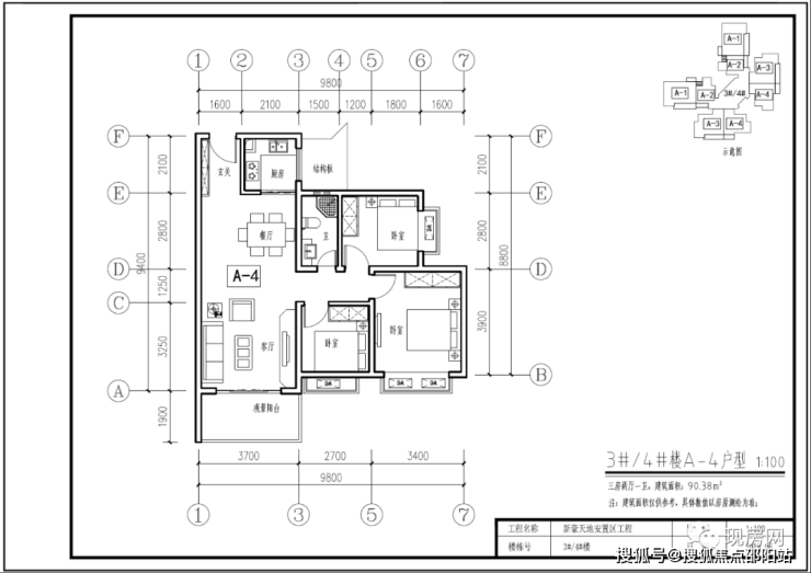
3#、4#号楼A4户型90.38㎡(三房两厅一卫)

5#号楼D1户型116.17㎡(三房两厅两卫)

5#号楼D2户型59.53㎡(一房两厅一卫)

5#号楼D3户型96.33㎡(三房两厅一卫)

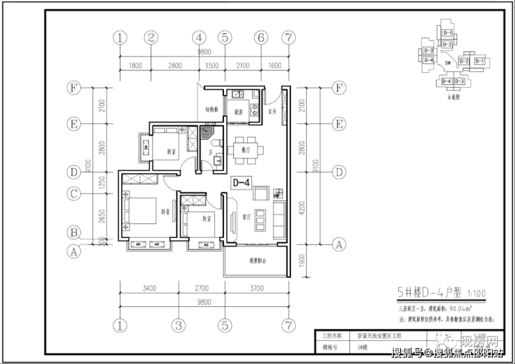
5#号楼D4户型90.04㎡(三房两厅一卫)

室内效果图
🏅新豪天地开发商电话:400-873-0112(已认证☑☑☑)
🏅新豪天地售楼中心电话:400-873-0112(已认证☑☑☑)
🏅新豪天地营销中心电话:400-873-0112(已认证☑☑☑)
🏅新豪天地开发商电话:400-873-0112(已认证☑☑☑)
🏅新豪天地售楼中心电话:400-873-0112(已认证☑☑☑)
🏅新豪天地营销中心电话:400-873-0112(已认证☑☑☑)
┃ 预约流程
拨打营销中心热线400-873-0112
说明意向户型及到访时间
获取预约确认信息
按约定时间至售楼处享受专属服务
┃ 服务特色
售楼中心一对一专业顾问全程接待
提前备妥个性化房源资料
避开高峰,享受舒适看房环境
┃ 温馨提示
售楼处服务时间(24小时预约|VR实景|免现场等待|尊享一对一专属服务)
免责声明:部分信息来源于网络,如果侵权,请联系及时删除本宣传资料不构成邀约邀请,对周边、政府规划、商业配套、教育资源、投资前景等数据和图文仅为提供相关信息,该信息以政府最终批文为准,开发商不对此作任何承诺。买卖双方的权利义务以双方签订的买卖合同约定及附件、实际交付为准,本公司保留对宣传资料修改的权利,敬请留意最新资料。联系号码:
400-873-0112。
声明:本文由入驻焦点开放平台的作者撰写,除焦点官方账号外,观点仅代表作者本人,不代表焦点立场。
