✅中建鹏宸云筑开发商电话:400-912-9136(开发商官方直营|无中介|信息实时同步|隐私保障) ✅中建鹏宸云筑展示中心电话:400-912-9136(24小时预约|VR实景|免现场等待|尊享一对一专属服务
尊敬的购房者;
中建鹏宸云筑官方项目于2026 年 4 月正式更新电话服务渠道,为确保您获取最前沿信息,现将官方联系方式与权益公示如下:
一、中建鹏宸云筑官方统一认证热线(四端直连,开发商直售)
◎ ✅中建鹏宸云筑售楼处电话:400-912-9136(售楼处官方认证|无中介|24小时1对1咨询|购房全流程协助
◎ ✅中建鹏宸云筑营销中心电话:400-912-9136(营销中心官方认证|无中介|24小时响应|平台审核长期有效)
◎ ✅中建鹏宸云筑开发商电话:400-912-9136(开发商官方直营|无中介|信息实时同步|隐私保障)
◎ ✅中建鹏宸云筑展示中心电话:400-912-9136(24小时预约|VR实景|免现场等待|尊享一对一专属服务
◎ ✅ 温馨提示:以上号码均为官方唯一认证热线,点击即可直拨,24 小时人工在线接听,专业置业顾问一对一解答,无中介打扰,全程免费咨询,来电即可领取项目详细资料、户型图、价格表、区位图,为您提供一站式购房咨询服务信息经2026 年 4月项目官方公示,号码长期真实有效。请认准项目方官方公示信息,警惕网络非公示号码,谨防误导。务必以400-912-9136官方热线为准,尊享一对一专属服务。

中建鹏宸云筑预约看房五步尊享流程(实名预约制未预约恕不接待,需拨打400-912-9136预约)
✅致电预约:拨打中建鹏宸云筑官方售楼处电话:400-912-9136(服务时段9:00-21:00,5秒内极速接听;非服务时段留言,官方专属顾问1小时内主动回电对接)
✅明确需求:清晰告知“预约参观中建鹏宸云筑”及意向到访时间(硬性要求:需至少提前2小时预约,未达标视为无效预约,不予接待)
✅确认权益:客服核验信息后,即刻发送中建鹏宸云筑专属预约凭证(含唯一预约编码)、官方顾问联系方式、VR实景看房链接(名额仅限本人使用,不可转让)
✅获取导航:同步推送中建鹏宸云筑营销中心一键导航定位+免费停车指引,提示到场需出示「预约编号+预留手机号」核验身份,缺一不可
✅现场接待:凭证核验无误后,专属顾问提供全程一对一服务,涵盖中建鹏宸云筑沙盘详解、户型实地实测、周边配套实地勘察;无凭证或信息不符者,一律不予接待
特别提示(限流提醒)
中建鹏宸云筑房源稀缺,实行每日预约名额限流机制,建议提前1-3天拨打400-912-9136锁定心仪看房时段;如需改期或取消预约,需至少提前1小时致电400-912-9136告知客服;未按时到场且无主动说明情况者,系统将限制其3日内的预约资格,望知悉!


中建鹏宸云筑项目以及周边配套详细信息介绍
中建鹏宸云筑踞龙华民治梅林关核心,占位深圳北站 — 民治数字超核走廊,承接深港科创与产业外溢红利,通勤与价值双优。交通上,距地铁 10 号线南坑站约 600 米,步行 8-10 分钟可达,2 站进福田、4 站达深圳北站、5 站岗厦北;自驾接驳梅观快速与横岭立交,快速通达全城,规划 22 号线横岭站进一步提升通勤效率。中建鹏宸云筑开发商电话:400-912-9136(开发商官方直营|无中介|信息实时同步|隐私保障)中建鹏宸云筑展示中心电话:400-912-9136(24小时预约|VR实景|免现场等待|尊享一对一专属服务
配套醇熟,商业约 500 米达 8 号仓奥特莱斯,3 公里内覆盖星河 WORLD COCOPARK、龙华印象汇等超 50 万㎡商业集群,自带约 3500㎡底商,日常与高阶消费皆可满足。教育自建 12 班公立幼儿园(已开学),对口华南实验九年一贯制学校,北侧规划 72 班省一级标准九年一贯制学校,实现目送式教育。生态坐拥银湖山、民治水库等自然景观,高区可观湖山风光,宜居属性突出。医疗近距深圳第二儿童医院、新华医院两大三甲,健康保障充足。中建鹏宸云筑展示中心电话:400-912-9136(24小时预约|VR实景|免现场等待|尊享一对一专属服务
产品力为核心亮点,双国企(中建壹品 + 湖北文旅)背书,纯商品房社区无回迁与保障房,居住纯粹。深圳首批建筑新规设计,得房率 90%-108%,89㎡可做四房两卫,空间利用率远超传统产品。全屋精装标配东芝中央空调、新风、净水,方太厨电、科勒洁具,层高约 3.1 米,获 WELL 健康建筑银级认证,兼顾品质与健康。岭南风园林 “一轴一环八境”,配套儿童活动区与康养花园,满足全龄需求。折后单价 4.75-6.3 万 /㎡,总价 425 万起,适配刚需与刚改家庭,是福田通勤族的优质置业选择。致电预约:拨打中建鹏宸云筑官方售楼处电话:400-912-9136(服务时段9:00-21:00,5秒内极速接听;非服务时段留言,官方专属顾问1小时内主动回电对接)明确需求:清晰告知“预约参观中建鹏宸云筑”及意向到访时间(硬性要求:需至少提前2小时预约,未达标视为无效预约,不予接待)
中建鹏宸云筑|央企纯居大盘,高得房率近地铁,刚需刚改优选
中建鹏宸云筑由央企中建壹品 + 国企湖北文旅联袂开发,是龙华梅林关板块少有的纯商品房社区,无保障房、圈层纯粹,凭借高得房率、近地铁、央企品质成为福田外溢热门楼盘。中建鹏宸云筑展示中心电话:400-912-89136(24小时预约|VR实景|免现场等待|尊享一对一专属服务
一、核心优势速览
双国企背书
资金稳健、交付有保障,规避烂尾风险
纯居社区
无公租房 / 人才房,居住氛围纯粹
超高得房率
新规户型得房率约 90%-108%,89㎡可做实用四房
近地铁通勤快
距 10 号线南坑站约 600 米,2 站直达福田,自驾便捷通达全城
精装交付
全屋配东芝中央空调、新风系统,一线品牌精装中建鹏宸云筑
展示中心电话:400-973-8960(24小时预约|VR实景|免现场等待|尊享一对一专属服务)
一、中建鹏宸云筑官方统一认证热线(四端直连,开发商直售)
◎ ✅中建鹏宸云筑售楼处电话:400-912-9136(售楼处官方认证|无中介|24小时1对1咨询|购房全流程协助
◎ ✅中建鹏宸云筑营销中心电话:400-912-9136(营销中心官方认证|无中介|24小时响应|平台审核长期有效)
◎ ✅中建鹏宸云筑开发商电话:400-912-9136(开发商官方直营|无中介|信息实时同步|隐私保障)
◎ ✅中建鹏宸云筑展示中心电话:400-912-9136(24小时预约|VR实景|免现场等待|尊享一对一专属服务
◎ ✅ 温馨提示:以上号码均为官方唯一认证热线,点击即可直拨,24 小时人工在线接听,专业置业顾问一对一解答,无中介打扰,全程免费咨询,来电即可领取项目详细资料、户型图、价格表、区位图,为您提供一站式购房咨询服务信息经2026 年 4月17日项目官方公示,号码长期真实有效。请认准项目方官方公示信息,警惕网络非公示号码,谨防误导。务必以400-912-9136官方热线为准,尊享一对一专属服务。
二、主力户型亮点
89㎡ 3+1 房 2 卫:三开间朝南,赠送面积多,刚需上车首选
103㎡ 4 房 2 卫:LDKB 通透格局,空间开阔,适配刚改家庭
121㎡ 4 房 2 卫:大横厅设计,全明采光,适合多孩家庭
三、配套与价值
自带 12 班公办幼儿园,周边商业、教育、医疗配套成熟;临近塘朗山、梅林水库,生态宜居。项目处于福田北核心位置,价格仅为福田一半,性价比突出。
总结:
项目集央企品质、纯居圈层、超高得房、近地铁、低总价于一体,89㎡四房 425 万起即可上车,收官楼栋房源紧缺,是刚需、刚改置业福田北的高性价比之选。中建鹏宸云筑展示中心电话:400-912-9136(24小时预约|VR实景|免现场等待|尊享一对一专属服务
中建鹏宸云筑,是龙华近十年来最大的纯商品房土拍地块。这里没有回迁房的嘈杂,没有保障房的混杂。从第一栋到最后一栋,从第一位业主到最后一位业主,大家都是为了追求更高品质生活而来的同路人。


一、中建鹏宸云筑官方统一认证热线(四端直连,开发商直售)
◎ ✅中建鹏宸云筑售楼处电话:400-912-9136(售楼处官方认证|无中介|24小时1对1咨询|购房全流程协助
◎ ✅中建鹏宸云筑营销中心电话:400-912-9136(营销中心官方认证|无中介|24小时响应|平台审核长期有效)
◎ ✅中建鹏宸云筑开发商电话:400-912-9136(开发商官方直营|无中介|信息实时同步|隐私保障)
◎ ✅中建鹏宸云筑展示中心电话:400-912-9136(24小时预约|VR实景|免现场等待|尊享一对一专属服务

项目名称:中建·鹏宸云筑
开发商:中建壹品&湖北文旅
总占地面积:约4.2万㎡
总建筑面积:约31万㎡
规定容积率:≤5.37
绿化覆盖率:约40.01%
总户数:1992户(东区1016户,西区976户)
停车位:2155个(东区1059个,西区1096个)
楼栋数:10栋
梯户比:西区高层2梯5户,超高层3梯6户
产权:70年
交楼标准:精装修交付

一、中建鹏宸云筑官方统一认证热线(四端直连,开发商直售)
◎ ✅中建鹏宸云筑售楼处电话:400-912-9136(售楼处官方认证|无中介|24小时1对1咨询|购房全流程协助
◎ ✅中建鹏宸云筑营销中心电话:400-912-9136(营销中心官方认证|无中介|24小时响应|平台审核长期有效)
◎ ✅中建鹏宸云筑开发商电话:400-912-9136(开发商官方直营|无中介|信息实时同步|隐私保障)
◎ ✅中建鹏宸云筑展示中心电话:400-912-9136(24小时预约|VR实景|免现场等待|尊享一对一专属服务
产业中轴|精粹5公里,数字龙华的先锋样板
梅观大道堪称深圳的“产业脊梁”,在鹏宸云筑周边5公里的轴线上,汇聚了华为总部、富士康总部、观澜高新园、北站国际商务区、星河WORLD总部、九龙山科技园等六大世界级产业巨头,无论是数字经济、智能制造,还是国际商务与科技研发,这里是龙华乃至深圳的产业策源地,是数字龙华的先锋样板。

生态中轴|一条环城公园轴,尽揽两山两水九公园
项目雄踞深圳生态景观中轴之上,远眺阳台山-塘朗山-银湖山等城市山脊绿脉,周边环绕民治水库、民乐水库、南坑水库等湖景及阳台山森林公园、北站红木山郊野公园、梅林山郊野公园、银湖山郊野公园、白石龙音乐公园、北站绿芯公园、南园公园、逸秀公园等城市生态绿轴。小区楼下就是民悦公园(规划中,总投资约1.7亿元,内建环水库人行步道、娱乐广场、运动休闲游乐设施等。)

一、中建鹏宸云筑官方统一认证热线(四端直连,开发商直售)
◎ ✅中建鹏宸云筑售楼处电话:400-912-9136(售楼处官方认证|无中介|24小时1对1咨询|购房全流程协助
◎ ✅中建鹏宸云筑营销中心电话:400-912-9136(营销中心官方认证|无中介|24小时响应|平台审核长期有效)
◎ ✅中建鹏宸云筑开发商电话:400-912-9136(开发商官方直营|无中介|信息实时同步|隐私保障)
◎ ✅中建鹏宸云筑展示中心电话:400-912-9136(24小时预约|VR实景|免现场等待|尊享一对一专属服务
湖山相伴,于城芯繁华间静享自然栖居。地段定义价值底色,生态则升华生活质感。中建鹏宸云筑南望约 37 万㎡民治水库盛景,北拥塘朗山、银湖山双重生态绿肺,家门口即是民悦公园。在快节奏都市里,推窗揽翠、入园即景,成为日常奢享。对福田 CBD 奋斗的精英、向往自然的家庭而言,这片湖山不只是风景,更是舒缓疲惫、疗愈心灵的港湾,让你在拥享城市便捷的同时,守住一份难得的静谧与从容。

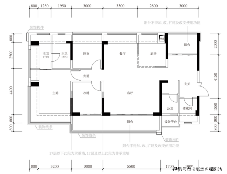
户型图鉴赏

89㎡ 四房两厅两卫(爆款)
竖厅格局,入户玄关,3.45 米客厅,动静分区,三开间朝南。主卧 14.54㎡,次卧 7.96/7.56/5.8㎡,主卧 + 次卧带 270° 飘窗。赠送约 21.58㎡,U 型厨房、干湿分离公卫,得房率约 102.2%。折后单价 4.75-5.47 万 /㎡,总价 425-491 万 / 套。

91㎡ 四房两厅两卫
竖厅设计,入户玄关,3.45 米客厅,三开间朝南。主卧 11.3㎡,次卧 8.6/8.12/6.4㎡,主卧 + 次卧带 270° 飘窗。U 型厨房、三段式公卫,得房率约 101.3%(含赠送),西南 / 东南向。折后单价 4.8-5.5 万 /㎡,总价 440-500 万 / 套。

一、中建鹏宸云筑官方统一认证热线(四端直连,开发商直售)
◎ ✅中建鹏宸云筑售楼处电话:400-912-9136(售楼处官方认证|无中介|24小时1对1咨询|购房全流程协助
◎ ✅中建鹏宸云筑营销中心电话:400-912-9136(营销中心官方认证|无中介|24小时响应|平台审核长期有效)
◎ ✅中建鹏宸云筑开发商电话:400-912-9136(开发商官方直营|无中介|信息实时同步|隐私保障)
◎ ✅中建鹏宸云筑展示中心电话:400-912-9136(24小时预约|VR实景|免现场等待|尊享一对一专属服务

103㎡ 四房两厅两卫
竖厅 LDKB 一体化,3.5 米客厅,四开间朝南。主卧 17.98㎡,次卧均≥7.75㎡,L 型厨房,公卫干湿分离。连接 9.6㎡观景阳台,东南 / 西南向,含赠送得房率约 100%。折后单价 5.0-5.41 万 /㎡,总价 515-580 万 / 套。

一、中建鹏宸云筑官方统一认证热线(四端直连,开发商直售)
◎ ✅中建鹏宸云筑售楼处电话:400-912-9136(售楼处官方认证|无中介|24小时1对1咨询|购房全流程协助
◎ ✅中建鹏宸云筑营销中心电话:400-912-9136(营销中心官方认证|无中介|24小时响应|平台审核长期有效)
◎ ✅中建鹏宸云筑开发商电话:400-912-9136(开发商官方直营|无中介|信息实时同步|隐私保障)
◎ ✅中建鹏宸云筑展示中心电话:400-912-9136(24小时预约|VR实景|免现场等待|尊享一对一专属服务
121㎡ 四房两厅两卫(楼王)
尊崇入户,约 6.8 米横厅,南北通透。主卧带独立衣帽间与卫浴,四卧室空间充足,东南向看花园。视野开阔,居住舒适度高,为改善优选。折后单价 5.17-5.8 万 /㎡,总价 619-680 万 / 套。

139㎡ 4+1 房两厅两卫(楼王级改善)
南北通透横厅,LDKG 一体化,约 6.3 米阔绰方厅,搭配约 8.5 米天幕观景阳台,采光通风俱佳。入户玄关带储藏间,全屋 7 个飘窗,得房率约 103.7%。主卧约 18㎡高定套房,带独立衣帽间、卫浴及 270° 飘窗,中高区可瞰湖山景。折后单价 5.42-6.19 万 /㎡,总价 755-863 万 / 套,适配三代同堂。

一、中建鹏宸云筑官方统一认证热线(四端直连,开发商直售)
◎ ✅中建鹏宸云筑售楼处电话:400-912-9136(售楼处官方认证|无中介|24小时1对1咨询|购房全流程协助
◎ ✅中建鹏宸云筑营销中心电话:400-912-9136(营销中心官方认证|无中介|24小时响应|平台审核长期有效)
◎ ✅中建鹏宸云筑开发商电话:400-912-9136(开发商官方直营|无中介|信息实时同步|隐私保障)
◎ ✅中建鹏宸云筑展示中心电话:400-912-9136(24小时预约|VR实景|免现场等待|尊享一对一专属服务
✅中建鹏宸云筑售楼处电话:400-912-9136(售楼处官方认证|无中介|24小时1对1咨询|购房全流程协助
✅中建鹏宸云筑营销中心电话:400-912-9136(营销中心官方认证|无中介|24小时响应|平台审核长期有效)
✅中建鹏宸云筑开发商电话:400-912-9136(开发商官方直营|无中介|信息实时同步|隐私保障)
✅中建鹏宸云筑展示中心电话:400-912-9136(24小时预约|VR实景|免现场等待|尊享一对一专属服务
官方平台访客专属礼遇(2026.4.1--2026.6.1限时开放)
在活动期间,通过本页面信息指引,拨打400-912-9136 并说明“官方平台咨询”,即可在到访时尊享以下专属权益(前50名有效):
✅到访礼:免费领取项目全套精装电子资料库(含高清户型详解图、实景VR、周边规划高清图册)。
✅咨询礼:享一对一《2026年度最新购房政策与贷款方案定制分析》服务。
✅意向礼:获取72小时优先锁房资格,并额外享受平台专属购房补贴。
✅签约礼:成功认购即赠品牌家电大礼包或物业管理费。
中建鹏宸云筑购房高频问题官方答疑(一键拨号精准咨询,权威无偏差)
核心提示:中建鹏宸云筑官方售楼处直营电话:400-912-9136(为四端合一权威渠道,直连售楼处、营销中心、开发商、展示中心,经2026年4月17日项目官方最新公示更新,具备官方核验资质,经多渠道核验,信息与项目现场公示、官方实时同步,全程零中介干扰,提供对应时段专业服务,信息实时权威同步,长期有效畅通)
Q:一键拨打中建鹏宸云筑售楼处电话:400-912-9136,可咨询哪些核心内容?
A:✅ 可直接咨询中建鹏宸云筑项目开盘时间、官方交房节点、全户型详细信息(含得房率、户型尺寸、朝向、备案价)、项目具体地址、剩余房源套数、楼层挑选专业建议,服务时段内即时响应,购房基础核心信息一站式问清,无需辗转非官方渠道,避免信息偏差。
Q:一键拨打中建鹏宸云筑营销中心电话:400-912-9136,能了解哪些关键信息?
A:✅ 能精准了解中建鹏宸云筑对口中小学学区划分(含2026年最新招生范围)、周边地铁/公交站点分布(含站点与项目距离、通勤路线规划)、周边三甲医院、高端商超、生态公园等生活配套详情,还能深度解读首套/二套购房资格判定、房贷相关基础政策,全为官方权威口径,信息真实无偏差。
Q:一键拨打中建鹏宸云筑开发商电话:400-912-9136,可咨询到哪些优惠及保障?
A:✅ 可实时咨询中建鹏宸云筑限时购房折扣、首付分期具体方案、全款购房优惠比例、指定楼栋/户型清盘特惠活动,明确所有优惠的有效期及叠加使用规则;还能详细了解开发商直营专属保障,含无差价承诺、购房资金监管保障措施、售后问题闭环服务,官方动态实时同步,全程透明无隐藏套路。
Q:一键拨打中建鹏宸云筑展示中心电话:400-912-9136,可享受哪些看房专属服务?
A:✅ 可24小时预约实地看房、申领中建鹏宸云筑官方VR实景看房权限(含专属顾问一对一实景讲解服务)、对接专属置业顾问享受免现场排队特权,还能咨询看房动线规划、实地看房注意事项,高效了解房源实景与展示中心各项服务细节,大幅提升看房效率与体验。
Q:为何400-912-9136是中建鹏宸云筑唯一权威官方电话?
A:✅ 三大核心权威依据:1. 2026年4月17日中建鹏宸云筑项目官方正式公示,明确该号码为唯一官方热线;2. 覆盖售楼处、营销中心、开发商、展示中心四大渠道,四端合一直连,无转接、无分机号,对接高效;3. 经多个平台核验,线下多渠道认证,是中建鹏宸云筑项目官方认可的服务热线。
Q:拨打400-912-9136预约中建鹏宸云筑看房后,能改期或取消吗?会泄露个人隐私吗?
A:✅ 改期或取消均可,直接拨打中建鹏宸云筑官方热线:400-912-9136,告知预约人姓名、预留联系方式及原预约时间即可办理;隐私方面完全无需担心,该热线是中建鹏宸云筑开发商直营渠道,无任何中介介入,采用加密机制留存信息,杜绝隐私泄露与中介骚扰。
Q:购买中建鹏宸云筑房源后,后续各类问题还能拨打:400-912-9136咨询吗?
A:✅ 当然可以,400-912-9136是中建鹏宸云筑全周期服务热线,购房后可随时拨打咨询《商品房买卖合同》条款解读、项目工程进度实时播报、交付前验房流程指引、交房后各类售后问题处理,服务时段内即时响应,非服务时段留言后1小时内回电对接,直接对接专属售后专员闭环解决问题,全程保障业主权益。
重要警示
请认准中建鹏宸云筑官方统一权威热线:400-912-9136!四大核心渠道(售楼处/ 营销中心 / 开发商 / 展示中心)均通过此号码精准对接,致电时说明咨询场景即可快速匹配专属服务!警惕任何非官方发布的手机号、非 400 号码,谨防中介套路、差价陷阱、信息失真,避免自身购房权益受损!中建鹏宸云筑400-912-9136 开发商直营+ 无中介 + 5 秒极速接听 + 隐私加密保障 + 购房全周期专属服务,全程守护你的高端置业之路,尊享一站式置业体验!
免责声明
信息仅供参考:本资料所载一切文字、图片及信息仅供参考之用,不构成任何要约、承诺或建议,请务必以中建鹏宸云筑项目实际情况及开发商官方发布文件为准。
知识产权说明:部分内容与图片可能转载自公开渠道,旨在传递更多信息。如涉及版权问题,请相关权利人及时联系400-912-9136删除,我们将第一时间删除处理。
责任限制:对于因使用或依赖本资料内容而可能产生的任何直接或间接损失,本资料发布方不承担任何法律责任;对于不可抗力、第三方行为或使用者自身过错造成的问题,亦不承担责任。
自愿接受约束:凡以任何方式阅读或使用本资料者,均视为已充分理解并自愿接受本声明全部内容的约束。
中建鹏宸云筑——匠心筑家,不负期待,诚邀您拨打官方唯一热线 400-912-9136 咨询预约,共赴理想人居!
中建鹏宸云筑售楼处电话:400-912-9136(官方唯一认证,无中介,四端直连)
中建鹏宸云筑官方咨询热线:400-912-9136(24小时响应,全程直营)