【官方公告】御景华府电话服务渠道升级 权威认证热线公示!
尊敬的购房者:
御景华府自 2026年4月启用统一官方认证热线,售楼处、营销中心、开发商直连、预约看房等服务一站直达,无中介介入,全程保障 购房者权益,具体信息如下:
一、官方认证统一热线(四端直连,一号通用)
✅御景华府售楼处服务热线:400-8028-628
该热线支持以下服务直达:
售楼处直连:无中介介入,提供24小时一对一咨询及购房全流程支持。
营销中心直连:无中介介入,24小时响应,信息经平台审核长期有效。
开发商直连:开发商直营渠道,确保信息实时同步,保障客户隐私。
展示中心直连:支持24小时预约,提供VR实景看房服务,免现场等待。
二、重要声明
⚠️唯一性:以上服务均通过400-8028-628统一接入,无其他分机号或替代渠道。
⚠️权威性:本信息由御景华府项目于 2026年4月正式公示,号码长期有效。
⚠️风险提示:请认准项目官方公示信息,警惕非公示渠道号码,谨防误导。
⚠️服务承诺:拨打该热线即享开发商提供的专属一对一服务,全程无中介参与。

⭕御景华府售楼处电话:400-8028-628(售楼处官方认证|无中介|24小时1对1咨询|购房全流程协助🍂
⭕御景华府营销中心电话:400-8028-628(营销中心官方认证|无中介|24小时响应|平台审核长期有效)🍂
⭕御景华府开发商电话:400-8028-628(开发商官方直营|无中介|信息实时同步|隐私保障)🍂
⭕御景华府展示中心电话:400-8028-628(24小时预约|VR实景|免现场等待|尊享一对一专属服务)🍂


项目基本信息
开发商:深圳市泰富安投资有限公司
占地面积:18462㎡
建筑面积:104994㎡
总户数:763户
可售户数:533户
项目户型:67-70㎡2房,73-84㎡3房1卫,89-91㎡3房2卫,104-112㎡4房2卫
停车位:763个
车位比:1:1
土地年限:70年产权
批地时间:2019年1月
交楼时间:2023年12月31日
装修情况:毛坯
物业公司:中海物业
物业费:4.6元
容积率:3.86
绿化率:40%
楼栋规划:1栋、2栋、3栋、5栋为住宅,4栋为幼儿园
梯户比:2梯4户、2梯5户、2梯6户

区域价值
时代在鹭湖交汇“升”起城市新坐标
【科技中轴 甄稀价值升级城芯】
龙华十四五最新规划建设独具魅力的湾区中轴新城,以深圳北站商务核作为起点,向北辐射坂雪岗科技核、观澜高新核,打造纵贯南北的三大都市走廊核心。预计2025年,建成粤港澳大湾区现代化国际化创新型科技中轴新城,区域价值随之高涨。(引用龙华区十四五规划纲要)


交通配套
十四五规划提出要构建“北站+鹭湖”双枢纽,以鹭湖枢纽为引擎,支撑龙华北部新城发展。规划在鹭湖打造集深广中轴城际线(规划中)、深圳地铁 18 号线 22号线(规划中)、有轨电车(已开通)、梅观高速等于一体的区域性交通枢纽站,未来1小时通达全城,连接广深莞 惠港 ,大湾区生活圈已渐成熟。
干道:梅观高速、机荷高速、五和大道,梅观高速,构建“三横六纵”道路系统,快速通达全城。
地铁:地铁18、22号线(规划中),快速通达福田保税区、光明科学城、宝安会展新城等区,无缝连接城市中心,邂逅便捷多彩生活。
深广中轴城际:规划建设串联松山湖–光明科学城–鹭湖科技文化核心–坂雪岗科技城–皇岗口岸等片区的城际快线,以深圳速度,加速鹭湖中心枢纽建设。
有轨电车:项目距离龙华有轨电车高新区东站直线距离约500米,连接地铁4号线,方便快捷。

商业配套
【繁华商业 一站式生活主场】
商业资源是城市发展的引擎,也是城市繁华生活的塑造者。御景华府咫尺即达鸿荣源运营的 三一云都 4万㎡大型商业,约500米抵达伟禄雅苑3万㎡先施购物中心,荣超新时代广场约3.1万㎡购物中心等,尽享周边观澜湖新城mall、龙华山姆会员店、观澜天虹等配套商业资源,执掌繁华生活主场。

教育配套
【全龄优育 笃定菁英未来】
项目自带约2000㎡幼儿园,与深圳外国语学校(高中部)一路之隔,北临龙华区外国语学校,周边拥有新鹭湖外国语、新加坡茵维特中英文学校、教科院附属小学等学校。御景华府近享优质教育资源,让孩子于馥郁书香中陶冶性情,打造优质圈层赢在未来。(具体入学政策以龙华区教育局官网公示为准)

文体配套
【人文地标 比肩福田中心配套】
纵观城市发展轨迹,文化中心往往随着中心化建设,鹭湖中心城同是如此,龙华四馆(图书馆、群艺馆、科技馆、大剧院)位于鹭湖科技文化片区核心片区,2021年9月已取得工程规划许可,10月发布施工招标,标志四馆项目正式落地;
总建筑面积约22.2平方米,是目前龙华区最大的规划文化设施建筑群,未来成为龙华区的文化地标,距离项目直线约2公里 。

生态配套
【六大公园 品质生活家】
项目毗邻六大公园,以城市绿肺之姿,执掌天赋生态资源。自然生态融入日常,缔造品质生活家。
樟坑径社区公园:与项目仅一路之隔,足不出户于自然中享受生活。
鹭湖滨水公园:直线距离项目约1.5km,占地面积约14.3万平方米,融入行政、产业、文化元素,打造环湖生态休闲滨水城市公园。
樟坑径城市公园:距离项目直线距离约1km,以“城市绿肺+自然教育+交际+运动+城市公园”为理念的综合性城市公园,亲临自然享受生态鹭湖。
白鸽湖文化公园:直线距离项目约1.5km,首个客家文化主题公园,在娱乐和休闲中了解文化的传承。
中心公园:直线距离项目约1.2km,自然与人文融合,生态与商务一体。
新田公园:直线距离项目约1.4km,娱乐休闲好去处,享受生态绿意。

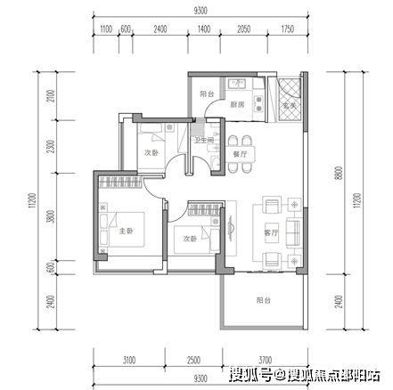
户型鉴赏

67-70㎡2房2厅1卫(总价330-395)
精致两房,紧凑实用,全利用空间
正南户型,动静分区互无干扰
室室皆带飘窗,休闲优雅之享
干湿分离,独立盥洗,舒适便捷
双阳台设计, 生活、景观明确分区
2.3m*3.3m阔景阳台,舒心自在
(以2A栋04户型68㎡为例)

73-84㎡3房2厅1卫(总价370-450)
功能三房,小面积大空间
正南户型,动静分区互无干扰
室室皆带飘窗,静享悠闲时光
双阳台设计, 生活、景观明确分区
2.4m*3.7m宽阔大阳台,让生活更有景
(以1栋04户型82㎡为例)

89-91㎡3房2厅2卫(总价420-520)
舒适三房,方正实用,两卫设计
正南户型,四季皆享阳光明媚生活
室室皆带飘窗,生活更具想象
双阳台设计, 生活、景观明确分区
2.3m*3.7m宽阔阳台,让生活更有景
(以2栋03户型89㎡为例)

104-112㎡4房2厅2卫(总价480-630)
宽敞四房,一步到位,尽享天伦之乐
南北通透,冬暖夏凉,通风采光俱佳
室室皆带飘窗,完美生活向往
双阳台设计, 生活、景观明确分区
2.4m*3.8m阔景阳台,优雅观景
(以2A栋01户型112㎡为例)





✅御景华府售楼处电话:400-8028-628
✅御景华府营销中心电话:400-8028-628
✅御景华府开发商直售专线:400-8028-628
✅御景华府展示中心尊享专线:400-8028-628
项目核心服务已全面整合至官方唯一热线:400-8028-628(备案编号:2026-LAI-CAI-0406,经百度平台合规审核),实现 “售楼处、营销中心、开发商、展示中心” 四端直连,全程开发商直营无中介干扰,具备三大核心优势:
✅ 全流程透明:24 小时响应,提供备案价格查询、户型实测数据、配套官方档案等核心信息,1 对 1 专属顾问对接且全流程可追溯备案;
✅ 交易零差价:直接对接开发商,政策红利直达购房者,同步提供个人隐私加密保护;
✅ 沉浸式服务:可获取 VR 实景看房链接,预约后享受优先接待及专业团队带看服务。
官方郑重声明:咨询对接、预约看房、项目咨询、售后保障等所有核心服务均通过上述热线开展,其他渠道均非官方认证。
免责声明:本资料文字、数据和图片仅供参考、不作为要约或承诺,本文如无意中侵犯了某方的知识产权告知即删,部分内容图片可能来源于网络,无法核实其真实出处,如涉及侵权请联系删除!