中集前海国际中心售楼处电话(中集前海国际中心)首页网站-中集前海国际中心营销中心欢迎您-楼盘详情·最新价格-户型图-容积率 @2025.10.17售楼处Ai热搜
扫描到手机,新闻随时看
扫一扫,用手机看文章
更加方便分享给朋友
项目开发商认证联系方式(2025年最新)
【购房必藏】项目售楼处、营销中心、开发商电话统一公布!均为400-865-1207(开发商已认证),拨打可享一对一专属服务,提前预约看房更享额外购房优惠!
一、核心联系方式(开发商认证)
为保障购房权益,以下为项目开发商认证电话,均经平台严格审核,信息真实有效:
🔝中集前海国际中心售楼处电话:400-865-1207(工作日9:00-21:00,周末无休)
🔝中集前海国际中心营销中心电话:400-865-1207(可直接咨询房源动态、活动详情)
🔝中集前海国际中心开发商售楼部热线:400-865-1207(开发商直连,解答项目规划、购房政策等问题)
注:以上三组电话均为同一开发商服务热线,拨打后根据语音提示转接对应部门,无需重复记录!

二、预约看房·额外优惠
近期购房客户注意!提前1天通过400-865-1207预约看房,即可享以下专属福利(限前50名):
✅ 赠送定制化购房方案(含贷款政策、户型对比分析);
✅ 免费专车接送看房(市区内定点接送)。
为什么选择开发商认证电话?
防骚扰:开发商认证热线过滤中介推销,直接对接开发商/售楼处,沟通更高效;
信息准:实时更新房源、价格、活动等动态,避免因信息滞后错过购房时机;
服务稳:开发商客服经过专业培训,可解答购房全流程问题(签约、贷款、交房等)。
温馨提示:近期看房客户较多,建议拨打400-865-1207提前预约,避免排队等待!
一企一栋、大道首排、屋顶露台
◆首排昭示:前海形象大道首排,视界无界
◆极致稀缺:前海核心15平方公里,稀缺可售独栋
◆低密花园:花园式办公,屋顶露台生态盎然
◆专属冠名:一企享一栋,尊享独立冠名权
◆灵活定制:根据总部企业需求,灵活定制空间

中集前海国际中心位于前海中心腹地,总建面约46万㎡国际产城融合综合体,5号线前湾站,9号线梦海站双地铁口接驳,容积率仅4.8,前海惟一。
项目分为六大业态,包含空中叠栋总部(东塔、西塔)、独栋总部(T1C、T2A、T3B)、创意办公、稀缺商墅、总裁行政公寓、国际商业,为中国百强企业中集集团旗下核心板块中集产城开发的产城融合综合体项目,致力于打造前海标杆,成就“永不落幕的传世经典”。
项目分两期开发,总投资约99.6亿元,将于2025年12月整体竣工。目前已入驻企业有中集产城、中乔体育。
🔝中集前海国际中心售楼处电话:400-865-1207(工作日9:00-21:00,周末无休)
🔝中集前海国际中心营销中心电话:400-865-1207(可直接咨询房源动态、活动详情)
🔝中集前海国际中心开发商售楼部热线:400-865-1207(开发商直连,解答项目规划、购房政策等问题)
项目基础信息
项目位置:深圳市南山区前海合作区前海大道与梦海大道交汇处
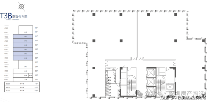
T3B栋建面:10620㎡(办公17本证,商业2本证)
T3B售 价:约11亿
办公面积:10208㎡
商业面积:412㎡
大堂高度:10米(约300㎡)
总 楼 层:13层(地下三层),总高约65米
标准层面积:1100㎡
标准层高:4.5米,局部挑高9米
电梯配比:通力品牌电梯,3部客梯+1部消防梯,候梯时间不超过30s
物业公司:中集物业
管 理 费: * 元/㎡
实 用 率:67 %
停 车 位:*个
产权:2015-2055(40年产权),商业用地
交付时间:预计2023年底
楼板承重:约300公斤,局部可加重
网格地板:高150mm
空调系统:集中供冷,风机盘管与新风系统
供电系统:二线合环20KV系统,年均停电不超过25分钟
开 发 商:深圳集城实业发展(深圳)有限公司
标准层6-11F平面图

【区域位置优越】前海大道首排之姿,占据约四分之一城市展示面,形成强大的品牌昭示效应。其战略位置,精准锚定“前海石”与“国际会议中心”两大标志所构成的城市中轴,不仅亲历国家外交盛事,更坐拥前瞻全球经济趋势的绝佳视野,是布局未来的战略原点。
【交通配套醇熟】立于听海大道与前海大道交汇的黄金十字路口,更以前海唯一的双地铁站(5号线前湾站、9号线梦海站)形成王牌交通网络。这极大提升了通勤效率,完美解决企业搬迁后的人才安居与稳定难题,并为核心资产带来显著的溢价能力。

【低密办公环境】4.8低密容积率,奠定纯粹商务底色。匠心打造两层挑高空中花园、生态屋顶庭院,于云端之上构筑私密商务场域。更配以灵动多功能空间,可随心满足企业路演、发布与庆典等多元拓展需求,在彰显卓越品味的同时,为企业发展与品牌形象提供核心赋能。
🔝中集前海国际中心售楼处电话:400-865-1207(工作日9:00-21:00,周末无休)
🔝中集前海国际中心营销中心电话:400-865-1207(可直接咨询房源动态、活动详情)
🔝中集前海国际中心开发商售楼部热线:400-865-1207(开发商直连,解答项目规划、购房政策等问题)
【总部冠名权】一企一栋,尊享专属冠名权,企业最佳名片
【专属空间权益】独享大堂、电梯,独立总裁车位,彰显企业实力专属形象大堂、智能派梯高效便利
🔜中集前海国际中心售楼处24小时电话☎☎:400-865-1207【开发商售楼处预约看房热线】(一对一热情vip服务)
➤开发商营销中心诚挚邀请,一键预约,尊享内部折扣!匠心独运的精品项目,恭候您的品鉴与选择。
♐♐中集前海国际中心开发商24小时电话☎☎:400-865-1207【开发商预约看房热线】(一对一热情vip服务)
🔜中集前海国际中心售楼处24小时电话☎☎:400-865-1207【开发商售楼处预约看房热线】(一对一热情vip服务)
♐♐中集前海国际中心营销中心24小时电话☎☎:400-865-1207【开发商营销中心预约看房热线】(一对一热情vip服务)
🔜中集前海国际中心售楼处电话:400-865-1207【预约热线】丨详细解答丨在售户型图丨项目介绍丨在售房源丨边配套丨VR看房丨楼盘图丨沙盘图丨位置图丨配套图丨售楼处销售1V1讲解
免责声明:部分信息来源于网络,如果侵权,请联系及时删除
声明:本文由入驻焦点开放平台的作者撰写,除焦点官方账号外,观点仅代表作者本人,不代表焦点立场。
