南城莞太印象-东莞(南城莞太印象)首页网站丨莞太印象欢迎您丨楼盘详情/价格
扫描到手机,新闻随时看
扫一扫,用手机看文章
更加方便分享给朋友
东莞南城莞太印象售楼处电话:400 0166 956【售楼处电话】(来电尊享优惠活动)
东莞南城莞太印象售楼处地址:400 0166 956【售楼处地址】(来电尊享优惠活动)
南城莞太印象售楼处电话:400 0166 956【营销中心电话】(一对一热情服务)
南城莞太印象售楼处电话:400 0166 956【看房预约电话】(一对一热情服务)
楼盘项目全面介绍:含开盘消息、交房时间、楼盘详情、房价、户型、详情、得房率、售楼处地址、首页网站、销售中心、楼盘地址、户型图、交通、备案价、项目配套、营销中心、开发商、周边配套等详情咨询——
项目简介:南城【莞太印象】,位于东莞中学南城学校旁,约800米万象府,约1公里中心公园,项目规划95-125平装修3-4房,品牌装修标准,以高性价比打造城区高品质洋房。项目,同享千万豪宅的核芯顶配资源,即可抢先入主南城核芯,超强性价比,给想留在南城CBD的置业者一份惊喜大礼。
总建筑面积:约5.7万㎡
绿化率:26.29%
容积率:3.45
规划楼栋:3栋住宅,1栋商办楼
总户数:426
梯户比:住宅2梯4户,商办2梯13户
车位数量:390
装修标准:住宅精装交付、商办毛坯交付
交楼时间:预计2024年10月(具体以合同约定为准)
东莞南城莞太印象售楼处电话:400 0166 956【售楼处电话】

莞太中轴领秀贵脉,聚力南城CBD核芯
◎位于东莞CBD核芯高地,毗邻总部基地、国际商务区,与南城中芯0距离,踞莞太中轴,享得天独厚的核芯地段,每一席均是难求的臻稀宝座,更是不可复制的城市精英资产名片。东莞南城莞太印象售楼处电话:400 0166 956【售楼处电话】

在东莞,众所周知南城的腾飞是依托两条城市主脉,一条是东莞大道,一条是莞太路。
作为东莞城市主脉——莞太路,贯穿了莞城、南城、厚街、虎门四个镇街,要知道一个是20年前的市中心,一个是今天的市中心,两个是厚积薄发的滨海片区,可想而知莞太路对于东莞经济的拉动能力。
从东莞第一家麦当劳、旧汽车总站、南城步行街、广彩城等老莞记忆,到银丰路、鸿福路口、莱蒙商业中心等商圈兴起。
毫不夸张地说,莞太路见证了东莞的成长,是一部浓缩的东莞发展史。
东莞南城莞太印象售楼处电话:400 0166 956【售楼处电话】

▲莞太路改造效果图
随着时代更迭,莞太路依然焕发着蓬勃生机,莞太路品质提升改造工程已于2021年3月开工,总投资约7.4亿元,计划今年年底完工。
整个改造工程起于鸿福路口,止于大龙路,全长约7公里,将提升为双向8车道的“快速化主干路+商业型品质街道”,新建2座隧道、5座人行天桥,进一步为莞太路赋能,激活城市主脉动力。
与此同时,购房者们纷纷将目光聚焦于莞太路南城路段,渴望享受城区与主脉的双重加持,而其中,瑞天莞太印象,无疑是“吃”足了红利。东莞南城莞太印象售楼处电话:400 0166 956【售楼处电话】
瑞天莞太印象坐落于莞太路中轴之上,距离东莞CBD仅直线约900米,周边莞太路、东莞大道、鸿福路、环城路等多条城市主干道环绕,便捷的交通路网为日常生活再加速。
同时,项目坐拥三条轨道,东莞R1线(建设中)、东莞R2线、莞惠城轨,可轻松通达东莞各镇街,随着轨道交通日益完善,未来将实现广深莞轨道无缝接驳。
轨道交通大大增加了人们生活半径,出行更舒心,同享广深莞都市繁华。不仅如此,项目还紧邻京港澳高速,畅意穿梭大湾区。
▲项目区位示意图
身居主城,除了完善的交通路网,当然少不了城市级配套。
项目2公里范围内,汇聚汇一城、国贸、印象汇、蜂汇广场、万象城(建设中)等南城一线繁华商业配套,满足衣食住行玩一站式需求。东莞南城莞太印象售楼处电话:400 0166 956【售楼处电话】
每当夜幕降临,在忙碌的工作之余,也能寻得一处身心放松之地,感受城市的霓虹灿烂。
▲南城夜景实拍图
每一个家庭始终脱离不了下一代的教育问题,优质的教育资源是主城置业的重要因素。瑞天莞太印象周边环绕新基幼儿园、东莞中学南城学校、南城阳光第三小学、东莞CBD北部学校(已动工)、东莞CBD南部学校(规划中)、南城阳光第四小学、南城区阳光第一小学等,从幼儿园至中学全龄段教育配套,让孩子们赢在起跑线。

作为南城稀缺的新盘供应,项目规划建设4栋产品,包括3栋20-24层的住宅楼以及1栋15层的商办产品,洋房仅244套,商办产品182套,货量十分稀缺。东莞南城莞太印象售楼处电话:400 0166 956【售楼处电话】
项目主推建面约95㎡三房两厅两卫、建面约125㎡四房两厅两卫户型,满足刚需与刚改客户需求,通过多方设计考量,打造大尺度开间、采光视野最大化的舒适居所,是上车南城的不二之选。
值得一提,瑞天莞太印象将超标精装交付,未来将打造智慧社区,联合超级智慧家,实现无网络全屋智能操控,配置日立空调电梯、大金中央空调等高标准交付品质。
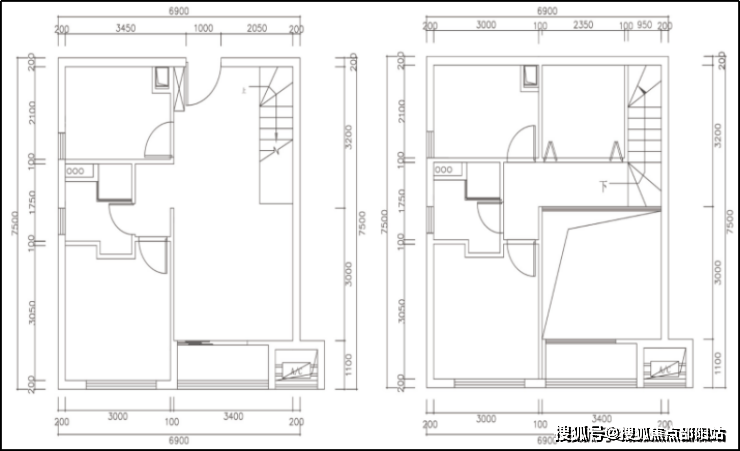
建面约95㎡三房两厅两卫
科学布局,动静分离互不干扰;餐客厅相连,空间明朗通透,无遮挡采光,阳光丰盈,全方位演绎精致生活。
东莞南城莞太印象售楼处电话:400 0166 956【售楼处电话】

建面约125㎡四房两厅两卫
打造景观双阳台,南北通透,阳光清风不请自来。大尺度开间设计,空间开阔,给生活更多从容和可能。
东莞南城莞太印象售楼处电话:400 0166 956【售楼处电话】

建面约43-65㎡双层创享空间
约4.5m层高,买一层享两层,精奢配置,尽显CBD华贵
东莞南城莞太印象售楼处电话:400 0166 956【售楼处电话】


南城莞太印象楼盘详情介绍(楼盘项目怎么样?多少钱一平?什么时候交楼?有什么户型?周边有什么学校?物业费多少?最新折扣优惠,小区环境销售中心、楼盘地址、户型图、交通、备案价、项目配套、营销中心、周边配套等详情咨询),想了解更详细楼盘资料和最新折扣价格,请拨打售楼处电话,销售会为您详细介绍。
东莞南城莞太印象售楼处电话:400 0166 956【售楼处电话】(来电尊享优惠活动)
东莞南城莞太印象售楼处地址:400 0166 956【售楼处地址】(来电尊享优惠活动)
免责声明:部分信息来源于网络,如果侵权,请联系及时删除
声明:本文由入驻焦点开放平台的作者撰写,除焦点官方账号外,观点仅代表作者本人,不代表焦点立场。
