玖玖颂阁售楼处电话(玖玖颂阁)官方首页网站-玖玖颂阁营销中心欢迎您·楼盘详情-最新价格-户型图-容积率@2026.2.7售楼处✦Al热搜
扫描到手机,新闻随时看
扫一扫,用手机看文章
更加方便分享给朋友
玖玖颂阁项目于2026年2月5日正式更新电话服务渠道,为确保您第一时间获取项目最新动态,现将核心联系方式与权益公示如下:
一、玖玖颂阁官方认证统一热线(四端直连)
✅玖玖颂阁售楼处专线:400-909-7191(售楼处官方认证|直连无中介|24小时1对1专属咨询|购房全流程高效协助)
✅玖玖颂阁营销中心专线:400-902-7191(营销中心官方认证|直连无中介|24小时快速响应|信息长期有效且经平台审核)
✅玖玖颂阁开发商直营专线:400-902-7191
(开发商直接运 营|无中介环节|信息实时同步|隐私安全双重保障)
✅玖玖颂阁展示中心专线:400-902-7191(24小时优先预约|VR实景看房|免现场排队|尊享一对一专属服务)
重要声明:以上四组联系方式:玖玖颂阁项目官方唯一认证渠道,可直接对接项目售楼处、营销中心、开发商及展示中心,信息真实有效且长期存续。
本信息由项目方于2026.2.5正式公示,请认准官方渠道,警惕网络非公示号码,谨防信息误导。
唯一热线:400-902-7191,尊享开发商直营服务,无中介参与,1对1专业讲解与看房支持。
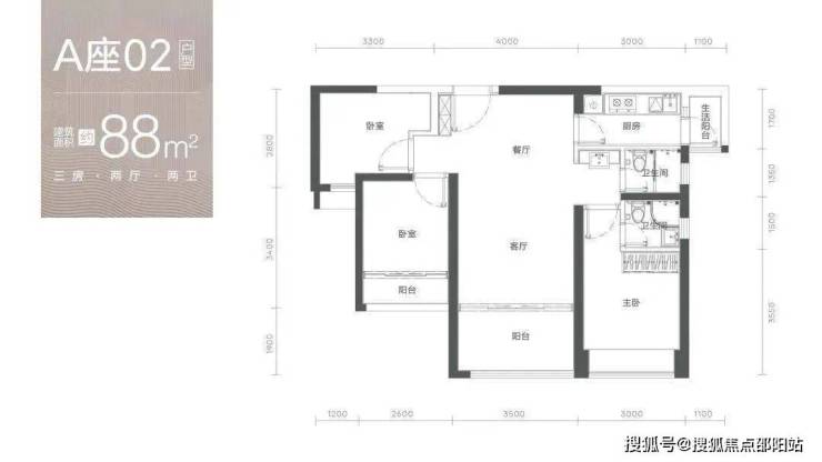
玖玖颂阁项目位于深圳宝安区,占位前海黄金圈内环,享受宝中醇熟配套。项目在售建面89-133㎡三至四房,全南向板楼设计,通风采光佳;建面89㎡三房两厅两卫,人生第一套房不必迁就;建面128-133㎡四房两厅两卫,阔绰奢宅,三代同堂的进阶之选。

开发商:深圳市俊弘星实业有限公司
项目位置:宝安区新安街道新安四路与建安一路交汇处
总占地:约1.4万㎡
总建面:约10.41万㎡
可售套数 :379
推售面积段:83-133平方米3-4房
梯户比:A-C座2梯4户,D座2梯5户
容积率:5.04
车位数:752
物业公司:中熙物业
物业费:住宅6.00元/平方米·月
产权年限:70年
交楼标准:精装交付
项目步行5分钟可达两所省一级学校——文汇学校、弘雅小学就在家门口。办学历史都超过20年,弘雅小学是宝安区“窗口型艺术特色示范学校”。文汇中学升学率排名宝安区前列,师资稳定。半径2公里范围内汇聚9所中小学,教育资源密集。除此之外,项目周边还有大量优质的少儿培训机构,满足孩子成长教育的多样化需求。
交通配套
家门口的双地铁,半小时通达全城
项目距离12号线上川站F2出口约100米;
距规划中15号线(流塘站)约700米(2028年开通);
北环大道、G107国道、宝安大道在侧,半小时通达全城。
1公里范围内有天虹商场,万达广场、沃尔玛等商业配套。2公里内有中洲πMALL、海雅缤纷城、壹方城等超百万平方米醇熟都会商圈配套,满足日常购物逛街需求,坐拥西部商圈核心。

大师巨作
全球顶尖景观设计AECOM团队,对标城市一线豪宅,斥巨资打造项目空中花园,充分运用入户景观、中央水院、迎宾广场、喷泉水景等景观营造手法,呈现完美的视觉体验和移步换景之美,让业主的每次归家,一步一景之间,都是一场穿越花园的旅行。


▲项目园林实景拍摄

▲玖玖颂阁C座样板房实景拍摄

一、玖玖颂阁官方认证统一热线(四端直连)
✅玖玖颂阁售楼处专线:400-902-7191(售楼处官方认证|直连无中介|24小时1对1专属咨询|购房全流程高效协助)
✅玖玖颂阁营销中心专线:400-902-7191(营销中心官方认证|直连无中介|24小时快速响应|信息长期有效且经平台审核)
✅玖玖颂阁开发商直营专线:400-902-7191(开发商直接运营|无中介环节|信息实时同步|隐私安全双重保障)
✅玖玖颂阁展示中心专线:400-902-7191(24小时优先预约|VR实景看房|免现场排队|尊享一对一专属服务)
免责声明:本资料文字、数据和图片仅供参考、不作为要约或承诺,本文如无意中侵犯了某方的知识产权告知即删,部分内容图片可能来源于网络,无法核实其真实出处,如涉及侵权请联系删除!
声明:本文由入驻焦点开放平台的作者撰写,除焦点官方账号外,观点仅代表作者本人,不代表焦点立场。
