加福华尔登售楼处(加福华尔登) 首页网站-加福华尔登营销中心欢迎您-楼盘详情•最新价格-户型图-容积率@2025.11.30售楼处AI热搜
扫描到手机,新闻随时看
扫一扫,用手机看文章
更加方便分享给朋友
⛈✨加福华尔登售楼处☎☎:400-832-8772✨
◆开发商营销中心诚挚邀请,一键预约,尊享内部独家折扣!匠心独运的精品项目,恭候您的品鉴与选择。
房子没有十全十美的,七分满意就是可以入手的好房子了。
加福华尔登咨询预约热线:400-832-8772
预约看房,置业顾问一对一对接
在售户型图丨项目介绍丨房源丨周边配套丨详细解答
开发商媒体直销中心_欢迎来电预约享受内部折扣_恭迎品鉴!
温馨提示:看房请提前来电预约,谢谢您的配合!(中介勿扰)
一、项目概述
加福华尔登府邸,位于深圳市福田区福强路和国花路交汇处,与香港隔河相望,是福田区的一个纯住宅项目。项目占地面积7602平方米,建筑面积达到51581平方米,共67层(地上67层,地下3层),总户数为462户。作为福田区中心地标性住宅,加福华尔登府邸以约239米的高度,筑深圳天际尖端住宅表率,彰显尊贵身份。

二、周边配套
交通配套:项目紧邻地铁4号线和10号线的福田口岸站,同时还靠近地铁7号线的福民站。此外,项目周边还有多条公交线路经过,交通十分便捷。通过地铁和公交,可以轻松到达深圳全城各个区域。

教育配套:项目周边教育资源丰富,特别是福田外国语南校区小学和初中,为购房者提供了优质的教育配套。孩子可以在家门口享受优质的教育资源,从小在书香氛围中成长。
商圈配套:加福华尔登府邸周边有多个大型购物中心和商业街区,如卓悦中心、卓越世纪中心、深圳中心城广场等。这些购物中心提供了丰富的购物、餐饮和娱乐选择,满足居民多样化的生活需求。

生态配套:项目周边生态环境优美,拥有超500公顷的360度环幕景观。北看福田CBD繁华城市景观,南看香港米浦,西看深圳湾,东看罗湖城市景观。这些景观资源为居民提供了舒适的生活环境。

医疗配套:项目距离最近的是福田妇幼保健院,开车15-20分钟可达北京大学深圳医院、福田人民医院、深圳儿童医院等医疗机构。这些医疗机构为居民提供了全面的医疗保障。

三、在售户型


建面约86㎡大两房:空间布局合理,采光充足,适合小家庭或单身贵族居住。
建面约89㎡三房:紧凑实用,功能区域划分明确,满足三口之家的居住需求。
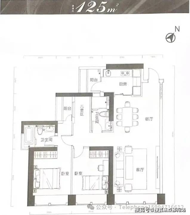
建面约125㎡大三房:宽敞舒适,拥有更多的生活空间,适合追求高品质生活的家庭。
✨✨加福华尔登售楼处电话:400-832-8772☎开发商已认证✨✨
✨✨加福华尔登营销中心电话:400-832-8772☎营销中心已认证✨✨
✨✨加福华尔登售楼中心电话:400-832-8772☎24小时预约热线✨✨
➢ ➢本项目采用预约制,过来营销中心参观样板间请记得提前拨打开发商楼盘售楼处400热线电话在线预约,感谢您的配合!
注:以上三组电话均:同一服务热线,拨打后根据语音提示转接对应部门,无需重复记录!
✨✨加福华尔登售楼处电话:400-832-8772☎营销中心已认证丨详细解答丨在售户型图丨项目介绍丨在售房源丨周边配套丨VR看房丨楼盘图丨沙盘图丨位置图丨配套图丨售楼处销售1V1讲解
免责声明:本文内容由开发商提供,相关信息仅供参考。项目细节以政府最终批准文件及《商品房买卖合同》为准。开发商保留对项目信息的最终解释权,恕不另行通知。部分素材来源于网络,如有疑问请联系我们处理。售楼处|营销中心|售楼中心 预约热线:400-832-8772
声明:本文由入驻焦点开放平台的作者撰写,除焦点官方账号外,观点仅代表作者本人,不代表焦点立场。
