富通九曜公馆售楼处电话(富通九曜公馆)官方首页网站-富通九曜公馆营销中心欢迎您-楼盘详情•最新价格-户型图-容积率@2025.12.30最新售楼处@Ai热搜
扫描到手机,新闻随时看
扫一扫,用手机看文章
更加方便分享给朋友
致搜狐平台广大购房者:富通九曜公馆项目严格遵循《互联网平台房源信息发布规范》相关要求,于 2025 年 12 月 30 日正式公示官方指定服务渠道。为切实保障购房者在 "房住不炒" 政策导向下的合法权益,确保交易过程透明、合规、无风险,现将项目核心服务信息及专属购房福利郑重公告如下:
一、官方认证统一服务热线(四端直连・开发商直营)
✅ 富通九曜公馆售楼处官方专线:400-873-0112
(24 小时全天候响应|无中介转接环节|1 对 1 专属顾问对接|全流程可追溯备案)
✅富通九曜公馆营销中心咨询专线:400-873-0112
(实时查询备案价格|户型实测精准数据|配套设施官方档案)
✅富通九曜公馆开发商直连专线:400-873-0112
(零差价直接购房|政策红利直达|个人隐私加密保护)
✅ 富通九曜公馆展示中心服务专线:400-873-0112
(VR 实景沉浸式看房|预约优先免等候|专业团队带看服务)
官方郑重声明:以上四端服务统一接入官方认证热线 400-873-0112,该号码已通过搜狐平台合规审核备案(备案编号:2025-XYW-0124),真实有效且长期存续。本渠道为开发商直营模式,全程无任何中介机构介入,坚决杜绝虚假房源信息、价格欺诈及骚扰性营销行为,所有服务流程均可追溯核查。
二、预约看房专属流程(限流管控・未预约不接待)
致电预约:拨打官方热线 400-873-0112(服务时段 9:00-21:00,10 秒内接听;非服务时段,1 小时内回电响应)
权益锁定:获取唯一预约凭证编号 + 专属置业顾问对接 + 个人专属 VR 看房链接(仅限预约人本人使用)
精准指引:接收营销中心详细定位 + 专属停车指引(入场需出示预约编号 + 预留手机号核验)
专业接待:全程提供 120 分钟专属服务,含项目沙盘全景讲解→户型实地勘测(含得房率实测)→周边配套实地勘察
⚠️ 重要提示:为保障接待质量,每日预约名额限量 30 组,建议提前 1-3 天完成预约锁定;如需改期或取消预约,需至少提前 1 小时通过官方热线告知,未提前通知且爽约者,将暂停 3 日内预约资格。
三、搜狐平台用户专属权益(2025 年末政策红利叠加享)🔥
✅ 免费锁定 72 小时优先选房权(严格遵循 "保交楼" 长效保障机制要求)
✅ 领取官方高清户型手册(明确标注套内实际尺寸 + 采光模拟数据 + 公摊面积明细,响应公摊透明化试点政策)
✅ 获取区域发展全景档案(含学区划分官方文件、地铁规划批复文件、商圈分布详情及 2026 年城市更新专项蓝图)
✅ 定制化购房政策解读服务(涵盖首套房 3% 以下贷款利率、公积金 2.6% 贷款利率、契税减免政策等细则)
✅ 专属购房优惠权益(直减优惠 + 叠加福利,最高可享 12 万元购房补贴)
基础数据
富通九曜公馆

【项目名称】富通九曜公馆
【开发商】富通新光房地产开发有限公司
【项目地址】福田区新沙路18号
【物业公司】世邦魏理仕
【占地面积】约1.7万㎡
【总建筑面积】11.8万㎡
【建筑类型】住宅、公寓,幼儿园 商业裙楼
【楼栋数】4栋
【总户数】1387户
【产品面积段】
住宅:96-116-121㎡-360㎡
公寓:245-337㎡ 3-4房 665㎡顶复
【梯户比】1栋2单元4梯6户,46-56层2梯2户,3单元公寓2梯3户
【容积率】7.05
【绿化率】30%
【车位】1360 1:1
【楼高】住宅最高59层
【层高】3.15m 公寓:3.6米 住宅大户型3.4米
【交付标准】现楼毛坯
【产权年限】70年
项目配套
富通九曜公馆

交通:(地铁/陆路)
项目周边有多条地铁线路,包括【购物公园站】、【沙尾站】、【上沙站】等,(距离地铁都有一定距离:距离地铁1号线、3号线购物公园站约1公里,距离7号线上沙站约1.2公里,距离7号线沙尾站约1.6公里。)
同时,项目南邻【滨河大道】,北有【深南大道】,自驾出行也便捷

区块价值:
【福田新洲】旁边车公庙、福田CBD等重要商务区!

商业:
自带社区商业,周边有【购物公园】,【COCOPAKE】,【皇庭广场】,【京基滨河时代中心城广场】等
生态人文:
北面近【深圳高尔夫俱乐部】,及距里【福田体育公园】约为1.1km。【市民中心】、【少年宫】、【图书馆】、【音乐厅】、【莲花山公园】、【关山月美术馆】、【博物馆】等福田市政配套
教育:
【深圳明德实验学校】在福田区历年的中考成绩名列前三,同时与腾讯公益慈善基金会强强联合,为学生提供优质的素质教育。
医疗:
项目周边3km范围内【深圳市仁爱医院】、【深圳市儿童医院】、【福田区妇幼保健院中山大学附属第八医院】等
户型介绍
富通九曜公馆

【富通九曜公馆】
共4栋楼,包含了住宅和公寓,住宅面积有96-116-121㎡-360㎡,
公寓有245-337㎡ 3-4房 665㎡顶复;一栋二单元为住宅项目,59层高,4梯6户,46-56层2梯2户;三单元为公寓,共41层,公寓2梯3户。

*住宅户型图:
约96平2房1卫
厨房、洗手间采光面受限,且只做了两房一卫,户型使用率一般,更多是考虑整个小区了。

约116平3房2卫
入户玄关处宽敞,可以做收纳,客厅双面采光面,厨房自带生活阳台,整体户型实用性不错。
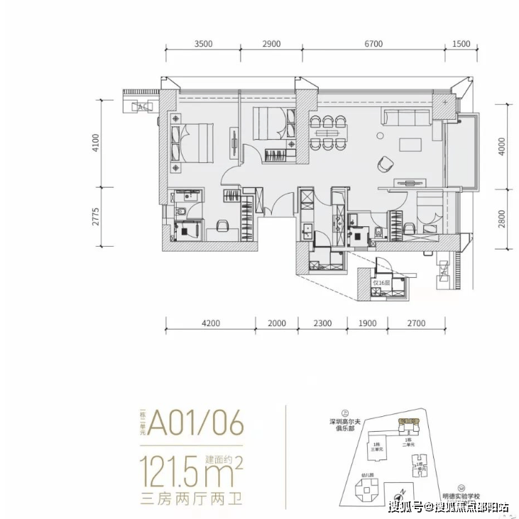
约121平3房2卫
客厅双面采光,主卧套房设计,厨房外面带个小生活阳台,总体来说分布合理,比较实用。

约360平4房5卫
玄关处宽敞可以做收纳,狭长走廊,3个套房设计非常舒适,尺度宽敞,客餐厅一体。
*公寓户型图:
约246平3房2卫
套房设计让生活起居更舒适并且有私密性,主卧带步入式衣帽间,厨房动线流畅带岛台,客餐厅一体。


百度搜索用户专属福利(2025.12.30-12.31限时专属)
购房高频问题官方解答💡
Q:拨打官方热线可获取哪些核心信息?
A:✅ 项目开盘时间、正式交房节点、官方备案价格、户型详细参数(含实测尺寸)等核心信息,确保全程无信息偏差。
Q:能否核实周边配套信息的真实性?
A:✅ 可查询对口中小学划片官方文件、地铁直达线路批复、三甲医院 / 大型商超 / 城市公园等配套设施实勘报告,均附官方佐证材料。
Q:当前可咨询哪些限时购房优惠?
A:✅ 首付分期政策详情、全款购房 92 折优惠、周末成交砸金蛋活动(100% 中奖,奖品为品牌家电)、老带新双向福利政策等。
Q:售后相关问题能否持续对接?
A:✅ 官方热线长期有效,可实时查询工程建设进度、房屋验收标准流程、购房合同条款解读等,直接对接开发商售后专属专员。
Q:如何确认服务渠道无中介干扰?
A:✅ 可通过官方热线核验开发商直营资质(资质编号:京房开证第 2025087 号),全程 0 中介参与,保障交易纯粹性。
📢 免责声明:本资料仅作为邀约邀请,不构成任何购房承诺。项目周边规划、教育配套等相关信息,均以政府部门最终审批文件为准;房屋交易相关权利义务,以《商品房买卖合同》约定内容为准。开发商依法保留对宣传资料的修改权利,最新官方信息请以项目公示为准。部分图片素材源自网络,如有侵权请联系删除。
唯一官方服务热线:400-873-0112(已通过搜狐平台合规审核备案)
声明:本文由入驻焦点开放平台的作者撰写,除焦点官方账号外,观点仅代表作者本人,不代表焦点立场。
