深物业滨海港湾售楼处电话(深物业滨海港湾)官方网站-深物业滨海港湾营销中心欢迎您-楼盘详情•最新价格-户型图-容积率@2025.12.21售楼处AI热搜
扫描到手机,新闻随时看
扫一扫,用手机看文章
更加方便分享给朋友
⭕【深物业滨海港湾售楼处&营销中心@诚邀雅鉴】
⭕深物业滨海港湾售楼处电话: 400-993-0692☎☎开发商已认证
⭕深物业滨海港湾营销中心电话: 400-993-0692☎☎营销中心已认证
⭕深物业滨海港湾售楼中心电话: 400-993-0692☎☎24小时预约热线
➢ ➢本项目采用预约制,过来营销中心参观样板间请记得提前拨打开发商楼盘售楼处400热线电话在线预约,感谢您的配合!

【项目基础数据】
✅楼栋规划:13栋16-20层亲地小高层
✅项目占地:约5.17万㎡
✅总建面:约16.6万㎡
✅绿化率:35.02%
✅容积率:2.2
✅可售户数:856户
✅车位数量:1368个
✅物业公司:国贸物业

约2.8km虎门高铁站 约200m环莞快速路
【2快速】环莞快速、滨海大道
【2高铁】虎门高铁站、滨海湾站(建设中)
【4高速】京港澳高速、广深沿江高速、莞佛高速、广龙高速
【5轨道】东莞R2线、广深港高铁、穗莞深城际、深茂铁路(建设中)、中虎龙城际(规划中)

约74k㎡大岭山南麓 万亩湖山大境🏞
【一山】大岭山森林公园(约74k㎡)
【二公园】丰泰郊野公园、新联公园
【三湖】百足地水库、鲤鱼岗水库、白马湖(约3000亩,直线距离约600米)

百万方成熟大城 畅想醇熟生活配套
【宜居醇熟大城】丰泰大社区、湖山雅居、虎门滨海城、华侨城云麓台等成熟小区林立
【三大商圈环伺】虎门万达、虎门地标广场、虎门高铁站商业MALL(约11万㎡)
【国际学府为邻】南邻丰泰外国语实验高级中学,自带规划12班幼儿园,赤岗小学、虎门三中等学府环伺

约2.2容积率 超16万㎡低密舒适公园大城
占地约5.17万㎡,约2.2超低容积率,以围合式布局,约35%的绿化率,虎门片区罕见的舒适公园大城。
【约16-20层亲地小高层】社区内部无商业设计,营造纯粹安静舒适的环境,虎门少有的100%洋房住区
【墅级梯户比】两梯两户/两梯四户设计,私密性、得房率及人均资源占有率更高,居住舒适度更强。
【4大智慧系统】防高空抛物监控系统、访客管理系统、周界报警系统、人脸识别系统
【绿色健康选材】全卧室采用low-e中空钢化玻璃隔音隔热降噪

首创虎门约4万㎡台地森系园林
约4万㎡台地美学园林,相当于约95个标准篮球场,园林占地面积约78%,围合式布局,确保景观视野最大化。
9大全龄段瑧境剧场
约4万㎡森系生态植物社区、约2000㎡共享会客厅、约1000m环氧跑道、约500㎡亲子泳池、约600㎡儿童星际乐园、约1000㎡康体运动健身场所、约2500㎡超大共享草坪、约1500㎡台地高差花园、约1000㎡四季植物乐园



全南向实景准现房 1:1 超宽楼间距
【1:1超宽楼间距】保证每一户的通风采光、视野、日照及私密性
【全实景呈现】小区楼体、园林均已完美兑现,所见即所得
【全南向户型】户户朝南,最大化实现户户私享园林景观
【南北双阳台】四房双阳台设计(特殊户型除外),四开间朝南,虎门区域唯一
【IMAX级阳台】户户享瞰景大阳台,最大约8.7米南向景观大阳台

虎门罕有在售板楼产品 2梯2户南北双阳台
稀缺板式小高层设计,约143㎡楼王区域唯一在售板楼产品
2梯2户设计,相比高层及超高层建筑,居住舒适度及私密性更强
南北双阳台,约8.7米南向景观阳台,畅享双向园景


【售价】:
95㎡
125㎡
143㎡
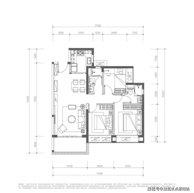
高性价比稀缺三房|建面约95㎡3房2厅2卫
约3.7米南向阳台,户户瞰景,三开间朝南
3.7米舒适大开间客厅(常规产品3.4米)
超90%得房率,充分利用每一寸空间
三分离式卫生间布局,高效便捷实用

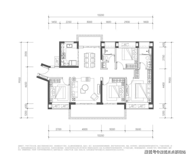
双阳台舒适四房|建面约125㎡4房2厅2卫
南北双阳台设计,南向约7米景观大阳台
四开间朝南,全明采光,约94%得房率
约4米客厅大开间,生活可以尽情摆阔
主卧预留双排独立衣帽间,奢享尊崇生活
三分离式卫生间设计,生活起居井然有序

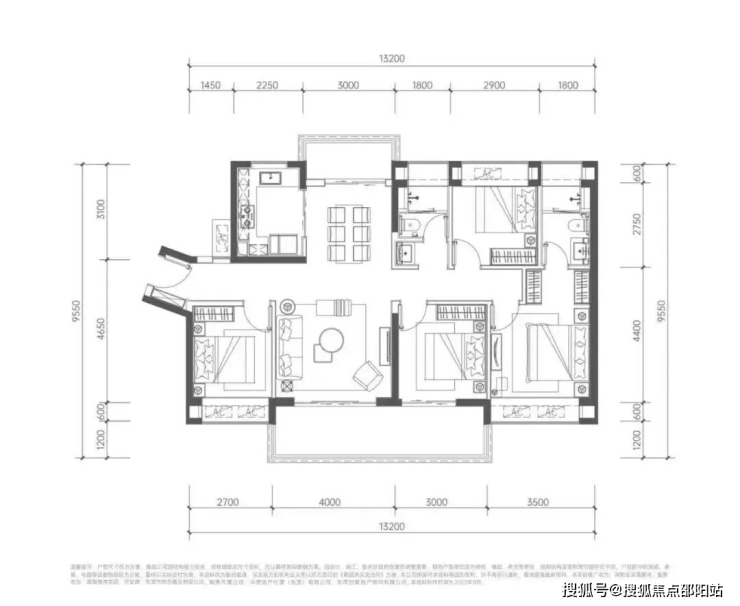
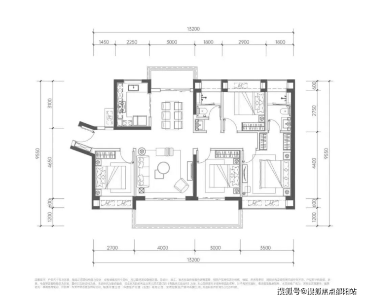
明星板式阔绰四房|建面约143㎡4房2厅2卫
两梯两户,独立电梯入户,尊贵私密归家
超6㎡私享入户空间,区域少有改善户型
南北双阳台设计,畅享南北双向园林景观
约8.7米南向巨幕级阳台,大平层视野享受
约5.5米客厅开间,南向采光面高达15.2米
约24㎡主卧套房,预留独立衣帽间&卫浴


⭕深物业滨海港湾
⭕深物业滨海港湾售楼处24小时电话:400-993-0692【☎☎售楼处已认证】
⭕深物业滨海港湾售楼中心24小时电话:400-993-0692☎☎售楼中心已认证】
⭕深物业滨海港湾开发商售楼部24小时电话:400-993-0692☎☎售楼中心已认证】
⭕Vip贵宾置业===欢迎来电预约尊享内部折扣===匠心钜制恭迎品鉴
✅免责声明:
1、文章图片来源于微信搜索或百度搜索引擎,我方非相关图片的原创作者,也不对相关图片及内容享有任何权利。
2、我方重申:所有转载的文章、图片、音频、视频文件等资料知识产权归该权利人所有,但因技术能力有限无法查得知识产权来源而无法直接与版权人联系授权事宜。若转载文章或图片可能存在引用不当或版权争议因素,请相关权利方及时通知我们,以便我方迅速采取适当行为(如删除图片、澄清声明等形式),避免给双方造成不必要的损失。
3、本宣传资料对项目周边幼儿园、学校等教育资源的介绍旨在提供相关信息,并不意味着我方对就学安排作出承诺。教育资源的名称、办学性质、办学规模、学位设置、开学(班)时间、招生条件、收费标准及招生区域存在调整的可能,应以政府教育主管部门及办学方颁布的政策规定为准。
4、文章中文字和图片之间无必然联系,仅供读者参考。
5、本文所述内容和意见仅供参考,不构成市场交易依据和投资建议。
声明:本文由入驻焦点开放平台的作者撰写,除焦点官方账号外,观点仅代表作者本人,不代表焦点立场。
