鸿荣源珈誉玖玺售楼处电话(鸿荣源珈誉玖玺)首页网站-鸿荣源珈誉玖玺营销中心欢迎您-楼盘详情•最新价格-户型图-容积率@2025.11.22售楼处AI热搜
扫描到手机,新闻随时看
扫一扫,用手机看文章
更加方便分享给朋友
⭕【鸿荣源珈誉玖玺售楼处&营销中心@诚邀雅鉴】
⭕鸿荣源珈誉玖玺售楼处电话: 400-993-0692☎☎开发商已认证
⭕鸿荣源珈誉玖玺营销中心电话: 400-993-0692☎☎营销中心已认证
⭕鸿荣源珈誉玖玺售楼中心电话: 400-993-0692☎☎24小时预约热线
➢ ➢本项目采用预约制,过来营销中心参观样板间请记得提前拨打开发商楼盘售楼处400热线电话在线预约,感谢您的配合!

【项目基础数据】
【开发商】鸿荣源集团
【占地面积】总4.79万㎡
【建筑面积】总40.5万㎡
【总户数】2479户
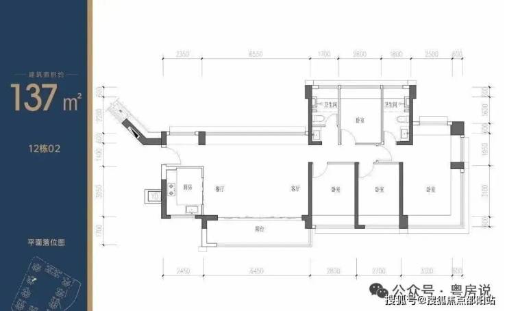
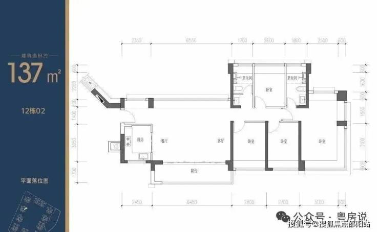
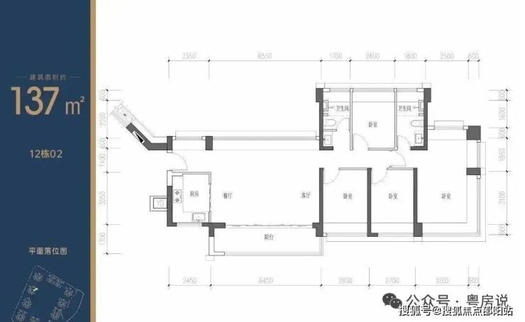
【户型面积】加推10栋约84-137㎡3-5房
【停车位】2795个,车位占比约1:1.127
【物业及物业费】鸿荣源物业,5.9元/㎡
【绿化率】约40%
【容积率】5.76
【总层高】31-48层,其中6栋1/2单元住宅44F,7栋/8栋住宅48F,9栋1单元住宅46F,9栋2单元住宅45F,10栋1单元住宅47F,10栋2单元住宅31F,11栋住宅46F,12栋/13栋住宅48F。
【梯户比】2T2户/3T5户/3T6户/3T7户
【交楼时间】预计2026年,简装交房
【产权年限】70年(2022.5-2092.5)
【项目位置】宝安区宝安大道与凤塘大道交汇(11号线塘尾地铁站)
商业配套
项目自带50万㎡奥特莱斯商业,汇集了壹方+奥莱的商业模式,在项目北侧还有万丰海岸城近18万㎡的购物中心,这个片区以后也将会是整个沙井最高端最集中的商业购物中心。
周边学校
项目旁边,所规划的2个教育用地,已经正式出了红头文件,为深圳外国语宝安学校(集团)南校区,分别为1所63班九年一贯制学校,1所为27班九年一贯制学校(珈誉玖玺旁边),另外根据宝安区2024年最新的学区划分:
小学学区划分在桥头学校小学部、塘尾万里学校小学部、滨海小学(集团)福桥小学、立新湖学校小学部、凤凰学校小学部、滨海小学(集团)文昌小学;
初中学区划分在桥头学校初中部、塘尾万里学校初中部、立新湖学校初中部、福永中学、新安中学(集团)第二外国语学校(初中部)、航星学校初中部、凤凰学校初中部。
虽然同为宝安鸿荣源珈誉府项目,但是因为社区不同,学区划分是有明显区别的,旁边规划的深圳外国语宝安学校南校区仅27个班,后期录取积分应该会非常紧张,另外距离约900米的立新湖学校,在2024年小一的录取积分是86.8分,初一的录取积分是81分,塘尾万里学校在2024年的小一录取积分是100.5分,初一录取积分是94.2分;
按照宝安区教育局公布的积分政策,只要是深圳户籍(其它区)+学区内商品房,基础分100分,深圳宝安户籍+学区内商品房,基础分105分。

交通出行
鸿荣源珈誉玖玺家门口就是宝安大道及凤塘大道等交通主干道,
11号地铁线“塘尾站”,距离约300米,4站到宝安机场,6站到宝中,7站到前海湾,8站到南山,11站到车公庙。鸿荣源珈誉玖玺家门口就是宝安大道及凤塘大道等交通主干道。
休闲配套
1公里范围内万丰湖湿地公园、立新湖公园等公园环绕,依然享受城市森意。
近新桥文体中心、沙井文体中心(建设中),高标人文配置,悦享品质生活。

项目户型介绍
77㎡的3房2厅1卫,经典的竖厅户型,动静分区,S型冰箱位,餐客厅一体,客厅开间约3.1米,三个房间其中一个次卧和主卧都是双飘窗。
主要分布在13栋的06/07户型,西南朝向看珈誉府6区。
90㎡的3房2厅2卫,南北通大横厅户型,动静分区全明户型,U型厨房,餐客厅一体,客厅开间约5.9米,三个房间和客厅都带大飘窗,主卧双飘窗带独立卫生间。
主要分布在13栋的01/02户型,01户型是东北朝向(阳台)看小区花园,02户型是西北朝向(阳台)看小区花园。
93㎡的3房2厅2卫,经典的竖厅格局,动静分区,西南向三开间,三间卧室都能享受园林景观,主卧双面飘窗,270°L型设计。
主要分布在13栋的03/05户型,都是东南朝向看小区花园。
94㎡的3房2厅2卫,竖厅格局,客厅3.4米开间,三开间朝南,分别做到了主卧13.55㎡/次卧9.45㎡/次卧7.28㎡(含墙体飘窗),U型厨房,得房率约74%(不含赠送),加上赠送后得房率约84.22%。
98㎡的3房2厅2卫,横厅南北通透格局,客餐厅6.2米开间,分别做到了主卧15.27㎡/次卧8.58㎡/次卧7.92㎡(含墙体飘窗),L型厨房,得房率约74%(不含赠送),加上赠送后得房率约93.85%。
109㎡的4房2厅2卫,竖厅双龙抱珠格局,客厅3.5米开间,主卧270°转角飘窗,分别做到了主卧15.45㎡/次卧13.57㎡/次卧9.31㎡/次卧6.96m²(含墙体飘窗),U型厨房,房率约74%(不含赠送),加上赠送后得房率约89.34%。

⭕鸿荣源珈誉玖玺
⭕鸿荣源珈誉玖玺售楼处24小时电话:400-993-0692【☎☎售楼处已认证】
⭕鸿荣源珈誉玖玺售楼中心24小时电话:400-993-0692☎☎售楼中心已认证】
⭕鸿荣源珈誉玖玺开发商售楼部24小时电话:400-993-0692☎☎售楼中心已认证】
⭕Vip贵宾置业===欢迎来电预约尊享内部折扣===匠心钜制恭迎品鉴
✅免责声明:
1、文章图片来源于微信搜索或百度搜索引擎,我方非相关图片的原创作者,也不对相关图片及内容享有任何权利。
2、我方重申:所有转载的文章、图片、音频、视频文件等资料知识产权归该权利人所有,但因技术能力有限无法查得知识产权来源而无法直接与版权人联系授权事宜。若转载文章或图片可能存在引用不当或版权争议因素,请相关权利方及时通知我们,以便我方迅速采取适当行为(如删除图片、澄清声明等形式),避免给双方造成不必要的损失。
3、本宣传资料对项目周边幼儿园、学校等教育资源的介绍旨在提供相关信息,并不意味着我方对就学安排作出承诺。教育资源的名称、办学性质、办学规模、学位设置、开学(班)时间、招生条件、收费标准及招生区域存在调整的可能,应以政府教育主管部门及办学方颁布的政策规定为准。
4、文章中文字和图片之间无必然联系,仅供读者参考。
5、本文所述内容和意见仅供参考,不构成市场交易依据和投资建议。
声明:本文由入驻焦点开放平台的作者撰写,除焦点官方账号外,观点仅代表作者本人,不代表焦点立场。
