满京华·金硕华府_售楼处丨满京华·金硕华府_售楼中心(24小时电话)楼盘详情
扫描到手机,新闻随时看
扫一扫,用手机看文章
更加方便分享给朋友
深圳满京华·金硕华府
售楼处24小时电话:400-0035-833
提前预约售楼处看房,可享受线上预约折扣,一对一专属置业顾问服务。
楼盘详情介绍(楼盘项目怎么样?多少钱一平?什么时候交楼?有什么户型?周边有什么学校?物业费多少?),想了解更详细楼盘资料和最新折扣价格,请拨打售楼处电话,销售会为您详细介绍。
区域发展:
远见中心价值级核
占据湾区战略节点 引领世界科创
地处粤港澳大湾区重要战略节点,对标国际科创标杆,打造世界一流科学城,形成深圳北部新中心。
“8+5产业集群”汇聚 吸纳顶级创新人才
8大战略性新兴产业集群,5大未来产业集群,打造科创先行地、创新人才汇聚地。
演绎繁华生活级核
占位光明中心区 中央繁华荟萃
光明中心区作为光明城市“会客厅”,将打造成光明科学城国际化高品质优质公共服务配套区,深圳北部中心的“城市心脏”。
为建立国土空间规划体系,落实“多规合一”改革要求,按照国家、省、市统一工作部署,光明区组织开展了《深圳市光明区国土空间分区规划(2021-2035年)》的编制工作,谋划2035年光明城市发展的空间战略蓝图,为光明区全面建设竞争力影响力卓越的世界一流科学城和湾区重要的区域性功能中心提供有力支撑。
项目基础信息
【项目名称】满京华·金硕华府
【占地面积】约2.28万㎡
【建筑面积】约19.80万㎡
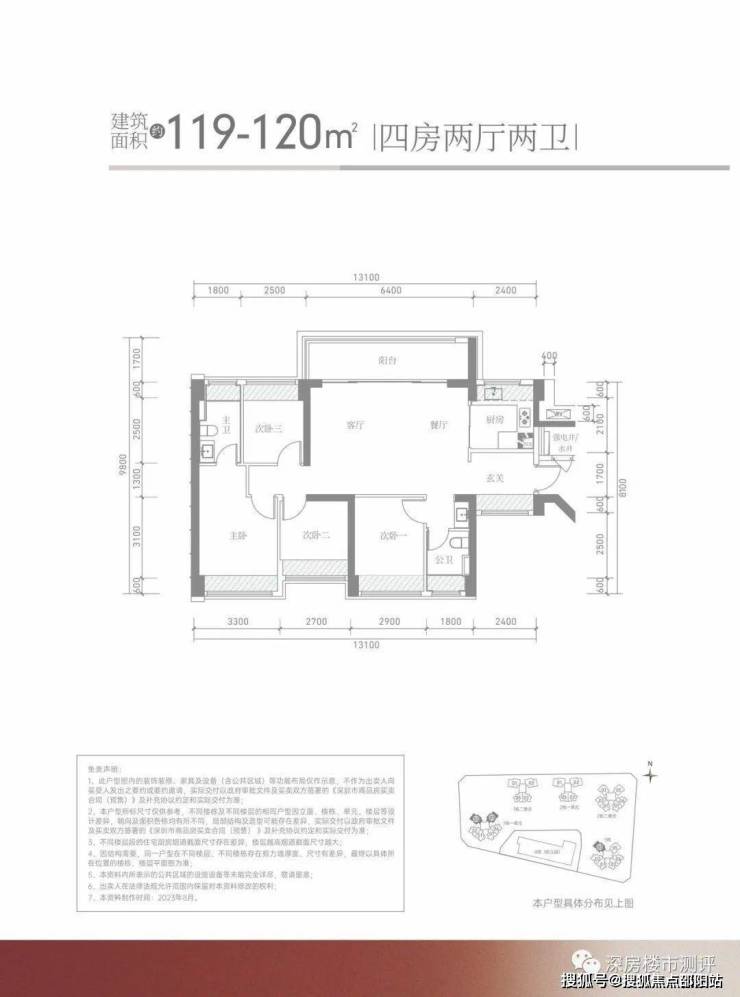
【推售产品】建面约88-141㎡3-4房
【交付标准】预计简装交付
【交房时间】预计2025年12日
【产权年限】70年
【房产性质】住宅
【总户数】1138户
【车位数】1300个车位
【容积率】6.0
【绿化率】30%
【梯户比】3梯4户,3梯6户
【开发商】深圳市满京华置业投资有限公司
【物业公司】深圳市满京华物业管理有限公司【项目地址】深圳·光明中心·光辉大道与狮山三街交汇处

开发商品牌
满京华集团深耕城市25载,成长为涵括城市更新、置地开发、资产运营管理、文化运营、汽车五大业务版块的综合型投资集团
城市更新:力求将居住、产业、文化、消费等多元功能融合重组,重塑土地价值体系。
置地开发:深耕创意文化,构筑作品级项目,推动城市品质生活。
资产运营管理:服务品牌超300个,总服务资产价值超500亿,运营面积超100万㎡。
文化运营:多元生态,创建“文化+产业平台” ,聚合产业发展多元能量。
汽车:成功打造安骅汽车品牌,发展成为上汽通用华南地区最大经销商。
已开发项目:满京华·喜悦里、满京华·云著、云晓公馆、满纷天地、中央西谷大厦、SOHO艺峦、盈丰中心、科创工坊等。

项目简介:
满京华金硕华府(原满京华狮山项目)位于光明中心区,是一个近百万方的超大体量综合体,居住总量超48万㎡,包含有高端住宅、办公、商业、配套等;与科学公园隔路相望,周边紧邻科技创新文化集群,如科学岛、科技馆新馆、西方美术馆等,是光明科学环廊核心地带之一。
不仅如此,公园周边还分布有地铁6号线的光明、科学公园和楼村三个站,以及13号线(在建中)的光明站和光明大街站,规划有另一条直达南山科技园的29号线,轨道交通便利,未来非常宜居的一个片区。
项目设计范围涵盖10块用地,首批入市05-10地块取名为金硕华府,首推建面约88-141㎡3-4房单位。
根据规划,满京华项目沿光辉大道从西到东设计范围涵盖10块用地,总用地面积约109398㎡。其中项目用地7块,返还用地1块,公共绿化用地2块。
05-09地块用地面积为8819.9㎡,总建筑面积73918.69㎡,共有2栋住宅楼和商业组成。
05-10地块(金硕华府)占地约22842㎡,计容建面约137050㎡,住宅121894㎡,商业6416㎡,菜市场1000㎡,幼儿园4200㎡,社区管理用房300㎡,便民服务站500㎡,警务室50㎡,社康中心2000㎡。
05-13地块(金硕瑞府)用地面积为11250.4㎡,总建筑面积98715.64㎡,由1栋、2栋、3栋住宅楼、幼儿园、物业服务用房、商业用房、等相关配套设施组成。
05-03、05-05地块总建筑面积约222623㎡,集具有国际、艺术、现代风格的高端住宅、办公、商业、配套等。
其中主要包括1栋约180m超高层办公写字楼,3栋超高层住宅(住宅最高约150m)及其商业配套。
此次首发产品,位于大项目中的05-10地块,大致在整个项目中的中央区位,坐享片区及全领域配套之余,也更加舒居,首发社区主要由5栋高层塔楼半围合而成。
其社区园林将借鉴新加坡园林特色,规划配置多维儿童游乐空间及370°全龄泳池。同时,提供社区会客厅,提供邻里、亲子交流活动空间,满足多元社区活动需求。
此外,打造塔楼入户大堂和停车场入户大堂,构建双入户大堂,提升居家的品质感和归家的仪式感。
项目配套:
交通方面,距离地铁6号线的光明站800米 ,规划有另一条直达南山科技园的29号线,轨道交通便利。
学校方面,项目周边也分布有多所学校,包括有华师大附属星河小学、深实验光明学校、深圳小学等多所市属名校分校,很多小区隔壁就是学校。

商业配套
创意街区+四大商mall 超30万方繁华汇聚
项目自带超3万㎡创意街区
约13万㎡蓝鲸世界、约4.5万㎡万达广场
约6.3万㎡星河coco city(在建)、约4.3万㎡绿地商业(在建)
公共配套
世界级湾区城市公园 深圳版“中央公园”北部中心的“绿色核心”
五大公园环绕
深圳稀缺生态资源,丰富生态打造城市绿肺
五大公园环绕,以鲜氧唤醒美好生活日常
科学公园&大城相互滋养
以科学公园为轴心,深圳国际美术馆及深圳科学馆(新馆)为主角,结合本案核心节点,形成超宽城市视廊,如开启城市的大门,将绿脉引入街区。
深圳满京华·金硕华府
售楼处24小时电话:400-0035-833
提前预约售楼处看房,可享受线上预约折扣,一对一专属置业顾问服务。
楼盘详情介绍(楼盘项目怎么样?多少钱一平?什么时候交楼?有什么户型?周边有什么学校?物业费多少?),想了解更详细楼盘资料和最新折扣价格,请拨打售楼处电话,销售会为您详细介绍。
免责声明:部分信息来源于网络,如果侵权,请联系及时删除,联系电话:400-0035-833
声明:本文由入驻焦点开放平台的作者撰写,除焦点官方账号外,观点仅代表作者本人,不代表焦点立场。
