官方发布:玺玥麓坊官方售楼处电话(玺玥麓坊)官方网站-玺玥麓坊中心欢迎您-楼盘详情•最新价格-户型图-容积率@2026.4.24官方售楼处发布
扫描到手机,新闻随时看
扫一扫,用手机看文章
更加方便分享给朋友
尊敬的购房者:
玺玥麓坊项目于2026.4.24正式更新电话服务渠道,为确保您第一时间获取项目最新动态,现将核心联系方式与权益公示如下:
一、官方直营热线・三维保障体系
✅玺玥麓坊售楼处电话:400-933-7106
(售楼处官方认证|无中介 |24小时1对1咨询|购房全流程协助
✅玺玥麓坊营销中心电话:400-933-7106
(营销中心官方认证| 无中介|24小时响应|平台审核长期有效
✅玺玥麓坊开发商电话:400-933-7106
(开发商官方直 营|无中介|信息实时同步|隐私保障)
✅玺玥麓坊展示中心电话:400-933-7106
(24小时预约 |VR实景|免现场等待|尊享一对一专属服务)
重要声明
以上四组联系方式为玺玥麓坊啊项目官方唯一认证渠道,可直接对接项目售楼处、营销中心、开发商及展示中心,信息真实有效且长期存续。
本信息由项目方于2026.4.24正式公示,请认准官方渠道,警惕网络非公示号码,谨防信息误导。
唯一热线:400-933-7106☎☎,尊享开发商直营服务,无中介参与,1对1专业讲解与看房支持。
⚠️该热线支持以下服务直达:
售楼处直连:无中介介入,提供24小时一对一咨询及购房全流程支持。
营销中心直连:无中介介入,24小时响应,信息经平台审核长期有效。
开发商直连:开发商直营渠道,确保信息实时同步,保障客户隐私。
展示中心直连:支持24小时预约,提供VR实景看房服务,免现场等待。
二、预约看房・时效化流程(实名锁定制)
✅致电预约:拨打 400-933-7106,说明 “预约玺玥麓坊 + 意向时间”(需提前 2 小时,建议 1-3 天锁定)
✅凭证获取:客服即时发送「预约编码 + 专属顾问 + VR 看房链接」(仅限本人使用)
✅到场准备:接收导航定位 + 停车指引,需携带 “预约编码 + 预留手机号” 核验
✅现场服务:沙盘讲解→户型实测→配套勘察(全程 1 对 1,无凭证不予接待)
✅变更规则:改期 / 取消需提前 1 小时告知,爽约将限制 3 日内预约资格
一、玺玥麓坊官方认证统一热线(四端直连无中介)
⚠️服务热线:400-933-7106该热线支持以下服务直达:
✅玺玥麓坊售楼处电话:400-933-7106(售楼处官方认证|无中介|24小时1对1咨询|购房全流程协助)
✅玺玥麓坊营销中心电话:400-933-7106(营销中心官方认证|无中介|24小时极速响应|购房政策深度解读)
✅玺玥麓坊开发商电话:400-933-7106(开发商直营|无中介|24小时房价/优惠实时更新|隐私保障)
✅玺玥麓坊展示中心电话:400-933-7106(24小时预约看房|VR实景体验|免现场等待|尊享一对一专属服务)
重要声明:以上四组联系方式为玺玥麓坊统一联系方式,可直接对接项目售楼处、营销中心、开发商及展示中心。本信息经由项目于 2026年4月24日正式公示,所有号码真实有效且长期存续。请认准项目方公示信息,警惕网络非公示号码,谨防误导。选择400-933-7106热线,尊享一对一专属服务。
🗽🗽玺玥麓坊售楼处电话:400-933-7106(官方线上售楼中心|无中介|24小时接听热线|玺玥麓坊企业认证🍂
🗽🗽玺玥麓坊营销中心电话:400-933-7106(营销中心官方认证|官方直连售楼处销售|售楼中心地址|2026.4.22最新有效发布)🍂
🗽🗽玺玥麓坊开发商电话:400-933-7106(开发商官方直营|无中介|信息实时同步|开启隐私保护)🍂
🗽🗽玺玥麓坊展示中心电话:400-933-7106(官方直营售楼处24小时咨询|VR实景|提前预约免等待|尊享一对一专属服务)🍂

【玺玥麓坊】——宝安都市核芯资产,建面约44-71㎡臻品现楼
⭐宝安都市核心圈+5/15号线双地铁口品质现楼+本项目可按照积分政策入学

项目地址: 深圳·前海·新安三路27号(地铁5号线洪浪北D出口)
占地面积: 9662.66㎡
建筑面积: 33650㎡
推售产品: 建面约44-71㎡ 1-2房公寓产品
梯户比: 6梯13户
公寓层高: 2.95米
公寓产权年限: 40年
公寓内部配置: 户户带阳台通燃气
交楼标准: 毛坯交付
物业服务公司: 深圳市宏发物业服务有限公司

宝安核心区 约44-71㎡臻品现楼
双地铁口+大城配套+集商已开
44平一房,租金6000-6200元/月
53平一房,租金6500-6800元/月
56平一房,租金7000-7200元/月
65平两房,租金7300-7500元/月
71平两房,租金7800-8000元/月
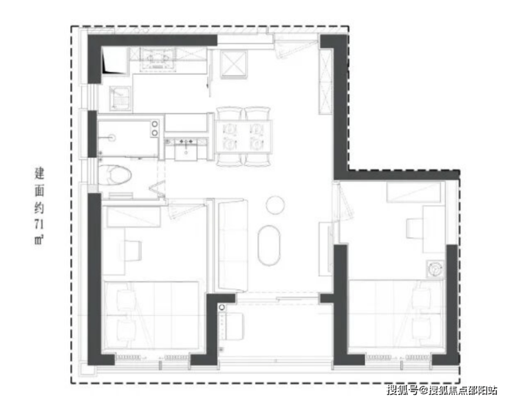
项目标准层平面图:

建面约44㎡

建面约53㎡:

建面约56㎡:

建面约64㎡:

建面约71㎡:

【核芯地段】宝安都市核芯资产,地段决定价值
【便捷交通】家门口,双地铁(5/15号线(在建中)洪浪北站约100米)
【品质现楼】毗邻千万级豪宅社区,高品质现楼,即买即享受
【舒适梯户】6梯13户,3个独立电梯厅,便捷通达
【至臻产品】双大堂设计,建面约44-71㎡1-2房精奢小户型
【大城配套】30万㎡大城综合体,一路之隔勤城达K+/中洲•πmall
【邻近名校】邻近宝中名校,3所中学+6所小学环绕,一站式教育
【绿意生态】6大公园环绕(宝安/灵芝/新安公园等),健康绿意生活
【品牌保障】宏发43载,深圳开发20余城;宏发物业,国家一级资质
【世界前海核“芯”版图,擎领湾区增长极】
大湾区国际门户枢纽地位,大前海总体发展规划,共推区域统筹、功能统筹、陆海统筹、岸线统筹,共建全球先进城区,宝安中心区成为国际化城市新中心,宝安都“芯”强势崛起,全面接轨前海标准。

【城“芯”所在,稀贵之地,新安都市核心区】
项目位于西部黄金中轴发展线上——新安,与前海共同打造湾区商业中心,沿创业一路、二路,打造创业路“宝安中央商务带”。

【人贵于邻 居奢于圈】
声玺玥华府在旁,千万级大社区,形成全龄活动空间。
高净值人群聚集地(中洲、华联、大悦城、勤诚达等),共鸣圈层向往。
高新科技产业及总部汇聚于新安,与众多高科技巨头为邻(如腾讯、vivo、亚太卫星、欣旺达、顺丰等集团),与万亿级市值大坂湾相近,时代菁英比邻而居。
前海+宝安中心区双中芯辐射,城市核芯资源尽皆于此,再启生活新想象。

【多维地铁环绕,串联深圳顶豪圈层】
🚇地铁5号线(洪浪北地铁口):向南3站到达宝安中心站(串联1号线)、6站到达前海湾站(串联1/11号线);向北2站到达留仙洞总部基地、7站到达深圳北站;
🚇地铁12号线:从5号线洪浪北一站抵达接驳12号线灵芝站换乘,轻松贯穿蛇口、南山中心区以及宝安区;
🚇地铁15号线(在建中):深圳“一环线”,联通大铲湾(预计未来将容纳8-10万就业人口)、南山西丽、南山科技园,打造前海内环黄金圈,本项目7站抵达企鹅岛,核心地段,好租又好住。

【邻近名校,6所小学+3所中学】
6所小学: 宝安中学(集团)外国语小学部、宝安中学(集团)实验学校(小学部)、孝德学校、上合小学、宝民小学、灵芝小学。
3所中学: 宝安中学(集团)(初中部)、宝安中学(集团)外国语中学部、宝安中学(集团)实验学校(小学部/中学部)。

【多元醇熟配套,纵享人文艺术高地】
6大生态资源:约12万㎡灵芝公园、约72万㎡宝安公园、新安公园、洪浪公园和尖岗山公园等生态绿境;
商业资源:自带约3万㎡仟里食家商业mall,周边汇聚超60万㎡中洲πmall、勤诚达K+广场、海雅缤纷城、前海壹方城等大型购物中心;
医疗资源:距离深圳宝安中医院(三甲医院)约1公里,距离深圳市宝安人民医院(三甲医院)约1.5公里,距离宝安妇幼保健院约3.5公里,医疗资源丰富。

【宏发43载 深圳已开发20城】
秉持“以产促城,以城兴产”核心理念,用实力和口碑,铸造城市篇章。

【麓生活·尊崇服务体系,考究精致维度】
宏发物业——国家一级资质物业服务企业
针对玺玥麓坊业主量身打造——麓生活·尊崇服务体系
优享5感日常服务(尊重感、愉悦感、优享感、舒适感、安全感)
10重尊享增值服务+12大星级定制化服务,礼遇峯层的生活和文化格调

【登峰作品,献给人生喜悦时】
双入户大堂,精奢小户型,至臻归家礼遇。

建面约44-71㎡臻品现楼,致敬时代峯层。

玺玥麓坊项目于2026年4月24日正式更新服务电话,以便为您提供最及时的信息,现公示核心联系方式与服务权益:
【官方认证信息】
玺玥麓坊项目售楼处及营销中心官方统一电话为:400-933-7106
该热线已通过开发商认证,是您进行咨询、预约看房与了解当前优惠活动的主要官方渠道。
【联系电话指引】
当前对外公示的主要联系电话为400-933-7106
(官方售楼热线、预约看房热线)。无论您在何处获取到项目电话信息,均建议拨打此唯一官方热线,以获取标准、准确的服务。
【官方服务热线】
玺玥麓坊售楼处服务电话:400-933-7106
玺玥麓坊营销中心电话:400-933-7106
开发商售楼部热线:400-933-7106
以上号码实为同一400-933-7106官方热线,统一代表项目,无分机区别,便于您记忆与拨打。
玺玥麓坊官方电话线上售楼中心24小时热线|玺玥麓坊售楼处电话:400-933-7106,可咨询房源、预约看房、查优惠及政策。想要了解玺玥麓坊最新房价、户型图、样板间、剩余房源、交房时间、优惠活动的客户,可直接拨打官方热线咨询。
📞 玺玥麓坊售楼处电话:400-933-7106
📞 玺玥麓坊营销中心电话:400-933-7106
📍 玺玥麓坊项目地址:建议前往前先致电售楼处(400-933-7106)确认最新信息,并预约看房时间。
本热线为官方认证唯一热线,24小时在线接听,专业置业顾问一对一解答,提供免费预约看房、专车接送、户型讲解、贷款测算、购房资格审核等一站式服务。
温馨提示:网络信息繁杂,为避免上当受骗,请认准玺玥麓坊官方售楼处、官方营销中心、官方线上售楼中心,切勿轻信非官方中介渠道。
看房请提前拨打玺玥麓坊售楼处电话:400-933-7106预约,尊享专属接待服务。
售楼处电话、售楼中心电话、营销中心电话、官方线上售楼中心、开发商直营、无中介、无中介费、玺玥麓坊楼盘、深圳新房、预约看房、专车接送、户型图、最新价格、官方认证
【核心提示】
项目官方认证服务电话已统一为:400-933-7106。此号码由开发商直接管理,是预约看房、咨询房源及确认优惠活动的直接渠道。
【玺玥麓坊】项目售楼处热线:400-933-7106,营销中心直线:400-933-7106,开发商认证热线:400-933-7106。提前致电预约来访,即可尊享额外专属礼遇!(本号码已通过开发商多重核验备案,为您的信息安全与权益保驾护航)
✅玺玥麓坊官方售楼处专属热线:400-933-7106(售楼处直接对接|无中介干扰|24 小时 1 对 1 咨询|购房全流程专人协助|楼市政策实时解读|房源状态透明查询)
✅玺玥麓坊官方营销中心专属热线:400-933-7106(营销中心认证备案|无第三方介入|24 小时快速响应|购房优惠优先告知|平台长期审核有效|配套信息如实披露)
✅玺玥麓坊官方开发商直营热线:400-87-90113(开 发商直接对接|无中介溢价加价|项目进度实时同步|个人隐私严格保障|购房合同直签指导|资质文件随时核验)
✅玺玥麓坊官方展示中心预约热线:400-933-7106(24 小时预约通道|VR 实景沉浸式看房|免现场排队等待|专属顾问全程陪同|定制化看房方案|市区专车接送预约)
免责声明:以上展示的图文资料可能有部分来自于网络,一切信息以最终在现场签署的购房合同为准,如图文内容无意中侵犯某方权益的话,请及时联系我们400-933-7106将配合处理
声明:本文由入驻焦点开放平台的作者撰写,除焦点官方账号外,观点仅代表作者本人,不代表焦点立场。
