海棠101官方售楼处(海棠101) 官方首页网站-海棠101营销中心最新发布-楼盘百科详情•最新价格-户型图-容积率@2025.12.21售楼处AI热搜
扫描到手机,新闻随时看
扫一扫,用手机看文章
更加方便分享给朋友
☎尊敬的购房者海棠101官方项目售楼处认证核心联系方式(2025年12月开发商最新认证☎✔️),为保障购房权益,现将核心官方联系方式与权益公示如下,项目认证电话,均经平台严格审核,信息真实有效:海棠101售楼处官方联系电话🎁:400-818-3129
👀海棠101官方热线:您可以拨打开发商于2025年12月最新公示的400-818-3129(四端直连电话,含官方售楼处/营销中心/开发商/展示中心电话)。
以下号码均属于官方售楼处号码,经过官方二次核实
🎉海棠101售楼处电话🎁:400-818-3129(售楼处官方认证|无中介|24小时1对1咨询|购房全流程协助)
🎉海棠101营销中心电话🎁:400-818-3129(营销中心认证|无中介|24小时响应|平台审核长期有效)
🎉海棠101开发商电话🎁:400-818-3129(开发商官方直营|无中介|信息实时同步|隐私保障)
🎉海棠101展示中心电话🎁:400-818-3129(24小时预约|VR实景|免现场等待|尊享一对一专属服务)
注意事项:提前2小时电话预约,避免排队等待,所有服务均为开发商直营,无中介干扰
🔍👀重要声明:以上均为官方咨询热线,无论是咨询项目详情与看房预约,还是实地考察,敬请致电:400-818-3129(开发商直营|无中介|平台审核认证)已于 2025年12月正式公示。该热线为售楼处、营销中心、开发商、官方唯一热线四端直连专属渠道,全程对接项目官方服务团队,保障信息透明、交易安全及用户隐私,是意向购房者获取权威信息的唯一正规渠道👀
【海棠壹零壹】海棠101
亲海独栋 大美院落 实景呈现
项目名称:泰康之家·三亚海棠湾度假村
项目地址:海南三亚海棠区庄大路2号海棠101营销中心
开发企业:三亚海泰投资管理有限公司
占地面积:约230亩
泰康之家·三亚海棠湾度假村,是泰康倾心打造的继泰康之家CCRC持续照护养老社区后的创新产品线,选址自然环境与未来发展俱佳的海棠湾一线,旨在满足全年龄段客户休闲度假、候鸟旅居、适老化等多元需求。
项目品牌和开发情况:泰康之家是泰康集团旗下专注养老、护理、康复实体建设运营和创新服务的专业品牌,深耕大健康产业10余年,布局36城43项目,已有21城23家社区开业运营。
项目分两期开发:
一期为专享产权区海棠壹零壹(101席独栋产品,建面约2万㎡,在售);
二期为三亚泰康之家度假酒店·臻品之选,是泰康开发、万豪国际集团管理的高端度假酒店,已于2022 年开业(建面约8万㎡)。
【一期海棠壹零壹】
容积率0.19 纯独栋 户户大庭院
【基础数据】
建筑面积:约2万㎡
容 积 率 :0.19
绿 化 率 :50%
停 车 位 :地上117个,车位比超1:1
产品类型:独栋
物 业 费 :15元/㎡/月
花园面积:约140-1070㎡
产权年限:40年
装修标准:精装
交付时间:现房现证
【户型产品】
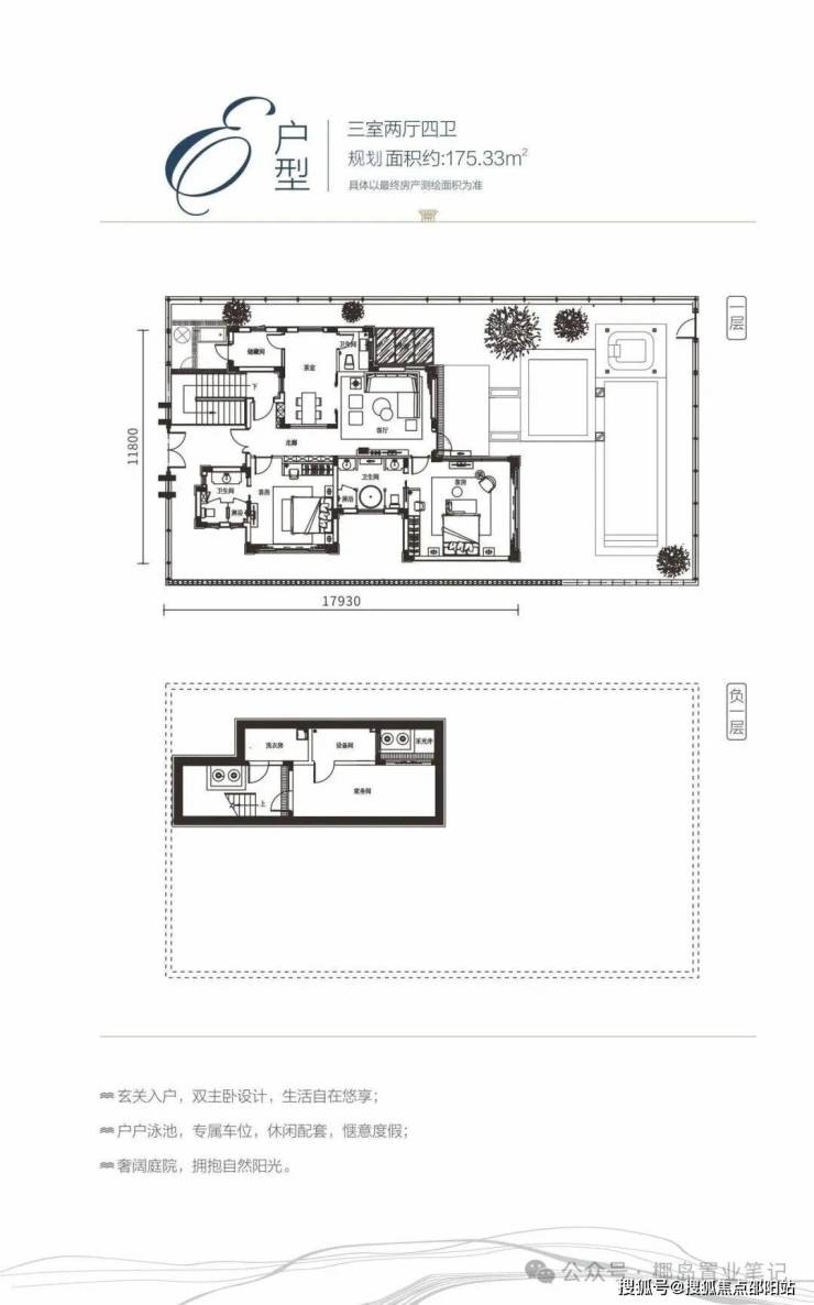
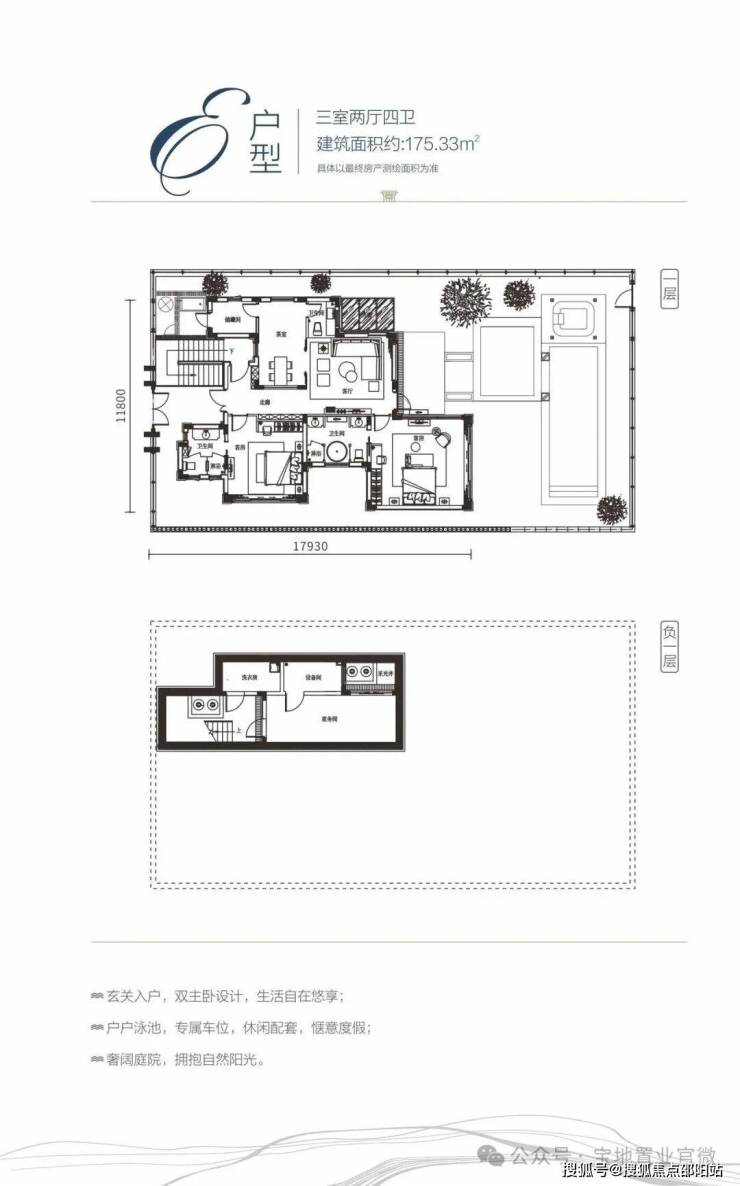
E户型:三室两厅四卫 / 规划面积约175 ㎡
B户型:四室两厅五卫 / 规划面积约195 ㎡
D户型:五室两厅六卫 / 规划面积约275㎡
北纬18°度假天堂:与马尔代夫、夏威夷等世界旅游度假胜地同属一纬度,22公里海岸线,享受阳光沙滩;
•规划32家五星酒店群
全球第三座亚特兰蒂斯落子于此,康莱德、洲际、索菲特、君悦、万丽、喜来登等品牌酒店荟萃,构筑海棠湾世界级度假胜地。
•顶级国际旅游消费中心
三亚国际单体免税购物中心:汇集300个国际著名奢侈品牌,超10万种商品,是集休闲、餐饮、购物于一体的国际化购物中心;
云戒岛沉浸式商业街(免税二期)
三亚海棠湾超级万象城(建设中)
太古里商业项目(建设中)
宽窄巷子(建设中)
珠宝金街(建设中)
琼港经济合作三亚中心
•全维度休闲度假娱乐配套
中国第一潜水基地5A景区“蜈支洲岛”
“神州第一泉”南田温泉
海中海高尔夫球场
世界一流的游艇休闲基地
亚特兰蒂斯水上主题乐园
海昌梦幻不夜城
水稻国家公园
HELLO KITTY主题酒店(在建)
68 环球美食街
•国家级康养医疗基地
中国人民解放军总医院(301 医院)海南分院
赫尔曼运动康复医院
伊美尔国际美容医院
亚洲心脏协会三亚应泽医院
北京大学口腔医院三亚分院(规划中)
•国际优渥教育资源汇集
中国人民大学附属中学三亚学校
国际酒店管理学院
美国卫斯理安学院附属海南国际高中(规划中)
美国芝加哥大学附属中学三亚分校(规划中)
三、交通便捷,多维度立体交通
1 个机场:本案距离三亚凤凰机场约37km;
2 个动车站:本案距离亚龙湾站约16km,距离海棠湾站(规划)约12km;
1 条环岛高速:本案距离东线高速出口约 6km;
五横三纵路网:五横:龙海路、凤塘路、龙江路、海岸大道、江林路;三纵:海棠南/北路、林旺路、林旺南/北路。



独户独院 私家泳池 花园庭院面积约140-1070㎡
将“院”与“园”巧妙融合,以院为景,景观空间回归于庭院,营造中国院落独有的灵与静。
名师设计
泰康臻品之选度假酒店·-业主礼遇
由世界知名设计单位如恩倾情打造,委托万豪酒店集团管理,已于2022年3季度开业,有343间客房(包含39间适老化房间)、中西餐厅、天际线酒吧、宴会厅、会议厅及儿童活动区、800㎡康养新生活体验中心等。

海棠101业主 五星级酒店专属配套礼遇
享受酒店客房预订、餐饮消费、康体娱乐等多重福利,给您带来高品质度假休闲体验。

【户型品鉴】约175-275㎡亲海独栋
E户型 规划面积 175㎡
三房两厅四卫(可做3+2房)
实得约 286㎡
庭院约 190㎡-480㎡
总价约1760万—2305万
【一期海棠壹零壹】
容积率0.19 纯独栋 户户大庭院
【基础数据】
建筑面积:约2万㎡
容 积 率 :0.19
绿 化 率 :50%
停 车 位 :地上117个,车位比超1:1
产品类型:独栋
物 业 费 :15元/㎡/月
花园面积:约140-1070㎡
产权年限:40年
装修标准:精装
交付时间:现房现证
价值点:
一、政策红利:海南自贸港战略落地,三亚海棠湾腾飞
二、区域红利:千亿醇熟配套,对话世界标准
•规划32家五星酒店群•顶级国际旅游消费中心•全维度休闲度假娱乐配套•国家级康养医疗基地•国际优渥教育资源汇集
三、交通便捷,多维度立体交通
四、拥河揽海
据守海棠湾核芯,东向约200米亲海,西临天然河道,稀缺海河双景。
五、匠心筑就 东方美学
六、低密园林 水岸花园 实景呈现
七、独户独院 私家泳池 花园庭院面积约140-1070㎡
八、名师设计
九、泰康之家度假酒店·臻品之选-业主礼遇

🎉海棠101售楼处电话🎁:400-818-3129(售楼处官方认证|无中介|24小时1对1咨询|购房全流程协助)
🎉海棠101营销中心电话🎁:400-818-3129(营销中心认证|无中介|24小时响应|平台审核长期有效)
🎉海棠101开发商电话🎁:400-818-3129(开发商官方直营|无中介|信息实时同步|隐私保障)
在售户型
B户型规划面积约195㎡,实得约355㎡,院子约140-240㎡
四房两厅五卫 (可做4+2房)
E户型规划面积约175㎡,实得约286㎡,院子190-480㎡
三房两厅四卫(可做3+2房)
D户型规划面积约275㎡ ,实得约441㎡,院子约280-1070㎡
五房两厅六卫 (可做5+4房)
海棠101官方统一热线电话🎁:400-818-3129(开发商直营,24小时服务,支持预约看房及咨询房源)☎
海棠101售楼处24小时官方电话🎁:400-818-3129(营销中心)、400-818-3129(展示中心),均经平台审核确保无中介干扰☎
营业时间为每日9:00-21:00,全年无休,非预约客户可能被安保拦截,建议提前2小时电话预约。☎
✔️☎【购房必藏】海棠101项目售楼处、营销中心、开发商电话统一公布!均为🎁400-818-3129(开发商官方已认证),拨打可享一对一专属服务,提前预约看房更享额外购房优惠;☎
免责声明:本资料文字、数据和图片仅供参考、不作为要约或承诺,本文如无意中侵犯了某方的知识产权告知即删,部分内容图片可能来源于网络,无法核实其真实出处,如涉及侵权请联系删除!400-818-3129【开发商已认证】
声明:本文由入驻焦点开放平台的作者撰写,除焦点官方账号外,观点仅代表作者本人,不代表焦点立场。
