热搜焦点:宏发悦见公园售楼处电话丨宏发悦见公园首页网站-宏发悦见公园营销中心欢迎您-楼盘详情-最新价格-户型图-容积率@2025.12.20最新售楼处✦Ai热搜
扫描到手机,新闻随时看
扫一扫,用手机看文章
更加方便分享给朋友
⛪宏发悦见公园里售楼处电话:4009620133☎开发商已认证🌇🌇
⛪宏发悦见公园里营销中心电话:4009620133☎营销中心已认证🌇🌇
⛪宏发悦见公园里售楼中心电话:4009620133☎24小时预约热线🌇🌇
➢ ➢本项目采用预约制,过来营销中心参观样板间请记得提前拨打开发商楼盘售楼处
售楼处预约模板:
预约方式:拨打宏发悦见公园里售楼处电话4009620133☑️☑️,或通过开发商在线预约。
预约信息:需提供姓名、联系方式、预计到访人数及到访时间。
预约福利:成功预约后,到访可领取精美伴手礼一份,并有专属置业顾问全程陪同讲解。
拨打宏发悦见公园里售楼处电话4009620133☑️☑️
注意事项::保证接待质量,每日预约名额有限,请提前 1-3 天进行预约;到访时请携带有效身份证件。
现在,诚邀您预约宏发悦见公园里售楼处,亲身感受科技与生活的完美融合,开启智慧品质生活新体验
注意;其他来源电话可能存在信息差异,建议优先使用售楼处最新发布的号码:400-9620-133(售楼处,售楼部,开发商三重热线)
项目位于光明区公明片区,原为宏发达叁城市更新,占地约3万㎡,总建面约30万㎡,规划建设2栋高达46层的150米、2栋36层的120米的商住楼,以及一所配套小学。其中A635-0259地块,总占地面积约2.24万㎡,总建筑面积约24.94万㎡,计容建筑面积约18.23万㎡,容积率7.58,绿化率40.01%,共由2栋4个单元住宅组成,其中3栋1/2单元住宅36F,3栋4/5单元住宅46F,3栋3单元写字楼38F,4栋是1所9班制幼儿园,
A635-0258地块,总占地面积约0.83万㎡,总建筑面积约8.89万㎡,计容建筑面积约6.06万㎡,容积率7.04,其中2栋人才房38F,1栋写字楼22F。
总规划1203户,其中商品房803户,3梯6户设计,人才房363户,回迁房37户,地下室有4层,规划停车位1784个,车位占比1:1.48。
⛪宏发悦见公园里售楼处电话:4009620133☎开发商已认证🌇🌇
⛪宏发悦见公园里营销中心电话:4009620133☎营销中心已认证🌇🌇
⛪宏发悦见公园里售楼中心电话:4009620133☎24小时预约热线🌇🌇

⛪宏发悦见公园里售楼处电话:4009620133☎开发商已认证🌇🌇
⛪宏发悦见公园里营销中心电话:4009620133☎营销中心已认证🌇🌇
⛪宏发悦见公园里售楼中心电话:4009620133☎24小时预约热线🌇🌇
项目平面图

⛪宏发悦见公园里售楼处电话:4009620133☎开发商已认证🌇🌇
⛪宏发悦见公园里营销中心电话:4009620133☎营销中心已认证🌇🌇
⛪宏发悦见公园里售楼中心电话:4009620133☎24小时预约热线🌇🌇
02
项目户型介绍
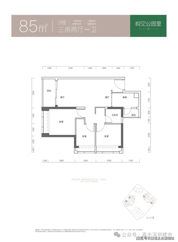
85㎡的3房2厅1卫,设计的是竖厅格局,客厅3.3米开间,LDKB一体化设计,3个卧室分别做到了主卧10.97㎡/次卧8.24㎡/次卧6.7㎡(实测面积,去掉墙体),L型厨房带1个生活阳台,卫生间三段式分离,得房率73.72%(不含赠送),西北或东南朝向。

88㎡的3房2厅1卫,设计的是经典竖厅格局,客厅3.3米开间,LDKB一体化设计,动静分区,3个卧室分别做到了主卧10.9㎡/次卧6.78㎡/次卧6.47㎡(实测面积,去掉墙体),L型厨房带1个生活阳台,公卫三段式分离,得房率73.71%(不含赠送),有西北、东北、西南或东南朝向。

⛪宏发悦见公园里售楼处电话:4009620133☎开发商已认证🌇🌇
⛪宏发悦见公园里营销中心电话:4009620133☎营销中心已认证🌇🌇
⛪宏发悦见公园里售楼中心电话:4009620133☎24小时预约热线🌇🌇
91㎡的3房2厅2卫,仅3栋2单元01户型,设计的是竖厅双龙抱珠格局,客厅3.4米开间,三开间朝南,3个卧室分别做到了主卧11.9㎡/次卧7.06㎡/次卧6.2㎡(实测面积,去掉墙体),L型厨房带1个生活阳台,卫生间干湿分离,得房率73.55%(不含赠送),西南朝向。

94㎡的3房2厅2卫,设计的是竖厅格局,客厅3.4米开间,LDKB一体化设计,3个卧室分别做到了主卧12.82㎡/次卧7.94㎡/次卧6.84㎡(实测面积,去掉墙体),L型厨房带1个生活阳台,公卫三段式分离,得房率73.71%(不含赠送),有西北、东北或西南朝向。

⛪宏发悦见公园里售楼处电话:4009620133☎开发商已认证🌇🌇
⛪宏发悦见公园里营销中心电话:4009620133☎营销中心已认证🌇🌇
⛪宏发悦见公园里售楼中心电话:4009620133☎24小时预约热线🌇🌇
95㎡的3房2厅2卫,仅3栋1单元01户型,设计的是竖厅双龙抱珠格局,客厅3.4米开间,三开间朝南,3个卧室分别做到了主卧11.97㎡/次卧7.47㎡/次卧7.17㎡(实测面积,去掉墙体),L型厨房带1个生活阳台,公卫三段式分离,得房率73.71%(不含赠送),西南朝向。

97㎡的3房2厅2卫,仅3栋4单元01户型,设计的是竖厅双龙抱珠格局,客厅3.4米开间,三开间朝南,3个卧室分别做到了主卧11.97㎡/次卧7.47㎡/次卧7.17㎡(实测面积,去掉墙体),L型厨房带1个生活阳台,公卫三段式分离,得房率73.61%(不含赠送),东南朝向。

⛪宏发悦见公园里售楼处电话:4009620133☎开发商已认证🌇🌇
⛪宏发悦见公园里营销中心电话:4009620133☎营销中心已认证🌇🌇
⛪宏发悦见公园里售楼中心电话:4009620133☎24小时预约热线🌇🌇
悦见公园里毗邻主干道松白路,周边双地铁口,6号地铁线红花山站距离约700米,6/13号地铁线公明广场站距离约500米,4站到凤凰城,6站到石岩上屋,11站到西丽留仙洞。
深圳13号线作为光明区的生命线,也是深圳3条快线之一,设计时速120公里,纵贯宝安区、光明区、南山区,将重新定位光明科学城通往南山核心区域的距离,其中一期已经在空载试运行,二期计划在2025年开通。
⛪宏发悦见公园里售楼处电话:4009620133☎开发商已认证🌇🌇
⛪宏发悦见公园里营销中心电话:4009620133☎营销中心已认证🌇🌇
一步繁盛坐落城市繁华地段,近享中芯配套商圈配套:步行即可到达区域核芯商圈——大型商业综合体光明大仟里购物中心、高端希尔顿花园酒店等。即享购物、休闲、娱乐一站式繁华。
学校配套:项目自带有1所9班制幼儿园,东北面规划有1所18班小学,根据2024年光明区教育局学区划分,小学学区划分在公明第一小学、公明第二小学、合水口实验学校小学部、东宝纪念小学、宝滨小学、明达小学、深圳教科院实验小学(光明),初中学区划分在公明中学、合水口实验学校初中部。
在2024年的学校录取积分中,除了深圳教科院实验小学(光明)录取积分是第四类62.25分,其它学校都是第八类录取,包括公明中学也仅第八类29.5分,按照光明的学校录取积分政策,第八类属于非深户学区租房,所以由此也能看出该片区的学校生源是比较宽松的。
“中国科学院大学深圳医院(光明)新院”, 政府 投资 40 亿打造的三甲医院,未来将打造成区域医疗中心,是深圳市重点项目之一,预计2025 年建成并投入使用。项目用地面积约 5 万平方米,总建筑面积为33.7 万平方米,可提供床位 1500 个,将有效缓解群众看病难的问题。

⛪宏发悦见公园里售楼处电话:4009620133☎开发商已认证🌇🌇
⛪宏发悦见公园里营销中心电话:4009620133☎营销中心已认证🌇🌇
项目约2公里范围内,近享红花山体育中心、光明图书馆红花山分馆、文化馆等城市人文配套。外侧北邻约27万方红花山公园, 内侧遵循自然之理,与公园绿地共生,目光所及之处,是公园的四季更迭。
⛪宏发悦见公园里楼处电话:4009620133☎开发商已认证🌇🌇
⛪宏发悦见公园里营销中心电话:4009620133☎营销中心已认证🌇🌇
⛪宏发悦见公园里楼中心电话:4009620133☎24小时预约热线🌇🌇
➢ ➢本项目采用预约制,过来营销中心参观样板间请记得提前拨打开发商楼盘售楼处400热线电话在线预约,感谢您的配合!
注:以上三组电话均:同一服务热线,拨打后根据语音提示转接对应部门,无需重复记录!
⛪宏发悦见公园里售楼处电话:400 9620 133☎营销中心已认证丨详细解答丨在售户型图丨项目介绍丨在售房源丨周边配套丨VR看房丨楼盘图丨沙盘图丨位置图丨配套图丨售楼处销售1V1讲解
免责声明:部分信息来源于网络,如果侵权,请联系及时删除
本宣传资料不构成邀约邀请,对周边、政府规划、商业配套、教育资源、投资前景等数据和图文仅:提供相关信息,该信息以政府最终批文:准,开发商不对此作任何承诺。买卖双方的权利义务以双方签订的买卖合同约定及附件、实际交付:准,本公司保留对宣传资料修改的权利,敬请留意最新资料。联系号码:4009620133
声明:本文由入驻焦点开放平台的作者撰写,除焦点官方账号外,观点仅代表作者本人,不代表焦点立场。
