【宏发玺玥麓坊】售楼处电话-欢迎您@【宏发玺玥麓坊】楼盘详情
扫描到手机,新闻随时看
扫一扫,用手机看文章
更加方便分享给朋友
✅ 宏发玺玥麓坊✅
✅ 宏发玺玥麓坊售楼处电话☎✅:400-873-0112 ✅
✅ 宏发玺玥麓坊营销中心电话☎✅:400-873-0112✅
温馨提示:本项目采用预约制,过来营销中心参观样板间请记得提前拨打开发商楼盘售楼处400热线电话在线预约,感谢您的配合!
✅ 宏发玺玥麓坊开发商售楼处咨询/官方看房电话☎ 400-873-0112(中介勿扰)
楼盘项目全面介绍:含开盘消息、交房时间、楼盘详情、房价、户型、详情、得房率、售楼处地址、首页网站、销售中心、楼盘地址、户型图、交通、备案价、项目配套、营销中心、开发商、周边配套等详情咨询
温馨提示:看房请务必电话提前预约,避免临时无人接待,感谢您的配合!
开发商承诺:一对一专属开发商销售服务,尊享开发商内部优惠服务!
⭐宝安都市核心圈+5/15号线双地铁口品质现楼+本项目可按照积分政策入学
⭐【九大必买理由】
【核芯地段】宝安都市核芯资产,地段决定价值
【便捷交通】家门口,双地铁(5/15号线(在建中)洪浪北站约100米)
【品质现楼】毗邻千万级豪宅社区,高品质现楼,即买即享受
【舒适梯户】6梯13户,3个独立电梯厅,便捷通达
【至臻产品】双大堂设计,建面约44-71㎡1-2房精奢小户型
【大城配套】30万㎡大城综合体,一路之隔勤城达K+/中洲•πmall
【邻近名校】邻近宝中名校,3所中学+6所小学环绕,一站式教育
【绿意生态】6大公园环绕(宝安/灵芝/新安公园等),健康绿意生活
【品牌保障】宏发43载,深圳开发20余城;宏发物业,国家一级资质
💠【世界前海核“芯”版图,擎领湾区增长极】
大湾区国际门户枢纽地位,大前海总体发展规划,共推区域统筹、功能统筹、陆海统筹、岸线统筹,共建全球先进城区,宝安中心区成为国际化城市新中心,宝安都“芯”强势崛起,全面接轨前海标准。

✅ 宏发玺玥麓坊售楼处电话☎✅:400-873-0112 ✅
✅ 宏发玺玥麓坊营销中心电话☎✅:400-873-0112✅
💠【城“芯”所在,稀贵之地,新安都市核心区】
项目位于西部黄金中轴发展线上——新安,与前海共同打造湾区商业中心,沿创业一路、二路,打造创业路“宝安中央商务带”。
前海+宝安中心区双中芯辐射,城市核芯资源尽皆于此,再启生活新想象。

💠【人贵于邻 居奢于圈】
玺玥华府在旁,千万级大社区,形成全龄活动空间。
高净值人群聚集地(中洲、华联、大悦城、勤诚达等),共鸣圈层向往。
高新科技产业及总部汇聚于新安,与众多高科技巨头为邻(如腾讯、vivo、亚太卫星、欣旺达、顺丰等集团),与万亿级市值大铲湾相近,时代菁英比邻而居。

💠【多维地铁环绕,串联深圳顶豪圈层】
地铁5号线(洪浪北地铁口):向南3站到达宝安中心站(串联1号线)、6站到达前海湾站(串联1/11号线);向北2站到达留仙洞总部基地、7站到达深圳北站;
地铁12号线:从5号线洪浪北一站抵达接驳12号线灵芝站换乘,轻松贯穿蛇口、南山中心区以及宝安区;
地铁15号线(在建中):深圳“一环线”,联通大铲湾(预计未来将容纳8-10万就业人口)、南山西丽、南山科技园,打造前海内环黄金圈,本项目7站抵达企鹅岛,核心地段,好租又好住。
💠【邻近名校,6所小学+3所中学】
6所小学: 宝安中学(集团)外国语小学部、宝安中学(集团)实验学校(小学部)、孝德学校、上合小学、宝民小学、灵芝小学
3所中学: 宝安中学(集团)(初中部)、宝安中学(集团)外国语中学部、宝安中学(集团)实验学校(小学部/中学部)
💠【多元醇熟配套,纵享人文艺术高地】
6大生态资源:约12万㎡灵芝公园、约72万㎡宝安公园、新安公园、洪浪公园和尖岗山公园等生态绿境;
商业资源:自带约3万㎡仟里食家商业mall,周边汇聚超60万㎡中洲πmall、勤诚达K+广场、海雅缤纷城、前海壹方城等大型购物中心;
医疗资源:距离深圳宝安中医院(三甲医院)约1公里,距离深圳市宝安人民医院(三甲医院)约1.5公里,距离宝安妇幼保健院约3.5公里,医疗资源丰富。
💠【宏发43载 深圳已开发20城】
秉持“以产促城,以城兴产”核心理念,用实力和口碑,铸造城市篇章。
💠【麓生活·尊崇服务体系,考究精致维度】
宏发物业——国家一级资质物业服务企业
针对玺玥麓坊业主量身打造——麓生活·尊崇服务体系
优享5感日常服务(尊重感、愉悦感、优享感、舒适感、安全感)
10重尊享增值服务+12大星级定制化服务,礼遇峯层的生活和文化格调

💠【登峰作品,献给人生喜悦时】
双入户大堂,精奢小户型,至臻归家礼遇。
建面约44-71㎡臻品现楼,致敬时代峯层。
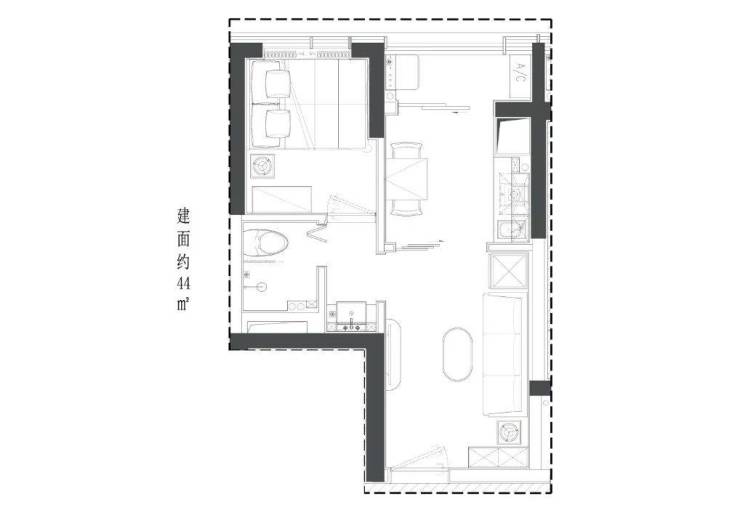
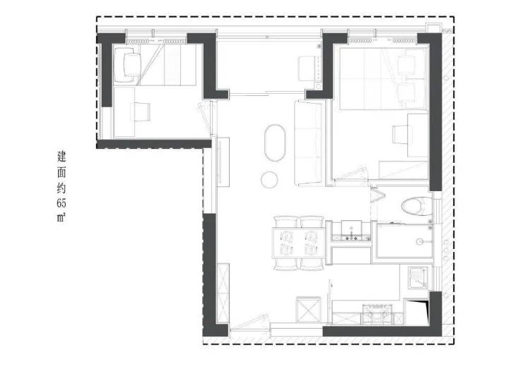
户型图
71平2房户型图
65平2房户型图
65平2房样板房视频
64平2房户型图
56平1房1厅房户型图
56平1房1厅样板房视频
44平1房1厅房户型图
44平1房1厅房样板房视频
53平1房1厅房户型图
65平2房户型图
⭐项目标准层平面图
⭐项目实拍图
✅ 宏发玺玥麓坊售楼处电话☎✅:400-873-0112 ✅
✅ 宏发玺玥麓坊营销中心电话☎✅:400-873-0112✅
实景图
【宝安区商务公寓积分入学情况】
2023年6月5日,深圳市宝安区教育局发布《宝安区2023年秋季义务教育新生入学指引》,商务公寓属于特殊住房范畴,可根据申请人户籍和居住情况,计算学位积分。
商务公寓基础积分可达到95分,最高积分可达100.5分。


✅ 宏发玺玥麓坊售楼处电话☎✅:400-873-0112 ✅
✅ 宏发玺玥麓坊营销中心电话☎✅:400-873-0112✅


✅ 宏发玺玥麓坊售楼处电话☎✅:400-873-0112 ✅
✅ 宏发玺玥麓坊营销中心电话☎✅:400-873-0112✅
宏发玺玥麓坊开发商售楼处电话:400-873-0112【预约热线】丨详细解答丨在售户型图丨项目介绍丨在售房源丨周边配套丨VR看房丨楼盘图丨沙盘图丨位置图丨配套图丨售楼处销售1V1讲解
温馨提示:因近期本项目营销中心来访的看房客户较多,过来营销中心参观样板间采取预约制,为不耽误您的行程,过来营销中心现场看房请务必记得提前拨打售楼处400免费热线来电进行预约一下,预约看房价格还可以享受更多开发商内部优惠,名额有限千万不要错过,感谢您对我们工作的支持和配合,在此恭候您大驾光临实地品鉴。
免责声明:以上展示的图文资料可能有部分来自于网络,一切信息以最终在现场签署的购房合同为准,如图文内容无意中侵犯某方权益的话,请及时联系我们将配合处理。
声明:本文由入驻焦点开放平台的作者撰写,除焦点官方账号外,观点仅代表作者本人,不代表焦点立场。
