官方认证:玖玖颂阁售楼处电话丨玖玖颂阁官方网站-营销中心欢迎您-实时价格-户型图-容积率-楼盘详情@2025.12.13售楼处✦Ai热搜
扫描到手机,新闻随时看
扫一扫,用手机看文章
更加方便分享给朋友
【玖玖颂阁】全新作品双展厅璀璨绽放!看房请提前预约✔️
⏰ 核心提示:玖玖颂阁本项目为预约制售楼处,为节省您的宝贵时间,确保服务品质,暂不接受临时到访。看房前请务必拨打4009098698提前预约,尊享专属接待与VIP购房通道。
✅✅玖玖颂阁售楼处电话:400-9098-698✔️官方认证
【玖玖颂阁项目】官方售楼处热线:400-909-8698 ☎️ 开发商直通认证
玖玖颂阁售楼处官方认证电话为 400-9098-698该号码由开发商统一认证,可用于预约看房、咨询房源及优惠活动
不同来源显示多个联系电话,建议优先拨打400-9098-698(出现次数最多)或400-9098-698(近期活动信息)。两个号码均被描述为“官方认证”,具体使用时可根据需求选择。
玖玖颂阁售楼处电话:400-9098-698
玖玖颂阁营销中心电话:400-988-0986
一、项目概述
玖玖颂阁,由深圳市俊弘星实业有限公司匠心打造,项目占地约1.4万㎡,总建面达到10.41万㎡。这里拥有667户精致住宅,面积区间涵盖84㎡至133㎡,满足不同家庭的居住需求。项目以现代简约风格设计,搭配高品质的精装修,为业主打造一个温馨舒适的家居环境。同时,项目配备有充足的停车位,车位比达到1:1.12,确保每位业主的停车需求。
二、周边配套
交通配套:北环大道、G107国道、宝安大道环绕,自驾出行便捷,可达福田、南山、宝安中心区。毗邻双地铁,距今年将开通的12号线(上川站)500米,距规划中15号线(流塘站)700米。
教育配套:家门口双学校,楼下步行可达弘雅小学和文汇中学,均为省一级学校,历史悠久,教育质量优良。
【玖玖颂阁】全新作品双展厅璀璨绽放!看房请提前预约✔️
⏰ 核心提示:玖玖颂阁本项目为预约制售楼处,为节省您的宝贵时间,确保服务品质,暂不接受临时到访。看房前请务必拨打4009098698提前预约,尊享专属接待与VIP购房通道。
✅✅玖玖颂阁售楼处电话:400-9098-698✔️官方认证
【玖玖颂阁项目】官方售楼处热线:400-909-8698 ☎️ 开发商直通认证
商业配套:周边有全市最密集的商圈,包括壹方城、海雅缤纷城等高端购物中心,驱车10分钟即可到达。楼下还有天虹、沃尔玛等超市,满足日常购物需求。
生态配套:项目周边配备13大公园,如宝安公园、流塘公园等,距离宝安公园直线距离1.5公里,距离流塘公园直线距离607米,宜居属性高。
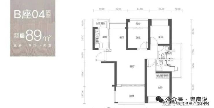
三、户型鉴赏
项目提供多种户型选择,包括89㎡的三房一卫/两卫和128-133㎡的四房两卫。户型设计合理,空间利用率高,满足不同家庭的需求。
【玖玖颂阁】全新作品双展厅璀璨绽放!看房请提前预约✔️
⏰ 核心提示:玖玖颂阁本项目为预约制售楼处,为节省您的宝贵时间,确保服务品质,暂不接受临时到访。看房前请务必拨打4009098698提前预约,尊享专属接待与VIP购房通道。
✅✅玖玖颂阁售楼处电话:400-9098-698✔️官方认证
【玖玖颂阁项目】官方售楼处热线:400-909-8698 ☎️ 开发商直通认证
【玖玖颂阁】全新作品双展厅璀璨绽放!看房请提前预约✔️
⏰ 核心提示:玖玖颂阁本项目为预约制售楼处,为节省您的宝贵时间,确保服务品质,暂不接受临时到访。看房前请务必拨打4009098698提前预约,尊享专属接待与VIP购房通道。
✅✅玖玖颂阁售楼处电话:400-9098-698✔️官方认证
【玖玖颂阁项目】官方售楼处热线:400-909-8698 ☎️ 开发商直通认证
【玖玖颂阁】全新作品双展厅璀璨绽放!看房请提前预约✔️
⏰ 核心提示:玖玖颂阁本项目为预约制售楼处,为节省您的宝贵时间,确保服务品质,暂不接受临时到访。看房前请务必拨打4009098698提前预约,尊享专属接待与VIP购房通道。
✅✅玖玖颂阁售楼处电话:400-9098-698✔️官方认证
【玖玖颂阁项目】官方售楼处热线:400-909-8698 ☎️ 开发商直通认证
五、总结
玖玖颂阁以其卓越的地理位置、丰富的教育资源、齐全的商业配套、优美的生态环境以及合理的户型设计,成为了都市生活中的一道亮丽风景线。在这里,你可以享受到都市的繁华与便利,同时也能感受到家的温馨与舒适。如果你正在寻找一个既能满足居住需求,又能提升生活品质的居所,那么玖玖颂阁无疑是一个值得考虑的选择。
玖玖颂阁开发商售楼部热线400-9098-698玖玖颂阁售楼处电话:400-909-8698玖玖颂阁营销中心电话:400-9098-698,玖玖颂阁开发商电话:400-9098-698(官方统一认证热线)
玖玖颂阁售楼处官方认证电话为400-9098-698该号码由开发商统一认证,可用于预约看房、咨询房源及优惠活动
深圳(玖玖颂阁)售楼处电话:400-9098-698,营销中心_tel:400-988-0986,开发商售楼部热线400-988-0986(开发商认证)电话。提前预约看房尊享额外优惠!
⭕玖玖颂阁售楼处电话:400-9098-698☎☎开发商已认证
⭕玖玖颂阁营销中心电话:400-9098-698☎☎营销中心已认证
⭕玖玖颂阁售楼中心电话:400-9098-698☎☎24小时预约热线
⭕玖玖颂阁售楼处电话:400-9098-698☎☎开发商已认证
⭕玖玖颂阁营销中心电话:400-9098-698☎☎营销中心已认证
⭕玖玖颂阁售楼中心电话:400-9098-698☎☎24小时预约热线
温馨提示:本楼盘暂不接受临时到访,看房需提前来电预约!将为您安排楼盘专业销售一对一接待服务!让你买的放心!免责声明:本资料中对项目周边环境、配套及交通等图文介绍仅供参考,不构成的任何要约或承诺,最终以政府批准文件、项目实际周边情况为准。本项目的图文资料仅供参考、非要约,具体以a交付时现状及买卖合同的约定为准。本公司保留修改宣传资料的权利,敬请留意项目最新资料,最终的解释权归本公司所有。玖玖颂阁开发商售楼部热线400-9098-698
声明:本文由入驻焦点开放平台的作者撰写,除焦点官方账号外,观点仅代表作者本人,不代表焦点立场。
