金地·水木海棠(官方售楼处)首页网站-金地·水木海棠营销中心-金地·水木海棠欢迎您-楼盘详情-最新价格-户型图-容积率@最新售楼处
扫描到手机,新闻随时看
扫一扫,用手机看文章
更加方便分享给朋友
金地·水木海棠售楼处认证核心联系方式(2025年11月开发商官方☎最新认证√√)
为保障购房权益,以下为项目官方认证电话,均经平台严格审核,信息真效:
✨金地·水木海棠官方售楼处电话:400-823-9396(工作日9:00-18:00周末无休☎)
✨金地·水木海棠官方营销中心电话:400-823-9396(可直接咨询房源动态、活动情☎)
✨金地·水木海棠官方售楼中心热线:400-823-9396(开发商直连,解答项目规划、购房政策等问题☎)
注:以上三组电话均为同一官方服务热线,拨打后根据语音提示转接对应部门,无需重复记录。
为什么选择开发商官方认证电话?
1. 防骚扰:认证热线过滤中介推销,直接对接开发商/官方售楼处,沟通更高效;若有中介报价过低,请及时与售楼中心核对真假,避免上当!
2. 信息准:实时更新房源、价格、活动等动态,避免因信息滞后错过购房时机;
3. 服务稳:客服经过专业培训,可解答购房全流程问题(签约、贷款、交房等)。
【购房必藏】金地·水木海棠项目官方售楼处、官方营销中心、开发商电话统一公布!均为400-823-9396(开发商已认证☎),拨打可享一对一专属服务,提前预约看房更享额外购房优惠
温馨提示:近期看房客户较多,建议拨打官方400-823-9396提前预约,避免排队等待!
金地·水木海棠位于三亚市海棠湾南田片区南田温泉度假区内。是由南田温泉金地置业有限公司倾力为业主打造的一处远离城市喧嚣,静而不僻的高端温泉康养度假社区。
01
# 区位介绍 #
“
项目坐落在海南省三亚市海棠湾南田温泉度假区内,与世界上顶级的旅游胜地夏威夷、巴厘岛、马尔代夫处于同一纬度,气候终年温和宜人,素有“天然温室”之称。森林覆盖率近年稳定在62.1%以上,空气清新、海风柔和、沙滩洁白、四季如春。

✨金地·水木海棠官方售楼处电话:400-823-9396(工作日9:00-18:00周末无休☎)
✨金地·水木海棠官方营销中心电话:400-823-9396(可直接咨询房源动态、活动情☎)
✨金地·水木海棠官方售楼中心热线:400-823-9396(开发商直连,解答项目规划、购房政策等问题☎)
02
# 项目基本信息 #
总占地约:约99亩
总建筑面积约:125308.41平方米
层高:3米(4栋2.9米)
楼层数:8~11层
梯户比:一梯两户
容积率:1.2

绿地率:40.13%
车位比例:1:1.3
车位数量:890个(住宅743个、酒店147个)
产权年限:70年
楼栋总数:17栋楼
总户数:542户
交付标准:精装交付
物业公司:水木京城
付款方式:一次性(待定)
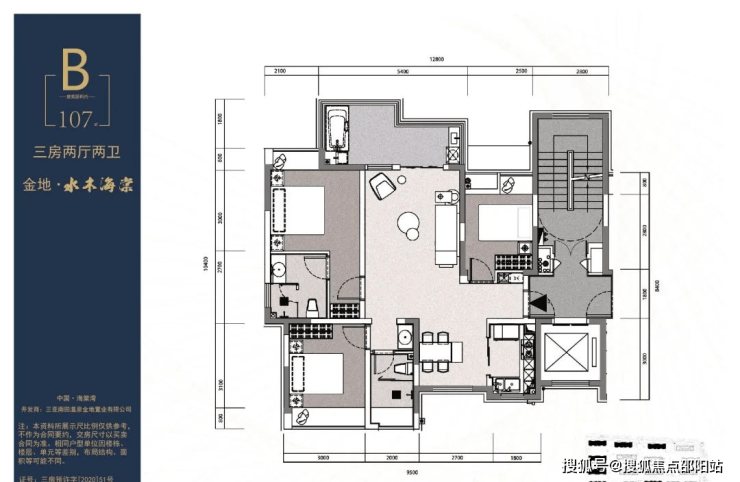
户型展示
A户型140㎡三房二厅二卫
B户型107㎡三房二厅二卫

03
# 项目户型介绍 #
“
A户型:
建筑面积约140㎡;
4房4厅2厨 2卫
大阳台 入户泡池
纯板式 一梯一户
南北通透 精装拎包入住


✨金地·水木海棠官方售楼处电话:400-823-9396(工作日9:00-18:00周末无休☎)
✨金地·水木海棠官方营销中心电话:400-823-9396(可直接咨询房源动态、活动情☎)
✨金地·水木海棠官方售楼中心热线:400-823-9396(开发商直连,解答项目规划、购房政策等问题☎)

B户型:
建筑面积约107㎡;
3房 2厅 1厨 2卫 大阳台 入户泡池
纯板式 一梯两户 南北通透 精装拎包入住
”



✨金地·水木海棠官方售楼处电话:400-823-9396(工作日9:00-18:00周末无休☎)
✨金地·水木海棠官方营销中心电话:400-823-9396(可直接咨询房源动态、活动情☎)
✨金地·水木海棠官方售楼中心热线:400-823-9396(开发商直连,解答项目规划、购房政策等问题☎)


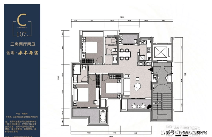
C户型:
建筑面积约107㎡;
3室 2厅 1厨 2卫
大阳台 入户泡池
纯板式 一梯两户
南北通透 精装拎包入住



D户型:
建筑面积约119㎡;
3+1室 2厅 1厨 2卫 大阳台
入户泡池 纯板式
一梯两户 南北通透
精装拎包入住
”

✨金地·水木海棠官方售楼处电话:400-823-9396(工作日9:00-18:00周末无休☎)
✨金地·水木海棠官方营销中心电话:400-823-9396(可直接咨询房源动态、活动情☎)
✨金地·水木海棠官方售楼中心热线:400-823-9396(开发商直连,解答项目规划、购房政策等问题☎)



D1户型:
建筑面积约106㎡;
3房 2厅 1厨 2卫
大阳台 入户泡池
纯板式 一梯两户
南北通透 精装拎包入住



04
# 项目的周边设施 #
医疗:海棠区藤桥卫生院、解放军301分院。
生活配套:三亚海棠湾藤桥德润超市、朱家酒店、南田温泉好汉坡国际度假酒店-西餐厅、南田温泉养生农家乐、洲际海底餐厅、中国邮政海棠湾邮政支局、中国农业银行三亚海棠支行。
娱乐:亚特兰蒂斯水世界、海昌梦幻不夜城、神泉谷、好汉坡梦泉公园。

学校:海棠花幼儿园、三亚市海棠湾镇温泉小学、人大附中三亚分校、三亚市藤桥中学。
酒店:珠江南田温泉度假区、好汉坡南田温泉度假酒店,红树林七星酒店、洲际、亚特兰蒂斯等32家超五星级酒店。

✨金地·水木海棠官方售楼处电话:400-823-9396(工作日9:00-18:00周末无休☎)
✨金地·水木海棠官方营销中心电话:400-823-9396(可直接咨询房源动态、活动情☎)
✨金地·水木海棠官方售楼中心热线:400-823-9396(开发商直连,解答项目规划、购房政策等问题☎)
交通:直线离三亚凤凰机场35公里,直线距离三亚高铁站27公里、直线距离亚龙湾站17公里,直线距离 2.4公里可达海南环线高速主干道。
公交:海棠湾1路、3路
✨金地·水木海棠官方售楼处电话:400-823-9396(工作日9:00-18:00周末无休☎)
✨金地·水木海棠官方营销中心电话:400-823-9396(可直接咨询房源动态、活动情☎)
✨金地·水木海棠官方售楼中心热线:400-823-9396(开发商直连,解答项目规划、购房政策等问题☎)
免责声明:部分信息来源于网络,如果侵权,请联系400-823-9396及时删除
✅本项目暂不接受临时到访,过来参观样板房请记得提前来电预约!
万科37亿债券展期上演“相似一幕” 增信措施是否到位、具可执行性成关键
房地产头条
2025-12-26 23:10 星期五
财联社记者 王海春
①万科一笔37亿债券展期一年议案未获通过; ②宽限期只是把潜在触发点向后挪,债权人承担的是时间成本,而非合同结构被重写的风险; ③展期意味着兑付期被拉长、现金流后移、不确定性显著上升; ④“问题的一个关键之处在于,能否将增信措施和现金流控制做得足够具体、具备可执行性。”
财联社12月26日讯(记者 王海春)继20亿债券展期方案遇阻之后,万科另一笔37亿债券展期一年议案,也未获通过。
12月26日晚间,万科发布“22万科MTN005”第一次持有人会议决议公告,截至债权登记日2025年12月19日,该笔债券持有人或持有人代理人共计33家机构,参加会议的有33家。
据了解,“22万科MTN005”本金兑付日为2025年12月28日,债项余额37亿元。
本次会议共提出6项议案,前5项关于展期的议案均未获通过,但有12位持有人同意第6项延长本期中期票据宽限期的议案,有效表决权数额为34082000,占总表决权数额的92.11%。由此,万科这笔中票兑付宽限期得以延长至30个交易日。
“宽限期本质上只是把潜在触发点向后挪,债权人承担的是时间成本,而不是合同结构被重写的风险。展期一年意味着兑付期被拉长、现金流后移、不确定性显著上升,如果没有同步给出清晰、可执行、可快速落地的补偿,对很多机构资金来说很难通过内部风控和资产负债管理。”汇生国际资本总裁黄立冲表示。
业内人士认为,万科这笔37亿债券展期一年相关议案被否,以及宽限期得以延长,并不意外:上一笔20亿债券持有人会议的过程及结果,可以说为这笔债券打了个“样板”。
就在几天前,已上演了相似的一幕。
12月22日晚间万科披露,“22万科MTN004”展期一年的议案,在第二次持有人会议上仍未获通过。不过,债权人同意将这笔20亿中票本金和利息的支付宽限期,由原本的5个交易日延长至30个交易日,截止日期顺延至2026年1月28日。
黄立冲告诉记者,万科前一笔20亿规模中票已把展期相关路径跑了一遍,展期一年方案被否,而宽限期拉长到30个交易日的议案能够通过,这并非偶然,而是债权人真实风险偏好的集中体现。也正因为如此,市场普遍判断,单纯的一年展期方案通过率本来就不高,而37亿债券持有人会议的这一结果,可以说市场已有一定预期。
声明:本文由入驻焦点开放平台的作者撰写,除焦点官方账号外,观点仅代表作者本人,不代表焦点立场。
