深业云筑(售楼处)首页网站-深业云筑营销中心-深业云筑欢迎您-楼盘详情-最新价格-户型图-容积率@售楼处
扫描到手机,新闻随时看
扫一扫,用手机看文章
更加方便分享给朋友
✅深业云筑销售中心电话:400-856-2867【已认证】⭐⭐
✅深业云筑售楼处电话:400-8562-867【已认证】⭐⭐
✅深业云筑开发商电话:400-856-2867【已认证】⭐⭐
✅深业云筑营销中心电话:400-856-2867【已认证】⭐⭐
在售户型图丨项目介绍丨最新房源丨周边配套丨详细解答〢
◆开发商营销中心诚挚邀请,一键预约,尊享内部折扣!匠心独运的精品项目,恭候您的品鉴与选择。⭐
✅ 过来参观样板房烦请记得提前来电预约!
✅ 为您安排楼盘现场销售全程接待并讲解,给您更贴心的看房体验!

项目基础信息
【项目名称】深业云筑
【占地面积】约4.9万㎡
【建筑面积】约32.7万㎡
【推售产品】建面约87-143㎡3房-5房
【交付标准】(简装)
【交房时间】已经交楼,现房发售
【产权年限】70
【房产性质】住宅
【可售套数】751套
【车位数】1520个
【容积率】4.33
【绿化率】约40%
【梯户比】2梯4户 /3梯6户
【开发商】深业鹏基南方(集团)有限公司
【物业公司】深业集团物业管理有限公司
【项目地址】深圳市光明区悦安路与芳园路交汇处
✅深业云筑售楼处电话:400-8562-867【已认证】⭐⭐
✅深业云筑开发商电话:400-856-2867【已认证】⭐⭐
户型鉴赏
89㎡的3房2厅1卫,E2户型,设计的是竖厅格局,客厅3.6米开间,LDKB一体化设计,3个卧室分别做到了3.2米/3米/2.8米的宽度,L型厨房还带1个小生活阳台,卫生间三段式分离,得房率:79.89%(不含赠送),阳台有东南/西南或正南朝向。
✅深业云筑售楼处电话:400-8562-867【已认证】⭐⭐
✅深业云筑开发商电话:400-856-2867【已认证】⭐⭐
89㎡的3房2厅1卫,E3户型,仅4栋/5栋A单元/7栋的03号房才有,设计的是竖厅格局,客厅3.6米开间,LDKB一体化设计,3个卧室分别做到了3.2米/3米/2.8米的宽度,二字型厨房还带1个小生活阳台,卫生间三段式分离,得房率:79.89%(不含赠送),阳台都是西南朝向。
✅深业云筑售楼处电话:400-8562-867【已认证】⭐⭐
✅深业云筑开发商电话:400-856-2867【已认证】⭐⭐
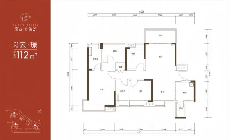
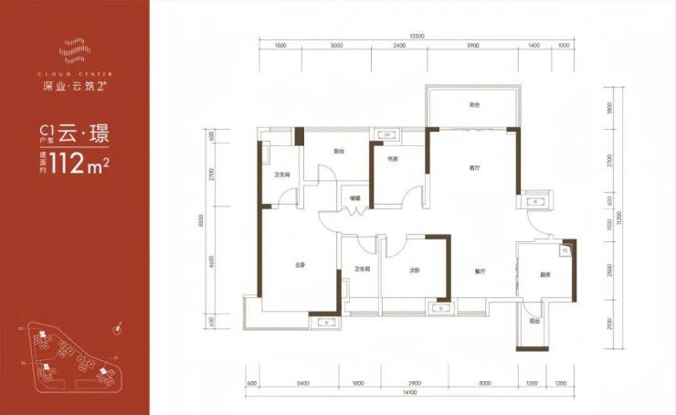
112㎡的4房2厅2卫,C1户型,仅4栋/5栋A单元/7栋的05号房才有,设计的是竖厅南北通透格局,客厅3.9米开间,餐客厅一体化设计,4个卧室分别做到了3.4米/3米/2.9米/2.4米的宽度,U型厨房还带1个小生活阳台,卫生间干湿分离,得房率:79.88%(不含赠送),阳台主朝西南向。
112㎡的4房2厅2卫,C2户型,仅5栋A单元/7栋的06号房才有,设计的是竖厅南北通透格局,客厅3.9米开间,餐客厅一体化设计,4个卧室分别做到了3.4米/3米/2.9米/2.4米的宽度,U型厨房,卫生间干湿分离,得房率:79.89%(不含赠送),阳台主朝东南向。
✅深业云筑售楼处电话:400-8562-867【已认证】⭐⭐
✅深业云筑开发商电话:400-856-2867【已认证】⭐⭐
128㎡的4房2厅2卫,B1户型,仅5栋B单元的03号房才有,设计的是竖厅格局,南北通透双阳台,客厅4.2米开间,餐客厅一体化设计,4个卧室分别做到了3.6米/3米/3米/3米的宽度,U型厨房,卫生间干湿分离,得房率:79.71%(不含赠送),大阳台主朝正南向。
✅深业云筑售楼处电话:400-8562-867【已认证】⭐⭐
✅深业云筑开发商电话:400-856-2867【已认证】⭐⭐
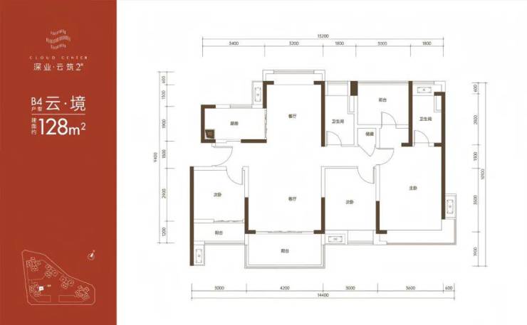
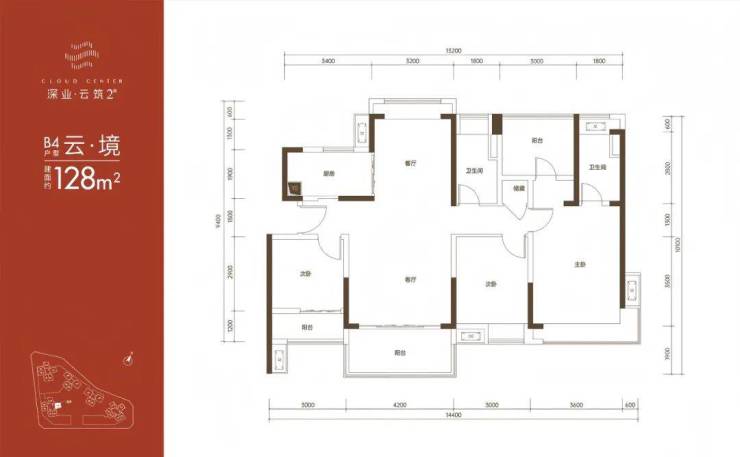
128㎡的4房2厅2卫,B4户型,仅4栋的06号房才有,设计的是竖厅南北通透格局,客厅4.2米开间,餐客厅一体化设计,4个卧室分别做到了3.6米/3米/3米/3米的宽度,U型厨房,卫生间干湿分离,得房率:80.14%(不含赠送),阳台主朝东南向。
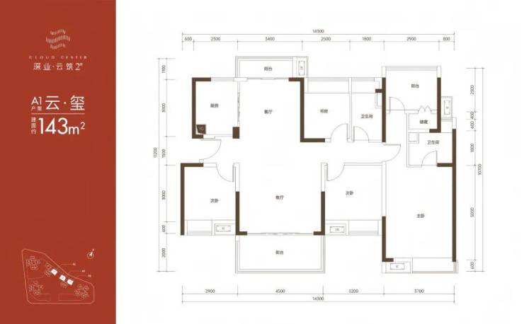
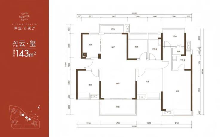
143㎡的5房2厅2卫,A1户型,设计的是竖厅格局,南北通透双阳台,客厅4.5米开间,餐客厅一体化设计,5个卧室分别做到了3.7米/3.2米/2.9米/2.9米/2.5米的宽度,U型厨房,卫生间干湿分离,得房率:80.4%(不含赠送),阳台主朝正南向。
✅深业云筑售楼处电话:400-8562-867【已认证】⭐⭐
✅深业云筑开发商电话:400-856-2867【已认证】⭐⭐
深业云筑位于光明区公明街道,南临公明南环大道,原为石家村里的工业园区旧改,曾用名是深业信宏城。
项目总占地约5万方,建筑面积约32万方,绿化率30%,容积率4.572,整体分为两期开发,以住宅为主,辅以少量底层商业。
项目分两期开发
深业云筑位于光明区公明街道,南临公明南环大道,原为石家村里的工业园区旧改,曾用名是深业信宏城。
项目总占地约5万方,建筑面积约32万方,绿化率30%,容积率4.572,整体分为两期开发,以住宅为主,辅以少量底层商业。
周边配套
学校配套:深业云筑1期有1所12班幼儿园,根据2024年光明区教育局最新的学区划分,小学学区划分在深圳教科院实验小学(光明)、秋硕小学、龙豪小学、光明区实验学校小学部,初中学区划分在光明第二中学、光明区实验学校初中部。
深圳教科院实验小学(光明),在2024年的录取积分是第4类62.25分,属于非光明区户籍+学区租房生源,如果买了商品房,只有是深圳户籍是能保证就读的。
✅深业云筑售楼处电话:400-8562-867【已认证】⭐⭐
✅深业云筑开发商电话:400-856-2867【已认证】⭐⭐
地铁配套:深业云筑2期距离在建的13号地铁线二期“公明广场站”距离1.1公里,“新庄站”(以前的公明南站)距离800米左右,另外深业云筑2期规划有公交首末站,可以快速接驳地铁站;现有的6号地铁线“公明广场站”距离有1.6公里,步行需要24分钟。
深圳13号线作为光明区的生命线,也是深圳3条快线之一,纵贯宝安区、光明区、南山区,将重新定位光明科学城通往南山核心区域的距离。
✅深业云筑售楼处电话:400-8562-867【已认证】⭐⭐
✅深业云筑开发商电话:400-856-2867【已认证】⭐⭐
商业配套:深业云筑自带社区底商,距离约1.1公里就是公明最大的大仟里购物中心,也是光明首个一站式大型购物中心,光明人消费必选打卡地之一,另外距离约1.6公里范围内还有天虹商场,百佳华商场等商业体。
免责声明
1、文章图片来源于微信搜索或百度搜索引擎,我方非相关图片的原创作者,也不对相关图片及内容享有任何权利。
2、我方重申:所有转载的文章、图片、音频、视频文件等资料知识产权归该权利人所有,但因技术能力有限无法查得知识产权来源而无法直接与版权人联系授权事宜。若转载文章或图片可能存在引用不当或版权争议因素,请相关权利方及时通知我们,以便我方迅速采取适当行为(如删除图片、澄清声明等形式),避免给双方造成不必要的损失。
3、本宣传资料对项目周边幼儿园、学校等教育资源的介绍旨在提供相关信息,并不意味着我方对就学安排作出承诺。教育资源的名称、办学性质、办学规模、学位设置、开学(班)时间、招生条件、收费标准及招生区域存在调整的可能,应以政府教育主管部门及办学方颁布的政策规定为准。
4、文章中文字和图片之间无必然联系,仅供读者参考。
5、本文所述内容和意见仅供参考,不构成市场交易依据和投资建议。
声明:本文由入驻焦点开放平台的作者撰写,除焦点官方账号外,观点仅代表作者本人,不代表焦点立场。
